 |
|
 |
| Автор |
Сообщение
|
Evgeniy E.
Зарегистрирован: Пт 2 Январь 2009, 20:42
Сообщения: 20
|
Добавлено:
Пт 2 Январь 2009, 23:42
|
  |
Добрый день.
Собираюсь строить дом, Калужская область..
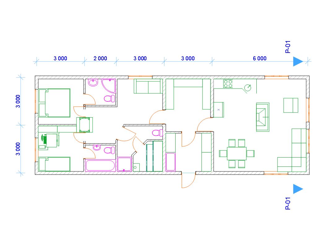
На приложеной картинки - план первого этажа. Там два тепловых контура, слева и справа. 1 этаж, стены - пенобетон с внешней теплоизоляцией пенопластом. Расчетные теплопотери правого контура (одна большая комната 6х6 с вторым светом, крыша с углом 30гр.) около 4000вт. при температуре внутри помещения 22 и снаружи -25. Для отопления хочу поставить примерно по центру(там, где на плане изображен камин) отопительно-варочную печь, с камином. Вероятно, ОВИК ЗК5.
Единственное, что мне не нравитсяв этой печке - камин хочется побольше .
Подойдет ли мне такая печь, достаточно ли ее тепловой мощности?
Можно ли как то увеличить камин? Камин хочется реально большой...
Строил ли кто ОВИК ЗК5? Хорошо ли получилось?
вобщем, буду благодарен за советы.
|
| Описание: |
|
| Размер файла: |
65.52 КБ |
| Просмотров: |
965 раз(а) |

|
|
|
  |
 |
Валерий Петров

Зарегистрирован: Пт 9 Декабрь 2005, 14:33
Сообщения: 1085
Регион: Россия
|
Добавлено:
Сб 3 Январь 2009, 17:01
|
  |
Если напротив входа расположена кухня, то ее и зал такая конструкция вполне способна отопить. Размеры камина возможно изменить. Но вот отопление той части дома, где расположены спальни и ванно-душевые комнаты нужно рассматривать отдельно. Либо это отдельная печь, возможно с перепланировкой, либо с системой жидкостного отопления.
ОВИК ЗК строилась неоднократно, работает нормально.
|
_________________ +7 911 090-08-96 (МТС СПб)
________________________________________
Чтобы получать правильные ответы, научись задавать правильные вопросы...
|
|
     |
 |
Evgeniy E.
Зарегистрирован: Пт 2 Январь 2009, 20:42
Сообщения: 20
|
Добавлено:
Сб 3 Январь 2009, 18:41
|
  |
Валерий, спасибо за ответ.
Да, я предполагаю две печи, но я пока не определился с планировкой левой части, соответственно там дальше буду отдельно думать и спрашивать
|
|
|
|
  |
 |
merlin100

Зарегистрирован: Ср 17 Сентябрь 2008, 23:41
Сообщения: 187
Регион: Минск
|
Добавлено:
Вс 4 Январь 2009, 15:18
|
  |
ОВИК ЗК5 вводит в заблуждение своими размерами и сразу думается что ее мощность будет порядка 4кВт, но это не так. Собственно печь - это 4х2 кирпича, остальное камин. Со стороны камина излучает только часть открытая порталом, т.е. зона топки. Там где варочная поверхность, идет интенсивный прогрев во время топки, как от буржуйки, довольно сильно прогревается левая стенка варочной ниши, задняя и правая меньше. Так же имеется ассиметрия в прогреве боковых стен, та сторона где находится задвижка летнего хода прогревается больше и выше. Все это следует учесть при установке печи, ведь чертеж можно переделать зеркально.
|
|
|
|
  |
 |
Евгений Колчин

Зарегистрирован: Чт 3 Октябрь 2002, 06:26
Сообщения: 10146
Регион: Москва
|
Добавлено:
Вс 4 Январь 2009, 16:03
|
  |
а что не обратить внимание на печи типа ОВИК ЗК14 и схожими
|
_________________ ************************************
|
|
      |
 |
|
|
|
Следующая тема
Предыдущая тема
Вы не можете начинать темы Вы не можете отвечать на сообщения Вы не можете редактировать свои сообщения Вы не можете удалять свои сообщения Вы не можете голосовать в опросах Вы не можете добавлять приложения в этом форуме Вы можете скачивать файлы в этом форуме
|
|