Некоммерческое партнерство Альянс Печных Дел Мастера
 RSS  • FAQ  •  Поиск  •  Пользователи  •  Группы   •  Регистрация   •  Избранные темы   •  Профиль  •  Войти и проверить личные сообщения  •  Чат  •  Вход





 Ищу печника для работы в Истринском р-не МО летом Следующая тема
Предыдущая тема
Начать новую темуОтветить на тему
Автор Сообщение
atlas1



Зарегистрирован: Пн 18 Май 2009, 16:43
Сообщения: 5

СообщениеДобавлено: Пн 18 Май 2009, 16:55 Ответить с цитатойВернуться к началу

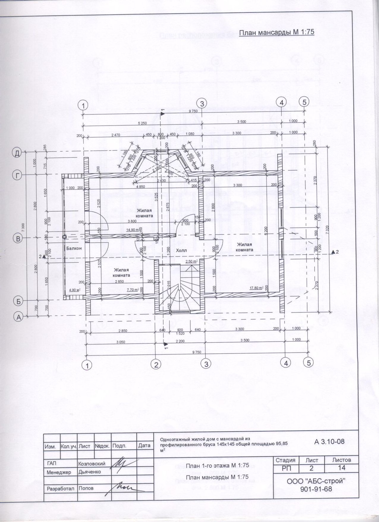
Ищу печника для постройки отопительной печи в дачном доме 65км от Москвы,,Истринский р-н. Отапливаться должна гостиная и жилая комната на первом этаже. Нужна отопительная печь со стекл. дверцей врезанная между гостиной и комнатой. Имеется фундамент под печь. Дом новый брусовой апрель 2008г, на данный момент есть черновой пол на первом этаже и лаги на втором, стены и перегородки -брус 150*150, печь дляосновного отопления, проживание сезонное,топка из гостиной.Если есть вопросы -задавайте



Изображение.jpg
 Описание:
 Размер файла:  220.91 КБ
 Просмотров:  904 раз(а)

Изображение.jpg


Посмотреть профильОтправить личное сообщение
atlas1



Зарегистрирован: Пн 18 Май 2009, 16:43
Сообщения: 5

СообщениеДобавлено: Пн 18 Май 2009, 16:57 Ответить с цитатойВернуться к началу

еще



Изображение 004.jpg
 Описание:
 Размер файла:  319.6 КБ
 Просмотров:  903 раз(а)

Изображение 004.jpg


Посмотреть профильОтправить личное сообщение
atlas1



Зарегистрирован: Пн 18 Май 2009, 16:43
Сообщения: 5

СообщениеДобавлено: Пн 18 Май 2009, 18:52 Ответить с цитатойВернуться к началу

скан 3



Изображение 002.jpg
 Описание:
 Размер файла:  254.25 КБ
 Просмотров:  894 раз(а)

Изображение 002.jpg



Изображение 003.jpg
 Описание:
 Размер файла:  216.71 КБ
 Просмотров:  885 раз(а)

Изображение 003.jpg


Посмотреть профильОтправить личное сообщение
alekseirubin



Зарегистрирован: Вс 2 Март 2008, 01:48
Сообщения: 165
Регион: Дзержинск

СообщениеДобавлено: Ср 20 Май 2009, 07:37 Ответить с цитатойВернуться к началу

Вы одной печью собираетесь весь дом отопить?
Посмотреть профильОтправить личное сообщение
atlas1



Зарегистрирован: Пн 18 Май 2009, 16:43
Сообщения: 5

СообщениеДобавлено: Ср 20 Май 2009, 10:03 Ответить с цитатойВернуться к началу

нет, я собираюсь топить только гостиную и соседнюю с ней комнату на первом этаже. т.е. печь хочу расположить так,чтобы ее задняя стенка выходила в комнату.В остальных помещениях будут включаться электронагреватели по мере надобности.
Посмотреть профильОтправить личное сообщение
atlas1



Зарегистрирован: Пн 18 Май 2009, 16:43
Сообщения: 5

СообщениеДобавлено: Чт 21 Май 2009, 06:11 Ответить с цитатойВернуться к началу

Да,забыл сказать: на участке есть летний дачный домик,свет,вода.
Посмотреть профильОтправить личное сообщение
Показать сообщения:      
Начать новую темуОтветить на тему


 Перейти:   



Следующая тема
Предыдущая тема
Вы не можете начинать темы
Вы не можете отвечать на сообщения
Вы не можете редактировать свои сообщения
Вы не можете удалять свои сообщения
Вы не можете голосовать в опросах
Вы не можете добавлять приложения в этом форуме
Вы можете скачивать файлы в этом форуме




Проект форум печников "Альянс. Печных Дел Мастера" © 2006-2026