 |
|
 |
| Автор |
Сообщение
|
Vladimir DG
Зарегистрирован: Пн 22 Июнь 2009, 15:46
Сообщения: 3
|
Добавлено:
Пн 22 Июнь 2009, 16:04
|
  |
Уважаемы форумчане,
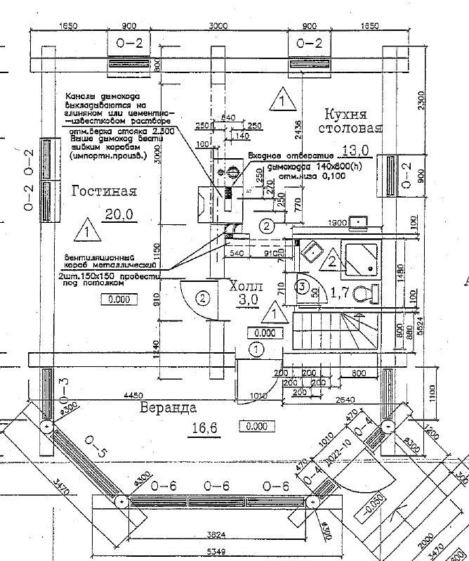
Пососветуйте проект печи Кузнецова в дом из оцилиндровки, бревно 240 мм, первый этаж 3 м, мансарда 3 м, для периодическго ипользования зимой. Приглянулась овик зк 3 (зеркальный вариант).
Прикладываю план первого этажа и фундамента. Силовой комплект под крышу сделан. Заранее благодарен.
|
|
|
|
  |
 |
Vladimir DG
Зарегистрирован: Пн 22 Июнь 2009, 15:46
Сообщения: 3
|
Добавлено:
Пн 22 Июнь 2009, 16:14
|
  |
ну и еще раз
|
| Описание: |
|
| Размер файла: |
65.72 КБ |
| Просмотров: |
892 раз(а) |

|
| Описание: |
|
| Размер файла: |
132.34 КБ |
| Просмотров: |
930 раз(а) |

|
|
|
  |
 |
Vladimir DG
Зарегистрирован: Пн 22 Июнь 2009, 15:46
Сообщения: 3
|
Добавлено:
Вт 23 Июнь 2009, 12:21
|
  |
Озовитесь, форумчане. Наверное все в полях.
Все таки надеюсь кто-нибудь подкинет идею.
|
|
|
|
  |
 |
Андрей Ищенко
Проектировщик
Зарегистрирован: Вт 7 Февраль 2006, 10:08
Сообщения: 2946
Регион: Пенза
|
Добавлено:
Ср 24 Июнь 2009, 21:58
|
  |
Владимир, если планируете строить печь Кузнецова, обращайтесь к представителю в своем регионе. Вам предложат проект соответствующий всем вашим пожеланиям.
Как вы правильно заметили, все в поле, времени нет...
|
_________________ +7 962 974-10-94 Viber WhatsApp
+7 962 399-59-39
|
|
     |
 |
|
|
|
Следующая тема
Предыдущая тема
Вы не можете начинать темы Вы не можете отвечать на сообщения Вы не можете редактировать свои сообщения Вы не можете удалять свои сообщения Вы не можете голосовать в опросах Вы не можете добавлять приложения в этом форуме Вы можете скачивать файлы в этом форуме
|
|