 |
|
 |
| Автор |
Сообщение
|
Olyhon
Зарегистрирован: Ср 26 Июль 2023, 15:08
Сообщения: 19
Регион: Санкт-Петербург
|
Добавлено:
Пт 28 Июль 2023, 15:33
|
  |
Приветствую.
Построил теплый контур домика 7м*8м в деревне. 2 этажа, кирпич.
Место под печь позволяет построить на 1 этаж печь ОВИК3. Кирпич ЛСР М250. Шамот - от старой советской печи.
Пока занимаюсь конструктором в реальном размере, пилю заготовки.
Вопросы появляются, буду выкладывать.
Прошу давать советы, рекомендации, можно учить жить.
Очень мало информации по ОВИК3.
И очень много по теме, разобраться трудно, всего не перечитать. А времени до зимы мало.
Поэтому, уважаемые коллеги, прошу отзываться не боясь повториться.
Вопрос 1. Оправдан ли выбор?
Вопрос 2. Нужна ли теплоизоляция от фундамента? Фундамент дома теплоизолирован от грунта. До печи еще 2 ряда кирпича на фундаменте. Ваше мнение, можно ли пренебречь теплопотерей?
|
| Описание: |
|
| Размер файла: |
104.56 КБ |
| Просмотров: |
86 раз(а) |

|
Последний раз редактировалось: Olyhon (Пт 28 Июль 2023, 15:52), всего редактировалось 1 раз |
|
  |
 |
Olyhon
Зарегистрирован: Ср 26 Июль 2023, 15:08
Сообщения: 19
Регион: Санкт-Петербург
|
Добавлено:
Пт 28 Июль 2023, 15:46
|
  |
Выбрал такой состав. Где-то под 50 т.р.
1. Дверка каминная 261 250x210 мм
2. Дверка поддувальная 236 140x275 мм
3. Дверка прочистная 235 130x130 мм - 8 шт.
4. Задвижка ЗВ-3А 130x240 мм - 2 шт.
5. Плита печная ПС2-3А с конфорками сборная 710х410 мм или
Плита двухкомфорочная 4В 710х410 мм - ДОРОГО, но красиво?
6. Духовка чугунная ДП-ДТ-6А. Знаю, что по длине великовата. Способа два: пилить духовку или мудрить с кирпичом. Пока?
7. Колосник? Вопрос с размером. Читал, что большие колосники не в моде. Мастера рекомендуют не большой по площади. Какой пока не решил. Дойду до этого места кладки - необходимость ускорит принятие решения.
Ваше мнение, все ли так как нужно?
|
|
|
|
  |
 |
tuomob

Зарегистрирован: Пн 26 Сентябрь 2011, 16:45
Сообщения: 2362
Регион: Тула
|
Добавлено:
Пт 28 Июль 2023, 19:14
|
  |
| Olyhon писал(а): |
Приветствую.
Построил теплый контур домика 7м*8м в деревне. 2 этажа, кирпич.
Место под печь позволяет построить на 1 этаж печь ОВИК3. Кирпич ЛСР М250. Шамот - от старой советской печи.
Пока занимаюсь конструктором в реальном размере, пилю заготовки.
Вопросы появляются, буду выкладывать.
Прошу давать советы, рекомендации, можно учить жить.
Очень мало информации по ОВИК3.
И очень много по теме, разобраться трудно, всего не перечитать. А времени до зимы мало.
Поэтому, уважаемые коллеги, прошу отзываться не боясь повториться.
Вопрос 1. Оправдан ли выбор?
Вопрос 2. Нужна ли теплоизоляция от фундамента? Фундамент дома теплоизолирован от грунта. До печи еще 2 ряда кирпича на фундаменте. Ваше мнение, можно ли пренебречь теплопотерей? |
1. Зачем нужна чугунная плита? Печь ведь для отопления строится, а не для готовки пищи. Чугунная плита "портит" процесс сжигания дров. Высокая шамотная топка правильней будет.
2. Не нужна. Гидроизоляция, поверх 2 сплошных ряда.
Кладите полный план домика с печкой на плане и местом трубы на печке.
Посмотрим-подумаем вместе.
|
_________________ С Уважением! Юрий. Тула.
ВК https://vk.com/tuomob
За проектами в личку обращайтесь.
|
|
  |
 |
tuomob

Зарегистрирован: Пн 26 Сентябрь 2011, 16:45
Сообщения: 2362
Регион: Тула
|
Добавлено:
Пт 28 Июль 2023, 19:19
|
  |
| Olyhon писал(а): |
Выбрал такой состав. Где-то под 50 т.р.
1. Дверка каминная 261 250x210 мм
2. Дверка поддувальная 236 140x275 мм
3. Дверка прочистная 235 130x130 мм - 8 шт.
4. Задвижка ЗВ-3А 130x240 мм - 2 шт.
5. Плита печная ПС2-3А с конфорками сборная 710х410 мм или
Плита двухкомфорочная 4В 710х410 мм - ДОРОГО, но красиво?
6. Духовка чугунная ДП-ДТ-6А. Знаю, что по длине великовата. Способа два: пилить духовку или мудрить с кирпичом. Пока?
7. Колосник? Вопрос с размером. Читал, что большие колосники не в моде. Мастера рекомендуют не большой по площади. Какой пока не решил. Дойду до этого места кладки - необходимость ускорит принятие решения.
Ваше мнение, все ли так как нужно? |
Откуда у Вас сложилось мнение об этой компоновке печи.
Изложите ход Ваших рассуждений.
Назначение домика объясните: дача или ПМЖ?
Если ПМЖ, то "подумайте" про каминопечь с достаточно большой дверкой. ДТГ8 очень разумно будет (не огромная, но уже хорошо видно огонь).
|
_________________ С Уважением! Юрий. Тула.
ВК https://vk.com/tuomob
За проектами в личку обращайтесь.
|
|
  |
 |
Olyhon
Зарегистрирован: Ср 26 Июль 2023, 15:08
Сообщения: 19
Регион: Санкт-Петербург
|
Добавлено:
Пт 28 Июль 2023, 20:10
|
  |
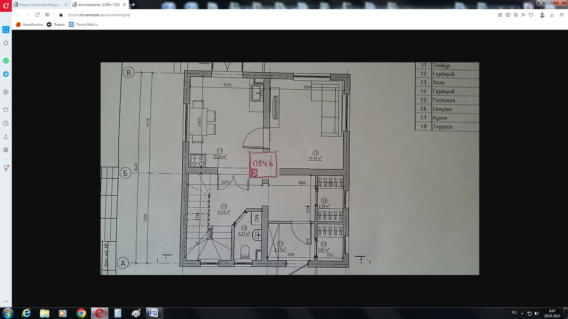
1. Зачем нужна чугунная плита? Печь ведь для отопления строится, а не для готовки пищи. Чугунная плита "портит" процесс сжигания дров. Высокая шамотная топка правильней будет.
Сейчас живу в деревянном доме с печкой. нравится готовить и печь хлеб и булочки. Поэтому сознательно жертвую КПД.
2. Не нужна. Гидроизоляция, поверх 2 сплошных ряда.
Кладите полный план домика с печкой на плане и местом трубы на печке.
Посмотрим-подумаем вместе.
|
| Описание: |
|
| Размер файла: |
118.57 КБ |
| Просмотров: |
104 раз(а) |

|
|
|
  |
 |
Olyhon
Зарегистрирован: Ср 26 Июль 2023, 15:08
Сообщения: 19
Регион: Санкт-Петербург
|
Добавлено:
Пт 28 Июль 2023, 20:36
|
  |
| tuomob писал(а): |
| Olyhon писал(а): |
Выбрал такой состав. Где-то под 50 т.р.
1. Дверка каминная 261 250x210 мм
2. Дверка поддувальная 236 140x275 мм
3. Дверка прочистная 235 130x130 мм - 8 шт.
4. Задвижка ЗВ-3А 130x240 мм - 2 шт.
5. Плита печная ПС2-3А с конфорками сборная 710х410 мм или
Плита двухкомфорочная 4В 710х410 мм - ДОРОГО, но красиво?
6. Духовка чугунная ДП-ДТ-6А. Знаю, что по длине великовата. Способа два: пилить духовку или мудрить с кирпичом. Пока?
7. Колосник? Вопрос с размером. Читал, что большие колосники не в моде. Мастера рекомендуют не большой по площади. Какой пока не решил. Дойду до этого места кладки - необходимость ускорит принятие решения.
Ваше мнение, все ли так как нужно? |
Откуда у Вас сложилось мнение об этой компоновке печи.
Изложите ход Ваших рассуждений.
Назначение домика объясните: дача или ПМЖ?
Если ПМЖ, то "подумайте" про каминопечь с достаточно большой дверкой. ДТГ8 очень разумно будет (не огромная, но уже хорошо видно огонь). |
Скорее, ПМЖ. Много времени провожу на воздухе.
Поскольку не пользовался, мнения об именно этой печи не сложилось. Но плита и духовка нужны. И хочется чтобы тепло было. Наверное, можно было чуть меньше печь, исходя из площади и теплоотдачи, но не нашел духовки меньшей глубины. Да и кирпичный дом протопить труднее, чем деревянный.
Дверка большая и со стеклом приятнее, но из практики решил минималистично подойти.
На втором этаже думаю сделать маленькую печь, возможно каминопечь. Пока думаю. И хочу оставить каналы для переноса тепла на второй этаж, если будет лишнее
|
|
|
|
  |
 |
tuomob

Зарегистрирован: Пн 26 Сентябрь 2011, 16:45
Сообщения: 2362
Регион: Тула
|
Добавлено:
Пт 28 Июль 2023, 22:37
|
  |
| Olyhon писал(а): |
| tuomob писал(а): |
| Olyhon писал(а): |
Выбрал такой состав. Где-то под 50 т.р.
1. Дверка каминная 261 250x210 мм
2. Дверка поддувальная 236 140x275 мм
3. Дверка прочистная 235 130x130 мм - 8 шт.
4. Задвижка ЗВ-3А 130x240 мм - 2 шт.
5. Плита печная ПС2-3А с конфорками сборная 710х410 мм или
Плита двухкомфорочная 4В 710х410 мм - ДОРОГО, но красиво?
6. Духовка чугунная ДП-ДТ-6А. Знаю, что по длине великовата. Способа два: пилить духовку или мудрить с кирпичом. Пока?
7. Колосник? Вопрос с размером. Читал, что большие колосники не в моде. Мастера рекомендуют не большой по площади. Какой пока не решил. Дойду до этого места кладки - необходимость ускорит принятие решения.
Ваше мнение, все ли так как нужно? |
Откуда у Вас сложилось мнение об этой компоновке печи.
Изложите ход Ваших рассуждений.
Назначение домика объясните: дача или ПМЖ?
Если ПМЖ, то "подумайте" про каминопечь с достаточно большой дверкой. ДТГ8 очень разумно будет (не огромная, но уже хорошо видно огонь). |
Скорее, ПМЖ. Много времени провожу на воздухе.
Поскольку не пользовался, мнения об именно этой печи не сложилось. Но плита и духовка нужны. И хочется чтобы тепло было. Наверное, можно было чуть меньше печь, исходя из площади и теплоотдачи, но не нашел духовки меньшей глубины. Да и кирпичный дом протопить труднее, чем деревянный.
Дверка большая и со стеклом приятнее, но из практики решил минималистично подойти.
На втором этаже думаю сделать маленькую печь, возможно каминопечь. Пока думаю. И хочу оставить каналы для переноса тепла на второй этаж, если будет лишнее  |
Вопросов больше нет. Переубеждать не буду. Делайте, что считаете нужным. Ведь Вам с нею жить.
|
_________________ С Уважением! Юрий. Тула.
ВК https://vk.com/tuomob
За проектами в личку обращайтесь.
|
|
  |
 |
Андрей_Алексеевич

Зарегистрирован: Пн 13 Декабрь 2010, 19:17
Сообщения: 5970
Регион: малая родина Павлова, Скобелева, Циолковского, Уткиных и др.
|
Добавлено:
Пт 28 Июль 2023, 23:45
|
  |
| Olyhon писал(а): |
1. Зачем нужна чугунная плита? Печь ведь для отопления строится, а не для готовки пищи. Чугунная плита "портит" процесс сжигания дров. Высокая шамотная топка правильней будет.
Сейчас живу в деревянном доме с печкой. нравится готовить и печь хлеб и булочки. Поэтому сознательно жертвую КПД.
2. Не нужна. Гидроизоляция, поверх 2 сплошных ряда.
Кладите полный план домика с печкой на плане и местом трубы на печке.
Посмотрим-подумаем вместе. |
Раз ПМЖ 2-х этажный, то и выкладывайте оба Плана...
Что за мода - секретничать...
|
_________________ Печник - милостью и промыслом Божиим.
Печное отопление частного дома и т.п., авторское сопровождение проектов, наставничество в т.ч. дистанционное, партнёрство в кладке печей.
89106130763 МТС
andrejka61@mail.ru
andrej.kuzmischev@yandex.ru
|
|
   |
 |
Olyhon
Зарегистрирован: Ср 26 Июль 2023, 15:08
Сообщения: 19
Регион: Санкт-Петербург
|
Добавлено:
Пт 28 Июль 2023, 23:56
|
  |
Да и прятать то нечего. Второй практически как первый, только вместо дверей окна. Конфигурация такая же. Печку на 2 этаже хочу поменьше. Пока не определился.
|
|
|
|
  |
 |
Андрей_Алексеевич

Зарегистрирован: Пн 13 Декабрь 2010, 19:17
Сообщения: 5970
Регион: малая родина Павлова, Скобелева, Циолковского, Уткиных и др.
|
Добавлено:
Сб 29 Июль 2023, 08:59
|
  |
| Olyhon писал(а): |
| Да и прятать то нечего. Второй практически как первый, только вместо дверей окна. Конфигурация такая же. Печку на 2 этаже хочу поменьше. Пока не определился. |
Для 100 квадратов Вам на каждом этаже понадобится снимать с печки не менее 5-ти кВт., по зиме...
|
_________________ Печник - милостью и промыслом Божиим.
Печное отопление частного дома и т.п., авторское сопровождение проектов, наставничество в т.ч. дистанционное, партнёрство в кладке печей.
89106130763 МТС
andrejka61@mail.ru
andrej.kuzmischev@yandex.ru
| Описание: |
|
| Размер файла: |
299.26 КБ |
| Просмотров: |
96 раз(а) |

|
|
|
   |
 |
Olyhon
Зарегистрирован: Ср 26 Июль 2023, 15:08
Сообщения: 19
Регион: Санкт-Петербург
|
Добавлено:
Сб 29 Июль 2023, 10:01
|
  |
Да, все так. Печь это один из источников тепла. Будет и водяное отопление.
|
|
|
|
  |
 |
Андрей_Алексеевич

Зарегистрирован: Пн 13 Декабрь 2010, 19:17
Сообщения: 5970
Регион: малая родина Павлова, Скобелева, Циолковского, Уткиных и др.
|
Добавлено:
Сб 29 Июль 2023, 10:33
|
  |
|
   |
 |
Olyhon
Зарегистрирован: Ср 26 Июль 2023, 15:08
Сообщения: 19
Регион: Санкт-Петербург
|
Добавлено:
Сб 29 Июль 2023, 11:23
|
  |
Не понятно, по ссылке выше, на что нужно смотреть?
|
|
|
|
  |
 |
Андрей_Алексеевич

Зарегистрирован: Пн 13 Декабрь 2010, 19:17
Сообщения: 5970
Регион: малая родина Павлова, Скобелева, Циолковского, Уткиных и др.
|
Добавлено:
Сб 29 Июль 2023, 11:42
|
  |
|
   |
 |
Olyhon
Зарегистрирован: Ср 26 Июль 2023, 15:08
Сообщения: 19
Регион: Санкт-Петербург
|
Добавлено:
Сб 29 Июль 2023, 14:23
|
  |
Фундамент пока только ребристая плита вниз. Под печку будет два ряда кирпича.
Предлагаемая печь замысловатая. И наверное, по размеру побольше ОВИК 3. Думаю, как первая - сложная избыточно.
|
|
|
|
  |
 |
Андрей_Алексеевич

Зарегистрирован: Пн 13 Декабрь 2010, 19:17
Сообщения: 5970
Регион: малая родина Павлова, Скобелева, Циолковского, Уткиных и др.
|
Добавлено:
Сб 29 Июль 2023, 14:43
|
  |
|
   |
 |
Olyhon
Зарегистрирован: Ср 26 Июль 2023, 15:08
Сообщения: 19
Регион: Санкт-Петербург
|
Добавлено:
Сб 29 Июль 2023, 18:32
|
  |
Это произведения искусства. Размер впечатляет. Творческий максимализм. Вполне понимаю профессионалов своего дела. Такое приятно делать и пользоваться удобно.
На моем начальном уровне такое даже просто понять не просто. А уж создать, так и вряд ли возможно.
|
|
|
|
  |
 |
alarin
Зарегистрирован: Ср 21 Февраль 2018, 08:32
Сообщения: 2965
Регион: Казахстан, Алма-Ата. Нижний Новгород РФ
|
Добавлено:
Сб 29 Июль 2023, 20:17
|
  |
| Olyhon писал(а): |
Это произведения искусства. Размер впечатляет. Творческий максимализм. Вполне понимаю профессионалов своего дела. Такое приятно делать и пользоваться удобно.
На моем начальном уровне такое даже просто понять не просто. А уж создать, так и вряд ли возможно. |
Это именно произведение искусства. Сделать и повесить на стенку. Другой пользы не будет, особенно если пытаться ее получить. Да, и профессионализм в стиле Микеланджело. Того же самого века. Тогда физику не знали, а химию тем паче, но произведения писали замечательные.
ПС Обращу внимание, что все те произведения искусства лепились в другом климате. Где отопление собственно не нужно...
|
|
|
|
   |
 |
Андрей_Алексеевич

Зарегистрирован: Пн 13 Декабрь 2010, 19:17
Сообщения: 5970
Регион: малая родина Павлова, Скобелева, Циолковского, Уткиных и др.
|
Добавлено:
Сб 29 Июль 2023, 20:50
|
  |
| Olyhon писал(а): |
Это произведения искусства. Размер впечатляет. Творческий максимализм. Вполне понимаю профессионалов своего дела. Такое приятно делать и пользоваться удобно.
На моем начальном уровне такое даже просто понять не просто. А уж создать, так и вряд ли возможно. |
Особенности взаимодействия с "проектной структурой" можете полюбопытствовать у "самоделкина" на https://forum.stovemaster.ru/viewtopic.php?t=8245&highlight=%FD%EA%EE%ED%EE%EC%EA%E0
|
_________________ Печник - милостью и промыслом Божиим.
Печное отопление частного дома и т.п., авторское сопровождение проектов, наставничество в т.ч. дистанционное, партнёрство в кладке печей.
89106130763 МТС
andrejka61@mail.ru
andrej.kuzmischev@yandex.ru
|
|
   |
 |
Olyhon
Зарегистрирован: Ср 26 Июль 2023, 15:08
Сообщения: 19
Регион: Санкт-Петербург
|
Добавлено:
Пт 4 Август 2023, 12:57
|
  |
Первые рядочки.
Первые два - до уровня чистового пола (утеплитель с трубочками воды и прочих коммуникаций и стяжка).
Кладочный раствор СПО. Встречаются камушки, но в общем нормально.
|
| Описание: |
|
| Размер файла: |
194.71 КБ |
| Просмотров: |
84 раз(а) |

|
|
|
  |
 |
|
|
|
Следующая тема
Предыдущая тема
Вы не можете начинать темы Вы не можете отвечать на сообщения Вы не можете редактировать свои сообщения Вы не можете удалять свои сообщения Вы не можете голосовать в опросах Вы не можете добавлять приложения в этом форуме Вы можете скачивать файлы в этом форуме
|
|