 |
|
 |
| Автор |
Сообщение
|
шурик
Зарегистрирован: Пн 21 Ноябрь 2016, 20:22
Сообщения: 2
Регион: Самарская область
|
Добавлено:
Пн 21 Ноябрь 2016, 20:43
|
  |
Доброго времени всем специалистам и начинающим!
От специалистов нужна помощь, которая пригодится и остальным.
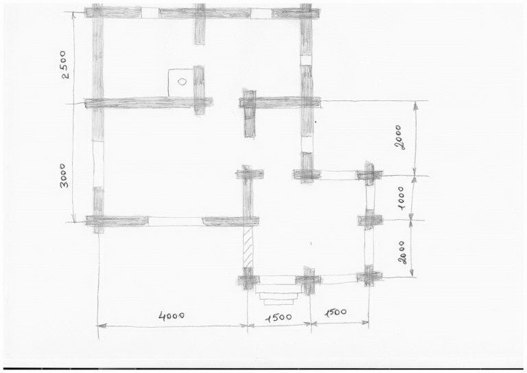
Есть проект бани, баня срублена из бревна с мансардой стоит на бетоне (фундамент по грунту). Есть печь сварена еще лет 15 назад из стали 6 мм. ёлочка. Размер печи: топка ширина 500 мм, глубина 500 мм., высота 1000 мм. и выносной топливный канал 400х400 если я правильно его назвал. Я не знаю сколько она весит, но мы втроем еле тащили. Есть мечта обложить это чудо кирпичом. Планирую дрова закидывать из КО.
Уважаемые печники можно ли отапливать мойку, парилку и КО, а заодно и небольшой 2 этаж? И не знаю пока как мойку греть.
Мысль следующая поставить трубу из нержи от печи на кровлю и печь полностью обложить в полкирпича вместе с трубой, а чтобы отапливать КО и 2 этаж хочу сделать дверцы конвенции, дабы горячий воздух между трубой и кирпичом зря не пропадал. Пользоваться планирую наездами. Спасибо заранее за помощь.
|
| Описание: |
|
| Размер файла: |
56.08 КБ |
| Просмотров: |
757 раз(а) |

|
|
|
  |
 |
андрей10
Зарегистрирован: Вс 14 Февраль 2010, 16:59
Сообщения: 21
Регион: егорьевск
|
Добавлено:
Чт 15 Декабрь 2016, 22:00
|
  |
Обклад печи выполняется методом саркофага, фланец вокруг топочного тонеля кладется как проходник через перегородку в КО.
Между парилкой и моечным п-нием кладется тепловой щит. Тепловой щит можно вытянуть на второй этаж с насадной трубой из кирпича.
Труба за пределы кровли так же из кирпича, санированного нержавейкой.
Печь из металла с тепловым щитом соединяется отводом -угловым дымоходом.
Нужно предусматривать вскрытие саркофага ( делать его по- проще) для ремонта печи, углы печи будет рвать по сварке периодически.
За счет теплового щита получаете давольно мощный агрегат для отопления немаленькой баньки.
|
|
|
|
  |
 |
Шура

Зарегистрирован: Чт 8 Январь 2009, 20:09
Сообщения: 4171
Регион: Москва - Тамбов
|
Добавлено:
Пт 16 Декабрь 2016, 16:21
|
  |
| шурик писал(а): |
| ...Спасибо заранее за помощь. |
Дык, а в чём помощь то?
|
|
|
|
   |
 |
Андрей ..

Зарегистрирован: Ср 16 Ноябрь 2011, 07:49
Сообщения: 1175
Регион: Нижегородская обл.
|
Добавлено:
Пт 16 Декабрь 2016, 19:19
|
  |
Дык...в обкладке...Главное- не сс...ть и питание,(армейский принцип). В чём проблема ? Обложить металлюгу ? Как два пальца ... Трубу в кровле я бы сендвичем прошёл....технологичнее и проще. Сталь в сендвиче ? Аустенитная само- собой, наверно достаточно и 304.
|
|
|
|
    |
 |
|
|
|
Следующая тема
Предыдущая тема
Вы не можете начинать темы Вы не можете отвечать на сообщения Вы не можете редактировать свои сообщения Вы не можете удалять свои сообщения Вы не можете голосовать в опросах Вы не можете добавлять приложения в этом форуме Вы можете скачивать файлы в этом форуме
|
|