 |
|
 |
| Автор |
Сообщение
|
Алексей Валерьевич
Зарегистрирован: Чт 11 Январь 2007, 10:41
Сообщения: 10
Регион: Уфа
|
Добавлено:
Чт 11 Январь 2007, 11:28
|
  |
Пожалуйста, помогите советом как правильно организавать дровяное отопление в доме. Кирпичная печь или кирпичный котел с гравитационной системой как лучше разместить и т.д. Может быть на форуме есть мастера из нашего региона или Вы можете порекомендовать к кому обратьться по вопросу строительства печи (котла?). Мы живем в Уфе.
О доме:
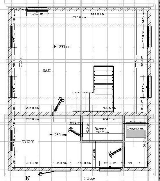
1. Размер 8*9м. Материал стен - керамзитобетонные блоки (толщина стены 20 см), окна - обычное (деревянные рамы) двойное остекление, площадь остекления - примерно 20% от поверхности стен, перекрытия деревянные. Первый этаж - 70 м.кв.: веранда 25 м кв (кухня +ванная + котельная) и жилая часть 45 м.кв (планируется разделить на гостинную и небольшую спальню). Второй этаж-чердачное помещение над жилой частью (планируется утепление 150 мм минвата) - 30м кв (две комнаты). Высота потолков: веранда - 2,5м, жилая часть - 2,9м, чердак - 2 м. Подполье примерно 1,3 м. Снаружи планируется обшивка сайдингом, внутри вагонкой.
2. Проживание: всё лето, зима выходные.
3. Пожелание к отоплению: относительно быстрый прогрев при приездах на выходные, комфортная ночевка без подкладки дров.
Изначально дом планировался под отопление дровяным кирпичным котлом, есть небольшой фундамент под котел (1,2*1м) на веранде.
Заранее благодарен всем советам и предложениям.
|
| Описание: |
|
| Размер файла: |
110.32 КБ |
| Просмотров: |
1675 раз(а) |

|
|
|
  |
 |
Андрей Ищенко
Проектировщик
Зарегистрирован: Вт 7 Февраль 2006, 10:08
Сообщения: 2946
Регион: Пенза
|
Добавлено:
Пт 12 Январь 2007, 07:48
|
  |
| Цитата: |
2. Проживание: всё лето, зима выходные.
3. Пожелание к отоплению: относительно быстрый прогрев при приездах на выходные, комфортная ночевка без подкладки дров. |
Интересное пожелание, как вы представляете себе прогреть все помещения зимой за короткие выходные?
Вам просто необходимо вмонтировать в котел эл. тэн, для поддержания постоянной минимальной плюсовой температуры.
|
_________________ +7 962 974-10-94 Viber WhatsApp
+7 962 399-59-39
|
|
     |
 |
Валерий Петров

Зарегистрирован: Пт 9 Декабрь 2005, 14:33
Сообщения: 1085
Регион: Россия
|
Добавлено:
Пт 12 Январь 2007, 10:40
|
  |
А дом уже построен? Если да, то тогда один вариант, а если плясать "от печки" - другой.
Если идеально на мойвзгляд - то ванную комнату перенести в "топочную", а саму ее убрать совсем, лестницу перенести в другое место, и на этом месте поставить в проем стены ОВИКиК. Плита будет на веранде, в комнату будет открываться камином, можно даже сделать камино-печь или или поставить каминную вставку, работающую по калориферному принципу. Такое размещение позволит при необходимости организаци горячего водоснабжения разместить над печью накопительную емкость для горячей воды с нагревом от печи. На стене в ванную со стороны кухни можно разместить мойку, скомпоновав в одном месте водно- канализационные коммуникации кухни, ванны и туалета. Камин позволит начать быстрый прогрев дома лучистым теплом, плита позволит готовить, быстро нагревать кухню. А массивная теплоаккумулирующая печь (или щиток как можно назвать) позволят спокойно спать всю ночь. На втором этаже над этой печью можно поставить печь для обогрева второго этажа как с самостоятельной топкой, так и с нагревом от топки первого этажа. Кроме того такое размещение печи позволит иметь очень теплую атмосферу в ванной комнате. И еще я рекомендовал-бы Вам вынести из теплового контура лестницу - это большая утечка теплого воздуха как правило, если не принимать дополнительных мер.
|
| Описание: |
|
| Размер файла: |
45.37 КБ |
| Просмотров: |
1317 раз(а) |

|
|
|
     |
 |
Алексей Валерьевич
Зарегистрирован: Чт 11 Январь 2007, 10:41
Сообщения: 10
Регион: Уфа
|
Добавлено:
Пт 12 Январь 2007, 15:48
|
  |
Валерию Петрову.
Дом уже построен и вносить такие изменения к сожалению будет проблематично. Стена, в которую Вы предлагаете встроить печь несущая. Конечно возможен вариант уселения проема в стене, но тогда появляется проблема с фундаментом для печи. Избежать связки фундамента печи и дома не удасться. Одним словом лучше построить заново, чем переделывать.
По поводу второго этажа: установить в указанном месте печь не удасться по причине особенностей конструкции крыши. Для того, чтобы было более понятно выкладываю несколько фотографий дома.
Относительно лестницы - Вы абсолютно правы, но выносить из отапливаемого контура ее просто некуда.
Предложенный Вами план бесспорно хорош. Надо было танцевать от печки, но дом мне достался таким какой он есть.
Андрею Ищенко
Относительно электротенов Вы абсолютно правы. Есть несколько "но".
Во-первых, у меня существенные ограничения по мощности и в зимний период я могу забирать максимум 3-4 квт/час. Будет ли этого достаточно? Во-вторых, что эффективнее вмонтировать тэн в печь или поставить готовый электрокотел параллельно в систему отопления?
Относительно пожеланий. Я действительно не представляю сколько потребуется времени для прогрева такого дома зимой с использованием дровяного кирпичного котла и системы отопления. У меня нет такого опыта, поэтому я и обратился к Вам. Полагаю, что установка циркуляционного насоса и запас по мощьности котла ускорит прогрев, но не уверен, что этого будет достаточно.
С уважением, Алексей Валерьевич.
|
| Описание: |
|
| Размер файла: |
135.63 КБ |
| Просмотров: |
1321 раз(а) |

|
|
|
  |
 |
Алексей Валерьевич
Зарегистрирован: Чт 11 Январь 2007, 10:41
Сообщения: 10
Регион: Уфа
|
Добавлено:
Пт 12 Январь 2007, 20:39
|
  |
Еще фото. Вид изнутри и со стороны участка (с правой стороны в соответствии с планом).
|
| Описание: |
|
| Размер файла: |
111.83 КБ |
| Просмотров: |
1309 раз(а) |

|
| Описание: |
|
| Размер файла: |
113.54 КБ |
| Просмотров: |
1227 раз(а) |

|
|
|
  |
 |
Евгений Колчин

Зарегистрирован: Чт 3 Октябрь 2002, 06:26
Сообщения: 10146
Регион: Москва
|
Добавлено:
Пт 12 Январь 2007, 21:44
|
  |
а чем вам не нравиться ваш же и вариант:
установка в предусмотренном месте котла КИК17 ( http://www.stove.ru/index.php?lng=0&rs=119 ) заднюю стенку еще дополнительно через разделку запустить в зал.
Выход котла под лестницей в зале, обратка с кухни.
Прогрев практически через полчаса водяной, а ночью дополнительно стенка печи будет давать тепло.
Плюс все стены печи-котла становятся обслуживаемыми.
В дальнейшем сам котел можно и утеплить, а можно и оставить продухи из котельной в зал для конвекции.
|
_________________ ************************************
|
|
      |
 |
Андрей Ищенко
Проектировщик
Зарегистрирован: Вт 7 Февраль 2006, 10:08
Сообщения: 2946
Регион: Пенза
|
Добавлено:
Сб 13 Январь 2007, 07:37
|
  |
| Цитата: |
| Во-первых, у меня существенные ограничения по мощности и в зимний период я могу забирать максимум 3-4 квт/час. Будет ли этого достаточно? Во-вторых, что эффективнее вмонтировать тэн в печь или поставить готовый электрокотел параллельно в систему отопления? |
Если котел будет колпаковый (КИК), то такой мощности для поддержания минимальной температуры будет достаточно.
|
_________________ +7 962 974-10-94 Viber WhatsApp
+7 962 399-59-39
|
|
     |
 |
Владимир Жирнов
Зарегистрирован: Пт 12 Май 2006, 23:29
Сообщения: 713
|
Добавлено:
Сб 13 Январь 2007, 15:37
|
  |
А мне, Валерин вариант лучше нравится.
Эти трубы везде, вода, да электричество отрубают постоянно...
|
|
|
|
   |
 |
Францыч

Зарегистрирован: Пн 9 Январь 2006, 08:27
Сообщения: 558
Регион: Новосибирск
|
Добавлено:
Сб 13 Январь 2007, 16:32
|
  |
Поддержу Евгения Колчина , прекрасно подойдет котел КИК 17 с доп. эл.ТЭНами.
|
|
|
|
    |
 |
Алексей Валерьевич
Зарегистрирован: Чт 11 Январь 2007, 10:41
Сообщения: 10
Регион: Уфа
|
Добавлено:
Сб 13 Январь 2007, 20:21
|
  |
Благодарю Вас за отзывы!
Мне в принципе нравится существующий вариант с котлом, но нет уверенности, что это вариант оптимальный, поэтому и обратился за советом к профессионалам. Относительно КИК17 есть ряд вопросов.
1. Насколько я понял Вы предлагаете сделать проем в стене и установить котел топкой в зал (предложение Евгения Колчина). Как сделать фундамент под котел не связывая его с фундаментом дома так, чтобы котел одной стороной выходил в зал? Тоже самое и в случае с ОВИКиК (вариант Валерия Петрова). По-моему это невозможно.
2. Котел продолжает греть теплоноситель до тех пор пока весь массив котла не отдаст аккумулированное тепло, или только во время топки? Если только во время топки то он ничем не отличается от обычного железного дровяного котла и переночевать без подкладки дров с ним не возможно. Если котел работает как теплоаккумулятор, то какой смысл выводить одну из его стенок в другую комнату, если в другую комнату и так пойдет система с теплоносителем и радиаторами и она будет теплой пока не остынет котел?
3. Не вполне понятно, что означает цифра 17. Правильно ли я понял, что при двухразовой топке в сутки котел дает 17 квт в час? Кроме того не понятно утверждение в описании к порядовке: "принято, что 1м кв. регистра вырабатывает 10 кВТ теплоты", площадь регистра в КИК 17 - 1,04*0,98=1,0192 м кв., значит он должен вырабатывать примерно 10 квт. Откуда еще 7? Правильное понимание этих цифр крайне важно для конструирования системы отопления, чтобы не перегреть теплоноситель.
4. 17 квт/час (если я правильно понял) это избыточныя мощьность для моего дома, (суммарная отапливаемая площадь 100 м кв.) и такая мощьность понадобится для быстрого разогрева и в сильные морозы. В остальной период понадобится 40-60% мощьности. Как можно регулировать мощность котла?
5. Какая высота и сечение трубы необходимы для этого котла? В моем случае высота от фундамента котла до крыши примерно 2,8 м, высота котла примерно 1,6 м, следовательно под крышей умещается только 1,2 метра трубы, все остальное нужно поднимать над крышей, насколько это осуществимо?
Отнсительно мощьности электротенов понятно. Какие именно тены используются и как правильно их подключать?
|
|
|
|
  |
 |
Францыч

Зарегистрирован: Пн 9 Январь 2006, 08:27
Сообщения: 558
Регион: Новосибирск
|
Добавлено:
Вс 14 Январь 2007, 00:03
|
  |
| Цитата: |
| 1. Насколько я понял Вы предлагаете сделать проем в стене и установить котел топкой в зал (предложение Евгения Колчина) |
Конечно нет. Установить нормально, топкой в котельню. Разделками и проемами обеспечить заднюю стенку - в зал. Остальные стенки - теплоизолировать.
| Цитата: |
| 2. Котел продолжает греть теплоноситель до тех пор пока весь массив котла не отдаст аккумулированное тепло, или только во время топки? |
Конечно - до тех пор пока...
3. Не перегреете.
4.Переодичностью топки и весом закладки дров.
5.Согласно "Правил по устройству труб..." и все будет нормально. Ду160 хватит.
В такую зиму как щас, топить будете один раз в приезд, при мощности ТЭНов в 1 кВт. Подключают электрики.
|
|
|
|
    |
 |
Алексей Валерьевич
Зарегистрирован: Чт 11 Январь 2007, 10:41
Сообщения: 10
Регион: Уфа
|
Добавлено:
Ср 17 Январь 2007, 14:05
|
  |
Спасибо за ответы. Буду разрабатывать этот вариант.
Нет ли у Вас более подробного описания КИК17? Возможно есть более качественные порядовки. Если есть, не могли бы Вы выслать их? Буду очень признателен!
|
|
|
|
  |
 |
Валерий Петров

Зарегистрирован: Пт 9 Декабрь 2005, 14:33
Сообщения: 1085
Регион: Россия
|
Добавлено:
Ср 17 Январь 2007, 16:25
|
  |
Насколькоя понимаю Евгений Колчин дал конкретную ссылку на подробные чертежи. Если данная ссылка не дает информации - то лучше самому ничего не делать, а обратится к услугам специалистов.
Я сам придерживаюсь принципа чем проще - тем надежнее, и использовать систему отопления в жидкостным теплоносителем в здании периодического пребывания я поостерегся бы. Возможно продумать над таким чудом, как котел - каллорифер с воздушными каналами? А для оттопления между посещениями использовать электроконвекторы,как наименеее зависимые от перебоев в электроснабжении. Приоритетным считаю безопасность. И если вероятность аврарии электроснабжения в мороз мизерна но случится - то от ее, вероятности мизерности никому легче не будет. В лучшем случае мы получим размороженную систему, а в худшем можем получить и пожар при восстановлении электропитания.
|
_________________ +7 911 090-08-96 (МТС СПб)
________________________________________
Чтобы получать правильные ответы, научись задавать правильные вопросы...
|
|
     |
 |
Францыч

Зарегистрирован: Пн 9 Январь 2006, 08:27
Сообщения: 558
Регион: Новосибирск
|
Добавлено:
Ср 17 Январь 2007, 21:52
|
  |
| Цитата: |
| Нет ли у Вас более подробного описания КИК17? Возможно есть более качественные порядовки. |
Попробую сделать описание, но чуть позже, работы много... Порядовки - качественней не бывает. А в остальном - Валера прав.
|
|
|
|
    |
 |
Алексей Валерьевич
Зарегистрирован: Чт 11 Январь 2007, 10:41
Сообщения: 10
Регион: Уфа
|
Добавлено:
Чт 18 Январь 2007, 08:58
|
  |
Валерию Петрову
| Цитата: |
| Насколькоя понимаю Евгений Колчин дал конкретную ссылку на подробные чертежи. Если данная ссылка не дает информации - то лучше самому ничего не делать, а обратится к услугам специалистов. |
Действительно я понимаю не все и с удовольствием обратился бы к услугам специалистов, но в нашем регионе нет печников, которые строят печи Кузнецова (я пока не нашел). Если не найду, то сделаю сам, руки и голова на месте.
| Цитата: |
| Я сам придерживаюсь принципа чем проще - тем надежнее |
С этим принципом согласен. Водяное отопление это лишние проблемы при временном проживании, кроме того это значительно увеличивает бюджет отопления, но другого варианта не вижу. Надеюсь, что использование антифриза спасет от промерзания системы.
| Цитата: |
| Возможно продумать над таким чудом, как котел - каллорифер с воздушными каналами |
Я думал и изучил этот вопрос. Для меня основным минусом является санитарно-гигиенический аспект. По всему дому будет гонять пыль, которая в калорифере будет пригорать. Хотя о вреде "пригоревшей пыли" я ничего толком не нашел. Может быть Вы знаете об этом больше? У меня двое детей и я не хочу рисковать их здоровьем. Дом за городом строится для того, чтобы они росли здоровыми.
Кроме того, разводка воздуховодами весьма затруднительна по горизонтали без использования вентиляторов, а это опять энергозависимость и усложнение системы. Если я ошибаюсь, поправте, потому что вариант воздушного отопления наиболее удобен и практичен. Кроме того относительно булерьянов, бренеранов, печей Бутакова много положительных отзывов.
| Цитата: |
| В лучшем случае мы получим размороженную систему, а в худшем можем получить и пожар при восстановлении электропитания. |
Поэтому я и спрашивал несколькими сообщениями раньше как подключать электротены. Получил ответ: "подключают электрики". Нужна защита от перегрева с автоматическим отключением тенов. Все это есть в электрокотле. Поэтому я спрашивал что эффективнее тен в печке или последовательно подключенный к системе отопления электрокотел, в котором есть регулеровка температуры теплоносителя и аварийное отключение?
Францычу
| Цитата: |
| Попробую сделать описание, но чуть позже, работы много... Порядовки - качественней не бывает. А в остальном - Валера прав. |
Буду очень признателен относительно описания. Буду ждать.
Насчет порядовки. При распечатке не все достаточно хорошо видно, мелко.
|
|
|
|
  |
 |
Валерий Петров

Зарегистрирован: Пт 9 Декабрь 2005, 14:33
Сообщения: 1085
Регион: Россия
|
Добавлено:
Чт 18 Январь 2007, 16:01
|
  |
Уважаемый Алексей Валерьевич, если я правильно прочитал в Ваших данных, то Вы указали местом проживания г. Уфу. Насколько я знаю географию, то это совсем рядом в г. Свердловском, ой, Екатеринбургом. А там живет Игорь Викторович, который может порекомендовать своего печника. Так что я рекомендую Вам обратится к нему.
Далее по сути письма.
Использование антифриза на мой взгляд сопряжено с некоторыми отрицательными моментами:
- он сам по себе дороже воды.
- требует стойкой и герметичной системы циркуляции.
- требует емкости для слива в случае ремонта-профилактики.
- в случае протечки загрязняет собой и помещение и вещи в гораздо большей степени, чем вода. Не факт, что он потом отстирается или что-то не расползется. Степень воздействия антифриза на организм тоже под вопросом. И хотя продавцы дорогих жидкостей могут утверждать в 100% безопасности - я склонен допускать вариант обмана или недомолвок с их стороны по банальной причине - им нужно продать. Или даже так - они могут быть сами в неведении того, что им поставили. Соответствие содержимого заявленному у нас в гораздо более важных (пищевых) продуктах не гарантировано, а уж технические жидкости... И в любом случае это смесь химреактивов, состав которых должен быть подержан. Система с применением антифриза как правило требует наличия циркуляционного насоса со всеми выткающими последствиями. Хотя такой вариант и возможен, но он добавляет лишние трудности при эксплуатации дома и снижает степень надежности системы отопления. Поподробнее ознакомится со свойствами теплоносителя можно например ТУТ Лично у меня сложилось стойкое мнение, что неудобств возникает несравнимо больше, чем удобств, и оправданно это может быть лиш в немногих случая, когда других вариантов просто нет.
Вождушное отопление при использовании нагревателей с температурой поверхности свыше 100 градусов действительно вызывает пригорание пыли, окисление мельчайших частитек того, что есть в воздухе, а это может быть и образование диоксинов и других канцерогенов. Но применение кирпичной печи практически исключает такой поворот дела. У вас не Зимний дворец, и большого количества воздушных каналов большой протяженности не потребуется. Относительно металических печей длительного горения я могу сказать что это негигеенично по причине высокой температуры поверхности контактирующей с воздухом внутри воздуховодов, и то что количество производимого дегтя вас удивит. А это кроме проблем утилизации еще и спецефический запах.
Электротены подключать действительно лучше через электриков и систему автоматики по безопасности и по температуре. Возможна работа по таймеру и использование ночного тарифа. обвязка воздужных ТЭН или котла - это отделный вопрос. При наличии жидкостной системы отопления вполне резонно возпользоваться электро-котлом, но вот сама такая система под вопросом у нас, не так-ли?
Но размещение воздушно-калориферной системы в месте налиция фундамента без дополнительных воздуховодов и вентиляторов всетаки может привести к появлению застойных дон холодного воздуха в комнате и градиента температуры в плане.
По поводу описания котла - а что вы хотите уточнить? То что видно мелко - не проблема - компьютер позволяет масштабировать изображения, а описание системы дано в статьях.
Мое мнение состоит в том, что стоит затратить некоторые усилия и сделать печь. Предлагаю второй вариант: Лестницу убираем в топочную, туда ule фундамент, она выдет из теплового контура. В комнате делаем в полу отверстие около внутренней несущей стены и в нем ставим фундамент под печь, и на него соответственно печь в вариантах размещения "А" и "В". На кухне при установки печи вариант "А" можно поставить плиту (варочную печь), в принципе при выборе кострукции небольшого веса ее можно ставить и на пол, но можно повторить подвиг сооружения фундамента. На втором этаже после окончания несущей стены дымоходы могут быть объединены в один блок и паралельно выведены на крышу одним проходом двухканальной трубы. В варианте "В" при наличии кухонной плиты и сохранении ванной комнаты трубы будет две, проходки две и все остальное в двойном размере. Если Ванную комнату, целесообразность которой в таком доме под вопросом, заменить на плиту - то повторится вариант "А" в середине дома, что предпочтительнее с точки зрения и размещения печей в отапливоемом контуре и с точки зрения размещения дымовой трубы на крыше.
Итак я рекомендую организовать камино-печь в комнате и варочную печь в кухне, под лестницей можно разместить теплый туалет, что детям зимой в доме гораздо важнее ванной комнаты. На мой взгляд это наиболее рациональное и сбалансированное решение для периодического проживания зимой и постоянного летом.
Дополнения.
Причины, по которым я считаю сомнительной целесообразность ванной комнаты в таком доме таковы:
Ванна требует большого количества холодной и горячей воды, а значит нужен большой колоцец или скважина с большим расходом воды, мощный насос, большой водонагреватель. Большое количество воды требует емкой канализационной системы, способной принять одномоментно большой объем сточных вод. Летом, при наличии рядом водоема, ванна вообще сомнительна, а зимой при периодическом проживании и подавно, не считая того, что канализация и система водоснабжения могут замерзнуть за неделю без использования, вы ведь, как я думаю, не в ванне полежать туда поедете из города? Как правило на своем участке строят баню, тут все проще и понятней и с точки зрения организации ее и с точки зрения целесообразности и пользы. В баню - же, как правило у нас, выносят и стиральную машину. В доме можно, наверное, обойтись душем летом, а зимой, на выходных, вообще без него. Ну а летом душ спокойно может жить на улице или в бане и использовать солнечную энергию. Таким образом мы упростим коммуникации, уберем из дома источник сырости и освободим полезные площади. Отдельно-стоящий банно-прачено-душевой комплекс гораздо эффективнее на мой взгляд.
P.S. Обратил внимание на высоту веранды. При размещении в ней лестницы надо достраивать веранду. Но в случае выбора варианта "В" размещения печей, лестницу можно сделать на месте печи "А", отгородив ее от комнаты перегородкой для исключения из теплового контура, а в "кладовке" просто сделать туалет. Ну или всетаки изменить конфигурацию веранды и совместить лестницу с туалетом пол ней. На самом деле затрат не так уж мого, а удобства пользования домом будет больше.
|
_________________ +7 911 090-08-96 (МТС СПб)
________________________________________
Чтобы получать правильные ответы, научись задавать правильные вопросы...
| Описание: |
|
| Размер файла: |
163.67 КБ |
| Просмотров: |
1239 раз(а) |

|
|
|
     |
 |
Алексей Валерьевич
Зарегистрирован: Чт 11 Январь 2007, 10:41
Сообщения: 10
Регион: Уфа
|
Добавлено:
Пт 19 Январь 2007, 11:36
|
  |
Игорю Викторовичу писал. Он ответил, что сейчас очень занят и физически не может заниматься проектированием и консультированием, предложил восполизоваться готовыми решениями, по его мнению наиболее подходящий вариант КИК 17. Сообщил, что в нашем регионе (г.Уфа) его представителей нет. От нас до Екатеринбурга примерно 600 км (авто). Относительно приезда специалиста не договаривался, хотя если и приглашать иногороднего печника, то особого значения не имеет Екатеринбург, Москва или другой город (по времени в дороге) в этом радиусе если ехать на поезде это примерно сутки пути. Решил посоветываться с интернет обществом и определиться с проектом. Кроме того, я сразу обратился с просьбой рекомендовать печника. И его приезд из другого города я не исключаю, вопрос в стоимости этого удовольствия, желания и возможности печника, что в я готов обсудить с конкретным мастером.
Относительно антифриза с вами согласен, но это решаемые проблемы. По качеству антифриза полностью разделяю опасения. Большинство отечественных химреагентом это чистой воды "бадяга" (знаю это не по наслышке). Из того, что сейчас предлагают наиболее оптимальным считаю антифризы на основе пропиленгликоля. Это достаточно безопасное вещество с точки зрения гигиены. Однако неизвестно какие антивспенивающие и антикоррозионные добавки туда вводят они могут быть "ложкой дегтя". Относительно разъедания и утечек, этого можно избежать если монтировать систему специально под антифриз и выбирать спец прокладки и радиаторы. Одним словом проблема решаемая.
Относительно предложенных Вами вариантов. Боюсь, что эти проекты осуществить не возможно. Во-первых, нельзя перенести лестницу на веранду. Специально выложил вместе с планом фото дома, где видно, что веранда имеет отдельную крышу и над ней (верандой) НЕТ второго этажа. Лестница уже установлена в том месте, где указана на плане. Впринципе лесницу можно перенести, но тольк в пределах зала. Планирыется выход на второй этаж обшить, утеплить и оборудовать дверью. Поэтому значительной утечки тепла на второй этаж (при протопке только первого) быть не должно. Замечу, что система с КИК 17 позволит отапливать и второй этаж достаточно установить два радиатора. Во-вторых, очень смущает расположение объединенной над несущей стеной трубы. Ее проход будет приходиться на стык крыши веранды и основной крыши. По-моему, это не лучшее расположение трубы. В третьих, мне не нужна варочноя печь и варить на ней я не буду (будет установлена газовая плита на балонном газе).
Относительно ванной комнаты. Я не планировал устанавливать ванну. Хотел объединить в одной небольшой комнате теплый туалет и душ. Душ очень полезная и удобная весчь особенно летом по приезде с работы или когда с детьми на речку идти некогда. Хотя речка и озеро рядом. Обойтись можно, но хочется и место в доме лучше запланировать.
| Цитата: |
| По поводу описания котла - а что вы хотите уточнить? То что видно мелко - не проблема - компьютер позволяет масштабировать изображения, а описание системы дано в статьях. |
Увеличить можно но качество изображения не улучшиться, не все обозначения понятны, статьи по описанию прочел. Пока не готов сформулировать вопросы, нужно разобрать каждыу ряд. Но вопросы будут и если вы не возражаете я их задам, но позже, нужно окончательно определиться водяное или воздушное отопление.
Хотелось бы услышать Ваше мнение относительно такого варианта. В этом случае быстрый прогрев - печь-камин + булерьян. Булерьян в хоз части, печь в жилой части (гигиена). Хороший проход трубы посеридине дома в верхней части крыши. Из минусов две отдельные топки, но это и в Вашем случае, два дымохода (у вас один но двойной). Какой вариант печи-камина Вы предлагаете?
|
| Описание: |
|
| Размер файла: |
10.96 КБ |
| Просмотров: |
1163 раз(а) |

|
|
|
  |
 |
Алексей Валерьевич
Зарегистрирован: Чт 11 Январь 2007, 10:41
Сообщения: 10
Регион: Уфа
|
Добавлено:
Пт 19 Январь 2007, 14:40
|
  |
В двух словах. Печь камин устанавливается у стены противоположной стене у которой проедложил расположить печи Валерий Петров вариант "В". Булерьян устанавливается вместо варочной печи вариант "В".
|
| Описание: |
|
| Размер файла: |
194.56 КБ |
| Просмотров: |
1334 раз(а) |

|
|
|
  |
 |
Валерий Петров

Зарегистрирован: Пт 9 Декабрь 2005, 14:33
Сообщения: 1085
Регион: Россия
|
Добавлено:
Пт 19 Январь 2007, 17:01
|
  |
Если Вас не отпугивают нюансы системы отопления на антифризе - то конечно КИК 17 - это один из наиболее оптимальных вариантов. Это решение позволит при необходимости использовать зимой дом и для постоянного проживания. Если при этом со временем Вы сделаете печь-камин в большой комнате - дополнительно сможете наслаждаться видом огня. Нличие варочной плиты конечно совсем не обязательно, просто возможно. Наличие бурельяна потребует и второй трубы над ним, и лично я к нему несколько "прохладно" отношусь по причине большого образования конденсата.И если уж иметь печь небольшую - то пусть на ней можно будет и сварить. (А шоб былО, как говорить один мой знакомый хохол.) Предложенное Вами размещение печи позволяет обойтись вообще без жидкостной системы отопления: печь, возможно с лежанкой в комнатах (а не комнате) и буржуйка на кухне. Хотя наличие полноценной печки не намного удорожит конструкцию, но даст простор по функциональным возможностям, от совмещения котла, бойлера, и варочной печи с обогревом пристройки.
|
_________________ +7 911 090-08-96 (МТС СПб)
________________________________________
Чтобы получать правильные ответы, научись задавать правильные вопросы...
|
|
     |
 |
Францыч

Зарегистрирован: Пн 9 Январь 2006, 08:27
Сообщения: 558
Регион: Новосибирск
|
Добавлено:
Пт 19 Январь 2007, 17:39
|
  |
Не считаю лучшим решением применение железяк, в любом виде. Вполне можно обойтись КИК 17 без всякого антифриза. По варианту Евгения Колчина. Ничего не надо ломать и перестраивать.
|
|
|
|
    |
 |
|
|
|
Следующая тема
Предыдущая тема
Вы не можете начинать темы Вы не можете отвечать на сообщения Вы не можете редактировать свои сообщения Вы не можете удалять свои сообщения Вы не можете голосовать в опросах Вы не можете добавлять приложения в этом форуме Вы можете скачивать файлы в этом форуме
|
|