Некоммерческое партнерство Альянс Печных Дел Мастера
 RSS  • FAQ  •  Поиск  •  Пользователи  •  Группы   •  Регистрация   •  Избранные темы   •  Профиль  •  Войти и проверить личные сообщения  •  Чат  •  Вход





 Помощь в выборе печи и её расположения Следующая тема
Предыдущая тема
Начать новую темуОтветить на тему
Автор Сообщение
Артемий



Зарегистрирован: Сб 17 Ноябрь 2007, 12:23
Сообщения: 4

СообщениеДобавлено: Сб 17 Ноябрь 2007, 13:07 Ответить с цитатойВернуться к началу

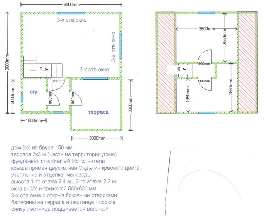
Уважаемые мастера.
Подскажите пожалуйста какую и главное где в таком доме лучше поставить печь.
Дело в том, что в конторе где заказывал дом сказали, что проект мы вам сделаем какой хотите, а вот с печью думайте сами. А поскольку опыта в строительстве нет, вот жена и навояла, вроде удобно, а печь куда поставить теперь не понятно.
Дом пока не построен я решил всё таки спросить знающих людей пока не поздно.
Дом из бруса 100х150, размером 6х6, пол и потолок первого и второго этажа двойные утеплены изовером 50мм. Рамы двойные.
Проживание в основном наездами и зимой и летом. Ещё хотелось бы, чтобы второй этаж хоть мало мальски отапливался, по возможности печкой первого этажа, если это возможно.
Заранее спасибо за ответ.



img017.jpg
 Описание:
 Размер файла:  133.54 КБ
 Просмотров:  1152 раз(а)

img017.jpg


Посмотреть профильОтправить личное сообщение
Владимир Жирнов



Зарегистрирован: Пт 12 Май 2006, 23:29
Сообщения: 713

СообщениеДобавлено: Сб 17 Ноябрь 2007, 18:37 Ответить с цитатойВернуться к началу

Image
Посмотреть профильОтправить личное сообщениеОтправить e-mail
Артемий



Зарегистрирован: Сб 17 Ноябрь 2007, 12:23
Сообщения: 4

СообщениеДобавлено: Вс 18 Ноябрь 2007, 15:43 Ответить с цитатойВернуться к началу

Владимир, спасибо за ответ.
Мы такое расположение рассматривали. Дело в том, что расстояние между печкой и верандным окном получаетс примерно 1м, а там предпологалась кухня соответственно столешница 60см и остаётся 40см на проход, а это совсем мало. Есть ли возможность поставить печку в этих местах. Те насколько такое расположение вообще возможно. И насколько оно рационально.
Спасибо.



img017.jpg
 Описание:
 Размер файла:  79.46 КБ
 Просмотров:  978 раз(а)

img017.jpg


Посмотреть профильОтправить личное сообщение
Евгений Колчин



Зарегистрирован: Чт 3 Октябрь 2002, 06:26
Сообщения: 10146
Регион: Москва

СообщениеДобавлено: Вс 18 Ноябрь 2007, 19:31 Ответить с цитатойВернуться к началу

Артемий, рисуя печку не забывайте про трубу и ПП разделки (отступки).
Плясать надо от печки ..
Поэтому при уже выбранном проекте лучше сделать перепланировку второго этажа, а печь установить вдоль конька, при этом отделив кухню и зал (т.е при входе в зал печь справа).
Тогда транзитом печь на второй этаж, сменив планировку второго этажа.
Посмотреть профильОтправить личное сообщениеОтправить e-mailПосетить сайт автораПозвонить авторуICQ Number
Владимир Жирнов



Зарегистрирован: Пт 12 Май 2006, 23:29
Сообщения: 713

СообщениеДобавлено: Вс 18 Ноябрь 2007, 21:29 Ответить с цитатойВернуться к началу

Тогда только так.
Image
Посмотреть профильОтправить личное сообщениеОтправить e-mail
Чуриков Александр



Зарегистрирован: Чт 18 Май 2006, 07:25
Сообщения: 2293
Регион: Санкт-Петербург

СообщениеДобавлено: Вс 18 Ноябрь 2007, 22:04 Ответить с цитатойВернуться к началу

Задумайтесь так же об утеплении дома. При таком утеплении, как Вы описали, зимой Вы столкнётесь с проблемой. Как-то большой расход дров для обогрева дома. И размер печи так же будет чрезмерно большим. Если посещение дачи весна-лето-осень, то куда ни шло, а вот про зиму забудте. Печь будете перетапливать, дров проц. на 30-40 больше тратить.

_________________
+7-921-742-16-92 Услуги печника. Кладка печей, мангалов, банных печей, чертежи
***********************************************************************
Посмотреть профильОтправить личное сообщениеОтправить e-mailПосетить сайт автораПозвонить автору
Евгений Колчин



Зарегистрирован: Чт 3 Октябрь 2002, 06:26
Сообщения: 10146
Регион: Москва

СообщениеДобавлено: Вс 18 Ноябрь 2007, 22:15 Ответить с цитатойВернуться к началу

Да, Владимир, именно так.
Вот теперь перекроить второй этаж так, чтобы печь грела две комнаты.
И будет отлично.
Посмотреть профильОтправить личное сообщениеОтправить e-mailПосетить сайт автораПозвонить авторуICQ Number
Чуриков Александр



Зарегистрирован: Чт 18 Май 2006, 07:25
Сообщения: 2293
Регион: Санкт-Петербург

СообщениеДобавлено: Вс 18 Ноябрь 2007, 22:18 Ответить с цитатойВернуться к началу

Думаю, что при таком утеплении отопление дома зимой будет неэкономичным.

_________________
+7-921-742-16-92 Услуги печника. Кладка печей, мангалов, банных печей, чертежи
***********************************************************************
Посмотреть профильОтправить личное сообщениеОтправить e-mailПосетить сайт автораПозвонить автору
Евгений Колчин



Зарегистрирован: Чт 3 Октябрь 2002, 06:26
Сообщения: 10146
Регион: Москва

СообщениеДобавлено: Вс 18 Ноябрь 2007, 22:42 Ответить с цитатойВернуться к началу

там наверно опечатка - 150 мм ?
Посмотреть профильОтправить личное сообщениеОтправить e-mailПосетить сайт автораПозвонить авторуICQ Number
Артемий



Зарегистрирован: Сб 17 Ноябрь 2007, 12:23
Сообщения: 4

СообщениеДобавлено: Пн 19 Ноябрь 2007, 14:45 Ответить с цитатойВернуться к началу

Большое спасибо всем ответившим.
Вроде уболтал половину на такое расположение как показал Владимир во втором варианте.
Подскажите пожалуйста варианты печей каминов, что бы он топился с торца, те из центра комнаты.
Спасибо.
Посмотреть профильОтправить личное сообщение
Владимир Жирнов



Зарегистрирован: Пт 12 Май 2006, 23:29
Сообщения: 713

СообщениеДобавлено: Вт 20 Ноябрь 2007, 19:15 Ответить с цитатойВернуться к началу

Артемий, мы не знаем какие функции должна выполнять ваша печь.
Предпологаю что варочные тоже.
Вот такая есть печь:
Image

Артемий писал(а):
Ещё хотелось бы, чтобы второй этаж хоть мало мальски отапливался, по возможности печкой первого этажа, если это возможно.

Хорошее желание и очень востребованное Smile
Посмотреть профильОтправить личное сообщениеОтправить e-mail
Артемий



Зарегистрирован: Сб 17 Ноябрь 2007, 12:23
Сообщения: 4

СообщениеДобавлено: Ср 21 Ноябрь 2007, 21:39 Ответить с цитатойВернуться к началу

Все и особенно Владимиру, огромное спасибо.
С печью вроде определились.
Артемий.
Посмотреть профильОтправить личное сообщение
Показать сообщения:      
Начать новую темуОтветить на тему


 Перейти:   



Следующая тема
Предыдущая тема
Вы не можете начинать темы
Вы не можете отвечать на сообщения
Вы не можете редактировать свои сообщения
Вы не можете удалять свои сообщения
Вы не можете голосовать в опросах
Вы не можете добавлять приложения в этом форуме
Вы можете скачивать файлы в этом форуме




Проект форум печников "Альянс. Печных Дел Мастера" © 2006-2026