| Автор |
Сообщение
|
Andron

Зарегистрирован: Ср 3 Ноябрь 2004, 19:46
Сообщения: 38
Регион: Петербург
|
Добавлено:
Чт 11 Октябрь 2007, 19:51
|
  |
День добрый!
Строится брусовой двухэтажный дом. Отопление - две печи типа ОВИК и ОИК. Какждая печь греет по два помещения (гостиная, две комнаты, кухня). Как лучше отопить втоорой этаж? Вижу как минимум три варианта:
- Отдельная печь со своей топкой, стоящая на печи 1-го этажа,
- Дополнительный (третий) колпак печей первого этажа, расположенный выше перектытия; прогрев регулирется задвижкой ЛХ плюс, возможно, аналогичная задвижка на второй колпак.
- Увеличенный (растянутый вверх) колпак первого этажа.
Что лучше выбрать? Дом - это дача, использование периодическое: лето + наезды зимой.
Спасибо,
Андрей
|
_________________ Andron
|
|
   |
 |
Игорь Рудаков
Зарегистрирован: Пт 16 Февраль 2007, 19:22
Сообщения: 13
Регион: г.Пермь
|
Добавлено:
Чт 11 Октябрь 2007, 20:26
|
  |
Из предложенных вариантов, я бы предпочел второй вариант. Удобней, когда зимой нет необходимости протапливать 2 этаж.
Зачем топка на втором этаже? Все прекрасно реализуется в колпаковых печах. Читайте статьи у И.Кузнецова там есть все практически.
|
_________________ Игорь
|
|
   |
 |
Александр Замашка
Гость
|
Добавлено:
Пт 12 Октябрь 2007, 08:17
|
  |
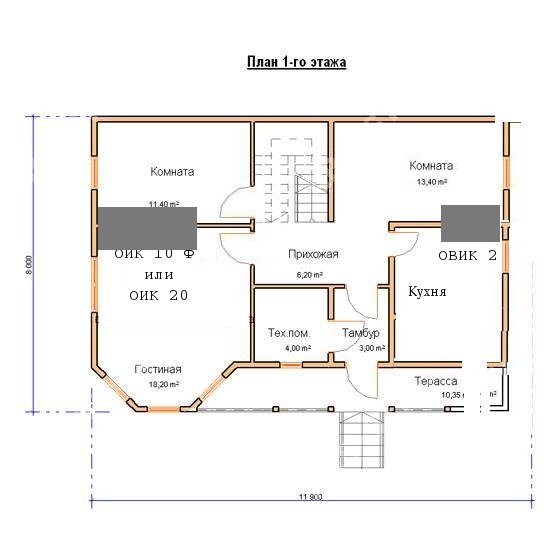
Хорошо бы взглянуть на план дома с указанием мест , где планируется установить печи .
Назначение помещений тоже неплохо бы указать .
Там глядишь , и можно будет что-то посоветовать .
Да , и крыша с какого материала и чем будет утепляться ?
|
|
|
|
|
 |
Andron

Зарегистрирован: Ср 3 Ноябрь 2004, 19:46
Сообщения: 38
Регион: Петербург
|
Добавлено:
Пт 12 Октябрь 2007, 12:03
|
  |
Спасибо за ответ!
Дом из бруса, второй этаж - "полуэтаж". Т.е. на уровне 150 см стена переходит в потолок. Проекта под рукой нет, вот изобразил на скорую руку из похожего проекта. Извиняюсь за качество.
|
_________________ Andron
| Описание: |
|
| Размер файла: |
34.93 КБ |
| Просмотров: |
2220 раз(а) |

|
| Описание: |
|
| Размер файла: |
22.73 КБ |
| Просмотров: |
1788 раз(а) |

|
|
|
   |
 |
Александр Замашка
Гость
|
Добавлено:
Пт 12 Октябрь 2007, 14:41
|
  |
Внутренние перегородки первого этажа двигать можно ?
Если помудрить с планировкои , то могут открыться интересные вещи ...
|
|
|
|
|
 |
Andron

Зарегистрирован: Ср 3 Ноябрь 2004, 19:46
Сообщения: 38
Регион: Петербург
|
Добавлено:
Пн 15 Октябрь 2007, 15:04
|
  |
Теоретически можно подвинуть, хоть фундамнет и готов уже.
А какие варианты?
|
_________________ Andron
|
|
   |
 |
Александр Замашка
Гость
|
Добавлено:
Пн 15 Октябрь 2007, 21:42
|
  |
Фундамент под печь готов или под дом ?
|
|
|
|
|
 |
Andron

Зарегистрирован: Ср 3 Ноябрь 2004, 19:46
Сообщения: 38
Регион: Петербург
|
Добавлено:
Пн 15 Октябрь 2007, 23:42
|
  |
Фундамент единый под дом и печи уже готов. Под печи площадки сделаны с большим запасом. Ширина плит - 1.5 метра, в длину левая метра два с половиной, правая - метра 2.
|
_________________ Andron
| Описание: |
|
| Размер файла: |
29.81 КБ |
| Просмотров: |
1143 раз(а) |

|
| Описание: |
|
| Размер файла: |
83.13 КБ |
| Просмотров: |
1307 раз(а) |

|
|
|
   |
 |
Александр Замашка
Гость
|
Добавлено:
Вт 16 Октябрь 2007, 08:48
|
  |
Нет смысла разбивать первый этаж на "клетушки" , дом и так небольшой .
Я сталкивался с такими проектами домов . В них делали как можно больше открытого пространства на первом этаже и спальни на втором .
Все равно все сборища и посиделки проходят на кухне .
Поэтому делали кух.зал просторным , и хозяйке удобно и прогрев помещений нормальный .
Можно поставить на кухне РТИК10 с лежанкой, а в комнате отдыхо просто ОИК с большими финскими дверцами .
При такой планировке тепла хватает и на второй этаж .
|
|
|
|
|
 |
Александр Замашка
Гость
|
Добавлено:
Вт 16 Октябрь 2007, 08:53
|
  |
В кухню РТИК с лежанкой
Лежанку соответственно хозяйскую , т.е подлинее
В альбоме побольше фотографий
|
Последний раз редактировалось: Александр Замашка (Вт 16 Октябрь 2007, 08:58), всего редактировалось 1 раз |
|
|
 |
Александр Замашка
Гость
|
Добавлено:
Вт 16 Октябрь 2007, 08:56
|
  |
Ну и ОИК - типа таких размеров .
|
|
|
|
|
 |
Andron

Зарегистрирован: Ср 3 Ноябрь 2004, 19:46
Сообщения: 38
Регион: Петербург
|
Добавлено:
Вт 16 Октябрь 2007, 09:23
|
  |
Александр,
Спасибо за идею. В своё время ее обсуждали. Но не получается - хочется две жилые комнаты на 1-м этаже. Для посиделок есть гостиная.
Да и конструктивно никак не получится - на фундамент печи не попадают совсем (см. мой рисунок в пред посте). Плюс длинные брусовые стены (7 метров) без врубок внутренних стен образуют неустойчивую конструкцию.
А если рассмотреть ту планировку, что была изначально, что можно сделать на втором этаже?
Спасибо,
Андрей
|
_________________ Andron
|
|
   |
 |
Александр Замашка
Гость
|
Добавлено:
Вт 16 Октябрь 2007, 09:43
|
  |
Предлагалось такое размещение печей
На первом этаже
|
|
|
|
|
 |
Александр Замашка
Гость
|
Добавлено:
Вт 16 Октябрь 2007, 09:46
|
  |
Планировку комнат второго этажа к сожалению не схранил ...
Но там что то похожее с твоей
|
|
|
|
|
 |
Александр Замашка
Гость
|
Добавлено:
Вт 16 Октябрь 2007, 09:58
|
  |
можно так ...
В Финке видел такой вариант расположения ванной комнаты ...
Все равно хрущёвка получается ...
извени ...
|
|
|
|
|
 |
Andron

Зарегистрирован: Ср 3 Ноябрь 2004, 19:46
Сообщения: 38
Регион: Петербург
|
Добавлено:
Вт 16 Октябрь 2007, 10:19
|
  |
Что-то мы ушли в вопросы планировки помещения, вот выйдет Админ и нам по предупреждению вкатает за Offtopic.
Вопрос-то остался открытым: Чем греть второй этаж, если проект оставить такой, какой он есть?
|
_________________ Andron
|
|
   |
 |
Александр Замашка
Гость
|
Добавлено:
Вт 16 Октябрь 2007, 10:34
|
  |
Второй вариант более приемлимый , если не проживать в доме постоянно .
|
|
|
|
|
 |
Andron

Зарегистрирован: Ср 3 Ноябрь 2004, 19:46
Сообщения: 38
Регион: Петербург
|
Добавлено:
Вт 16 Октябрь 2007, 10:40
|
  |
А стоит ли ставить дополнительную задвижку, выключающую второй колпак? Т.е, открыв ЗЛХ и эту вторую задвижку, превращаем печь 1-го этажа в прямоточку и греет только второй колпак.
И как расчитать необходимый размер второго колпака?
|
_________________ Andron
|
|
   |
 |
Александр Замашка
Гость
|
Добавлено:
Вт 16 Октябрь 2007, 11:17
|
  |
| Александр Замашка писал(а): |
| Второй вариант более приемлимый , если не проживать в доме постоянно . |
Прошу прощения , ошибочка , не внимателен я ... :grin:
Первый вариант самый правильный . Про другие можно забыть .
Иначе температура выходящих газов будет меньше 100 градусов и как следствие - конденсат в трубе и затем разрушение конструкции ...
|
|
|
|
|
 |
Andron

Зарегистрирован: Ср 3 Ноябрь 2004, 19:46
Сообщения: 38
Регион: Петербург
|
Добавлено:
Вт 16 Октябрь 2007, 11:24
|
  |
Даже с выключением двух колпаков нижний печи? Третий колпак тоже можно сделать отключаемым.
Мне представляется, что, открывая задвижки над обоими колпаками нижней печи, мы превращаем ее в прямоточную с низким КПД. Соответственно, греется верхний (третий) колпак.
При достаточном нагреве выключаем вернхий колпак, включаем нижние два.
Иначе четыре топки в доме получается. Да и дрова таскать на второй этаж не есть гуд. ((
|
_________________ Andron
|
|
   |
 |
|
|