 |
|
 |
| Автор |
Сообщение
|
AlexTitov
Гость
|
Добавлено:
Вс 20 Январь 2008, 22:42
|
  |
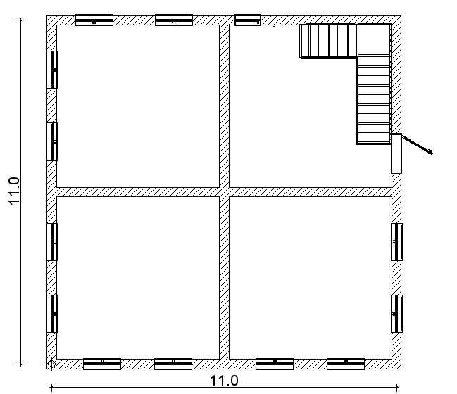
Строим деревянный дом с несущими стенами согласно рисунку, хотим отапливаться дровами (углем), альтернативно газом. Дом двухэтажный, на третьем этаже мансарда. Большое пространство (5.5х5.5) разобьем на комнаты, пока не решили как. Хотим большую отопительно-варочную печь, хорошо с лежанкой и камином. Дайте, пожалуйста, советы по отоплению:
1. Возможно ли (разумно ли это) отопление такого дома одной большой печкой (расположенной в середине) без применения водяного отопления ?
2. Возможно ли (опять же разумно ли) встраивать газовую горелку в эту печь (в виде отдельного топника) чтобы отапливать дом только нагретой печью без водяного отопления ?
3. Как будет разумно расположить печь ?
4. Можно ли придумать как-бы калориферное отопление - подавать в дальние комнаты горячий воздух по трубопроводам под потолком ?
Из предварительного чтения я понял, что хорошо выбирать двухколпаковую печь, колпаки один над другим. Вероятно верхний колпак как раз на втором этаже. Однако использование газовой горелки в колпаках невозможно (т.к. при потухании горелки газ может скопиться в колпаке и взорваться), поэтому я и подумал газовую горелку расположить в отдельной топке (если это возможно).
Вероятно это понадобится в дальнейшем - сам объект строительства расположен в подмосковье в часе езды
Заранее благодарен за помощь, Александр.
Правка 30-го января:
- измененный чертеж этажей (лестница и входная дверь расположены примерно, если нужно двигать - можно двигать)
- материал стен (наружных и внутренних) - бревно 250-300мм
|
| Описание: |
|
| Размер файла: |
61.59 КБ |
| Просмотров: |
950 раз(а) |

|
|
|
|
 |
Евгений Колчин

Зарегистрирован: Чт 3 Октябрь 2002, 06:26
Сообщения: 10146
Регион: Москва
|
Добавлено:
Сб 2 Февраль 2008, 20:17
|
  |
Для отопления практически 200 метров все же лучше использовать водяное отопление.
Хорошо зарекомендовала себя практика установки в цокольном этаже печи котла, а на первом этаже транзитом печь с функциональным назначением: камин, варочная панель или хлебная камера.
На переходной период года вам достаточно будет топить печь на этаже, а уже зимой использовать котел.
Тем более в дальнейшем, при использование газа теплоемкий котел станет резервным (а может и основным), а газовый котел установить там же в цоколе (не подвале).
|
_________________ ************************************
|
|
      |
 |
Александр Бацулин

Зарегистрирован: Пт 17 Февраль 2006, 19:20
Сообщения: 928
Регион: Москва
|
Добавлено:
Сб 2 Февраль 2008, 21:24
|
  |
Одной печью нереально отопить такой дом. Две двухэтажных печи - было бы нормально.
|
_________________ Здесь могла бы быть ваша реклама.
|
|
   |
 |
|
|
|
Следующая тема
Предыдущая тема
Вы не можете начинать темы Вы не можете отвечать на сообщения Вы не можете редактировать свои сообщения Вы не можете удалять свои сообщения Вы не можете голосовать в опросах Вы не можете добавлять приложения в этом форуме Вы можете скачивать файлы в этом форуме
|
|