 |
|
 |
| Автор |
Сообщение
|
German_26
Зарегистрирован: Пн 12 Январь 2009, 09:11
Сообщения: 2
|
Добавлено:
Пн 12 Январь 2009, 09:46
|
  |
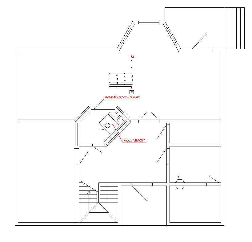
Я не специалист, поэтому прошу отнестись с пониманием. Вопрос следующего характера. Имеется стальной отопительный котел "Дымок" Возможно ли отвод дыма сделать через "тепловой экран" (кирпичная кладка) будет ли тяга?
|
| Описание: |
|
| Размер файла: |
56.33 КБ |
| Просмотров: |
997 раз(а) |

|
|
|
  |
 |
Евгений Колчин

Зарегистрирован: Чт 3 Октябрь 2002, 06:26
Сообщения: 10146
Регион: Москва
|
Добавлено:
Пн 12 Январь 2009, 11:01
|
  |
для выяснения надо посчитать сопротивление вашего щитка газовому потоку
если в той схеме, что на картинке, то ориентиром может служить - длина дымохода не менее длины каналов
уменьшить сопротивление можно за счет применения колпаковой схемы щитка с задвижкой прямого хода (в любом варианте) или сделать щиток по рекомендации В.Жирнова прямоточный в рассечку (подробности у Владимира)
|
|
|
|
      |
 |
Паша

Зарегистрирован: Ср 28 Ноябрь 2007, 23:35
Сообщения: 369
|
Добавлено:
Пн 12 Январь 2009, 11:40
|
  |
А есть какая нибудь доступная метода по расчёту сопротивления дымооборотов печи газовому потоку?
|
|
|
|
  |
 |
Евгений Колчин

Зарегистрирован: Чт 3 Октябрь 2002, 06:26
Сообщения: 10146
Регион: Москва
|
Добавлено:
Пн 12 Январь 2009, 11:44
|
  |
мне кажется этот вопрос может лучше всех раскрыть Ю.Хошев.
|
|
|
|
      |
 |
German_26
Зарегистрирован: Пн 12 Январь 2009, 09:11
Сообщения: 2
|
Добавлено:
Пн 12 Январь 2009, 12:31
|
  |
| Евгений Колчин писал(а): |
для выяснения надо посчитать сопротивление вашего щитка газовому потоку
если в той схеме, что на картинке, то ориентиром может служить - длина дымохода не менее длины каналов
уменьшить сопротивление можно за счет применения колпаковой схемы щитка с задвижкой прямого хода (в любом варианте) или сделать щиток по рекомендации В.Жирнова прямоточный в рассечку (подробности у Владимира) |
Если я правильно понял, то длинна вертикального участка трубы должна быть не менее общей длинны каналов теплового щита? А на сколько больше/меньше важно? Или главное что бы не менее? Я тут в первый раз, не могли бы дать ссылочку на колпаковую схему и В.Жирнова. И кто такой Владимир?
|
|
|
|
  |
 |
|
|
|
Следующая тема
Предыдущая тема
Вы не можете начинать темы Вы не можете отвечать на сообщения Вы не можете редактировать свои сообщения Вы не можете удалять свои сообщения Вы не можете голосовать в опросах Вы не можете добавлять приложения в этом форуме Вы можете скачивать файлы в этом форуме
|
|