 |
|
 |
| Автор |
Сообщение
|
boris_ekb
Зарегистрирован: Чт 22 Апрель 2010, 07:25
Сообщения: 6
Регион: Екатеринбург
|
Добавлено:
Чт 22 Апрель 2010, 08:15
|
  |
Добрый день!
Выбрал себе печь ОВИК БК 4, но порядовки не нашел на сайте
Где бы ее найти?
|
|
|
|
  |
 |
boris_ekb
Зарегистрирован: Чт 22 Апрель 2010, 07:25
Сообщения: 6
Регион: Екатеринбург
|
Добавлено:
Чт 22 Апрель 2010, 13:21
|
  |
Еще вопрос.
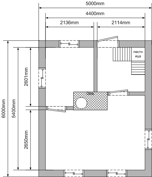
У меня дом рубленный в лапу, размер 5*6 м, толщина бревен 200-250 мм. высота потолка будет на первом этаже - 2,3 м.
Второй этаж мансардный утепленный будет, там высота потолка - 2,15 м.
Выбрал себе печь ОВИК БК-4 (если без камина то - ОВИК-1). Правильный ли я себе выбор сделал?
Что подскажите? Будет ли тепло в доме?
Планировку первого этажа хочу как в прикрепленном файле сделать.
|
| Описание: |
|
| Размер файла: |
44.84 КБ |
| Просмотров: |
862 раз(а) |

|
|
|
  |
 |
boris_ekb
Зарегистрирован: Чт 22 Апрель 2010, 07:25
Сообщения: 6
Регион: Екатеринбург
|
Добавлено:
Чт 29 Апрель 2010, 19:40
|
  |
тут тоже тишина ... ответа видимо ждать безсмысленно ?
|
|
|
|
  |
 |
vova230
Зарегистрирован: Ср 24 Март 2010, 00:20
Сообщения: 811
Регион: Беларусь
|
Добавлено:
Чт 29 Апрель 2010, 20:37
|
  |
Да, очень странно почему все молчат.
Ведь здесь немало тех, кто знаком с такими печами. А я не изучал печи ОВИК и потому мне нечего сказать. Теплоотдачу по идее можно просчитать, а так на вскидку должно хватить. Хотя я наверное сделал бы свою конструкцию.
|
|
|
|
   |
 |
Евгений Колчин

Зарегистрирован: Чт 3 Октябрь 2002, 06:26
Сообщения: 10144
Регион: Москва
|
Добавлено:
Чт 29 Апрель 2010, 21:12
|
  |
Теплоотдача печи при двух топках в сутки указана в каталоге:
Т-3316 А=1318 Б=340 С=995 Д=663 (ккакл/час)
Для вашего дома подойдет.
Порядовку придется рисовать самому, раз уж самостоятельно решили строить.
Отрисуете и выкладывайте в теме, печники подскажут, что и как.
|
_________________ ************************************
|
|
      |
 |
|
|
|
Следующая тема
Предыдущая тема
Вы не можете начинать темы Вы не можете отвечать на сообщения Вы не можете редактировать свои сообщения Вы не можете удалять свои сообщения Вы не можете голосовать в опросах Вы не можете добавлять приложения в этом форуме Вы можете скачивать файлы в этом форуме
|
|