 |
|
 |
| Автор |
Сообщение
|
Serzh
Зарегистрирован: Ср 17 Февраль 2010, 11:23
Сообщения: 5
Регион: Москва
|
Добавлено:
Ср 17 Февраль 2010, 16:58
|
  |
Здравствуйте!
Прошу совета.
Что имеем:
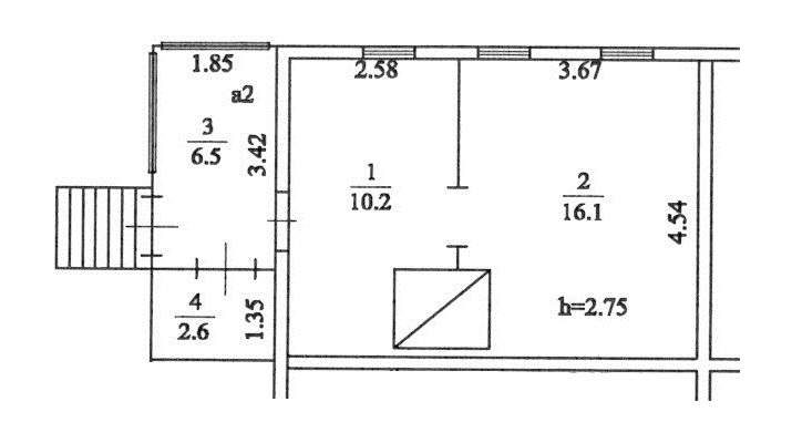
1) Маленькая квартира (26 м^2) в одноэтажном деревянном доме на 4 семьи (план дома и план квартиры прилагаю);
2) Стоит старая печка, которая сильно хочет чтобы её поменяли (не оправдывает она возложенные на себя функции, холодная и рассыпается);
3) Квартира используется как дача на выходные, и зимой и летом;
4) Печь - единственное отопление.
Чего хочется:
1) Хочется иметь хорошую тёплую печь с камином (можно просто отопительную, можно отопительно-варочную, но обязательно с камином);
2) Хочется чтобы за реальное время зимой квартира прогревалась и продолжительное время в ней сохранялась комфортная температура;
3) Хочется чтобы тепло камина захватывало всю гостинную, а сама печь топилась из прихожей;
4) Хочется попробовать собрать её самому.
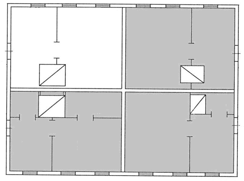
Подумал подумал и придумал 2 варианта размещения камина:
1) Угловой камин рядом с тем местом где сейчас стоит старая печь;
2) Прямой камин посередине квартиры.
Первый вариант ну всем хорош, только нет порядовок угловых каминов (индивидуальный проект? если да, то к кому можно обратиться, сколько это может стоить?), да и самому собрать его наверное будет не легко (а может наоборот, даже проще?).
Второй вариант очень сильно смущает что печь будет стоять прямо напротив входа в квартиру (не по Фэн-Шую это как-то), да и дымоход будет далековато от конька, хотя и с порядовками на stove.ru всё гораздо лучше.
Поэтому и возник вопрос что с этим всем можно сделать и как выйти из положения?
|
| Описание: |
| План всего дома (упрощённый) |
|
| Размер файла: |
77.76 КБ |
| Просмотров: |
825 раз(а) |

|
| Описание: |
| План квартиры (на всякий случай с неотапливаемой верандой) |
|
| Размер файла: |
44.47 КБ |
| Просмотров: |
854 раз(а) |

|
| Описание: |
| Варианты размещения печи с камином |
|
| Размер файла: |
55.93 КБ |
| Просмотров: |
841 раз(а) |

|
|
|
  |
 |
vova230
Зарегистрирован: Ср 24 Март 2010, 00:20
Сообщения: 811
Регион: Беларусь
|
Добавлено:
Пт 26 Март 2010, 20:16
|
  |
Печь с угловым камином могу поискать, если еще надо пишите в личку. Отсканирую порядовки.
Как вариант может быть угловой камин и печь по отдельности.
|
|
|
|
   |
 |
тов.Ёжиков
Зарегистрирован: Пн 1 Март 2010, 16:45
Сообщения: 61
Регион: ЕС
|
Добавлено:
Пт 26 Март 2010, 22:00
|
  |
Для камина нужно будет делать приточную вентиляцию.
|
|
|
|
  |
 |
vova230
Зарегистрирован: Ср 24 Март 2010, 00:20
Сообщения: 811
Регион: Беларусь
|
Добавлено:
Пт 26 Март 2010, 23:34
|
  |
| тов.Ёжиков писал(а): |
| Для камина нужно будет делать приточную вентиляцию. |
Не обязательно. Многое зависит от плотности закрытия окон, да и под дверью можно предусмотреть щель для притока воздуха. Ну и не последнее место отводится размеру камина, а в данном варианте не следует строить очень большой камин, нужно сдерживать свои аппетиты.
|
|
|
|
   |
 |
Serzh
Зарегистрирован: Ср 17 Февраль 2010, 11:23
Сообщения: 5
Регион: Москва
|
Добавлено:
Вс 28 Март 2010, 12:29
|
  |
Спасибо за интерес к теме, но благодаря Ивану (Печнику из Беларуси) было найдено решение без камина. В итоге было принято решение строить каминопечь с большой стеклянной дверцей, разместить её примерно в том же месте где и старая печь, только топкой в сторону окон. А межкомнатной перегородке там небывать, будет либо какая-то декоративная перегородка в виде ширмы, либо просто одно общее пространство.
|
| Описание: |
|
| Размер файла: |
26.51 КБ |
| Просмотров: |
816 раз(а) |

|
| Описание: |
|
| Размер файла: |
53.65 КБ |
| Просмотров: |
834 раз(а) |

|
|
|
  |
 |
vova230
Зарегистрирован: Ср 24 Март 2010, 00:20
Сообщения: 811
Регион: Беларусь
|
Добавлено:
Вс 28 Март 2010, 13:08
|
  |
От перегородки думаю зря торопитесь отказаться. Есть приличные угловые камины, да и печь топить лучше из смежного помещения, чтобы не таскать грязь по всему дому, даже если это просто дача на выходные.
А временные перегородки-ширмы имеют свойство превращаться в постоянные.
|
|
|
|
   |
 |
|
|
|
Следующая тема
Предыдущая тема
Вы не можете начинать темы Вы не можете отвечать на сообщения Вы не можете редактировать свои сообщения Вы не можете удалять свои сообщения Вы не можете голосовать в опросах Вы не можете добавлять приложения в этом форуме Вы можете скачивать файлы в этом форуме
|
|