Некоммерческое партнерство Альянс Печных Дел Мастера
 RSS  • FAQ  •  Поиск  •  Пользователи  •  Группы   •  Регистрация   •  Избранные темы   •  Профиль  •  Войти и проверить личные сообщения  •  Чат  •  Вход





 Печное отопление дома 9*9 Следующая тема
Предыдущая тема
Начать новую темуОтветить на тему
Автор Сообщение
Artem



Зарегистрирован: Пт 10 Июль 2009, 10:38
Сообщения: 4

СообщениеДобавлено: Чт 26 Ноябрь 2009, 18:31 Ответить с цитатойВернуться к началу

Уважаемые печники!
Прошу помочь выбрать печь(печи?) для отопления 2-х этажного дома с мансардой 9*9. Может кто-то сможет не только посоветовать, но и взяться в дальнейшен за реализацию. Дом будет находиться в Воскресенском р-не МО, 67 км. от МКАД по новорязанке.
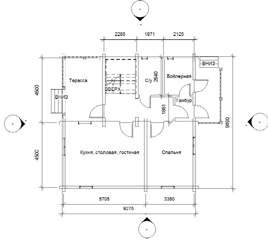
Требования к печи - на первом этаже обогревает столовую и спальню.
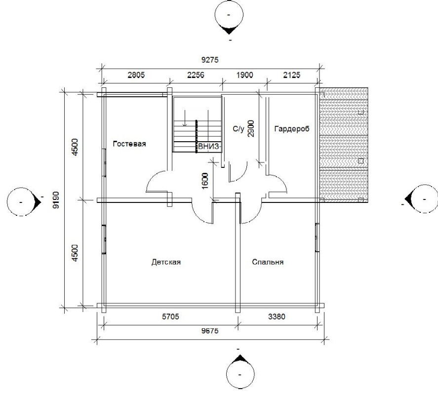
На втором этаже детскую и спальню.
При этом в кухню должна выходить варочная поверхность, хлебная камера (духовка?) и прозрачная топочная дверца (хочется хоть какое-то подобие камина). В спальню на первом этаже можно запустить лежанку, если это реализуемо.
Соответственно, эта печь должна заходить на второй этаж и греть обе комнаты. Опять же, реализуемо ли это? Или щиток можно запустить только в детскую, а в спальне на втором этаже поставить камин простой и воткнуть его в общую трубу.
Может есть вариант встраивания котла и обогрева второго этажа радиаторами от печи?
Буду очень признателен за ответы.



Plan1.jpg
 Описание:
 Размер файла:  71.07 КБ
 Просмотров:  941 раз(а)

Plan1.jpg



Plan2.jpg
 Описание:
 Размер файла:  76.16 КБ
 Просмотров:  867 раз(а)

Plan2.jpg


Посмотреть профильОтправить личное сообщение
Показать сообщения:      
Начать новую темуОтветить на тему


 Перейти:   



Следующая тема
Предыдущая тема
Вы не можете начинать темы
Вы не можете отвечать на сообщения
Вы не можете редактировать свои сообщения
Вы не можете удалять свои сообщения
Вы не можете голосовать в опросах
Вы не можете добавлять приложения в этом форуме
Вы можете скачивать файлы в этом форуме




Проект форум печников "Альянс. Печных Дел Мастера" © 2006-2026