 |
|
 |
| Автор |
Сообщение
|
Том
Зарегистрирован: Пн 1 Ноябрь 2010, 13:16
Сообщения: 6
Регион: МО
|
Добавлено:
Вт 2 Ноябрь 2010, 15:34
|
  |
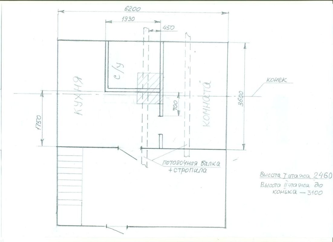
Здравствуйте, уважаемые печники. Очень мне нужна печь кирпичная для отопления. Чертеж 1 этажа дома прилагаю. Заштрихованный квадрат – это место для печи.
Порылась тут у вас в чертежах (заодно пытаясь, но пока тщетно, понять СДГ) и пришла к выводу, что мне подходит несколько вариантов. Это ОВИК-4, 19 и 25. Но в 4-ке мне не нравится, что нет шамотного ядра. 19-я не широка ли? В 25-й наверняка разделка в перегородке нужна будет и что дает 2-х ярусный колпак? Посоветуйте оптимальный вариант.
Изначально в домике планировалась другая система отопления. Фундамента под печь нет, полов-потолков в предполагаемом для печи месте тоже пока нет. Отапливать планирую блок кухня – с/у – комнатка. Это 25 м.кв. Все внешние стены этого блока из бревна 250 -350 , окна двойные. Перегородки из бруса 100х100. Фундамент под домом и под перегородкой в комнату – МЗЛ. Вот как раз с этой перегородкой придется завязать фундамент печи.
Сейчас это просто летняя дача, но жизнь такая непредсказуемая штука… Утепляемся основательно и снизу, и сверху, имея ввиду возможность для постоянного проживания.
Печь буду заказывать специалистам. Но все же очень хочется понять объем работ при строительстве, поскольку что-то можем сделать своими силами (фундамент, например, или дыры в перегородках). Можно ли обойтись без распила потолочной балки?
Я покрутилась тут на форуме и поняла, что вы, печники, особый народ, и часто игнорируете такие темы, предлагая сначала выбрать исполнителя и затем решать все вопросы тет-а-тет. Если никто не откликнется – пойму.
|
| Описание: |
|
| Размер файла: |
49.95 КБ |
| Просмотров: |
904 раз(а) |

|
|
|
   |
 |
vova230
Зарегистрирован: Ср 24 Март 2010, 00:20
Сообщения: 811
Регион: Беларусь
|
Добавлено:
Вт 2 Ноябрь 2010, 22:25
|
  |
Расположение вашей печи не совсем удачное. Санузел так сильно обогревать не надо, если не хотите там баню устроить.
Лучше расположить печь вдоль конька длинной стороной и выдвинуть печь немного в комнату, тогда можно будет обойтись без распила потолочной балки.
Вот посмотрите рисунок печи. Думаю для вас это неплохой вариант. Порядовок нет, но печь не сложная, печник разберется. http://www.spbrb.ru/images/gallery_img/fireplace_46.jpg
|
|
|
|
   |
 |
Том
Зарегистрирован: Пн 1 Ноябрь 2010, 13:16
Сообщения: 6
Регион: МО
|
Добавлено:
Вт 2 Ноябрь 2010, 23:32
|
  |
vova230, спасибо за участие. Да, немного можно задвинуть печь в комнату. И на Вашей картинке печь очень похожа на те, что я выбрала, и по раэмеру подходит, 780х780. Вот только не понимаю, как печник по фото может сообразить внутреннее устройство печи? Тут уж художественная самодеятельность начинается. А там - кто как спляшет...Потом мерзни...
Я тут по знакомым прошлась по поводу - у кого какая печка. У одного печь беленая и на одном боку - рыжее расплывчатое пятно (может, от сильного перегрева?). Другой запасает неимоверное количество дров для своей обжоры. Оба очень довольны своими печурками. А я по ночам не сплю - все что-то выискиваю. Чтобы самое-самое-самое. Ну и желательно не очень дорого
|
|
|
|
   |
 |
vova230
Зарегистрирован: Ср 24 Март 2010, 00:20
Сообщения: 811
Регион: Беларусь
|
Добавлено:
Ср 3 Ноябрь 2010, 00:36
|
  |
Так то оно так, но вот только мало какой печник станет по чужим порядовкам печь класть и не факт, что получится как надо. Так что стоит только надеяться что ваши специалисты смогут все сделать как надо.
Да и многие печи так или иначе приходится подгонять под конкретное помещение.
Предложенная мной печь имеет размер примерно 1х1,2 скорее всего.
Конструкции похожих печей можно найти в интернете. Да и на этом сайте посмотрите раздел "Отопительно-варочные печи"
|
|
|
|
   |
 |
Том
Зарегистрирован: Пн 1 Ноябрь 2010, 13:16
Сообщения: 6
Регион: МО
|
Добавлено:
Ср 3 Ноябрь 2010, 08:41
|
  |
| vova230 писал(а): |
Предложенная мной печь имеет размер примерно 1х1,2 скорее всего.
" |
Извините, что задаю такие вопросы, но я профан в этом деле, а очень хочется самой вникнуть в тему. Я считала, что для моей площади нужна печка поменьше. Никак не могу понять такой момент. Хорошая кирпичная печь должна быть довольно теплоемкой, чтобы после протопки долго отдавать тепло помещению. И в то же время нужно расчитывать мощность печи для каждого конкретного случая. Понятно, что недостаток мощности - это большой минус (частые протопки и быстрое остывание). Как расценивать переизбыток мощности?
|
|
|
|
   |
 |
Евгений Колчин

Зарегистрирован: Чт 3 Октябрь 2002, 06:26
Сообщения: 10144
Регион: Москва
|
Добавлено:
Ср 3 Ноябрь 2010, 10:34
|
  |
переизбыток мощности еще хуже для печи! постоянный "недотоп" (в смысле не вывод на нормированную мощность работы) печи приводит к ее "засаживанию" (в смысле заростанию сажей каналов в печи) и в скором времени прекращению работы
Оптимальный расчет - 70% от максимальной необходимой мощности.
|
_________________ ************************************
|
|
      |
 |
Лара
Зарегистрирован: Пт 19 Ноябрь 2010, 14:52
Сообщения: 2
Регион: Москва
|
Добавлено:
Пн 22 Ноябрь 2010, 02:49
|
  |
Здравствуйте, у нас похожая ситуация, нужен совет по типу печи и варианту размещения. Домик брусовой (толщина 15см) с теплой мансардой, будет использоваться как дачка, с зимним посещением с детьми, на выходные и школьные каникулы.
Ещё вопрос: если будет выбрана кирпичная печка, то имеется ли возможность построить её к новогодним праздникам?
Внутренняя стена из бруса, капитальная.
Конёк показан розовой пунктирной линией. 1. прихожая, 2. кухня, 3. зала.
Не совсем уверена, но строители уверяют что там есть даже фундамент для печки под полом(примерно показано синим).
|
| Описание: |
|
| Размер файла: |
44.81 КБ |
| Просмотров: |
680 раз(а) |

|
|
|
  |
 |
Евгений Колчин

Зарегистрирован: Чт 3 Октябрь 2002, 06:26
Сообщения: 10144
Регион: Москва
|
Добавлено:
Пн 22 Ноябрь 2010, 08:38
|
  |
Самый простой - отопительная печь, но можно добавить хлебной камерой (см. ОИК ХК) расширев функциональные возможности печи.
Второй вариант, сделать открытый камин со стороны зала в сочетание с теплоемкой печью.
А если думать "на сегодня" то надо смотреть размер и привязку фундамента, а после возведения печи еще и сушить ее. Т.ч. при желание начать вчера, можно закончить к НГ.
|
_________________ ************************************
|
|
      |
 |
pe4ka
Зарегистрирован: Ср 23 Сентябрь 2009, 17:36
Сообщения: 1918
Регион: Туймазы
|
Добавлено:
Вс 28 Ноябрь 2010, 18:51
|
  |
том рассмотри вариант постройки 2-х печей. одну с плитой для варки и одну отопительную с камином. малая русская тоже класс
|
_________________ окажу консультации по кладке печей каминов и их ремонту д51055 код8-34782 сот 8-9173752622 г.Туймазы башкирия
|
|
   |
 |
Том
Зарегистрирован: Пн 1 Ноябрь 2010, 13:16
Сообщения: 6
Регион: МО
|
Добавлено:
Вт 30 Ноябрь 2010, 14:35
|
  |
На самом деле я действительно рассматриваю две печи для отопления всего дома, одна из которых двухэтажная.
Но на первом этапе осилить бы одну.
|
|
|
|
   |
 |
|
|
|
Следующая тема
Предыдущая тема
Вы не можете начинать темы Вы не можете отвечать на сообщения Вы не можете редактировать свои сообщения Вы не можете удалять свои сообщения Вы не можете голосовать в опросах Вы не можете добавлять приложения в этом форуме Вы можете скачивать файлы в этом форуме
|
|