| Автор |
Сообщение
|
RedKing
Зарегистрирован: Сб 1 Октябрь 2011, 23:53
Сообщения: 4
Регион: Питер
|
Добавлено:
Вс 2 Октябрь 2011, 00:58
|
  |
Добрый день.
Требуется консультация и исполнитель на постройку печи Кузнецова ОИК К3.
http://www.stove.ru/foto/_265120444.jpg
http://www.stove.ru/foto/_532233429.jpg
Есть желание интегрировать печь в несущую стену (план помещения ниже, перегородка между 2 и 3 помещением возводиться не будет).
Фундамент дома - монолитная плита на плите цоколь 600мм (отметка "0"). Уровень чистового пола +130мм. Внутренние несущие стены возводятся на плите (с отметки -600мм). Перекрытие второго этаже монолитное жб. На втором этаже планируется небольшой камин в тот же самый дымоход. Высота потолков 3 метра. Под конек 9м.
Начало работ апрель 2012.
Вопросы:
1. Можно ли интегрировать печь в несущую стену?
2. Можно ли конкретно эту печь интегрировать в стену толщиной 380 мм? Как будет осуществятся перевязка печи со стеной, арматурой, кирпичом?
3. Можно ли встроить камин на 2-м этаже в транзитный дымоход?
4. На какую высоту и каких размеров заливать фундамент под печь?
5. Требуется ли еще какая-нибудь документация для постройки или достаточно чертежей, которые выложены на сайте Кузнецова?
6. Стоимость работ (только постройка печи, дымоход вместе со стеной возводят каменщики, а по камину на 2-м этаже пока не определился)?
Объект находится в 58 км от Петербурга пос. Сосново.
|
| Описание: |
|
| Размер файла: |
88.67 КБ |
| Просмотров: |
948 раз(а) |

|
|
|
  |
 |
Boris759
Зарегистрирован: Ср 9 Февраль 2011, 08:36
Сообщения: 272
Регион: Belarus
|
Добавлено:
Вс 2 Октябрь 2011, 07:19
|
  |
| RedKing писал(а): |
Добрый день.
Требуется консультация и исполнитель на постройку печи Кузнецова ОИК К3.
http://www.stove.ru/foto/_265120444.jpg
http://www.stove.ru/foto/_532233429.jpg
Есть желание интегрировать печь в несущую стену (план помещения ниже, перегородка между 2 и 3 помещением возводиться не будет).
Фундамент дома - монолитная плита на плите цоколь 600мм (отметка "0"). Уровень чистового пола +130мм. Внутренние несущие стены возводятся на плите (с отметки -600мм). Перекрытие второго этаже монолитное жб. На втором этаже планируется небольшой камин в тот же самый дымоход. Высота потолков 3 метра. Под конек 9м.
Начало работ апрель 2012.
Вопросы:
1. Можно ли интегрировать печь в несущую стену?
2. Можно ли конкретно эту печь интегрировать в стену толщиной 380 мм? Как будет осуществятся перевязка печи со стеной, арматурой, кирпичом?
3. Можно ли встроить камин на 2-м этаже в транзитный дымоход?
4. На какую высоту и каких размеров заливать фундамент под печь?
5. Требуется ли еще какая-нибудь документация для постройки или достаточно чертежей, которые выложены на сайте Кузнецова?
6. Стоимость работ (только постройка печи, дымоход вместе со стеной возводят каменщики, а по камину на 2-м этаже пока не определился)?
Объект находится в 58 км от Петербурга пос. Сосново. |
1 можно,оставляется проем по ширине печи,перкрываемый перемычкой или уголками.
2.перевязки нет
3. Можно хотя и небольшой,тяги чтоб хватило.Обычно кто ниже у того и тяга лучше. Камином 2-й этаж не обогреть.Лучше в перспективе подключить красивую буржуйку.
4.5. нужны план раскладки балок и стропил чтобы прикинуть где труба а от этого и сама печь встанет.По этим данным и фундамент делается-обычно шире печи со всех сторон см на 10, и см на 10 не доходя до уровня пола.
6.Цена у всех разная. Дымоход придется опереть на перекрытие 1-го этажа или на эту несущую стену с уводом и доп.прочисткой. Идеально для печи-дымоход вместе с печью. Всё обсуждаемо.
|
|
|
|
  |
 |
Александр Замашка
Гость
|
Добавлено:
Вс 2 Октябрь 2011, 16:15
|
  |
Вопросы:
1. Можно ли интегрировать печь в несущую стену?
Можно. Нужно смотреть размеры стены, где будет проем под печь
2. Можно ли конкретно эту печь интегрировать в стену толщиной 380 мм? Как будет осуществятся перевязка печи со стеной, арматурой, кирпичом?
Никак, печь с противопожарной разделкой живет отдельно от стен
3. Можно ли встроить камин на 2-м этаже в транзитный дымоход?
Можно
4. На какую высоту и каких размеров заливать фундамент под печь?
Верхний уровень фундамента под печь ниже уровня чистового пола на 6 см
5. Требуется ли еще какая-нибудь документация для постройки или достаточно чертежей, которые выложены на сайте Кузнецова?
Перечень вопросов в Опроснике на сайте
www.stovestroy.ru
6. Стоимость работ (только постройка печи, дымоход вместе со стеной возводят каменщики, а по камину на 2-м этаже пока не определился)
После согласования проекта печи, все на сайте www.stovestroy.ru
|
|
|
|
|
 |
Александр Замашка
Гость
|
Добавлено:
Ср 5 Октябрь 2011, 19:12
|
  |
| Boris759 писал(а): |
Дымоход придется опереть на перекрытие 1-го этажа или на эту несущую стену с уводом и доп.прочисткой.
Идеально для печи-дымоход вместе с печью.
Всё обсуждаемо. |
... во какак...
наверное это должно выглядеть так ...?
О сколько нам открытий чудных
Готовит просвещенья дух....
|
|
|
|
|
 |
Boris759
Зарегистрирован: Ср 9 Февраль 2011, 08:36
Сообщения: 272
Регион: Belarus
|
Добавлено:
Ср 5 Октябрь 2011, 19:40
|
  |
| Александр Замашка писал(а): |
О сколько нам открытий чудных
Готовит просвещенья дух....  |
век живи-век учись
|
| Описание: |
|
| Размер файла: |
27.62 КБ |
| Просмотров: |
756 раз(а) |

|
|
|
  |
 |
Александр Замашка
Гость
|
Добавлено:
Ср 5 Октябрь 2011, 19:57
|
  |
Супер !
А в чем фишка, почему проход не расширить ?
|
|
|
|
|
 |
Boris759
Зарегистрирован: Ср 9 Февраль 2011, 08:36
Сообщения: 272
Регион: Belarus
|
Добавлено:
Ср 5 Октябрь 2011, 20:13
|
  |
| Александр Замашка писал(а): |
Супер !
А в чем фишка, почему проход не расширить ? |
если плиту бетонировать по месту то можно и расширить-предусмотреть.Здесь так и предполагается.А вообще чем больше дырка-тем больше несущей армотуры придется обрезать,что не есть гут. Особенно это касается пустотных плит,где проделать дырку совпадающую с пустотным каналом плиты-это одно.Резать армотуру чтоб расширить-другое.Там и так несущие стержни стоят между пустотными каналами и на всей плите их немного-сколько и пустот +1. Ну а дом с плитами это как правило не сруб и при нормальном фундаменте осадку больше 1-2см не дает иначе будет аварийным.
Кстати здесь капиталка кирпичная в полтора кирпича и не надо никаких разделок. Помал себя на мысли что ликбез длинноватый вышел,как у Игоря UA
|
|
|
|
  |
 |
Александр Замашка
Гость
|
Добавлено:
Ср 5 Октябрь 2011, 22:23
|
  |
А я прочитал, что у него перекрытия монолитные и железобетонные...
и не какой это не ЛикБез, а сплошная ПОРНОГРАФИЯ, разрывать трубу бетонными перекрытиями...
Прошу прощения ....
|
|
|
|
|
 |
Boris759
Зарегистрирован: Ср 9 Февраль 2011, 08:36
Сообщения: 272
Регион: Belarus
|
Добавлено:
Чт 6 Октябрь 2011, 06:10
|
  |
| Александр Замашка писал(а): |
А я прочитал, что у него перекрытия монолитные и железобетонные...
и не какой это не ЛикБез, а сплошная ПОРНОГРАФИЯ, разрывать трубу бетонными перекрытиями...
Прошу прощения ....  |
можно и не разрывать.Вам проще так-делайте.Кстати на той вашей фотке боров лежащий на балках деревянного дома.
|
|
|
|
  |
 |
Андрей Ищенко
Проектировщик
Зарегистрирован: Вт 7 Февраль 2006, 10:08
Сообщения: 2946
Регион: Пенза
|
Добавлено:
Чт 6 Октябрь 2011, 07:02
|
  |
А не проще отвести дымоход сэндвичем? Борова ведь запрещены!
|
_________________ +7 962 974-10-94 Viber WhatsApp
+7 962 399-59-39
|
|
     |
 |
Boris759
Зарегистрирован: Ср 9 Февраль 2011, 08:36
Сообщения: 272
Регион: Belarus
|
Добавлено:
Чт 6 Октябрь 2011, 07:57
|
  |
| Андрей Ищенко писал(а): |
| А не проще отвести дымоход сэндвичем? Борова ведь запрещены! |
согласен полностью,нагляделся я на эти борова....Со временем ведь балки неминуемо прогибаются под тяжестью кирпича.
|
|
|
|
  |
 |
Александр Замашка
Гость
|
Добавлено:
Чт 6 Октябрь 2011, 08:26
|
  |
А я ващще трубы не делаю, рассказываю заказчикам,что наши предки традиционно топили "по черному" ...
Так сохраняется больше тепла, помещение быстро прогревается и в нем всегда присутствует, приятный легкий запах дымка...
Эти печи пользуются особой популярностью, особенно на Рублевке...
|
|
|
|
|
 |
RedKing
Зарегистрирован: Сб 1 Октябрь 2011, 23:53
Сообщения: 4
Регион: Питер
|
Добавлено:
Чт 6 Октябрь 2011, 11:03
|
  |
Добрый день, господа.
Я рад, что по моему проекту развернулась дискуссия.
| Александр Замашка писал(а): |
| А я прочитал, что у него перекрытия монолитные и железобетонные... |
Так и есть. При выходе стенок на проектную высоту устанавливается опалубка и заливается монолитное перекрытие. Так что размеры прохода под дымоход можно соорудить любые, соответственно усилить критичные места дополнительным армированием.
Как я понял из ваших советов, печь со стеной не перевязывается, оставляется ниша в стене для сооружения печи, дымоход опирать на печь не рекомендуется, лучше его опереть на жб перекрытие 1-го этажа. Т.е. строительство печи не привязано к строительству стены.
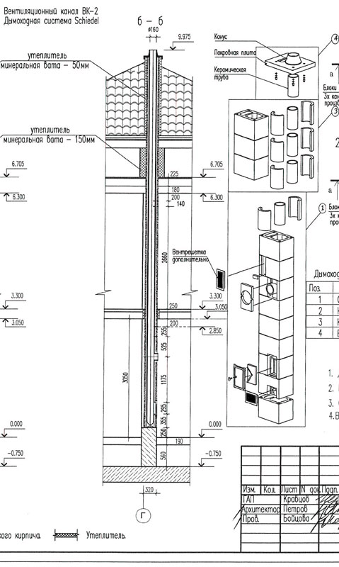
По проекту вентканал-дымоход (дымоход вероятнее всего будет Schiedel UNI) опирается на фундаментную плиту (рисунок ниже) и в последствии к нему пристыковывается камин. Но я хочу заменить данную конструкцию на печь камин ОИК К3, т.е основанием дымохода, по идее, должна являться сама печь.
Какова тогда последовательность стройки?
Проектный рисунок дымохода:
|
| Описание: |
|
| Размер файла: |
76.25 КБ |
| Просмотров: |
964 раз(а) |

|
Последний раз редактировалось: RedKing (Чт 6 Октябрь 2011, 11:12), всего редактировалось 1 раз |
|
  |
 |
RedKing
Зарегистрирован: Сб 1 Октябрь 2011, 23:53
Сообщения: 4
Регион: Питер
|
Добавлено:
Чт 6 Октябрь 2011, 11:10
|
  |
| Александр Замашка писал(а): |
| что наши предки традиционно топили "по черному" .... всегда присутствует, приятный легкий запах дымка |
Нууу, строительство бани "по черному" в проекте
| Александр Замашка писал(а): |
"по черному" ... печи пользуются особой популярностью, особенно на Рублевке...  |
аха, как в анекдоте "с таким настроением ты слона не продашь!"
|
|
|
|
  |
 |
Александр Замашка
Гость
|
Добавлено:
Чт 6 Октябрь 2011, 15:31
|
  |
| RedKing писал(а): |
.....Какова тогда последовательность стройки?
|
Ставьте коренную трубу и к ней боком подсоединяйте печь...
Вес печи ОИК ЗК 6 тонн, пятно усиления под печь проектировщики расчитают сами...
|
|
|
|
|
 |
RedKing
Зарегистрирован: Сб 1 Октябрь 2011, 23:53
Сообщения: 4
Регион: Питер
|
Добавлено:
Чт 6 Октябрь 2011, 17:44
|
  |
Александр Замашка, ну дык у ОИК К3 камин фронтальный, а топка с тылу. Как можно боком подсоединить печь? Да и по эстетическим соображениям не особо хочется видеть в гостинной монумент 1м х 1м.
|
|
|
|
  |
 |
Александр Замашка
Гость
|
Добавлено:
Чт 6 Октябрь 2011, 18:46
|
  |
Сколько будут весить 8 метров двхканальной трубы Шидель ?
|
|
|
|
|
 |
Евгений Колчин

Зарегистрирован: Чт 3 Октябрь 2002, 06:26
Сообщения: 10146
Регион: Москва
|
Добавлено:
Чт 6 Октябрь 2011, 19:14
|
  |
как то так
|
_________________ ************************************
| Описание: |
|
| Размер файла: |
262.98 КБ |
| Просмотров: |
988 раз(а) |

|
|
|
      |
 |
Александр Замашка
Гость
|
Добавлено:
Чт 6 Октябрь 2011, 19:25
|
  |
Канал + вентиляция = 2 тонны...
Можно поставить трубу сверху , на печь.
|
|
|
|
|
 |
pe4ka
Зарегистрирован: Ср 23 Сентябрь 2009, 17:36
Сообщения: 1918
Регион: Туймазы
|
Добавлено:
Пн 10 Октябрь 2011, 17:13
|
  |
А где вы взяли такой проект где печь строится потом.Когда каменщики только углы подняли уже надо поднимть вопрос с печами и каминами.Я уже общался с таким каменщиками им просто невыгодно ждать им кладку надо гнать.Печи и камины им не нужны.А настоящие СТРОИТЕЛИ СТРОИЛИ В БЕЛЕБЕЕВСКОМ УЕЗДЕв д.Знаменка купеческий дом до революции.Там сначала в подвале заложили печь и топочное помещениеа подвалах систему дымоходов для обогрева огромного дома.Печники и строители вместе согласованно ложили дом.Он и до сих пор стоит.При царе батюшке народ мастеровой учился вместе с отцами и дедами проходя по русским городам и весям.Мальчишками метр с кепкой они учились держать ВЕСОК-А сейчас ОТВЕС.Из поколения в поколение передавалось мастерство.В УФЕ до сих пор стоят дома купеческие дореволюционные.Так раствор я пробовал даже гвоздем не царапается.
|
_________________ окажу консультации по кладке печей каминов и их ремонту д51055 код8-34782 сот 8-9173752622 г.Туймазы башкирия
|
|
   |
 |
|
|