| Автор |
Сообщение
|
dytell
Зарегистрирован: Чт 24 Ноябрь 2011, 10:56
Сообщения: 3
Регион: Москва
|
Добавлено:
Чт 24 Ноябрь 2011, 11:20
|
  |
В общем следующая проблема:
Есть каркасный дом 100м с мансардой, МО Одинцово
Режим посещения наездами по выходным круглогодично.
Нужно решение и реализация: либо небольшая печь, либо каминная топка обложенная кипичем, либо готовая буржуйка с пристроенным отопительным щитком. Рассматривается как основное отопление (конвекторы не в счет).
Залита плита метр на метр.
До уровня пола необходимо 40см выкладывать кирпичем и обходить лагу.
Первый этаж 3м, мансарда до места встречи с трубой 2
Реальное время монтажа май 2012.
Объект №2
Нужно сложить барбекюшницу + место под казан.
Впоследствии будет накрыт крышей беседки.
|
|
|
|
  |
 |
Игорь Булгаков
Зарегистрирован: Вт 30 Март 2010, 16:17
Сообщения: 76
Регион: Москва
|
Добавлено:
Чт 24 Ноябрь 2011, 14:04
|
  |
желательно посмотреть план дома
|
_________________ Кладка всех видов кирпичных каминов, печей, барбекю и
печей-каминов
|
|
   |
 |
dytell
Зарегистрирован: Чт 24 Ноябрь 2011, 10:56
Сообщения: 3
Регион: Москва
|
Добавлено:
Чт 24 Ноябрь 2011, 14:35
|
  |
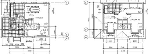
Ну вот какой есть под рукой.
Печь примыкает к лестнице. Не есть гуд, но в этой части ничего не изменить....
|
| Описание: |
|
| Размер файла: |
18.96 КБ |
| Просмотров: |
702 раз(а) |

|
|
|
  |
 |
Куликов Андрей

Зарегистрирован: Вс 30 Январь 2011, 09:15
Сообщения: 1059
Регион: Мичуринск Тамбовская обл.
|
Добавлено:
Пт 25 Ноябрь 2011, 13:19
|
  |
одной печью в любом варианте исполнения все комнаты не прогреете,нужно делать ещё отопление.как вариант,кирпичная печь и подсоединённая буржуйка.начинаете топить обе пока печь с отплением выйдут на нормальный режим буржуйка прогреет воздух.
|
|
|
|
    |
 |
Игорь Булгаков
Зарегистрирован: Вт 30 Март 2010, 16:17
Сообщения: 76
Регион: Москва
|
Добавлено:
Сб 26 Ноябрь 2011, 09:08
|
  |
каминная вставка (топка) более эстетичней чем буржуйка и если вы согласны топить постоянно особенно в зимний период то эфект будет положительным
|
_________________ Кладка всех видов кирпичных каминов, печей, барбекю и
печей-каминов
|
|
   |
 |
Куликов Андрей

Зарегистрирован: Вс 30 Январь 2011, 09:15
Сообщения: 1059
Регион: Мичуринск Тамбовская обл.
|
Добавлено:
Сб 26 Ноябрь 2011, 16:34
|
  |
каминная вставка это таже буржуйка и эфект от них одинаковый ,только вот топить их надо и днём и ночью,иначе будете эстетично мёрзнуть.теплее и эстетичнее кирпича ещё ничего не придумали.
|
|
|
|
    |
 |
Гребенчюк Андрей

Зарегистрирован: Чт 9 Сентябрь 2010, 17:23
Сообщения: 1211
Регион: Ленинградская область
|
Добавлено:
Сб 26 Ноябрь 2011, 20:36
|
  |
можно и так скопировать каминную топку для быстрого прогрева и печь для постоянного тепла
|
|
|
|
  |
 |
dytell
Зарегистрирован: Чт 24 Ноябрь 2011, 10:56
Сообщения: 3
Регион: Москва
|
Добавлено:
Вт 29 Ноябрь 2011, 14:27
|
  |
К сожалению имею недостаток - ночью сплю...
В общем задача сводиться к эффективной протопке дома, а далее видимо будут трудиться электро приборы. Но учитывая реалии свет может пропасть как раз в нужный момент, становиться Карбышевым почему не хочется....
Посему нужен некий теплоаккомулятор, вопрос куда его прикорячить, к буржуйке или каминной топке?!
|
|
|
|
  |
 |
Куликов Андрей

Зарегистрирован: Вс 30 Январь 2011, 09:15
Сообщения: 1059
Регион: Мичуринск Тамбовская обл.
|
Добавлено:
Ср 30 Ноябрь 2011, 06:49
|
  |
каминная топка и буржуйка это одно и тоже только внешний вид разный.
|
|
|
|
    |
 |
Михаил Немов

Зарегистрирован: Ср 19 Ноябрь 2008, 01:09
Сообщения: 291
Регион: Москва Зеленоград
|
Добавлено:
Сб 3 Декабрь 2011, 00:19
|
  |
печь на 1 квадратном метре если и прогреет 100 кв. метров жилья,то недолговечно.То есть на ней вскоре проявятся признаки перетопа-трещины.. Как вариант- печь с регистром.Летом мы такую переделывали за кем-то, о достигнутом эффекте можно будет опросить заказчика в январе- мае.
|
_________________ Строить печи правильно-приятно во всех отношениях! Зеленоград 8-926-262-83-79 www.stovestroy.ru
| Описание: |
|
| Размер файла: |
99.65 КБ |
| Просмотров: |
669 раз(а) |

|
|
|
    |
 |
Александр Володин

Зарегистрирован: Вт 28 Июнь 2011, 00:40
Сообщения: 791
Регион: Нижегородская обл.
|
Добавлено:
Сб 3 Декабрь 2011, 01:14
|
  |
Ещё вариант, это две печи, например одна каминопечь, вторая отопительно-варочная для кухни. Первая быстро отдаёт тепло в виде лучевой энергии, как камин, вторая через плиту или открытую духовку (эффект буржуйки) и обе аккумулируют тепло, чтобы не кочегарить всю ночь и не мёрзнуть под утро.
|
|
|
|
    |
 |
|
|