 |
|
 |
| Автор |
Сообщение
|
Love Pirate
Зарегистрирован: Сб 7 Январь 2012, 20:47
Сообщения: 7
Регион: Россия
|
Добавлено:
Сб 7 Январь 2012, 21:20
|
  |
Голова кругом. Купил недостроенный дом, следующий сезон нужно отопление делать. Дом 6*7,5 : фундамент столбчатый с обвязкой, перекрыт ж/б пустотными плитами 200мм, цоколь - - шлакоблок 400 мм высота 2,4 м перекрыт ж/б пустотными плитами 200мм, этаж - пеноблок 400 мм высота 3 м, дальше деревянное перекрытие, мансарда - пеноблок 400 мм, высота - 2,5м. Стены дома ,в дальнейшем, утеплены вентилируемым сайдингом с утеплителем.
Объем жилого отапливаемого "зимнего" этажа - 135 м*3
Мои мысли - в цокольном этаже сделать сауну, мансарда - как летний не отапливаемый вариант (там большие окна).
Задача - сделать эффективное отопление, сначала хочу поставить резервное ТТ отопление - буржуйку типа "Бавария" плюс отопительный щиток. Все это на плитах перекрытия Выдержат? Труба - сэндвич общая (совмешенная) с трубой печки сауны в цоколе. Мансарда - конвекционное отопление.
В дальнейшем - основное отопление от газового котла, который будет стоять в "малоотапливаемом" пристрое.
Регион - Южный Урал
Вообще это жизнеспособный вариант? Может кто посоветует как лучше сделать, чтоб и бюджетненько и эффективно?
Спасибо
|
| Описание: |
|
| Размер файла: |
141.35 КБ |
| Просмотров: |
941 раз(а) |

|
| Описание: |
|
| Размер файла: |
85.16 КБ |
| Просмотров: |
817 раз(а) |

|
| Описание: |
|
| Размер файла: |
80.38 КБ |
| Просмотров: |
769 раз(а) |

|
|
|
  |
 |
Анатолич

Зарегистрирован: Ср 23 Сентябрь 2009, 23:25
Сообщения: 393
Регион: Рязань
|
Добавлено:
Сб 7 Январь 2012, 22:01
|
  |
По осени в дачном домике не большом по желанию хозяина домика установил Баварию. Как не убеждал человека поставить в те же размеры кирпичную печурку - не убедил. Перед Новым годом пришлось заехать(были кое-какие вопросы) на огонек... В домике тепло, хорошо так... Но вместо Баварии работает большой масляный электрообогреватель!
Расстались на том, что по весне будем думать о кирпиче .
Хотите повторения истории и в Вашем случае?
Чтобы нагреть щиток, нужно будет топить железяку в полный рост. При этом внешний вид Баварии очень скоро перестанет Вас радовать и плюсом к этому полУчите все минусы(простите за каламбур), присущие любой другой буржуйке.
|
Последний раз редактировалось: Анатолич (Сб 7 Январь 2012, 22:07), всего редактировалось 1 раз |
|
    |
 |
Boris759
Зарегистрирован: Ср 9 Февраль 2011, 08:36
Сообщения: 272
Регион: Belarus
|
Добавлено:
Сб 7 Январь 2012, 22:06
|
  |
вашу площадь отпить просто буржуйкой со щитком можно лишь на некотрое время точнее на определенную площадь но не весь дом. Хотите всё отпить печью-надо печь помощнее.Боюсь во все отдаленные помещения и не обогреть,может лучше сразу прикинуть водяное отопление? Если по санузлам и все такое у вас напряг нету то можно соорудить нечто типа каминопечи.Тут печников хватает-обращайтесь.По вашим тут рисункам -без бутылки не поймешь,гораздо проще были б разрезы.Извините если что не так.С калядами!!!
|
|
|
|
  |
 |
Love Pirate
Зарегистрирован: Сб 7 Январь 2012, 20:47
Сообщения: 7
Регион: Россия
|
Добавлено:
Вс 8 Январь 2012, 09:55
|
  |
Огромное спасибо всем откликнувшимся.
Я понимаю что "Бавария" - прибамбас несерьезный для отопления. Отапливаться этим "прибамбасом" постоянно я и не хочу. Но использовать его как резервное отопление - пропал газ, свет - в доме стало темно и холодно, а "Боварию" растопил - можно дальше жить в одной комнате 42 м*2. Такая концепция пройдет?
До момента отопления газом мне еще примерно 1,5 года. Родных же порадовать новым теплым жильем можно уже в этом году. Или все это баловство и нужно думать только в сторону котла?
| Цитата: |
| .По вашим тут рисункам -без бутылки не поймешь,гораздо проще были б разрезы. |
А у меня два рисунка с вертикальными разрезами плоховато видно тока...
Вот разрез жилого этажа
|
| Описание: |
|
| Размер файла: |
85.63 КБ |
| Просмотров: |
779 раз(а) |

|
|
|
  |
 |
Анатолич

Зарегистрирован: Ср 23 Сентябрь 2009, 23:25
Сообщения: 393
Регион: Рязань
|
Добавлено:
Вс 8 Январь 2012, 11:25
|
  |
Ну уж если ставите щиток, то что мешает поставить нормальную печь? И не временно, а навсегда. С возможностью приготовить в ней что-либо. Даже когда подключите газ... Захотелось Вам пирогов, к примеру, а свет отключили. А с печью - свет до лампочки .
42 квадрата качественно обогреть печью весьма не сложно...
|
| Описание: |
|
| Размер файла: |
17.38 КБ |
| Просмотров: |
837 раз(а) |

|
|
|
    |
 |
Love Pirate
Зарегистрирован: Сб 7 Январь 2012, 20:47
Сообщения: 7
Регион: Россия
|
Добавлено:
Пн 9 Январь 2012, 09:35
|
  |
А выдержат ли плиты перекрытия полноценную печку?
|
|
|
|
  |
 |
Андрей_Алексеевич

Зарегистрирован: Пн 13 Декабрь 2010, 19:17
Сообщения: 5959
Регион: малая родина Павлова, Скобелева, Циолковского, Уткиных и др.
|
Добавлено:
Пн 9 Январь 2012, 11:59
|
  |
| Love Pirate писал(а): |
| А выдержат ли плиты перекрытия полноценную печку? |
Поставьте в цоколе столбушки - и разгрузите плиты перекрытия.
По осени рассматривали вариант отопления "дачника" подобной "железкой", но в итоге вот что получилось: http://forum.stovemaster.ru/viewtopic.php?t=5375
|
_________________ Печник - милостью и промыслом Божиим.
Печное отопление частного дома и т.п., авторское сопровождение проектов, наставничество в т.ч. дистанционное, партнёрство в кладке печей.
89106130763 МТС
andrejka61@mail.ru
andrej.kuzmischev@yandex.ru
|
|
   |
 |
Анатолич

Зарегистрирован: Ср 23 Сентябрь 2009, 23:25
Сообщения: 393
Регион: Рязань
|
Добавлено:
Пн 9 Январь 2012, 12:24
|
  |
Достаточно одного, 25*25, с расширениями сверху и снизу до 2х кирпичей. Если угадать в шов между плитами, на которых стоит печь - будет очень хорошо. Дабы обе плиты лежали на одной опоре...
|
|
|
|
    |
 |
Love Pirate
Зарегистрирован: Сб 7 Январь 2012, 20:47
Сообщения: 7
Регион: Россия
|
Добавлено:
Пн 9 Январь 2012, 17:47
|
  |
| Анатолич писал(а): |
| Достаточно одного, 25*25, с расширениями сверху и снизу до 2х кирпичей. Если угадать в шов между плитами, на которых стоит печь - будет очень хорошо. Дабы обе плиты лежали на одной опоре... |
Достаточно будет плиту в плиту упереть? У меня сейчас такая конструкция и такие идеи как это сделать. На данном этапе существует проем между плитами на 2-ом уровне шириной примерно 1 м. На границе проема стена на первом уровне. То бишь плита второго уровня "упирается" в плиту первого уровня за счет стены.
Идеи такие - бросить два швеллера над проемом и на них печь поставить, залив основание - "фундаментную" бетонную плиту сверху швелеров.
Так прокатит?
Андрей Алексеевич
Для меня, как мне кажется, такая печка громоздкая будет. Какую бы выбрать , тем более , если она будет приподнята на швелерах над полом , по моим задумкам, минимум на 300 мм?
|
| Описание: |
|
| Размер файла: |
65.23 КБ |
| Просмотров: |
778 раз(а) |

|
|
|
  |
 |
Андрей_Алексеевич

Зарегистрирован: Пн 13 Декабрь 2010, 19:17
Сообщения: 5959
Регион: малая родина Павлова, Скобелева, Циолковского, Уткиных и др.
|
Добавлено:
Пн 9 Январь 2012, 19:38
|
  |
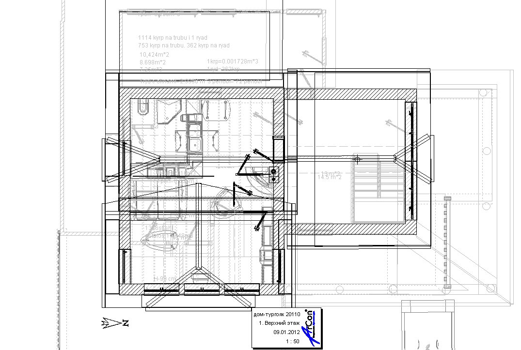
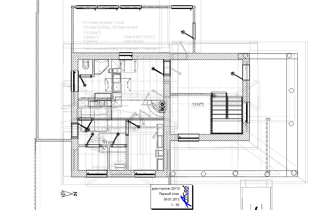
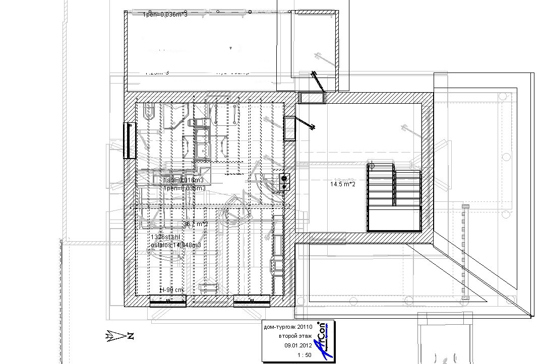
Выкладывайте поэтажный план ПМЖ.
В подобном уже проектировали (кладку выполняли другие, старались...) порядовки такого кирпичного агрегата:
1-й этаж (цоколь) - банная печь-каменка с камино-печью в комнате отдыха + регистр ГВС;
2-й этаж (певый жилой) - отопительно-варочная с ХК (стилизация под РП) с камино-печью (SVT-400) в зале-гостинной+ регистр ГВС;
3-й этаж (летне-осенняя мансарда) - отопительный щиток с параллельно подымающимися ДК (подключаемые по необходимости).
В доме (цокольный этаж) смонтирован ТАК-3 тн.
|
_________________ Печник - милостью и промыслом Божиим.
Печное отопление частного дома и т.п., авторское сопровождение проектов, наставничество в т.ч. дистанционное, партнёрство в кладке печей.
89106130763 МТС
andrejka61@mail.ru
andrej.kuzmischev@yandex.ru
|
|
   |
 |
Love Pirate
Зарегистрирован: Сб 7 Январь 2012, 20:47
Сообщения: 7
Регион: Россия
|
Добавлено:
Пн 9 Январь 2012, 20:48
|
  |
| Андрей_Алексеевич писал(а): |
Выкладывайте поэтажный план ПМЖ.
|
|
| Описание: |
|
| Размер файла: |
82.25 КБ |
| Просмотров: |
526 раз(а) |

|
| Описание: |
|
| Размер файла: |
67.56 КБ |
| Просмотров: |
790 раз(а) |

|
| Описание: |
|
| Размер файла: |
78.3 КБ |
| Просмотров: |
779 раз(а) |

|
|
|
  |
 |
Love Pirate
Зарегистрирован: Сб 7 Январь 2012, 20:47
Сообщения: 7
Регион: Россия
|
Добавлено:
Пн 9 Январь 2012, 20:49
|
  |
| Андрей_Алексеевич писал(а): |
Выкладывайте поэтажный план ПМЖ.
|
|
| Описание: |
|
| Размер файла: |
151.73 КБ |
| Просмотров: |
801 раз(а) |

|
| Описание: |
|
| Размер файла: |
220.05 КБ |
| Просмотров: |
789 раз(а) |

|
| Описание: |
|
| Размер файла: |
155.14 КБ |
| Просмотров: |
786 раз(а) |

|
|
|
  |
 |
Андрей_Алексеевич

Зарегистрирован: Пн 13 Декабрь 2010, 19:17
Сообщения: 5959
Регион: малая родина Павлова, Скобелева, Циолковского, Уткиных и др.
|
Добавлено:
Пн 9 Январь 2012, 21:27
|
  |
А проще прога картинки не выдаёт? только с наложением слоёв...
Здесь впервые встречаю подобные картинки...
Размещайте картинки и заказ на проектирование в разделе "Ищу печника", или "Вопросы практика".
Агрегат то нужен комбинированный - банная печь-каменка с отоплением+готовка+камин.
Об условиях проектирования общайтесь в личке.
УСПЕХОВ!!!
|
_________________ Печник - милостью и промыслом Божиим.
Печное отопление частного дома и т.п., авторское сопровождение проектов, наставничество в т.ч. дистанционное, партнёрство в кладке печей.
89106130763 МТС
andrejka61@mail.ru
andrej.kuzmischev@yandex.ru
|
|
   |
 |
Анатолич

Зарегистрирован: Ср 23 Сентябрь 2009, 23:25
Сообщения: 393
Регион: Рязань
|
Добавлено:
Пн 9 Январь 2012, 21:50
|
  |
[color=orange]Достаточно будет плиту в плиту упереть? У меня сейчас такая конструкция и такие идеи как это сделать. На данном этапе существует проем между плитами на 2-ом уровне шириной примерно 1 м. На границе проема стена на первом уровне. То бишь плита второго уровня "упирается" в плиту первого уровня за счет стены.
Идеи такие - бросить два швеллера над проемом и на них печь поставить, залив основание - "фундаментную" бетонную плиту сверху швелеров.
Так прокатит?
[/color]
Стена, как я понял, под одной из плит? Если да, то под вторую столбик а дальше так, как сами описали .
На одном таком столбике у меня стоит РП года уже 4. Так что ОВП какая-нибудь точно не сломает ничего , ну если там вообще все по уму .
Ну а если печь сдвинуть на стену первого уровня то вообще спокуха! В уровень плит заливаете стяжку(есесьно с предварительным армированием посредством сваривания каркаса между плитами) и вперед! Потребуется, конечно, решить вопросик с подключением печи к дымоходу... Но все тоже решаемо!
|
|
|
|
    |
 |
Love Pirate
Зарегистрирован: Сб 7 Январь 2012, 20:47
Сообщения: 7
Регион: Россия
|
Добавлено:
Вт 10 Январь 2012, 07:56
|
  |
| Анатолич писал(а): |
Стена, как я понял, под одной из плит? Если да, то под вторую столбик а дальше так, как сами описали .
На одном таком столбике у меня стоит РП года уже 4. Так что ОВП какая-нибудь точно не сломает ничего , ну если там вообще все по уму .
Ну а если печь сдвинуть на стену первого уровня то вообще спокуха! В уровень плит заливаете стяжку(есесьно с предварительным армированием посредством сваривания каркаса между плитами) и вперед! Потребуется, конечно, решить вопросик с подключением печи к дымоходу... Но все тоже решаемо!  |
Ага, понятно. Огромное спасибо, щас над проектом репу чесать буду.
|
|
|
|
  |
 |
|
|
|
Следующая тема
Предыдущая тема
Вы не можете начинать темы Вы не можете отвечать на сообщения Вы не можете редактировать свои сообщения Вы не можете удалять свои сообщения Вы не можете голосовать в опросах Вы не можете добавлять приложения в этом форуме Вы можете скачивать файлы в этом форуме
|
|