| Автор |
Сообщение
|
Еленка_
Зарегистрирован: Чт 8 Сентябрь 2011, 08:43
Сообщения: 11
Регион: Москва
|
Добавлено:
Чт 8 Сентябрь 2011, 08:50
|
  |
Выбрали баню-гостевой дом, в ближайшее время планируем залить ленточный фундамент. Хотим потом поставить печку каменку. Возник вопрос, с заливкой ленты видимо целесообразно залить фундамент под печь, но не знаем какого размера и в каком месте это лучше сделать. Мастера, помогите, пожалуйста, определиться. План прилагаю. И еще: баня будет в два этажа, хотелось бы чтоб при топке грелось помещение через стенку и 2-й этаж. Это реально?
|
| Описание: |
|
| Размер файла: |
56.22 КБ |
| Просмотров: |
1083 раз(а) |

|
|
|
  |
 |
Андрей Ищенко
Проектировщик
Зарегистрирован: Вт 7 Февраль 2006, 10:08
Сообщения: 2946
Регион: Пенза
|
Добавлено:
Чт 8 Сентябрь 2011, 11:20
|
  |
Первый этаж отопим, второй сложнее.
|
_________________ +7 962 974-10-94 Viber WhatsApp
+7 962 399-59-39
| Описание: |
|
| Размер файла: |
27.38 КБ |
| Просмотров: |
987 раз(а) |

|
|
|
     |
 |
Еленка_
Зарегистрирован: Чт 8 Сентябрь 2011, 08:43
Сообщения: 11
Регион: Москва
|
Добавлено:
Чт 8 Сентябрь 2011, 11:44
|
  |
Спасибо!
А этот периметр видимо надо полностью залить, я правильно понимаю?
Ага и тогда мне бы еще понимать где труба будет проходить, чтоб лаги правильно положить.
|
| Описание: |
|
| Размер файла: |
48.81 КБ |
| Просмотров: |
923 раз(а) |

|
|
|
  |
 |
Андрей Ищенко
Проектировщик
Зарегистрирован: Вт 7 Февраль 2006, 10:08
Сообщения: 2946
Регион: Пенза
|
Добавлено:
Чт 8 Сентябрь 2011, 13:18
|
  |
Фундамент можно сделать шире печки, труба в правом или левом верхних углах печи, 52х52 см.
|
_________________ +7 962 974-10-94 Viber WhatsApp
+7 962 399-59-39
|
|
     |
 |
Шура

Зарегистрирован: Чт 8 Январь 2009, 20:09
Сообщения: 4171
Регион: Москва - Тамбов
|
Добавлено:
Чт 8 Сентябрь 2011, 15:27
|
  |
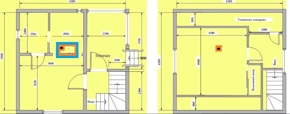
| Еленка_ писал(а): |
Спасибо!
А этот периметр видимо надо полностью залить, я правильно понимаю?
Ага и тогда мне бы еще понимать где труба будет проходить, чтоб лаги правильно положить. |
Можно так, синим показан фундамент печи.
|
| Описание: |
|
| Размер файла: |
78.3 КБ |
| Просмотров: |
1158 раз(а) |

|
|
|
   |
 |
Еленка_
Зарегистрирован: Чт 8 Сентябрь 2011, 08:43
Сообщения: 11
Регион: Москва
|
Добавлено:
Чт 8 Сентябрь 2011, 15:53
|
  |
Печь стоит ровно посередине стены? И можно как-то с размерами указать?
|
|
|
|
  |
 |
Андрей Ищенко
Проектировщик
Зарегистрирован: Вт 7 Февраль 2006, 10:08
Сообщения: 2946
Регион: Пенза
|
Добавлено:
Чт 8 Сентябрь 2011, 16:46
|
  |
| Еленка_ писал(а): |
| Печь стоит ровно посередине стены? И можно как-то с размерами указать? |
Если вопрос ко мне, то размеры указаны, и от правой стены печь отодвинута на пожаробезопасное расстояние 25 см. (на рисунке лежит кирпич).
|
_________________ +7 962 974-10-94 Viber WhatsApp
+7 962 399-59-39
|
|
     |
 |
pe4ka
Зарегистрирован: Ср 23 Сентябрь 2009, 17:36
Сообщения: 1918
Регион: Туймазы
|
Добавлено:
Пт 16 Сентябрь 2011, 18:51
|
  |
Очень важно с дымоходами решить не потом а сейчас и на сколько каналоа будет ли камин.На втором этаже надо отдельную печь со своей топкой.В вашем случае зеркало теплового излучения печи должно греть несколько комнат.В какорй стадии стройка.Вариант печь для нагрва комнат с камином а БАННАЯ по черному пойдет или нет...ПРИВЕТ всем из солнечной башкирии.Помни посетитель форума печь без ВАЛУНОВ И БЕЗ РАСКАЛЕННЫХ ДОБЕЛА КАМНЕЙ НЕ ПЕЧЬ КАМЕНКА.Это просто кирпичная печь.И на форуме енадо четео разделить где кирпичные печи а где печи каменки-от слова камни...
|
_________________ окажу консультации по кладке печей каминов и их ремонту д51055 код8-34782 сот 8-9173752622 г.Туймазы башкирия
|
|
   |
 |
Еленка_
Зарегистрирован: Чт 8 Сентябрь 2011, 08:43
Сообщения: 11
Регион: Москва
|
Добавлено:
Вт 11 Октябрь 2011, 16:24
|
  |
| pe4ka писал(а): |
| .В какорй стадии стройка.Вариант печь для нагрва комнат с камином а БАННАЯ по черному пойдет или нет...ПРИВЕТ всем из солнечной башкирии.Помни посетитель форума печь без ВАЛУНОВ И БЕЗ РАСКАЛЕННЫХ ДОБЕЛА КАМНЕЙ НЕ ПЕЧЬ КАМЕНКА.Это просто кирпичная печь.И на форуме енадо четео разделить где кирпичные печи а где печи каменки-от слова камни... |
Стройка в начальной стадии, поэтому и пытаюсь понять как сделать лучше фундамент, чтоб не мучится потом.
|
|
|
|
  |
 |
Еленка_
Зарегистрирован: Чт 8 Сентябрь 2011, 08:43
Сообщения: 11
Регион: Москва
|
Добавлено:
Пн 14 Ноябрь 2011, 20:29
|
  |
Залили фундамен, заложили под печь 1,17 на 0,91 буду благодарна за прект печи, цель писала в первом посте.
|
|
|
|
  |
 |
ЮрийК
Зарегистрирован: Пт 6 Январь 2012, 10:32
Сообщения: 14
Регион: Москва
|
Добавлено:
Пт 6 Январь 2012, 14:15
|
  |
Есть такая печька, которая позволит отопить: и первый этаж, и второй этаж , и париться в бане.
Или проблема решена???
|
|
|
|
  |
 |
Еленка_
Зарегистрирован: Чт 8 Сентябрь 2011, 08:43
Сообщения: 11
Регион: Москва
|
Добавлено:
Вс 8 Январь 2012, 21:26
|
  |
Нет пока отстаивается банька, остальные работы по весне
|
|
|
|
  |
 |
Андрей_Алексеевич

Зарегистрирован: Пн 13 Декабрь 2010, 19:17
Сообщения: 5969
Регион: малая родина Павлова, Скобелева, Циолковского, Уткиных и др.
|
Добавлено:
Вс 8 Январь 2012, 21:58
|
  |
| Еленка_ писал(а): |
| Залили фундамен, заложили под печь 1,17 на 0,91 буду благодарна за прект печи, цель писала в первом посте. |
Покажите на плане 1-го этажа расположение фундамента под печь-каменку.
Сам сделал бы вот так, как-то...
|
_________________ Печник - милостью и промыслом Божиим.
Печное отопление частного дома и т.п., авторское сопровождение проектов, наставничество в т.ч. дистанционное, партнёрство в кладке печей.
89106130763 МТС
andrejka61@mail.ru
andrej.kuzmischev@yandex.ru
| Описание: |
|
| Размер файла: |
49.12 КБ |
| Просмотров: |
908 раз(а) |

|
| Описание: |
|
| Размер файла: |
42.36 КБ |
| Просмотров: |
824 раз(а) |

|
|
|
   |
 |
ЮрийК
Зарегистрирован: Пт 6 Январь 2012, 10:32
Сообщения: 14
Регион: Москва
|
Добавлено:
Вс 8 Январь 2012, 22:47
|
  |
Необходимые условия заливки фундамента под печь:
1. фундамент должен примыкать к стенам помещений, которые нужно обогревать на первом этаже;
2. труба должна выходить в помещение на втором этаже, которое нужно обогревать;
3. расстояние между балками перекрытия над печкой не менее 60 см. а лучше 80 см.
4. размеры фундамента: размер печи + 30 см. на каждую сторону.
5. фундамент не доводить до пола 25-35 см.
|
|
|
|
  |
 |
Андрей_Алексеевич

Зарегистрирован: Пн 13 Декабрь 2010, 19:17
Сообщения: 5969
Регион: малая родина Павлова, Скобелева, Циолковского, Уткиных и др.
|
Добавлено:
Пн 9 Январь 2012, 09:50
|
  |
| Еленка_ писал(а): |
| Нет пока отстаивается банька, остальные работы по весне |
А "техническое помещение" 80 см - оно Вам надо???
Подымите стены до уровня подоконников второго этажа , а уже от них ведите крышу!!!
Самое место!!! для диванов-кроватей!!!
А уж выгода по площадям!!! на единицу капитальных вложений в фундамент-стены-крыша-отопление...
|
_________________ Печник - милостью и промыслом Божиим.
Печное отопление частного дома и т.п., авторское сопровождение проектов, наставничество в т.ч. дистанционное, партнёрство в кладке печей.
89106130763 МТС
andrejka61@mail.ru
andrej.kuzmischev@yandex.ru
| Описание: |
|
| Размер файла: |
34.83 КБ |
| Просмотров: |
862 раз(а) |

|
|
|
   |
 |
Еленка_
Зарегистрирован: Чт 8 Сентябрь 2011, 08:43
Сообщения: 11
Регион: Москва
|
Добавлено:
Пн 9 Январь 2012, 15:42
|
  |
| Андрей_Алексеевич писал(а): |
| Еленка_ писал(а): |
| Залили фундамен, заложили под печь 1,17 на 0,91 буду благодарна за прект печи, цель писала в первом посте. |
Покажите на плане 1-го этажа расположение фундамента под печь-каменку.
Сам сделал бы вот так, как-то... |
Фундамент залит, как во 2м посте Андрей Ищенко советовал.
А на счет поднять стены уже поздно. Избушка стоит уже.
|
|
|
|
  |
 |
Андрей_Алексеевич

Зарегистрирован: Пн 13 Декабрь 2010, 19:17
Сообщения: 5969
Регион: малая родина Павлова, Скобелева, Циолковского, Уткиных и др.
|
Добавлено:
Пн 9 Январь 2012, 19:24
|
  |
Свою рисую вот уже который год, используя опыт строительства и эксплуатации у друзей-заказчиков...
И вопросы материалоёмкости (а, значит, себестоимости м.кв.) - отнюдь не на последнем....
|
_________________ Печник - милостью и промыслом Божиим.
Печное отопление частного дома и т.п., авторское сопровождение проектов, наставничество в т.ч. дистанционное, партнёрство в кладке печей.
89106130763 МТС
andrejka61@mail.ru
andrej.kuzmischev@yandex.ru
|
|
   |
 |
ЮрийК
Зарегистрирован: Пт 6 Январь 2012, 10:32
Сообщения: 14
Регион: Москва
|
Добавлено:
Пн 9 Январь 2012, 22:42
|
  |
| Еленка_ писал(а): |
| Нет пока отстаивается банька, остальные работы по весне |
А где техническое задание на обогревательный комплекс?
Условия эксплуатации: лето? зима? постоянное проживание? наездами? чем топить? сколько воды греть? банные предпочтения? утепление? климатическая зона?
И только после этого можно что-то придумывать.
Весна уже не за горами.
|
|
|
|
  |
 |
Еленка_
Зарегистрирован: Чт 8 Сентябрь 2011, 08:43
Сообщения: 11
Регион: Москва
|
Добавлено:
Вт 10 Январь 2012, 08:59
|
  |
| ЮрийК писал(а): |
| Еленка_ писал(а): |
| Нет пока отстаивается банька, остальные работы по весне |
А где техническое задание на обогревательный комплекс?
Условия эксплуатации: лето? зима? постоянное проживание? наездами? чем топить? сколько воды греть? банные предпочтения? утепление? климатическая зона?
И только после этого можно что-то придумывать.
Весна уже не за горами. |
Проживание наездами, но хочется поддерживать плюсовую температуру, чтоб не сливать системы водоснабжения. Топить дровами, режим в бане ближе к русской бане (чтоб уши в трубочку не сворачивались). Про утепление не поняла вопрос. Баня во Владимирской области.
|
|
|
|
  |
 |
ЮрийК
Зарегистрирован: Пт 6 Январь 2012, 10:32
Сообщения: 14
Регион: Москва
|
Добавлено:
Вт 10 Январь 2012, 21:21
|
  |
| Еленка_ писал(а): |
| Нет пока отстаивается банька, остальные работы по весне |
Если за бортом -30, то для подъдержания плюсовой температуры нужен постоянный обогрев.
Чем греть будете?
Чем планируете утеплять стены, потолок особенно второй этаж?
Или планируете дублировать систему отопления?
|
|
|
|
  |
 |
|
|