 |
|
 |
| Автор |
Сообщение
|
dmitrys
Зарегистрирован: Пн 27 Август 2012, 12:57
Сообщения: 8
Регион: msk
|
Добавлено:
Пн 27 Август 2012, 13:16
|
  |
Приветствую.
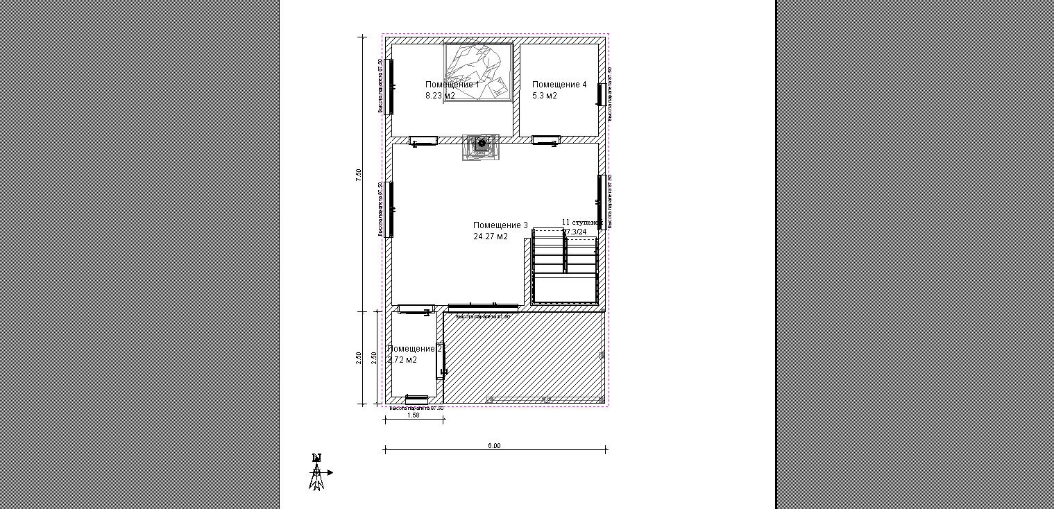
Требуется печь для отопления двухэтажного дома зимой (основной источник отопления), с каминной дверкой на первом этаже. Во вторую очередь неплохо бы заиметь варочную поверхность в ней же, если от этого сильно не пострадает обогрев дома.
Материал дома - 190*190 профбрус.
Площадь - 6*7,5.
Высота первого этажа 2,9, второго - стены 1,5, в коньке 3,5.
Фундамент дома планируется свайно-винтовой.
Место - МО, Барыбино.
Вложен проект - расположение стен второго этажа не совсем верное, труба должна быть на стыке стен, т.к. будет 3я комната - планировка на втором этаже пока свободная и будет зависеть от рекомендаций по печи.
Стена у которой стоит печь на первом этаже - профбрус 140.
Пожелания по внешнему виду:
1. не очень габаритная (по возможности)
2. оформление по минимуму
Главное требование - практичность.
Бюджет - эконом.
п.с. Пользуясь случаем ищу печника. В этом году нужна консультация по фундаменту, в следующем году сборка печи.
|
| Описание: |
|
| Размер файла: |
243.77 КБ |
| Просмотров: |
707 раз(а) |

|
| Описание: |
|
| Размер файла: |
346.05 КБ |
| Просмотров: |
759 раз(а) |

|
| Описание: |
|
| Размер файла: |
345.68 КБ |
| Просмотров: |
763 раз(а) |

|
|
|
  |
 |
Вогнистый Владимир

Зарегистрирован: Сб 7 Апрель 2012, 16:13
Сообщения: 811
Регион: Мариуполь, Украина
|
Добавлено:
Пн 27 Август 2012, 17:49
|
  |
|
    |
 |
dmitrys
Зарегистрирован: Пн 27 Август 2012, 12:57
Сообщения: 8
Регион: msk
|
Добавлено:
Пн 27 Август 2012, 20:38
|
  |
Не очень понял что там смотреть, слишком много деталей чтобы сразу вникнуть. попробую вторым подходом позже
Пока понравилась ОВИК20 Владимира Солина.
|
|
|
|
  |
 |
Boris759
Зарегистрирован: Ср 9 Февраль 2011, 08:36
Сообщения: 272
Регион: Belarus
|
Добавлено:
Вт 28 Август 2012, 06:42
|
  |
| dmitrys писал(а): |
Приветствую.
Требуется печь для отопления двухэтажного дома зимой (основной источник отопления), с каминной дверкой на первом этаже. Во вторую очередь неплохо бы заиметь варочную поверхность в ней же, если от этого сильно не пострадает обогрев дома.
Материал дома - 190*190 профбрус.
Площадь - 6*7,5.
Высота первого этажа 2,9, второго - стены 1,5, в коньке 3,5.
Фундамент дома планируется свайно-винтовой.
Место - МО, Барыбино.
Вложен проект - расположение стен второго этажа не совсем верное, труба должна быть на стыке стен, т.к. будет 3я комната - планировка на втором этаже пока свободная и будет зависеть от рекомендаций по печи.
Стена у которой стоит печь на первом этаже - профбрус 140.
Пожелания по внешнему виду:
1. не очень габаритная (по возможности)
2. оформление по минимуму
Главное требование - практичность.
Бюджет - эконом.
п.с. Пользуясь случаем ищу печника. В этом году нужна консультация по фундаменту, в следующем году сборка печи. |
А "помещение 1" предполагается не греть?
|
|
|
|
  |
 |
dmitrys
Зарегистрирован: Пн 27 Август 2012, 12:57
Сообщения: 8
Регион: msk
|
Добавлено:
Вт 28 Август 2012, 10:10
|
  |
Если речь о помещении 1 на втором этаже: "Вложен проект - расположение стен второго этажа не совсем верное, труба должна быть на стыке стен, т.к. будет 3я комната - планировка на втором этаже пока свободная и будет зависеть от рекомендаций по печи."
Поэтому предполагается греть.
|
|
|
|
  |
 |
Вогнистый Владимир

Зарегистрирован: Сб 7 Апрель 2012, 16:13
Сообщения: 811
Регион: Мариуполь, Украина
|
Добавлено:
Вс 9 Сентябрь 2012, 22:50
|
  |
плохо открываетса планировка кроме печи огромную роль играют простенки в которых находятся обогр.каналы, которые за частую не используют хотя какой потонцеал...
|
_________________ Печь - это душа дома!!!
|
|
    |
 |
|
|
|
Следующая тема
Предыдущая тема
Вы не можете начинать темы Вы не можете отвечать на сообщения Вы не можете редактировать свои сообщения Вы не можете удалять свои сообщения Вы не можете голосовать в опросах Вы не можете добавлять приложения в этом форуме Вы можете скачивать файлы в этом форуме
|
|