| Автор |
Сообщение
|
dmitry-ra
Зарегистрирован: Вс 12 Август 2012, 23:28
Сообщения: 1
Регион: Пущино
|
Добавлено:
Вс 12 Август 2012, 23:41
|
  |
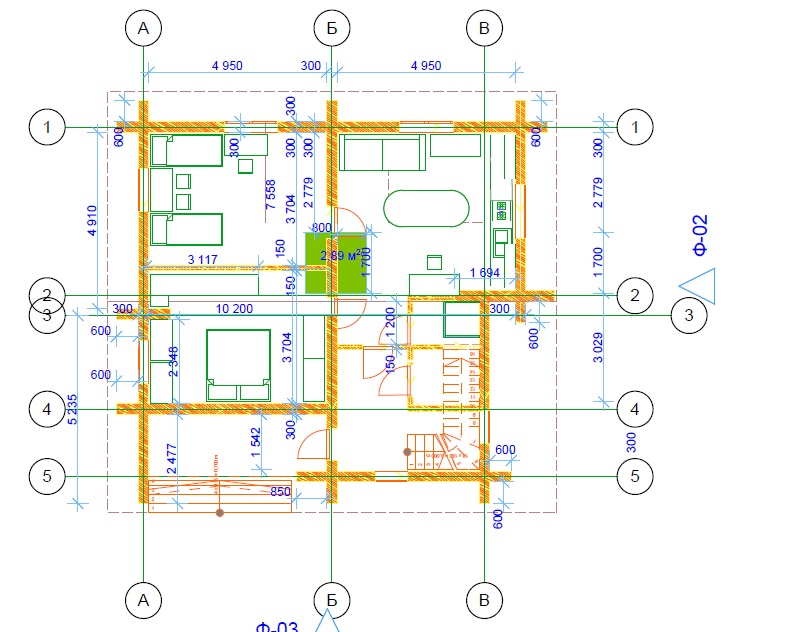
На плане много всего нарисовано. Печь зеленым цветом.
Отапливаемая площадь 1го этажа дома 60м2
Вопрос - какую печь поставить для отопления 1го этажа с возможностью отопления 2го. Планируем большое семейство с возможностью выселения старшего поколения на 2ой этаж Еще важно что печь отопительно варочная со змеевиком планируется.
Сейчас планируем залить под печь 180 на 180 фундамент, не связанный с ленточным мелкозаглубленным фундаментом дома. Еще вопрос- как организовать глубину фундамента под такую печь? Сколько см песка, на сколько заглублять железобетонный фундамент печи? Вот такие вопросы.
Строительство фундамента дома вот вот начнется- прошу совета!
|
| Описание: |
|
| Размер файла: |
134.16 КБ |
| Просмотров: |
806 раз(а) |

|
|
|
  |
 |
Elm

Зарегистрирован: Пн 12 Декабрь 2011, 13:23
Сообщения: 1413
Регион: Первомайск (на Южном Буге)
|
Добавлено:
Пн 13 Август 2012, 10:04
|
  |
а) Теплопотери дома надо - посчитайте в среднем и на каждую комнату.
б) Сейчас Вы поместили печь в разрыв несущей стены да еще рядом два проема дверей - был ли проведен расчет такой возможности?
в) Фундамент под печь делается исходя их ее веса и типа грунта.
|
|
|
|
    |
 |
Шура

Зарегистрирован: Чт 8 Январь 2009, 20:09
Сообщения: 4171
Регион: Москва - Тамбов
|
Добавлено:
Пн 13 Август 2012, 15:49
|
  |
| dmitry-ra писал(а): |
| Строительство фундамента дома вот вот начнется- прошу совета! |
В вашем случае, идеальным будет плитный фундамент(будет дешевле и капитальнее).
Но если хочется именно ленту, то фундамент под печь лучше сделать заодно с лентой, но обязательно надо железобетоную ленту с перекрестием в районе печи(примерно как на рисунке.)
|
| Описание: |
|
| Размер файла: |
32.11 КБ |
| Просмотров: |
705 раз(а) |

|
|
|
   |
 |
Elm

Зарегистрирован: Пн 12 Декабрь 2011, 13:23
Сообщения: 1413
Регион: Первомайск (на Южном Буге)
|
Добавлено:
Пн 13 Август 2012, 16:06
|
  |
Шура, при таком размещении нижняя-левая комната будет холодной
Можно попробовать печь поставить "ромбом" - под 45 градусов к сторонам дома...
|
|
|
|
    |
 |
Юрий74

Зарегистрирован: Пн 7 Март 2011, 09:16
Сообщения: 142
Регион: Челябинская обл. г. Миасс
|
Добавлено:
Вт 14 Август 2012, 07:58
|
  |
|
      |
 |
Владимир Солин

Зарегистрирован: Ср 9 Сентябрь 2009, 12:52
Сообщения: 3804
Регион: Череповец
|
Добавлено:
Вт 14 Август 2012, 08:53
|
  |
Шура, при промерзании первыми поднимутся стенки дома и попытаются приподнять печку. Лопнут или нет балки фундамента? И если лопнут то со всех сторон или нет? Что из этого получится представить не сложно.
|
_________________ САМОназначенный дебил форума в 2017году
|
|
  |
 |
Шура

Зарегистрирован: Чт 8 Январь 2009, 20:09
Сообщения: 4171
Регион: Москва - Тамбов
|
Добавлено:
Вт 14 Август 2012, 10:23
|
  |
| Владимир Солин писал(а): |
Шура, при промерзании первыми поднимутся стенки дома и попытаются приподнять печку. Лопнут или нет балки фундамента? И если лопнут то со всех сторон или нет? Что из этого получится представить не сложно.  |
Поэтому я и советую плиту, а если уж ленту, то обязательно железобетонную.
Вопрос с промерзанием и поднятием, решается соответствующими, стандартными мерами и строительными приемами(утеплением и т.д.).
|
|
|
|
   |
 |
Владимир Солин

Зарегистрирован: Ср 9 Сентябрь 2009, 12:52
Сообщения: 3804
Регион: Череповец
|
Добавлено:
Вт 14 Август 2012, 11:20
|
  |
[quote="Шура"]
| dmitry-ra писал(а): |
| ... если хочется именно ленту, то фундамент под печь лучше сделать заодно с лентой, но обязательно надо железобетоную ленту с перекрестием в районе печи. |
я с этим не согласен
Мое мнение - рассчитывать примерно равные нагрузки на грунт от фундамента дома и от стоящей отдельно от него печки. Если давления примерно одинавковы - будут ходить зимой по отдельности. Не разрушая друг друга.
|
_________________ САМОназначенный дебил форума в 2017году
|
|
  |
 |
Шура

Зарегистрирован: Чт 8 Январь 2009, 20:09
Сообщения: 4171
Регион: Москва - Тамбов
|
Добавлено:
Вт 14 Август 2012, 11:57
|
  |
| Владимир Солин писал(а): |
я с этим не согласен
Мое мнение - рассчитывать примерно равные нагрузки на грунт от фундамента дома и от стоящей отдельно от него печки. Если давления примерно одинавковы - будут ходить зимой по отдельности. Не разрушая друг друга. |
По такой логике, все внутренние несущие стены(в кирпичном доме), должны стоять каждая на своём независимом фундаменте...
|
|
|
|
   |
 |
Владимир Солин

Зарегистрирован: Ср 9 Сентябрь 2009, 12:52
Сообщения: 3804
Регион: Череповец
|
Добавлено:
Вт 14 Август 2012, 13:13
|
  |
Нет, внутренние стенки практически можно не брать во внимание, легкие они у наших небольших домов. Или вообще каркасные. У больших - к проектировщикам.
У меня давление на грунт от печки и от дома как от меня с женой на руках, стоящего на одной ноге. Специально считал с чем сравнить. )) Песок такое давление держит легко.
|
_________________ САМОназначенный дебил форума в 2017году
|
|
  |
 |
Elm

Зарегистрирован: Пн 12 Декабрь 2011, 13:23
Сообщения: 1413
Регион: Первомайск (на Южном Буге)
|
Добавлено:
Вт 14 Август 2012, 13:47
|
  |
Разбирал довольно много печей, что стояли вообще без фундамента - на утрамбованный глине грунта... и так ничего, трещин нет, если бы не прогорали со временем стояли бы еще лет 50 )))
|
|
|
|
    |
 |
Шура

Зарегистрирован: Чт 8 Январь 2009, 20:09
Сообщения: 4171
Регион: Москва - Тамбов
|
Добавлено:
Вт 14 Август 2012, 14:23
|
  |
| Владимир Солин писал(а): |
| Нет, внутренние стенки практически можно не брать во внимание, легкие они |
Легкие?
Несущие стены в доме например из газосиликата, делаются из кирпича, толщиной в кирпич, и на всю высоту. На них ещё и плиты перекрытия кладут, когда домк двухэтажный или мансардный...
|
|
|
|
   |
 |
Владимир Солин

Зарегистрирован: Ср 9 Сентябрь 2009, 12:52
Сообщения: 3804
Регион: Череповец
|
Добавлено:
Вт 14 Август 2012, 15:02
|
  |
Я считал, что мой 2х этажный 40т весить будет. Это фигня.
|
_________________ САМОназначенный дебил форума в 2017году
|
|
  |
 |
Вогнистый Владимир

Зарегистрирован: Сб 7 Апрель 2012, 16:13
Сообщения: 811
Регион: Мариуполь, Украина
|
Добавлено:
Ср 15 Август 2012, 17:16
|
  |
Все зависит от грунта и от того, как утеплен внешний фундамент. согласен с Elmом, у на в Донбассе большинство печей стоит просто на утрамбованной глине. А вот обогревательный щиток стоит на фундаменте, который в з раза меньше чем наружный. Но у нас другая специфик - обогревательные щитки стоят отдельно от печи и не "перевязанные" вместе. И сам щиток облегченный и находится в простенках.
|
_________________ Печь - это душа дома!!!
|
|
    |
 |
Вогнистый Владимир

Зарегистрирован: Сб 7 Апрель 2012, 16:13
Сообщения: 811
Регион: Мариуполь, Украина
|
Добавлено:
Пн 27 Август 2012, 17:58
|
  |
|
    |
 |
|
|