 |
|
 |
| Автор |
Сообщение
|
Снежана
Зарегистрирован: Пн 7 Декабрь 2009, 09:47
Сообщения: 1
Регион: Калининград
|
Добавлено:
Вт 1 Октябрь 2013, 11:01
|
  |
Доброго всем дня ! !
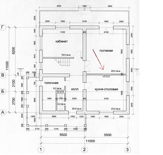
Я совсем пока не разбираюсь в печах. Мы строим дом, пока только дошли до второго этажа, но сейчас уже надо планировать, где будет труба печи, чтобы делать перекрытия.
Прикладываю планировку дома. Вверху, такие же комнаты, стрелкой указала, там где будет печка.
Отопление у нас будет. Но бывают частые отключения света, и поэтому хотелось бы какое то автономное отопление. Конечно хотелось бы чтобы все комнаты отапливались, но у нас получается только нижние две.
Вопрос
1. Можно ли сделать, чтобы отапливался и второй этаж, например каким то образом теплый воздух поступал вверх. И конечно же не из кухни.
а) какие то вент каналы, по которым по самотеку воздух будет идти вверх, как это сделать ?
или
б) ещё не понимаю как, но каким то образом поднять печь до второго этажа, за счет увеличения рядов в печи ? (прошу прощения если где то будет и глупый вопрос, объясните как для непонимающего, чтобы он мог понять что надо ему знать и где копать ) )))
Мы выбрали Т образную печь ОИК 3. Оригинал печи тут, на сайте Кузнецова
http://www.stove.ru/index.php?lng=0&rs=18&sf=1
http://www.stove.ru/index.php?lng=0&rs=138 Это чертеж.
МЫ полные чайники в строительстве, зимой будет свободное время от стройки, поэтому будем учиться на кошечках ))), читать, и все таки муж хочет сделать печку сам.
Вопрос
2. Можно ли эту печь растянуть по стене, т.е сама шапка буквы Т начнется на фундаменте печки, потом перейдет на сам фундамент ?
И можно ли менять в этом месте порядовку , т.е увеличить количество кирпичей слева и справа. Как ?
Размер фундамента под печь 154*115 , посередине крест-фундамент 40 см.
Плохо, но уже ничего не поделаешь, фундамент связан с фундаментом под печь.
Заглубление фундамента примерно 175 см. Ширина фундамента по периметру дома, где лежат керамические блоки , ширина блоком 51 см.
Фундамент мощный. Надеемся , что сдюжит, тем более хотим сделать хорошую изоляцию, пока ещё не знаем какую, но понимаем что Надо делать !!
С уважением к талантливым и мастеровым людям,
Снежана
|
| Описание: |
|
| Размер файла: |
121.63 КБ |
| Просмотров: |
1077 раз(а) |

|
| Описание: |
|
| Размер файла: |
23.99 КБ |
| Просмотров: |
990 раз(а) |

|
| Описание: |
|
| Размер файла: |
52.23 КБ |
| Просмотров: |
904 раз(а) |

|
|
|
  |
 |
pe4ka
Зарегистрирован: Ср 23 Сентябрь 2009, 17:36
Сообщения: 1918
Регион: Туймазы
|
Добавлено:
Ср 2 Октябрь 2013, 13:41
|
  |
Т-образная печь есть 2-х видов.Когда Вы ее начинаете строить?
|
_________________ окажу консультации по кладке печей каминов и их ремонту д51055 код8-34782 сот 8-9173752622 г.Туймазы башкирия
|
|
   |
 |
|
|
|
Следующая тема
Предыдущая тема
Вы не можете начинать темы Вы не можете отвечать на сообщения Вы не можете редактировать свои сообщения Вы не можете удалять свои сообщения Вы не можете голосовать в опросах Вы не можете добавлять приложения в этом форуме Вы можете скачивать файлы в этом форуме
|
|