| Автор |
Сообщение
|
Баранов Я.В.
Зарегистрирован: Вт 9 Октябрь 2012, 20:42
Сообщения: 7
Регион: г.Владимир
|
Добавлено:
Чт 10 Январь 2013, 19:25
|
  |
Здравствуйте!
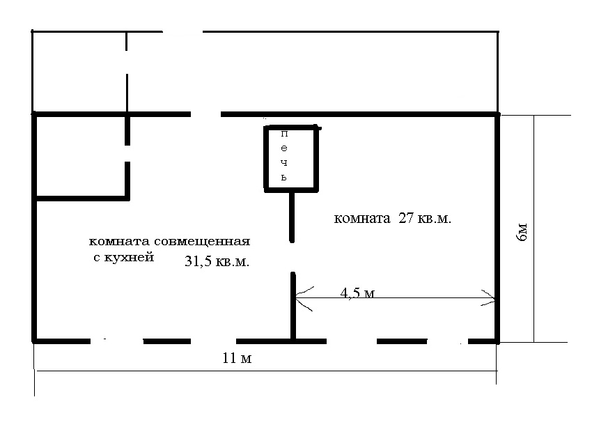
Дом из клееного бруса 150*200 первый этаж теплый, второй - утепленная мансарда.
Пол, потолок и крыша утепленные.
Выстота от пола до конька 5м.
Окна - стеклопакеты.
Основное отопление - эл.конвекторы 5кВт
Дом будет использоваться круглогодично как дачный.
Печь нужна как дополнительное отопление на зиму.
Хочется чтобы она занимала как можно меньше места, как часть стены. Фундамент под печь готов.
[/img]
|
| Описание: |
|
| Размер файла: |
40.33 КБ |
| Просмотров: |
697 раз(а) |

|
|
|
  |
 |
Dreamdavids
Зарегистрирован: Сб 29 Октябрь 2011, 07:18
Сообщения: 1105
Регион: Пермь
|
Добавлено:
Чт 10 Январь 2013, 19:36
|
  |
Фундамент какого размера?
|
_________________ +79222445758 Владимир
|
|
  |
 |
Баранов Я.В.
Зарегистрирован: Вт 9 Октябрь 2012, 20:42
Сообщения: 7
Регион: г.Владимир
|
Добавлено:
Чт 10 Январь 2013, 19:39
|
  |
Фундамент чуть больше (точно сейчас не помню) 2*1м
|
|
|
|
  |
 |
Куликов Андрей

Зарегистрирован: Вс 30 Январь 2011, 09:15
Сообщения: 1059
Регион: Мичуринск Тамбовская обл.
|
Добавлено:
Чт 10 Январь 2013, 19:42
|
  |
Планируете отопительную или отопительно-варочную?
|
|
|
|
    |
 |
Баранов Я.В.
Зарегистрирован: Вт 9 Октябрь 2012, 20:42
Сообщения: 7
Регион: г.Владимир
|
Добавлено:
Чт 10 Январь 2013, 19:54
|
  |
отоптельную, недорого чтобы
|
|
|
|
  |
 |
Баранов Я.В.
Зарегистрирован: Вт 9 Октябрь 2012, 20:42
Сообщения: 7
Регион: г.Владимир
|
Добавлено:
Пт 11 Январь 2013, 09:35
|
  |
проживание в деревне обеспечу, в отцовском доме, если надо.
|
|
|
|
  |
 |
pe4ka
Зарегистрирован: Ср 23 Сентябрь 2009, 17:36
Сообщения: 1917
Регион: Туймазы
|
Добавлено:
Пт 11 Январь 2013, 12:25
|
  |
Ваш фундамент хорош.Как часть стены обычно это Т-образная печь.Какими материалами богаты?Обычную глину и просеяный песок зимой не просто найти.Главное чтобы дымоход с балками разошелся на норм расстоянии.Только чугунные плиты для варки не планируйте-они забирают т-ру дымовых газов и снижают КПД печи.Топку ориентируйте к входной двери -дрова ближе носить будет.Если бы русская была то ее топка смотрит в ШЕСТКОВОЕ ОКНО.хОЗЯЙКАМ УЖЕ НА РАССВЕТЕ НАДО БЫЛО В ПЕЧИ ГОТОВИТЬ И окно давало естественный свет.А когда ДЕД МОРОЗ приходит в Новогоднюю ночь он может увидеть в шестковое окно красивое пламя которое переливается на снежных узорах окна... Солнечная Башкирия...
|
_________________ окажу консультации по кладке печей каминов и их ремонту д51055 код8-34782 сот 8-9173752622 г.Туймазы башкирия
|
|
   |
 |
Андрей_Алексеевич

Зарегистрирован: Пн 13 Декабрь 2010, 19:17
Сообщения: 5902
Регион: малая родина Павлова, Скобелева, Циолковского, Уткиных и др.
|
Добавлено:
Пт 11 Январь 2013, 14:56
|
  |
| Баранов Я.В. писал(а): |
| Фундамент чуть больше (точно сейчас не помню) 2*1м |
Фундамента р-ры верные! под Камино-печь с ХК и отопительным щитком на мансарде, прогреете весь дом даже в лютую зиму!!!
Успехов!!!
|
_________________ Печник - милостью и промыслом Божиим.
Печное отопление частного дома и т.п., авторское сопровождение проектов, наставничество в т.ч. дистанционное, партнёрство в кладке печей.
89106130763 МТС
andrejka61@mail.ru
andrej.kuzmischev@yandex.ru
|
|
   |
 |
Баранов Я.В.
Зарегистрирован: Вт 9 Октябрь 2012, 20:42
Сообщения: 7
Регион: г.Владимир
|
Добавлено:
Пт 11 Январь 2013, 15:16
|
  |
| pe4ka писал(а): |
| Ваш фундамент хорош.Как часть стены обычно это Т-образная печь.Какими материалами богаты?Обычную глину и просеяный песок зимой не просто найти.Главное чтобы дымоход с балками разошелся на норм расстоянии.Только чугунные плиты для варки не планируйте-они забирают т-ру дымовых газов и снижают КПД печи.Топку ориентируйте к входной двери -дрова ближе носить будет.Если бы русская была то ее топка смотрит в ШЕСТКОВОЕ ОКНО.хОЗЯЙКАМ УЖЕ НА РАССВЕТЕ НАДО БЫЛО В ПЕЧИ ГОТОВИТЬ И окно давало естественный свет.А когда ДЕД МОРОЗ приходит в Новогоднюю ночь он может увидеть в шестковое окно красивое пламя которое переливается на снежных узорах окна... Солнечная Башкирия... |
В строительстве печи думаю использовать готовые смеси, варочную поверхность не планирую, а вот ХК хочется...
|
|
|
|
  |
 |
Баранов Я.В.
Зарегистрирован: Вт 9 Октябрь 2012, 20:42
Сообщения: 7
Регион: г.Владимир
|
Добавлено:
Пт 11 Январь 2013, 15:23
|
  |
Размеры фундамента подсказали на данном форуме
P/S в почту поступают предложения, хочу здесь уточнить, что нужна отопительная печь, желательно с ХК. Бюджет 150-170 т.р. (под ключ, работа+материалы+остальные расходы) семья у нас молодая, денежек немного . Могу я на что-нибудь расщитывать в эти деньги ?
|
|
|
|
  |
 |
Виктор_А

Зарегистрирован: Чт 6 Январь 2011, 17:01
Сообщения: 850
Регион: МО г.Серпухов
|
Добавлено:
Пт 11 Январь 2013, 15:47
|
  |
Легко впишитесь в бюджет
|
|
|
|
    |
 |
Dreamdavids
Зарегистрирован: Сб 29 Октябрь 2011, 07:18
Сообщения: 1105
Регион: Пермь
|
Добавлено:
Пт 11 Январь 2013, 20:40
|
  |
| Баранов Я.В. писал(а): |
Размеры фундамента подсказали на данном форуме
P/S в почту поступают предложения, хочу здесь уточнить, что нужна отопительная печь, желательно с ХК. Бюджет 150-170 т.р. (под ключ, работа+материалы+остальные расходы) семья у нас молодая, денежек немного . Могу я на что-нибудь расщитывать в эти деньги ? |
Как печники так рассчитывают точно не видя самого объекта не побывав там мне до сих пор непонятно и Или потом уже плюсуют сверхурочные
|
_________________ +79222445758 Владимир
|
|
  |
 |
Dreamdavids
Зарегистрирован: Сб 29 Октябрь 2011, 07:18
Сообщения: 1105
Регион: Пермь
|
Добавлено:
Пт 11 Январь 2013, 20:43
|
  |
| Андрей_Алексеевич писал(а): |
| Баранов Я.В. писал(а): |
| Фундамент чуть больше (точно сейчас не помню) 2*1м |
Фундамента р-ры верные! под Камино-печь с ХК и отопительным щитком на мансарде, прогреете весь дом даже в лютую зиму!!!
Успехов!!! |
Дачный вариант навряд ли прогреют.Для дачником самое оптимальное это втыкать совместно с печью ещё буржуйку,чтобы печь не угробить перетопом
|
_________________ +79222445758 Владимир
|
|
  |
 |
Андрей_Алексеевич

Зарегистрирован: Пн 13 Декабрь 2010, 19:17
Сообщения: 5902
Регион: малая родина Павлова, Скобелева, Циолковского, Уткиных и др.
|
Добавлено:
Пт 11 Январь 2013, 20:59
|
  |
|
   |
 |
Александр Володин

Зарегистрирован: Вт 28 Июнь 2011, 00:40
Сообщения: 791
Регион: Нижегородская обл.
|
Добавлено:
Сб 12 Январь 2013, 17:13
|
  |
|
    |
 |
Евгений Колчин

Зарегистрирован: Чт 3 Октябрь 2002, 06:26
Сообщения: 10143
Регион: Москва
|
Добавлено:
Сб 12 Январь 2013, 17:19
|
  |
Рекомендация.
"Калориферные трубы в печку" - и ставить лучше именно трубу Ф130, а короб только на выход. Плоскую поверхность от высокой температуры крутит и возможно смещение воздуховода с нарушением герметичности кладки.
|
_________________ ************************************
|
|
      |
 |
Баранов Я.В.
Зарегистрирован: Вт 9 Октябрь 2012, 20:42
Сообщения: 7
Регион: г.Владимир
|
Добавлено:
Сб 12 Январь 2013, 17:43
|
  |
Та нее...
Опишу свое видение отопления дома.
Газа нет и не предвидится.
Хочу поставить эл. конвекторы Noirot, соединить их в цепь с автоматическим управлением от програмируемого головного конвектора, в дальнейшем управление через GSM.
В течении недели в доме будет поддерживаться +5+10С. Приехал затопил печь, конвекторы на полную мощь....
Как то так.
|
|
|
|
  |
 |
pe4ka
Зарегистрирован: Ср 23 Сентябрь 2009, 17:36
Сообщения: 1917
Регион: Туймазы
|
Добавлено:
Вс 13 Январь 2013, 20:20
|
  |
Когда Вы планируете начинать?И каков бюджет Вашего строительства?
|
_________________ окажу консультации по кладке печей каминов и их ремонту д51055 код8-34782 сот 8-9173752622 г.Туймазы башкирия
|
|
   |
 |
Platon
Зарегистрирован: Пн 11 Февраль 2013, 15:27
Сообщения: 10
Регион: г. Владимир
|
Добавлено:
Ср 6 Март 2013, 12:38
|
  |
Извиняюсь перед хозяином темы но уж очень похожа задача. Ищу печника, владимирская обл, Судогодский р-он.
По сути вопроса обсуждал тут
http://forum.stovemaster.ru/viewtopic.php?t=6775
То есть надо: обложить металическую печь и от нее пустить щиток, констукцию и размеры щитка на усмотрение исполнителя. Время реализации гдето летом. Дома то самого еще нет. Домик планируется каркасный, т.е. возведут быстро. Сейчас надо окончательно утвердить проект всей кладки, а сделать это должен тот кто будет и воплощать.
|
|
|
|
  |
 |
|
|