 |
|
 |
| Автор |
Сообщение
|
Сергей68

Зарегистрирован: Пт 5 Декабрь 2008, 21:49
Сообщения: 855
Регион: Питер
|
Добавлено:
Вт 17 Сентябрь 2013, 20:16
|
  |
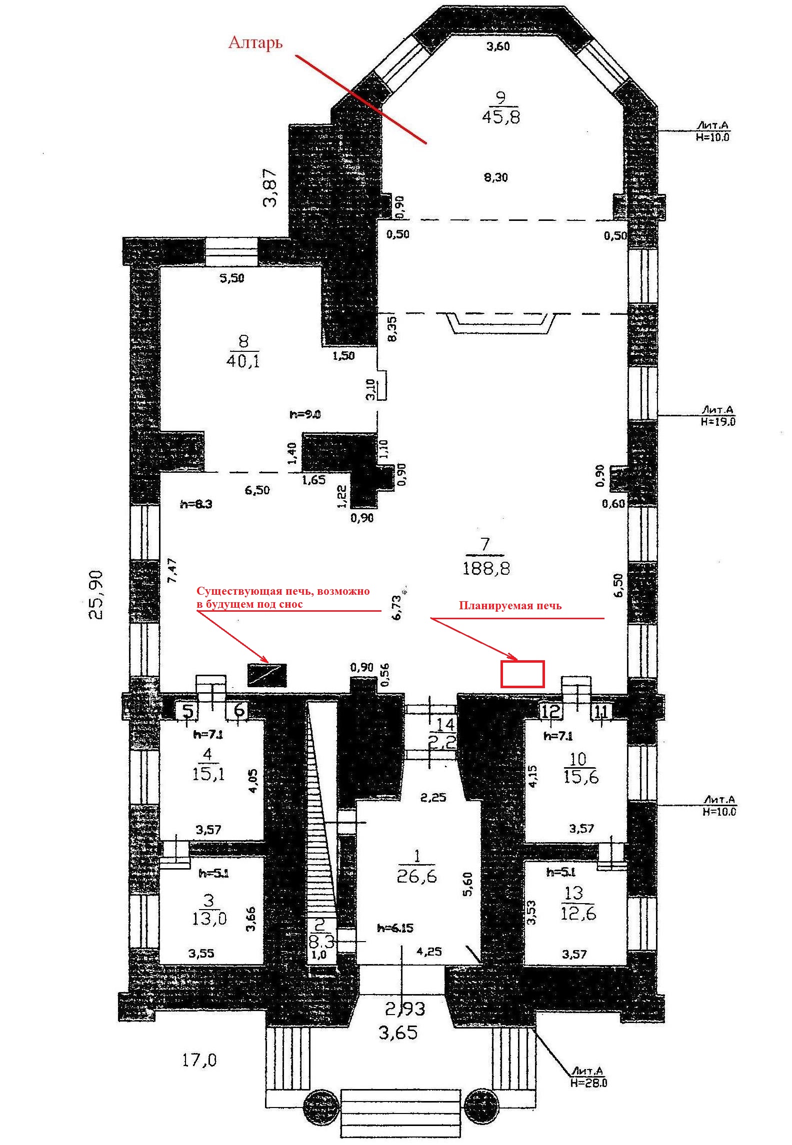
Добрый день печному сообществу.
Вышло так, что возможно в ноябре будем сооружать отопительный прибор для вышеуказанного храма. Храм расположен в Новой Ладоге.
Нужна Ваша помощь в доработке конструкции.
Обо всем по прядку.
Одна печь уже стоит, но она по мощности как слону дробина. В плане указаны размеры помещения и высоты по куполу. У настоятеля в планах перейти на газ... но газовщики заломили такой ценник за подвод газа ( 3 км.)... что даже озвучивать не прилично. У прихода таких денег просто нет, посему сроки не определены, а отапливаться надо. Планируется поставить вторую печь ( нашими усилиями) в последующем заменить существующую старую печь на близнеца нашей.
|
_________________ 8-921-743-33-53
| Описание: |
|
| Размер файла: |
778.56 КБ |
| Просмотров: |
695 раз(а) |

|
| Описание: |
|
| Размер файла: |
196.12 КБ |
| Просмотров: |
641 раз(а) |

|
| Описание: |
|
| Размер файла: |
329.14 КБ |
| Просмотров: |
644 раз(а) |

|
| Описание: |
|
| Размер файла: |
130.77 КБ |
| Просмотров: |
630 раз(а) |

|
| Описание: |
|
| Размер файла: |
142.78 КБ |
| Просмотров: |
579 раз(а) |

|
Последний раз редактировалось: Сергей68 (Вт 17 Сентябрь 2013, 20:28), всего редактировалось 1 раз |
|
    |
 |
Сергей68

Зарегистрирован: Пт 5 Декабрь 2008, 21:49
Сообщения: 855
Регион: Питер
|
Добавлено:
Вт 17 Сентябрь 2013, 20:27
|
  |
За основу конструктива взята печь ПТО-5300. Нижний колпак футеруем шамотом на ребро. Второй колпак увеличиваем на несколько рядов по высоте... ну и хотелось бы прицепить третий... вот по этому вопросу к Вам и обращаюсь... возможно ли это?
Так же, для увеличения теплоотдающей поверхности, поднимаем печь на шанцы.
Дымоход имеется в капитальной стене, правда на чердаке обрублен, придется заново проходить кровлю. Высота дымохода от уровня пола храма, будет примерно 12-14 метров, врезка печи в него примерно на высоте 2 метров.
|
_________________ 8-921-743-33-53
| Описание: |
|
| Размер файла: |
202.46 КБ |
| Просмотров: |
734 раз(а) |

|
| Описание: |
|
| Размер файла: |
101.44 КБ |
| Просмотров: |
654 раз(а) |

|
| Описание: |
|
| Размер файла: |
66.97 КБ |
| Просмотров: |
609 раз(а) |

|
| Описание: |
| Окончательный вариант. Все штукатурим и красим |
|
| Размер файла: |
71.53 КБ |
| Просмотров: |
732 раз(а) |

|
|
|
    |
 |
Андрей_Алексеевич

Зарегистрирован: Пн 13 Декабрь 2010, 19:17
Сообщения: 5969
Регион: малая родина Павлова, Скобелева, Циолковского, Уткиных и др.
|
Добавлено:
Вт 17 Сентябрь 2013, 20:53
|
  |
Если позволит нутрянка, сделай в 1-рвом колпаке закладку камней для увеличения теплосъёма и объёма "теплоносителя" - как прямоточку банную, либо факельную по сторонам и вниз...
Коли мощщи топки недостанет, третий ярус не делай колпаком , но выполни его ППДК - параллельно подымающимися ДК из общего "лежака" в перекрытии 2-го...
Схема ППДК возможна и сразу после 1-вого яруса, вверх, сколько надобно... Ограничивает высоту, в таком случае, лишь мощность топки да развитость тепловоспринимающих поверхностей.
Воздуху на горение не жалей!
Поддувало для золы - объёмом побольше!
За шанцы - отдельно "уважуха"!
Благословений Вам от Господа!
|
_________________ Печник - милостью и промыслом Божиим.
Печное отопление частного дома и т.п., авторское сопровождение проектов, наставничество в т.ч. дистанционное, партнёрство в кладке печей.
89106130763 МТС
andrejka61@mail.ru
andrej.kuzmischev@yandex.ru
|
|
   |
 |
Сергей68

Зарегистрирован: Пт 5 Декабрь 2008, 21:49
Сообщения: 855
Регион: Питер
|
Добавлено:
Вт 17 Сентябрь 2013, 21:47
|
  |
| Андрей_Алексеевич писал(а): |
Благословений Вам от Господа! |
Спасибо Андрей Алексеевич.
Топка пока планируется В*Ш*Гл =980 мм.*380мм.*680 мм.
Топочная дверца со стороны 380 мм. SVT 410.
У прототипа ( ПТО-5300) дымовые газы из топливника по сторонам и вниз ( нижний прогрев) подвертка и наверх во второй колпак. Подъемных 2-ва... может имеет смысл один подъемный во второй колпак, второй сразу в третий... врезка в дымоход в районе границы перекрышки между 2-м и 3-им колпаками??
|
_________________ 8-921-743-33-53
|
|
    |
 |
Андрей_Алексеевич

Зарегистрирован: Пн 13 Декабрь 2010, 19:17
Сообщения: 5969
Регион: малая родина Павлова, Скобелева, Циолковского, Уткиных и др.
|
Добавлено:
Вт 17 Сентябрь 2013, 22:44
|
  |
| Сергей68 писал(а): |
| ... может имеет смысл один подъемный во второй колпак, второй сразу в третий... |
А ДГ ты как "уговариваь станешь" ?
Они ж все рванут в 3-тий
Лучшее- добавь требуемое кол-во колпаков (смотри по "посадке" ТД), но сделай их ПОСЛЕДОВАТЕЛЬНО РАСПОЛОЖЕННЫМИ... с подвёрками в 6-3 ряда, сокращая кол-во.
Сам стал бы делать, как писал ранее - ППДК... надёжнее, проще, меньше прочисток (3-ри в 1-рвом ярусе) - применяется в изразцовых ПТОшках...
|
_________________ Печник - милостью и промыслом Божиим.
Печное отопление частного дома и т.п., авторское сопровождение проектов, наставничество в т.ч. дистанционное, партнёрство в кладке печей.
89106130763 МТС
andrejka61@mail.ru
andrej.kuzmischev@yandex.ru
|
|
   |
 |
Сергей68

Зарегистрирован: Пт 5 Декабрь 2008, 21:49
Сообщения: 855
Регион: Питер
|
Добавлено:
Ср 18 Сентябрь 2013, 00:13
|
  |
| Андрей_Алексеевич писал(а): |
А ДГ ты как "уговариваь станешь" ?
|
Дык...эта... добрым словом однако
Спасибо Андрей Алексеевич за подсказку.
|
_________________ 8-921-743-33-53
|
|
    |
 |
Андрей_Алексеевич

Зарегистрирован: Пн 13 Декабрь 2010, 19:17
Сообщения: 5969
Регион: малая родина Павлова, Скобелева, Циолковского, Уткиных и др.
|
Добавлено:
Ср 18 Сентябрь 2013, 08:41
|
  |
| Сергей68 писал(а): |
| Андрей_Алексеевич писал(а): |
А ДГ ты как "уговариваь станешь" ?
|
Дык...эта... добрым словом однако ... |
Видать доходчива твоя молитва до Бога!
Вот ведь дал же разумение и дедам как строить печи с ПНП...
http://www.violatorsleep.ru/news/pritcha-l-n-tolstoj-tri-starca.html
По печи: после 1-вого яруса собери все ДГ к колпак невысокий под арочный свод шамотный... в нём щели, как в каменках... самые горячие - те, что ближе к выходу подъёмных ДК, делай поменьше сечением 3х12, а те, что подальше по-нарастающей так и дойдёшь до 12х25см...
Рассечки ставь не сплошными стенками! а вразброд...
про ЗЛХ НЕ ПОЗАБУДЬ!!!
В поддувальной дверке сделай 4-тыре отв. Ф=20мм, по углам, для непрекращающегося поступления воздуха на горение... раньше и дверки такие были 20х20 с ажурным рисунком сквозным литьём , для "мощных" топок...
|
_________________ Печник - милостью и промыслом Божиим.
Печное отопление частного дома и т.п., авторское сопровождение проектов, наставничество в т.ч. дистанционное, партнёрство в кладке печей.
89106130763 МТС
andrejka61@mail.ru
andrej.kuzmischev@yandex.ru
|
|
   |
 |
vova230
Зарегистрирован: Ср 24 Март 2010, 00:20
Сообщения: 811
Регион: Беларусь
|
Добавлено:
Ср 18 Сентябрь 2013, 10:34
|
  |
Что-то сомнительно мне что даже две такие печи смогут потянуть такой храм
|
|
|
|
   |
 |
Сергей68

Зарегистрирован: Пт 5 Декабрь 2008, 21:49
Сообщения: 855
Регион: Питер
|
Добавлено:
Ср 18 Сентябрь 2013, 10:38
|
  |
| vova230 писал(а): |
| Что-то сомнительно мне что даже две такие печи смогут потянуть такой храм |
Так они и не потянут, но будут большим подспорьем к электрическим обогревателям... коими сейчас храм и отапливается.
|
_________________ 8-921-743-33-53
|
|
    |
 |
vova230
Зарегистрирован: Ср 24 Март 2010, 00:20
Сообщения: 811
Регион: Беларусь
|
Добавлено:
Ср 18 Сентябрь 2013, 10:47
|
  |
Вот если бы печь-калорифер соорудить, быстрее тепло пошло бы, да и толку думаю больше было бы. Только это вопросы не ко мне, я таких не строил.
|
|
|
|
   |
 |
Сергей68

Зарегистрирован: Пт 5 Декабрь 2008, 21:49
Сообщения: 855
Регион: Питер
|
Добавлено:
Ср 18 Сентябрь 2013, 10:59
|
  |
| vova230 писал(а): |
| Вот если бы печь-калорифер соорудить, быстрее тепло пошло бы, да и толку думаю больше было бы. Только это вопросы не ко мне, я таких не строил. |
Калорифер будет купол обогревать... нам же нужен нижний прогрев, что бы людям приходящим в храм было комфортно.
|
_________________ 8-921-743-33-53
|
|
    |
 |
vova230
Зарегистрирован: Ср 24 Март 2010, 00:20
Сообщения: 811
Регион: Беларусь
|
Добавлено:
Ср 18 Сентябрь 2013, 11:09
|
  |
| Сергей68 писал(а): |
| vova230 писал(а): |
| Вот если бы печь-калорифер соорудить, быстрее тепло пошло бы, да и толку думаю больше было бы. Только это вопросы не ко мне, я таких не строил. |
Калорифер будет купол обогревать... нам же нужен нижний прогрев, что бы людям приходящим в храм было комфортно. |
Нижний прогрев это только теплый пол. Тепло от печи все равно будет уходить вверх, к куполу. В храмах это неизбежно. Но калорифер будет активно забирать холодный воздух от пола, а отдавать теплый и тем самым будет активно перемешивать воздух храма не допуская застоя холодного воздуха у пола. Кстати запитать теплый пол от калорифера тоже можно, но это уже капитальный ремонт храма, с заменой полов.
|
|
|
|
   |
 |
Гребенчюк Андрей

Зарегистрирован: Чт 9 Сентябрь 2010, 17:23
Сообщения: 1211
Регион: Ленинградская область
|
Добавлено:
Ср 18 Сентябрь 2013, 12:20
|
  |
в том то и смысл печь зачем им на такую огромную площадь, для красоты только ведь действительно всё тепло по физике в верху окажется. А вот принцип изготовления печи действительно толковое и совет Андрея Алексеевича очень скажем дельный.
|
|
|
|
  |
 |
Андрей_Алексеевич

Зарегистрирован: Пн 13 Декабрь 2010, 19:17
Сообщения: 5969
Регион: малая родина Павлова, Скобелева, Циолковского, Уткиных и др.
|
Добавлено:
Ср 18 Сентябрь 2013, 16:37
|
  |
| Сергей68 писал(а): |
| ...Храм расположен в Новой Ладоге... |
Прежде всего - спустись в подвал, проверь не отапливался ли ранее... "русской ондолью"? - топки под длинющие поленья в подвале, загрузочные люки для дров сбоку от стены...
ПТОшкой является тогда ВЕСЬ ПОЛ!!!
|
_________________ Печник - милостью и промыслом Божиим.
Печное отопление частного дома и т.п., авторское сопровождение проектов, наставничество в т.ч. дистанционное, партнёрство в кладке печей.
89106130763 МТС
andrejka61@mail.ru
andrej.kuzmischev@yandex.ru
|
|
   |
 |
Андрей_Алексеевич

Зарегистрирован: Пн 13 Декабрь 2010, 19:17
Сообщения: 5969
Регион: малая родина Павлова, Скобелева, Циолковского, Уткиных и др.
|
Добавлено:
Ср 18 Сентябрь 2013, 17:24
|
  |
| Сергей68 писал(а): |
| ...Калорифер будет купол обогревать... нам же нужен нижний прогрев, что бы людям приходящим в храм было комфортно. |
Калориферы обогревают объём помещения от точки входа холодного воздуха вверх, под купол
В подобных строениях, обрати особое внимание, печи имеют "духовые жалюзи-створки". Они, как правило, не герметичны, но и располагаются перед ТД сбоку, либо (чаще) в т.н."холодном рукаве" - там никогда не появляется пепел и сажа
По окончании топки (пепел и зола убраны!) поддувальная дверка закрывалась, но открывалась заслонка сбоку у поддувала печи. Через неё холодный воздух от пола через решетки вдоль стен, направлялся сквозь разогретые внутренности печи к открытым створкам. Створки имели "ступенчатую рейку" для регулировки поступления нагретого воздуха
Т.о. сама ПТОшка и являлась и калорифером
А с расчётом объёма кирпича+камней загрузки помогут теоеритики посильнее
Сам не стал бы делать менее 6 кг на кб.м. отапливаемого объёма... пускай поправят! т.б., что их будет 2-ве....
Важно учесть уменьшение массы "загрузки" с увеличением высоты печи... - та самая "ступенька", что у тебя в эскизах! Тэбе - Маладэц!!!
Буду признателен за простую формулу расчёта
Других схем отопления в строениях старше 150 лет, не встречал...
|
_________________ Печник - милостью и промыслом Божиим.
Печное отопление частного дома и т.п., авторское сопровождение проектов, наставничество в т.ч. дистанционное, партнёрство в кладке печей.
89106130763 МТС
andrejka61@mail.ru
andrej.kuzmischev@yandex.ru
|
|
   |
 |
blago

Зарегистрирован: Сб 12 Февраль 2011, 11:46
Сообщения: 264
Регион: Приволжский ФО
|
Добавлено:
Ср 18 Сентябрь 2013, 20:45
|
  |
Никакая печь не обогреет такое большое помещение. Только установка пиролизной печи, с теплообменником и под каждое окошко регистр. Только тогда будет толк. Вот посмотрите эту печь. Загружаете раз в 18 - 20 часов 8 - 10 поленниц и поддерживаете тепло в храме.
|
_________________ Конструктивные решения по котлам и печам BLAGO. +79177171909
| Описание: |
|
| Размер файла: |
198.9 КБ |
| Просмотров: |
715 раз(а) |

|
|
|
    |
 |
Ivan20051

Зарегистрирован: Вс 10 Январь 2010, 18:25
Сообщения: 362
Регион: Псков
|
Добавлено:
Чт 19 Сентябрь 2013, 13:26
|
  |
На самом деле почему вы не смотрите в сторону котлов например КИК, ведь храм это место временного пребывания., Печь вашу угробят, будут топить до потери сознания в ожидании тепла.Только теплоемкий котел плюс батареи
|
_________________ 89062208974
|
|
     |
 |
blago

Зарегистрирован: Сб 12 Февраль 2011, 11:46
Сообщения: 264
Регион: Приволжский ФО
|
Добавлено:
Чт 19 Сентябрь 2013, 13:38
|
  |
Верная мысль, поддерживаю. Но не КИК, а пиролизная печь.
|
_________________ Конструктивные решения по котлам и печам BLAGO. +79177171909
|
|
    |
 |
Виктор_А

Зарегистрирован: Чт 6 Январь 2011, 17:01
Сообщения: 850
Регион: МО г.Серпухов
|
Добавлено:
Чт 19 Сентябрь 2013, 15:30
|
  |
Ну печи все на пиролизе-выделение газов, основанное на температурном воздействии В Вашем случае-обратное движение газов
|
|
|
|
    |
 |
blago

Зарегистрирован: Сб 12 Февраль 2011, 11:46
Сообщения: 264
Регион: Приволжский ФО
|
Добавлено:
Чт 19 Сентябрь 2013, 15:56
|
  |
| Виктор_А писал(а): |
Ну печи все на пиролизе-выделение газов, основанное на температурном воздействии В Вашем случае-обратное движение газов  |
Не согласен с вами. Пиролиз и пиролизное сжигание топлива, это совсем другое.
|
_________________ Конструктивные решения по котлам и печам BLAGO. +79177171909
|
|
    |
 |
|
|
|
Следующая тема
Предыдущая тема
Вы не можете начинать темы Вы не можете отвечать на сообщения Вы не можете редактировать свои сообщения Вы не можете удалять свои сообщения Вы не можете голосовать в опросах Вы не можете добавлять приложения в этом форуме Вы можете скачивать файлы в этом форуме
|
|