 |
|
 |
| Автор |
Сообщение
|
Александр Дорошевич
Зарегистрирован: Пн 4 Апрель 2016, 19:01
Сообщения: 3
Регион: Беларусь, Хутор Комаришки
|
Добавлено:
Пн 4 Апрель 2016, 21:23
|
  |
Здравствуйте уважаемые печники. Начинаю реконструкцию хозблока, в котором на втором этаже буду размещать комнаты для гостей в межсезонье (теплое время года). Задача, сделать печку, которая будет начинаться на первом этаже (мастерская, что бы протопив и зимой можно было поработать) и продолжение на втором жтаже, где при присутствии гостей возможно протапливать, непло хо бы возможность и приготовить.
Вопрос в конструкции, количестве материалов (хотелось бы частично использовать кирпич от разборки старой печи)
|
|
|
|
   |
 |
tuomob

Зарегистрирован: Пн 26 Сентябрь 2011, 16:45
Сообщения: 2370
Регион: Тула
|
Добавлено:
Вт 5 Апрель 2016, 10:49
|
  |
| Александр Дорошевич писал(а): |
Здравствуйте уважаемые печники. Начинаю реконструкцию хозблока, в котором на втором этаже буду размещать комнаты для гостей в межсезонье (теплое время года). Задача, сделать печку, которая будет начинаться на первом этаже (мастерская, что бы протопив и зимой можно было поработать) и продолжение на втором жтаже, где при присутствии гостей возможно протапливать, непло хо бы возможность и приготовить.
Вопрос в конструкции, количестве материалов (хотелось бы частично использовать кирпич от разборки старой печи) |
Для начала, чтобы советы были толковыми:
1. План домика поэтажный с расположением печи на плане. Можно и на листочках нарисовать и сфоткать.
2. Теплопотери домика для оценки мощности печи. Например вот это http://teplo-info.com/otoplenie/raschet_teplopoter_online
3. Ну и хотелки по 1-му и 2-му этажу по функционалу.
4. Наверно отдельно топки на 1-м и на 2-м (исходя из Ваших слов).
5. И наверно получаются 2 печи, одна над другой на общий дымоход.
А для готовки можно и в топку поставить, как в Русской
|
_________________ С Уважением! Юрий. Тула.
ВК https://vk.com/tuomob
За проектами в личку обращайтесь.
|
|
  |
 |
Александр Дорошевич
Зарегистрирован: Пн 4 Апрель 2016, 19:01
Сообщения: 3
Регион: Беларусь, Хутор Комаришки
|
Добавлено:
Вт 5 Апрель 2016, 17:40
|
  |
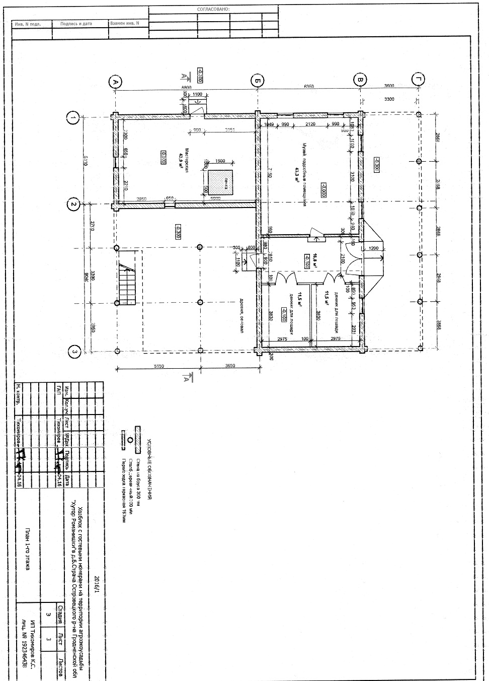
Почему то не прикрепилась картинка.
Задача не стоит обеспечить с помощью печек комфортную температуру (+18) в помещениях. На первом этаже мастерская, хотелось бы иметь возможность в холодное время года работать в более менее комфортной температуре и при необходимости просушивать вещи (валенки) или еще что то.
На втором этаже, где планируется пребывание гостей в теплое время года (апрель-октябрь) в случае ненастных дней просушить вещи и погреться возле печки (желательно большая дверка со стеклом). Так же не помешает возможность приготовить на плите (независимость от электроснабжения)
Так же думаю, что это будет две печки на один комин, хотелось бы конструкцию опирать на фундамент, не нагружая перекрытие.
|
| Описание: |
|
| Размер файла: |
285.68 КБ |
| Просмотров: |
791 раз(а) |

|
|
|
   |
 |
Александр Дорошевич
Зарегистрирован: Пн 4 Апрель 2016, 19:01
Сообщения: 3
Регион: Беларусь, Хутор Комаришки
|
Добавлено:
Вт 5 Апрель 2016, 17:41
|
  |
второй этаж
|
| Описание: |
|
| Размер файла: |
328.31 КБ |
| Просмотров: |
793 раз(а) |

|
|
|
   |
 |
|
|
|
Следующая тема
Предыдущая тема
Вы не можете начинать темы Вы не можете отвечать на сообщения Вы не можете редактировать свои сообщения Вы не можете удалять свои сообщения Вы не можете голосовать в опросах Вы не можете добавлять приложения в этом форуме Вы можете скачивать файлы в этом форуме
|
|