 |
|
 |
| Автор |
Сообщение
|
rimowith
Зарегистрирован: Ср 3 Январь 2018, 19:14
Сообщения: 35
Регион: Новокузнецк
|
Добавлено:
Чт 4 Январь 2018, 14:03
|
  |
Привет из Сибири.
Прошу оценить вот такой вариант котла. В эксплуатации с 2014г. Хотелось опробовать идею организации "малого круга" без
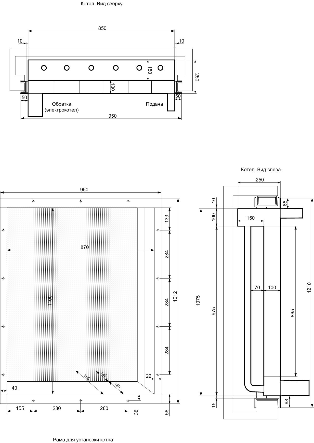
термоклапана, через трубы конвектива в "дипломат" котла. Попутно пришло решение, куда деть оставшиеся после стройки обрезки швеллеров. Они пригодились для рамы, в которую на шпильках крепится котел. Рама установлена в проем первого колпака по принципу "акустического подвеса", т.е. через прокладки из базальтового картона. На обратке установлен электрокотел 2 кВт, в верхней части - контур ГВС из гофрированной нержавейки.
Сама печь - по мотивам КИКсП 16, ОВИК 20. Удалось найти прекрасный "сталинский" кирпич. При сушке проем просто закрыл листом жести с базальтокартоном, пока котел доделывал.
Система отопления - с ЕЦ, низкотемпературная инерционная, поскольку проживание постоянное. Дом одноэтажный, 140 кв.м.
Сейчас за бортом -32, подача +54, обратка +35.
|
| Описание: |
| "Дипломат" котла с привареными внутри ребрами |
|
| Размер файла: |
545.65 КБ |
| Просмотров: |
799 раз(а) |

|
| Описание: |
|
| Размер файла: |
651.46 КБ |
| Просмотров: |
889 раз(а) |

|
| Описание: |
|
| Размер файла: |
705.39 КБ |
| Просмотров: |
877 раз(а) |

|
| Описание: |
| "Замковая" установка рамы котла (полка швеллера - прокладка - паз в кирпиче) |
|
| Размер файла: |
673.26 КБ |
| Просмотров: |
845 раз(а) |

|
| Описание: |
| Рама котла с крепежными шпильками |
|
| Размер файла: |
714.36 КБ |
| Просмотров: |
914 раз(а) |

|
|
|
  |
 |
rimowith
Зарегистрирован: Ср 3 Январь 2018, 19:14
Сообщения: 35
Регион: Новокузнецк
|
Добавлено:
Чт 4 Январь 2018, 22:51
|
  |
rimowith писал: вот такой вариант котла.
Или все ясно, и у матросов нет вопросов, или же конструкция настолько еретическая, вопреки канонам, что все обходят стороной?
|
| Описание: |
| Балка перекрытия вставлена в верхний швеллер через базальтовую прокладку, но опирается только на кладку |
|
| Размер файла: |
703.29 КБ |
| Просмотров: |
810 раз(а) |

|
| Описание: |
| Рама готова к установке балки перекрытия |
|
| Размер файла: |
694.58 КБ |
| Просмотров: |
798 раз(а) |

|
| Описание: |
|
| Размер файла: |
675.49 КБ |
| Просмотров: |
801 раз(а) |

|
| Описание: |
|
| Размер файла: |
481.24 КБ |
| Просмотров: |
773 раз(а) |

|
| Описание: |
| На фото отсутствует швеллер балки перекрытия |
|
| Размер файла: |
766.1 КБ |
| Просмотров: |
504 раз(а) |

|
|
|
  |
 |
Евгений Колчин

Зарегистрирован: Чт 3 Октябрь 2002, 06:26
Сообщения: 10143
Регион: Москва
|
Добавлено:
Чт 4 Январь 2018, 23:05
|
  |
серьезный подход ... еще бы схемку всего этого
|
_________________ ************************************
|
|
      |
 |
rimowith
Зарегистрирован: Ср 3 Январь 2018, 19:14
Сообщения: 35
Регион: Новокузнецк
|
Добавлено:
Пт 5 Январь 2018, 01:25
|
  |
Евгений, доброй ночи. Полной схемы нет. Наброски делал в командировке, потом вместо порядовок сделал несколько резов для наглядности. Они стартовые, недостоверные. При кладке пошло много экспромтов. Во-первых, чистки и заслонки перенес в котельную (это фронт печи и котловая сторона). Затем добавился сушильный шкаф и полка. Соответственно котел стал уже и передвинулся немного вправо, чтобы освободить место для ЗЛХ. И так далее, по мелочам.
|
| Описание: |
| И сушильный шкаф, и полка - все оказалось востребованным. |
|
| Размер файла: |
655.82 КБ |
| Просмотров: |
737 раз(а) |

|
| Описание: |
| При закрытой ЗЛХ газы выходят из котла во второй колпак через щиток на кухне, согревая душу и мягкое место хозяйки. |
|
| Размер файла: |
389.59 КБ |
| Просмотров: |
857 раз(а) |

|
| Описание: |
| Подача - справа вверху, обратка - слева внизу. Пока тепловой насос не заработает, внутри котла циркуляция идет вовсю. |
|
| Размер файла: |
288.04 КБ |
| Просмотров: |
827 раз(а) |

|
| Описание: |
| Трубы конвектива для "малых кругов" уже придумались, но еще не прорисованы |
|
| Размер файла: |
263.65 КБ |
| Просмотров: |
806 раз(а) |

|
| Описание: |
| Поскольку обрезков швеллера еще не было, котел готовился классически замуроваться. |
|
| Размер файла: |
346.48 КБ |
| Просмотров: |
853 раз(а) |

|
|
|
  |
 |
rimowith
Зарегистрирован: Ср 3 Январь 2018, 19:14
Сообщения: 35
Регион: Новокузнецк
|
Добавлено:
Пт 5 Январь 2018, 13:13
|
  |
Нашел в разных папках еще кое-что на эту тему.
|
| Описание: |
| Кирпич еще довоенный, взял почти даром при разборе дворца культуры. |
|
| Размер файла: |
630.45 КБ |
| Просмотров: |
748 раз(а) |

|
| Описание: |
| Левее бокового хайла добавился канал летнего хода. Штука очень полезная, и заслонка под рукой, недалеко от дверцы топки. |
|
| Размер файла: |
787.06 КБ |
| Просмотров: |
720 раз(а) |

|
| Описание: |
| Всем советую. Слева внизу - выход из топки. Не циклон, конечно, но работает. |
|
| Размер файла: |
709.94 КБ |
| Просмотров: |
732 раз(а) |

|
| Описание: |
| Обратка. ТЭН частично входит в котел. |
|
| Размер файла: |
639.42 КБ |
| Просмотров: |
756 раз(а) |

|
| Описание: |
| За миллиметры не ручаюсь. Времени много прошло, возможно, что-то корректировалось. |
|
| Размер файла: |
314.27 КБ |
| Просмотров: |
990 раз(а) |

|
|
|
  |
 |
Алексей Решенин

Зарегистрирован: Пт 1 Апрель 2016, 19:12
Сообщения: 646
Регион: Moscow
|
Добавлено:
Пт 5 Январь 2018, 14:15
|
  |
Очень внимательно прочитал выложенное из Ново-Кузнецка- я думал- что достаточно хорошо на любительском уровне знаю предмет обсуждения-но данная описанная схема автором- не только поставила меня в тупик- но и поставила под сомнение уровень моего знания по этой теме- поэтому неудивительно- что пока нет комментариев по этому направлению- но которое сможет прокомментировать специалист инженерно - сантехнического профиля !
|
|
|
|
  |
 |
rimowith
Зарегистрирован: Ср 3 Январь 2018, 19:14
Сообщения: 35
Регион: Новокузнецк
|
Добавлено:
Пт 5 Январь 2018, 19:41
|
  |
Добрый вечер всем. Для полноты картины выкладываю схему системы, на которую нагружен котел.
Вообще-то к печному делу я никаким боком, хотя шведку от голландки с детства отличаю, вырос в своем доме. А вот что засаживание не от слова засадить, а засажить, понял сравнительно недавно. Работаю в строительной организации, а поскольку ни одна фабрика или шахта не обходится без котельной, десятка два имею на счету. Приходится общаться с теплотехниками. Моя задача - обеспечить их автоматикой. Вот от них немного поднабрался, за что им большое спасибо и мое уважение. А танцевать начинал от печки под названием шведка Бацулина.
|
| Описание: |
|
| Размер файла: |
138 КБ |
| Просмотров: |
1034 раз(а) |

|
|
|
  |
 |
Алексей Решенин

Зарегистрирован: Пт 1 Апрель 2016, 19:12
Сообщения: 646
Регион: Moscow
|
Добавлено:
Пт 5 Январь 2018, 20:35
|
  |
Шведку Бацулина я не могу припомнить что это такое- хотя знаю его достаточно долго- но печь под его зарегистрированым именем -просто не знаю !
|
|
|
|
  |
 |
rimowith
Зарегистрирован: Ср 3 Январь 2018, 19:14
Сообщения: 35
Регион: Новокузнецк
|
Добавлено:
Пт 5 Январь 2018, 22:01
|
  |
Ну как же, лет пять-шесть назад была у Александра такая популярная конструкция. Многие повторили, не заморачиваясь. Я уже и не припомню, что меня тогда смутило.
|
| Описание: |
|
| Размер файла: |
337.07 КБ |
| Просмотров: |
913 раз(а) |

|
|
|
  |
 |
rimowith
Зарегистрирован: Ср 3 Январь 2018, 19:14
Сообщения: 35
Регион: Новокузнецк
|
Добавлено:
Сб 6 Январь 2018, 05:27
|
  |
Добрый день или вечер. Кратко по итогам трех с половиной лет эксплуатации данной системы. При температуре за бортом до -25 говорить вообще не о чем. А вот на ситуации, как сейчас – по ночам до -38, есть смысл остановиться. В доме тепло, но система отопления работает на пределе. Не котел или печь, а именно вся система. Какие вижу недостатки:
1. Сечения дымовой трубы («четверик») недостаточно. Пока она прогревается и не засаживается, тяги предостаточно. При сильных морозах приходится часть тепла, обогревающего щиток, направлять на дополнительный прогрев трубы, приоткрывая ЗЛХ. Если этого не делать, происходит засаживание. Проблема повторяется уже второй год. Связано это с тем, что поставка угля населению отдана «черным копателям», качество топлива не выдерживает никакой критики. Думаю, увеличение сечения до «пятерика» снимет проблему.
2. Варочная плита из двух половин, с кружками. При снижении тяги во время засаживания пыль и гарь через неплотности проникают на кухню. Думаю, замена настила на сплошной, положенный на каолиновую вату, снимет проблему.
3. Недостаточен теплосъем котла. Регистр на кухне отключен постоянно, разница температур в спальнях и на кухне до 5 град. Если завершение утепления дома, утепление котла и подачи не выровняет температуру, придется добавить 2-3 трубы конвектива.
4. Недостаточна инерционность системы отопления. По окончании топки печь остается теплой еще сутки, регистры остывают за полдня.
|
|
|
|
  |
 |
rimowith
Зарегистрирован: Ср 3 Январь 2018, 19:14
Сообщения: 35
Регион: Новокузнецк
|
Добавлено:
Вс 7 Январь 2018, 16:03
|
  |
Здравствуйте. Немного о конструкции котла. При строительстве ОФ Черниговская мы с теплотехниками на котельной обсуждали работу контура рециркуляции, т.е. подмеса горячей воды на вход котлов. Средствами автоматизации это реализовать несложно. Тогда и родилась мысль попробовать оснастить автономным контуром рециркуляции, условно говоря, системой плавного пуска, бытовой котел, заставив работать тепловую энергию. Энергонезависимость предполагалась изначально для возможности встраивания в систему отопления с ЕЦ. Опускаю перечисление многочисленных вариантов концепции. Отдельное спасибо теплотехникам за помощь.
В итоге остановился на компромиссном варианте параллельной работы нескольких контуров, по количеству конвективных труб. Для снижения громоздкости конструкции и увеличения КПД пришлось пойти по пути подогрева воды не на входе, а по всему объему. Тем не менее, отпотевание при пуске замечал за все время эксплуатации раза два-три, когда растапливал совсем уж сырыми дровами. Как засаживаются при холодном пуске промышленные котлы, знаю не по-наслышке. Что касается теплоотдачи, помнится, калькулятор выдал, что мне необходимо 18 кВт, в итоге ориентировался на 20.
Идея, как сделать конструкцию съемной, родилась позже и вынужденно. При выносе старой печи из жилой зоны строящегося дома даже вопрос не возникал, что будет в котельной – печь или котел. Именно печь, причем теплоемкая. Ответить на вопрос – почему? – мне также сложно, как и на вопрос – зачем в доме кошка, если нет мышей.
На форум обратился по такой причине. Понимаю, что конструкция сыровата с точки зрения технологичности. Скорее, это концепт. Хотелось «задеть за живое» инженеров и кулибиных. Земля наша богата на таланты. Знаю по своей работе, какие оригинальные и неожиданные решения порой находятся и реализуются.
|
| Описание: |
| Передняя стенка котла. Внутренняя сторона. Размечена для приварки оставшихся ребер жесткости. Бобышки - для крепления гофротрубы контура ГВС. |
|
| Размер файла: |
770.72 КБ |
| Просмотров: |
753 раз(а) |

|
|
|
  |
 |
rimowith
Зарегистрирован: Ср 3 Январь 2018, 19:14
Сообщения: 35
Регион: Новокузнецк
|
Добавлено:
Пн 8 Январь 2018, 10:30
|
  |
Добрый день. Я уже писал, что самое неудачное решение - это дымовая труба "четверик" длиной 2,5 м на выходе из мансарды. Следующим летом обязательно избавлюсь от этого недостатка. Предполагаю два варианта: переложить на большее сечение или выйти сэндвичем. Прошу совета специалистов - чему отдать предпочтение?
Возвращаясь к конструкции котла. Очень жалею, что отнесся скептически к совету одного старого теплотехника уменьшить диаметр конвективных труб с Ду40 до Ду25, а количество увеличить до площади, эквивалентной 22-24 кВт, т.е. с большим запасом. Сейчас вижу, что он оказался прав, этот старый мудрый человек.
|
| Описание: |
|
| Размер файла: |
684.94 КБ |
| Просмотров: |
725 раз(а) |

|
| Описание: |
|
| Размер файла: |
589 КБ |
| Просмотров: |
742 раз(а) |

|
|
|
  |
 |
rimowith
Зарегистрирован: Ср 3 Январь 2018, 19:14
Сообщения: 35
Регион: Новокузнецк
|
Добавлено:
Пн 8 Январь 2018, 21:48
|
  |
Доброго всем вечера. Человек я на форуме не новый, но долго отсутствовал. Перемены разительные. Даже и не знаю, как правильно себя вести. Продолжить монолог или еще послушать, о чем шепчутся немой с глухим?
|
|
|
|
  |
 |
rimowith
Зарегистрирован: Ср 3 Январь 2018, 19:14
Сообщения: 35
Регион: Новокузнецк
|
Добавлено:
Вт 9 Январь 2018, 08:52
|
  |
Продолжаю. Пока все стандартно, как у И.В.Кузнецова, за исключением установки рамы.
|
| Описание: |
| Прочистная дверца планировалась в котельную. Из-за перемещения рамы пришлось вынести на кухню |
|
| Размер файла: |
688.38 КБ |
| Просмотров: |
846 раз(а) |

|
| Описание: |
|
| Размер файла: |
689.27 КБ |
| Просмотров: |
818 раз(а) |

|
| Описание: |
|
| Размер файла: |
629.33 КБ |
| Просмотров: |
809 раз(а) |

|
| Описание: |
|
| Размер файла: |
680.66 КБ |
| Просмотров: |
769 раз(а) |

|
| Описание: |
|
| Размер файла: |
730.9 КБ |
| Просмотров: |
760 раз(а) |

|
|
|
  |
 |
rimowith
Зарегистрирован: Ср 3 Январь 2018, 19:14
Сообщения: 35
Регион: Новокузнецк
|
Добавлено:
Вт 9 Январь 2018, 15:17
|
  |
Добрый вечер. Пока гиганты мысли размышляют о принципах свободного движения газов, приглашаю всех новичков и любителей воспользоваться моими граблями. Ошибка распространенная. Главное, я об этом знал, если бы спросили, довольно бойко объяснил бы, чем это грозит. Если поднатужиться, можно даже разрисовать векторы сил. Хотел сэкономить минуты, резал кирпичи перекрытия зольника, топочной дверцы, в том числе и шамот, «на глазок», без разметки. На фото хорошо видно, что суммарный угол получился менее 90 град. А нужно наоборот, более 90. В результате при нагревании-остывании этот кирпич работает как клин, которым раскалывают чурки. Из-за такой мелочи как минимум три кирпича «гуляют», заставляя меня грызть свои локти.
|
| Описание: |
| Результат экономии времени, а по сути безалаберности. |
|
| Размер файла: |
157.72 КБ |
| Просмотров: |
765 раз(а) |

|
| Описание: |
|
| Размер файла: |
656.43 КБ |
| Просмотров: |
791 раз(а) |

|
| Описание: |
|
| Размер файла: |
677.28 КБ |
| Просмотров: |
712 раз(а) |

|
| Описание: |
|
| Размер файла: |
685.04 КБ |
| Просмотров: |
781 раз(а) |

|
| Описание: |
|
| Размер файла: |
702.13 КБ |
| Просмотров: |
759 раз(а) |

|
|
|
  |
 |
rimowith
Зарегистрирован: Ср 3 Январь 2018, 19:14
Сообщения: 35
Регион: Новокузнецк
|
Добавлено:
Вт 9 Январь 2018, 19:57
|
  |
Еще раз добрый вечер. У нас мороз наконец-то отпустил. Можно расслабиться, забыть про эту злосчастную трубу и обмозговать одно небольшое открытие. Про недостаточный теплосъем я уже писал, про перекос температур в спальнях и на кухне – тоже. Чтобы в морозы до -40 в жилой зоне было комфортно, необходимо на подаче держать +50… 55. При этом на кухне для меня жарко. Заслонка летнего хода разгружает первый колпак, пуская горячие газы напрямую из первого во второй и далее в трубу, минуя кухонный обогревательный щиток, соединяющий два колпака. Планировалось, что разгрузка первого колпака будет снижать теплосъем котла на 25-30%. В последние дни ЗЛХ почти все время держал открытой, чтобы излишки тепла из кухни направить на прогрев трубы, во избежание засаживания. Так вот, специально перепроверялся – состояние ЗЛХ – открыта или закрыта – почти не влияет на теплосъем, т.е., для поддержания требуемых + 50… 55. Отсюда для себя делаю предварительный вывод, что площадь дипломата практически не влияет на теплосъем, работает конвектив, который экранирует дипломат. Думаю, этим объясняется недостача расчетного теплосъема. Я же площадь дипломата присуммировал к площади труб, а надо было ею пренебречь. Вот вам и эмпирика. Как говорит мой коллега, погрешность в плюс-минус одну трамвайную остановку для Сибири и столиц может различаться на порядок. Жалко, наши теплотехники еще больше месяца будут отдыхать после магаданской командировки. Верх колпака самое теплонапряженное место. У меня там коллектор конвективного пучка. Как разгрузка колпака может не влиять существенно на теплосъем? Непонятно. И надежда на обещания Владимира Семеновича, что стоит обратиться на форум, и сразу к вам заявятся с лопатами и вилами, немного покумекают и т.д., пока не оправдывается.
|
| Описание: |
|
| Размер файла: |
688.69 КБ |
| Просмотров: |
735 раз(а) |

|
|
|
  |
 |
vladgri
Зарегистрирован: Пт 8 Октябрь 2010, 08:33
Сообщения: 1857
Регион: г.Павлодар
|
Добавлено:
Вт 9 Январь 2018, 20:16
|
  |
| rimowith писал(а): |
| Чтобы в морозы до -40 в жилой зоне было комфортно, необходимо на подаче держать +50… 55. При этом на кухне для меня жарко. |
Дык насос поставить, он разнесёт.
| rimowith писал(а): |
Я же площадь дипломата присуммировал к площади труб, а надо было ею пренебречь. |
Так вроде бы верно, прощадь поверхности "дипломата" обращенную к дг и нужно суммировать. Только какой коэфф. теплопередачи берётся?
ЗЫ. Трубы повыдергивать, заменить на Д32 и влепить в шахматном порядке.
|
_________________ Впрочем, обоснованная аргументация не вписывается в дискуссии, где тон задают демагогия и эмоции.
|
|
  |
 |
stas

Зарегистрирован: Вт 29 Январь 2008, 22:53
Сообщения: 916
Регион: Москва
|
Добавлено:
Вт 9 Январь 2018, 20:33
|
  |
| rimowith писал(а): |
| Еще раз добрый вечер. И надежда на обещания Владимира Семеновича, что стоит обратиться на форум, и сразу к вам заявятся с лопатами и вилами, немного покумекают и т.д., пока не оправдывается. |
У Вас там кажется еще плита варочная, через нее большие условные теплопотери, также во время топки из-за плиты температура в топливнике печи меньше, хуже качество горения, меньше тепла идет на нагрев котла, жарче на кухне - особенно во время топки.
|
_________________ Печник.
|
|
    |
 |
stas

Зарегистрирован: Вт 29 Январь 2008, 22:53
Сообщения: 916
Регион: Москва
|
Добавлено:
Вт 9 Январь 2018, 21:04
|
  |
| rimowith писал(а): |
| Еще раз добрый вечер. У нас мороз наконец-то отпустил. Можно расслабиться, забыть про эту злосчастную трубу и обмозговать одно небольшое открытие. Про недостаточный теплосъем я уже писал, про перекос температур в спальнях и на кухне – тоже. Чтобы в морозы до -40 в жилой зоне было комфортно, необходимо на подаче держать +50… 55. При этом на кухне для меня жарко. Заслонка летнего хода разгружает первый колпак, пуская горячие газы напрямую из первого во второй и далее в трубу, минуя кухонный обогревательный щиток, соединяющий два колпака. Планировалось, что разгрузка первого колпака будет снижать теплосъем котла на 25-30%. В последние дни ЗЛХ почти все время держал открытой, чтобы излишки тепла из кухни направить на прогрев трубы, во избежание засаживания. Так вот, специально перепроверялся – состояние ЗЛХ – открыта или закрыта – почти не влияет на теплосъем, т.е., для поддержания требуемых + 50… 55. Отсюда для себя делаю предварительный вывод, что площадь дипломата практически не влияет на теплосъем, работает конвектив, который экранирует дипломат. Думаю, этим объясняется недостача расчетного теплосъема. Я же площадь дипломата присуммировал к площади труб, а надо было ею пренебречь. Вот вам и эмпирика. Как говорит мой коллега, погрешность в плюс-минус одну трамвайную остановку для Сибири и столиц может различаться на порядок. Жалко, наши теплотехники еще больше месяца будут отдыхать после магаданской командировки. Верх колпака самое теплонапряженное место. У меня там коллектор конвективного пучка. Как разгрузка колпака может не влиять существенно на теплосъем? Непонятно. И надежда на обещания Владимира Семеновича, что стоит обратиться на форум, и сразу к вам заявятся с лопатами и вилами, немного покумекают и т.д., пока не оправдывается. |
У Вас ЗЛХ находится не в верху колпака, а в его середине, поэтому открытие ЗЛХ меньше влияет на работу первого колпака и так далее, также и с учетом маленького сечения трубы - при этом сечение отверстий из топливника в первый колпак сравнительно большое.
Важно: я думаю, у Вас есть риск попадания угарного газа в помещение. Обратите внимание на ваше самочувствие - нет ли признаков отравления угарным газом. Проверьте приборами.
|
_________________ Печник.
Последний раз редактировалось: stas (Вт 9 Январь 2018, 21:10), всего редактировалось 1 раз |
|
    |
 |
Александр Шалагин

Зарегистрирован: Пт 2 Январь 2009, 18:00
Сообщения: 1334
Регион: Киров
|
Добавлено:
Вт 9 Январь 2018, 21:07
|
  |
| rimowith писал(а): |
| Очень жалею, что отнесся скептически к совету одного старого теплотехника уменьшить диаметр конвективных труб с Ду40 до Ду25, а количество увеличить до площади, эквивалентной 22-24 кВт, т.е. с большим запасом. |
Да, тоже заметил что чем меньше диаметр трубы, тем котел лучше работает...меньше плачет и быстрее на большой круг переключается. Для нормальной работы истопника))) и системы, Вам нужно мощность котла увеличивать до 30кВт. (при прежнем количестве батарей) у Вас же кВт на 20.
Согласен со Станиславом, от плиты лучше отказаться. Мне кажется, возможно и ошибаюсь, конструкция получилась не герметичная...запах сажи будет слышен всегда.
Посмотрите, может что возьмете для себя нужное - http://forum.stovemaster.ru/viewtopic.php?t=5037&postdays=0&postorder=asc&&start=0 Со стороны регистра колпак зафутерован лещадкой ШБ-6, но для большей теплоемкости можно зафутеровать ШБ-5 или 8-м.
| rimowith писал(а): |
| Можно расслабиться, забыть про эту злосчастную трубу |
Кроме увеличение размера трубы на 5-к...Вам нужно ещё увеличить площадь колосниковой решетки..хотя бы до размера 200см.кв. ... живое сечение колосниковой решетки РУ-2, которая стоит у Вас - 160 см.кв.
| vladgri писал(а): |
Дык насос поставить, он разнесёт.
|
Насосом нечего разносить..конструкция не теплоемкая. С насосом, при запуске печи, рискуем вообще теплоноситель в системе не нагреть.
|
|
|
|
    |
 |
|
|
|
Следующая тема
Предыдущая тема
Вы не можете начинать темы Вы не можете отвечать на сообщения Вы не можете редактировать свои сообщения Вы не можете удалять свои сообщения Вы не можете голосовать в опросах Вы не можете добавлять приложения в этом форуме Вы можете скачивать файлы в этом форуме
|
|