| Автор |
Сообщение
|
Сергей68

Зарегистрирован: Пт 5 Декабрь 2008, 21:49
Сообщения: 855
Регион: Питер
|
Добавлено:
Чт 31 Июль 2014, 00:05
|
  |
Добрый день всему печному сообществу. Вот и настало время выложить информацию по одному нашему долгострою...
Заказчик обратился к нам по вопросу постройки кухонного комплекса еще в мае 2013 года, и по договоренности работы должны были начаться в сентябре этого года... но в нашей семье случилось несчастье, и все работы сдвинулись... посему за этот комплекс мы взялись в конце ноября 2013г. Строили мы его около 4 месяцев, периодически отвлекаясь на мелкие заказы. Потом расшивали недели 3... и вот уже подошло время монтировать столешки из гранита.
Отдельно хочу сказать- что добрая половина комплекса была построена Аркадием Деревенко, спасибо тебе Аркаша за твою ответственность и подстраховку.
Ну обо всем по порядку... крупицы информации просачивались здесь http://forum.stovemaster.ru/viewtopic.php?t=7274 и здесь http://forum.stovemaster.ru/viewtopic.php?t=7498&postdays=0&postorder=asc&&start=80
|
_________________ 8-921-743-33-53
| Описание: |
|
| Размер файла: |
131.22 КБ |
| Просмотров: |
1006 раз(а) |

|
|
|
    |
 |
Сергей68

Зарегистрирован: Пт 5 Декабрь 2008, 21:49
Сообщения: 855
Регион: Питер
|
Добавлено:
Чт 31 Июль 2014, 00:11
|
  |
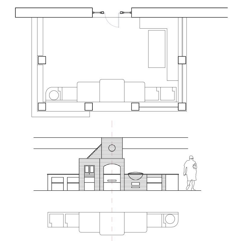
Началось все с проекта предоставленного архитектором... над проектом пришлось поработать... где то упереться лбом и настоять на своем... на выходе получился некий гибрид.
|
_________________ 8-921-743-33-53
| Описание: |
| Так видел свой комплекс заказчик |
|
| Размер файла: |
63.81 КБ |
| Просмотров: |
958 раз(а) |

|
| Описание: |
|
| Размер файла: |
57.8 КБ |
| Просмотров: |
909 раз(а) |

|
| Описание: |
|
| Размер файла: |
460.87 КБ |
| Просмотров: |
853 раз(а) |

|
|
|
    |
 |
Сергей68

Зарегистрирован: Пт 5 Декабрь 2008, 21:49
Сообщения: 855
Регион: Питер
|
Добавлено:
Чт 31 Июль 2014, 00:15
|
  |
Поскольку впереди предстояла зима... пришлось делать тепляк... причем двухконтурный.
|
_________________ 8-921-743-33-53
| Описание: |
|
| Размер файла: |
131.84 КБ |
| Просмотров: |
669 раз(а) |

|
| Описание: |
|
| Размер файла: |
143.51 КБ |
| Просмотров: |
651 раз(а) |

|
| Описание: |
|
| Размер файла: |
128.81 КБ |
| Просмотров: |
670 раз(а) |

|
|
|
    |
 |
Сергей68

Зарегистрирован: Пт 5 Декабрь 2008, 21:49
Сообщения: 855
Регион: Питер
|
Добавлено:
Чт 31 Июль 2014, 00:21
|
  |
Можно спорить о расположении мангала... о том что бегать от столов к приборам далеко... но таково видение архитектора, и переубедить в обратном нам его не удалось.
Отсюда и длина в 7,2 метра... помолясь начали.
|
_________________ 8-921-743-33-53
| Описание: |
|
| Размер файла: |
381.32 КБ |
| Просмотров: |
651 раз(а) |

|
| Описание: |
|
| Размер файла: |
382.32 КБ |
| Просмотров: |
689 раз(а) |

|
|
|
    |
 |
Сергей68

Зарегистрирован: Пт 5 Декабрь 2008, 21:49
Сообщения: 855
Регион: Питер
|
Добавлено:
Чт 31 Июль 2014, 00:30
|
  |
Потихоньку прирастали в кладке.
|
_________________ 8-921-743-33-53
| Описание: |
|
| Размер файла: |
64.94 КБ |
| Просмотров: |
702 раз(а) |

|
| Описание: |
|
| Размер файла: |
120.57 КБ |
| Просмотров: |
857 раз(а) |

|
| Описание: |
|
| Размер файла: |
64.01 КБ |
| Просмотров: |
707 раз(а) |

|
| Описание: |
|
| Размер файла: |
140.56 КБ |
| Просмотров: |
866 раз(а) |

|
|
|
    |
 |
Сергей68

Зарегистрирован: Пт 5 Декабрь 2008, 21:49
Сообщения: 855
Регион: Питер
|
Добавлено:
Чт 31 Июль 2014, 00:42
|
  |
Перед новым годом, приезжали наши друзья, пообщаться, обменяться мнениями, информацией...
|
_________________ 8-921-743-33-53
| Описание: |
|
| Размер файла: |
406.86 КБ |
| Просмотров: |
989 раз(а) |

|
| Описание: |
|
| Размер файла: |
381.24 КБ |
| Просмотров: |
850 раз(а) |

|
| Описание: |
|
| Размер файла: |
371.18 КБ |
| Просмотров: |
797 раз(а) |

|
| Описание: |
|
| Размер файла: |
384.36 КБ |
| Просмотров: |
823 раз(а) |

|
|
|
    |
 |
Сергей68

Зарегистрирован: Пт 5 Декабрь 2008, 21:49
Сообщения: 855
Регион: Питер
|
Добавлено:
Ср 19 Ноябрь 2014, 14:47
|
  |
Конструкция тандыра. По форме яйцо, положенное на бок.
... попилить пришлось...
|
_________________ 8-921-743-33-53
| Описание: |
|
| Размер файла: |
114.68 КБ |
| Просмотров: |
665 раз(а) |

|
| Описание: |
|
| Размер файла: |
112.3 КБ |
| Просмотров: |
532 раз(а) |

|
| Описание: |
|
| Размер файла: |
102.16 КБ |
| Просмотров: |
700 раз(а) |

|
| Описание: |
|
| Размер файла: |
122.26 КБ |
| Просмотров: |
796 раз(а) |

|
|
|
    |
 |
Сергей68

Зарегистрирован: Пт 5 Декабрь 2008, 21:49
Сообщения: 855
Регион: Питер
|
Добавлено:
Ср 19 Ноябрь 2014, 14:48
|
  |
Еще фоты тандыра
|
_________________ 8-921-743-33-53
| Описание: |
|
| Размер файла: |
102.64 КБ |
| Просмотров: |
687 раз(а) |

|
| Описание: |
|
| Размер файла: |
118.43 КБ |
| Просмотров: |
729 раз(а) |

|
| Описание: |
|
| Размер файла: |
126.09 КБ |
| Просмотров: |
636 раз(а) |

|
|
|
    |
 |
Сергей68

Зарегистрирован: Пт 5 Декабрь 2008, 21:49
Сообщения: 855
Регион: Питер
|
Добавлено:
Ср 19 Ноябрь 2014, 14:52
|
  |
Казан с круглым топливником. Сложностью было то, что заказчик не захотел видеть плиту из чугуна, нужны была столешка из гранита... Удалось решить и эту задачу.
Ну по порядку
|
_________________ 8-921-743-33-53
| Описание: |
|
| Размер файла: |
90.63 КБ |
| Просмотров: |
676 раз(а) |

|
| Описание: |
|
| Размер файла: |
63.06 КБ |
| Просмотров: |
705 раз(а) |

|
| Описание: |
|
| Размер файла: |
138.65 КБ |
| Просмотров: |
713 раз(а) |

|
|
|
    |
 |
Сергей68

Зарегистрирован: Пт 5 Декабрь 2008, 21:49
Сообщения: 855
Регион: Питер
|
Добавлено:
Ср 19 Ноябрь 2014, 14:54
|
  |
Еще про казан
|
_________________ 8-921-743-33-53
| Описание: |
|
| Размер файла: |
99.54 КБ |
| Просмотров: |
701 раз(а) |

|
| Описание: |
|
| Размер файла: |
130.06 КБ |
| Просмотров: |
763 раз(а) |

|
| Описание: |
|
| Размер файла: |
137.95 КБ |
| Просмотров: |
698 раз(а) |

|
| Описание: |
|
| Размер файла: |
104.53 КБ |
| Просмотров: |
718 раз(а) |

|
|
|
    |
 |
Сергей68

Зарегистрирован: Пт 5 Декабрь 2008, 21:49
Сообщения: 855
Регион: Питер
|
Добавлено:
Ср 19 Ноябрь 2014, 15:01
|
  |
Финальные
|
_________________ 8-921-743-33-53
| Описание: |
|
| Размер файла: |
479.41 КБ |
| Просмотров: |
801 раз(а) |

|
| Описание: |
|
| Размер файла: |
142.05 КБ |
| Просмотров: |
693 раз(а) |

|
| Описание: |
|
| Размер файла: |
136.66 КБ |
| Просмотров: |
729 раз(а) |

|
| Описание: |
|
| Размер файла: |
496.05 КБ |
| Просмотров: |
946 раз(а) |

|
|
|
    |
 |
Сергей68

Зарегистрирован: Пт 5 Декабрь 2008, 21:49
Сообщения: 855
Регион: Питер
|
Добавлено:
Ср 19 Ноябрь 2014, 15:03
|
  |
Камень
|
_________________ 8-921-743-33-53
| Описание: |
|
| Размер файла: |
112.58 КБ |
| Просмотров: |
679 раз(а) |

|
| Описание: |
|
| Размер файла: |
148.63 КБ |
| Просмотров: |
771 раз(а) |

|
| Описание: |
|
| Размер файла: |
134.04 КБ |
| Просмотров: |
660 раз(а) |

|
|
|
    |
 |
Fill07
Зарегистрирован: Ср 2 Май 2012, 14:44
Сообщения: 322
Регион: Москва
|
Добавлено:
Ср 19 Ноябрь 2014, 16:47
|
  |
Красота!
С точки зрения эргономики готовить в казане будет не очень удобно...кмк. Далековато от края столешницы. Белый кирпич - это ниже уровня чистого пола, правильно понимаю? На следующем комплексе попробуйте нижний ряд кирпича утопить вглубь на 50-60 мм - когда носки туфельтапочекботинок...ну в общем понятно...гораздо удобнее.
Да и маловат казанчик, 12 литров? 18? Вокруг него тоже камень будет по стенкам? Правильное решение, т.к. ручную формовку от жира никак не отмоешь, как впрочем и другой кирпич...
|
_________________ Начиная бой, думай о победе, иначе проиграешь...
| Описание: |
|
| Размер файла: |
324.73 КБ |
| Просмотров: |
737 раз(а) |

|
|
|
  |
 |
Алексей Артамонов
Зарегистрирован: Чт 19 Ноябрь 2009, 21:24
Сообщения: 174
|
Добавлено:
Ср 19 Ноябрь 2014, 17:34
|
  |
| Fill07 писал(а): |
| На следующем комплексе попробуйте нижний ряд кирпича утопить вглубь на 50-60 мм - когда носки туфельтапочекботинок...ну в общем понятно...гораздо удобнее. |
Тут и не поймешь что лучше, либо к казану поближе, либо, коленки поберечь от тепл. изл.
|
|
|
|
   |
 |
Fill07
Зарегистрирован: Ср 2 Май 2012, 14:44
Сообщения: 322
Регион: Москва
|
Добавлено:
Ср 19 Ноябрь 2014, 18:04
|
  |
вот и я заказчиков стараюсь убедить делать казан на краю, в торце столешницы, что бы подход был минимум с двух сторон, а лучше с трех...
|
_________________ Начиная бой, думай о победе, иначе проиграешь...
| Описание: |
|
| Размер файла: |
406.83 КБ |
| Просмотров: |
745 раз(а) |

|
| Описание: |
|
| Размер файла: |
358.22 КБ |
| Просмотров: |
652 раз(а) |

|
|
|
  |
 |
Сергей68

Зарегистрирован: Пт 5 Декабрь 2008, 21:49
Сообщения: 855
Регион: Питер
|
Добавлено:
Ср 19 Ноябрь 2014, 19:23
|
  |
| Fill07 писал(а): |
Красота!
С точки зрения эргономики готовить в казане будет не очень удобно...кмк. Далековато от края столешницы. Белый кирпич - это ниже уровня чистого пола, правильно понимаю? На следующем комплексе попробуйте нижний ряд кирпича утопить вглубь на 50-60 мм - когда носки туфельтапочекботинок...ну в общем понятно...гораздо удобнее.
Да и маловат казанчик, 12 литров? 18? Вокруг него тоже камень будет по стенкам? Правильное решение, т.к. ручную формовку от жира никак не отмоешь, как впрочем и другой кирпич... |
Спасибо!
Белый кирпич ... да ... ниже уровня чистового пола.
Компановка приборов не наша, был архитектор , которого под окончание работ хотелось в каком нибудь темном углу .... и присыпать кирпичами. Единственно что удалось отжать, так это как раз изразцы в зоне казана ( подготовленные ниши), изразец монтировать будем не мы.
Казанчик появился раньше ( был подарен заказчику его друзьями)... так что можно сказать , что комплекс пошел в дополнение к казану.
|
_________________ 8-921-743-33-53
|
|
    |
 |
Fill07
Зарегистрирован: Ср 2 Май 2012, 14:44
Сообщения: 322
Регион: Москва
|
Добавлено:
Ср 19 Ноябрь 2014, 19:33
|
  |
Архитекторы и дизайнЕры вечно портят настроение)))
|
_________________ Начиная бой, думай о победе, иначе проиграешь...
|
|
  |
 |
Сергей68

Зарегистрирован: Пт 5 Декабрь 2008, 21:49
Сообщения: 855
Регион: Питер
|
Добавлено:
Ср 19 Ноябрь 2014, 19:47
|
  |
| Fill07 писал(а): |
| Архитекторы и дизайнЕры вечно портят настроение))) |
Да на самом деле... уж лучше тереть с архитектором, чем заказчик тебе моск выносить будет.
|
_________________ 8-921-743-33-53
|
|
    |
 |
Алексей Артамонов
Зарегистрирован: Чт 19 Ноябрь 2009, 21:24
Сообщения: 174
|
Добавлено:
Ср 19 Ноябрь 2014, 20:15
|
  |
| Fill07 писал(а): |
| вот и я заказчиков стараюсь убедить делать казан на краю, в торце столешницы, что бы подход был минимум с двух сторон, а лучше с трех... |
Без полезно. Как правило УК строишь уже в готовой беседке, и подход к ним (очагу, очагам) только с фронта. Ну, или если уговорить столешницу не ставить, то можно и с боку подойти.
|
|
|
|
   |
 |
Сергей68

Зарегистрирован: Пт 5 Декабрь 2008, 21:49
Сообщения: 855
Регион: Питер
|
Добавлено:
Пт 21 Ноябрь 2014, 13:04
|
  |
| Fill07 писал(а): |
Белый кирпич - это ниже уровня чистого пола, правильно понимаю? На следующем комплексе попробуйте нижний ряд кирпича утопить вглубь на 50-60 мм - когда носки туфельтапочекботинок...ну в общем понятно...гораздо удобнее.
... |
На следующем не получится. Через один
Сейчас в работе этот... если б чуть раньше... а то на 10 ряду уже.
|
_________________ 8-921-743-33-53
| Описание: |
|
| Размер файла: |
463.02 КБ |
| Просмотров: |
770 раз(а) |

|
|
|
    |
 |
|
|