| Автор |
Сообщение
|
Коляныч
Зарегистрирован: Сб 23 Май 2015, 08:38
Сообщения: 18
Регион: Тверская область
|
Добавлено:
Сб 23 Май 2015, 09:07
|
  |
Здравствуйте,уважаемые.
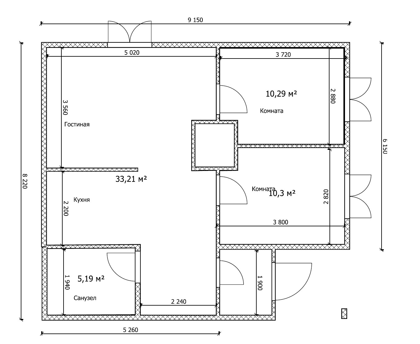
Прошу вашей помощи в выборе печи "Кузнецова",для отопления каркасного дома,площадью 55 кв/м. Дом одноэтажный,утепление стен 150 мм (минвата),потолка 200 мм,пола 150 мм.Три окна,входная дверь с тамбуром.
Прилагаю примерную схему планировки,с предварительным размещением будущей печи.
Надеюсь на вашу помощь.
Спасибо.
|
| Описание: |
|
| Размер файла: |
176.89 КБ |
| Просмотров: |
1114 раз(а) |

|
|
|
  |
 |
Коляныч
Зарегистрирован: Сб 23 Май 2015, 08:38
Сообщения: 18
Регион: Тверская область
|
Добавлено:
Сб 23 Май 2015, 10:11
|
  |
Забыл добавить,что дом будет строиться в Тверской области,для пмж.
|
|
|
|
  |
 |
Владимир Солин

Зарегистрирован: Ср 9 Сентябрь 2009, 12:52
Сообщения: 3804
Регион: Череповец
|
Добавлено:
Сб 23 Май 2015, 22:00
|
  |
дом одноэтажный?
Теплопотери бы еще прикинуть... Планировка отличная для печного отопления.
Не забывать про противопожарные разделки от печки к простенкам.
|
_________________ САМОназначенный дебил форума в 2017году
|
|
  |
 |
Коляныч
Зарегистрирован: Сб 23 Май 2015, 08:38
Сообщения: 18
Регион: Тверская область
|
Добавлено:
Вс 24 Май 2015, 00:41
|
  |
Спасибо за ответ .Общие теплопотери помещения,по версии онлайн-калькулятора,составили 5580 Вт.
Дом для пмж.
Пока присмотрел отопительно-варочную печь с нижним обогревом,размером 1290х1140 мм,конструкции Порфирьева.
|
|
|
|
  |
 |
Коляныч
Зарегистрирован: Сб 23 Май 2015, 08:38
Сообщения: 18
Регион: Тверская область
|
Добавлено:
Вс 24 Май 2015, 06:43
|
  |
Вот только глубина топки всего 510 мм. Маловато будет
|
|
|
|
  |
 |
Коляныч
Зарегистрирован: Сб 23 Май 2015, 08:38
Сообщения: 18
Регион: Тверская область
|
Добавлено:
Вс 24 Май 2015, 06:49
|
  |
Простите великодушно, указанная мною выше печь,никакого отношения к ув.гну.Порфирьеву не имеет.
|
|
|
|
  |
 |
internet_pechnik
Зарегистрирован: Вт 9 Апрель 2013, 19:51
Сообщения: 1892
Регион: belarus
|
Добавлено:
Вс 24 Май 2015, 08:25
|
  |
сплошной сумбур у вас,то нужна печь Кузнецова но Кузнецов чет в ковычках, то наглядел таки печь Порфирьева,то полметра топка маловато будет....
|
|
|
|
  |
 |
Коляныч
Зарегистрирован: Сб 23 Май 2015, 08:38
Сообщения: 18
Регион: Тверская область
|
Добавлено:
Вс 24 Май 2015, 08:39
|
  |
Да,прошу прощения,невнимательно отнёсся к полученной информации,всё свалил в кучу.
Кузнецов в кавычках,потому,что воспринимал фамилию,как название семейства печей объединённых схожим принципом нагрева.
В общем малость запутался.
И так,нужна печь,для отопления дома площадью 55 кв/м.
Автор проекта не важен.
Схема планировки вверху темы.
|
|
|
|
  |
 |
Коляныч
Зарегистрирован: Сб 23 Май 2015, 08:38
Сообщения: 18
Регион: Тверская область
|
Добавлено:
Вс 24 Май 2015, 09:11
|
  |
Вот,нашёл у Порфирьева.Отопительная печь с нижним обогревом,размером 1290х1020.
|
| Описание: |
|
| Размер файла: |
161.32 КБ |
| Просмотров: |
835 раз(а) |

|
| Описание: |
|
| Размер файла: |
362.19 КБ |
| Просмотров: |
971 раз(а) |

|
|
|
  |
 |
tuomob

Зарегистрирован: Пн 26 Сентябрь 2011, 16:45
Сообщения: 2362
Регион: Тула
|
Добавлено:
Вс 24 Май 2015, 09:29
|
  |
| Коляныч писал(а): |
| Вот,нашёл у Порфирьева.Отопительная печь с нижним обогревом,размером 1290х1020. |
Футеровки топки шамотом не хватает.
Красный в топке долго не выдержит.
Сколько времени есть? Подумать надо......
|
_________________ С Уважением! Юрий. Тула.
ВК https://vk.com/tuomob
За проектами в личку обращайтесь.
|
|
  |
 |
Коляныч
Зарегистрирован: Сб 23 Май 2015, 08:38
Сообщения: 18
Регион: Тверская область
|
Добавлено:
Вс 24 Май 2015, 09:34
|
  |
| tuomob писал(а): |
| Коляныч писал(а): |
| Вот,нашёл у Порфирьева.Отопительная печь с нижним обогревом,размером 1290х1020. |
Футеровки топки шамотом не хватает.
Красный в топке долго не выдержит.
Сколько времени есть? Подумать надо...... |
С первого июня планирую начать стройку каркасника,недели три есть,точно.
Спасибо.
|
|
|
|
  |
 |
Коляныч
Зарегистрирован: Сб 23 Май 2015, 08:38
Сообщения: 18
Регион: Тверская область
|
Добавлено:
Вс 24 Май 2015, 09:44
|
  |
|
  |
 |
Евгений Колчин

Зарегистрирован: Чт 3 Октябрь 2002, 06:26
Сообщения: 10146
Регион: Москва
|
Добавлено:
Вс 24 Май 2015, 10:40
|
  |
| Коляныч писал(а): |
| Ещё бы топку побольше... |
Печь хорошая ...
Топка на 10 кг, что при двухразовой топке 2.5 кВт
Чаще именно так будете пользоваться печью и только в морозы ниже 10*С делать по две закладки на раз.
|
_________________ ************************************
|
|
      |
 |
Коляныч
Зарегистрирован: Сб 23 Май 2015, 08:38
Сообщения: 18
Регион: Тверская область
|
Добавлено:
Вс 24 Май 2015, 10:45
|
  |
Но в описании,говорится о 6,2 кВт
|
| Описание: |
|
| Размер файла: |
140.88 КБ |
| Просмотров: |
786 раз(а) |

|
|
|
  |
 |
Коляныч
Зарегистрирован: Сб 23 Май 2015, 08:38
Сообщения: 18
Регион: Тверская область
|
Добавлено:
Вс 24 Май 2015, 10:48
|
  |
tuomob писал,что в топке нет шамотного кирпича,а зачем тогда 90 шт. огнеупорного кирпича?
|
|
|
|
  |
 |
Евгений Колчин

Зарегистрирован: Чт 3 Октябрь 2002, 06:26
Сообщения: 10146
Регион: Москва
|
Добавлено:
Вс 24 Май 2015, 10:55
|
  |
| Коляныч писал(а): |
Но в описании,говорится о 6,2 кВт  |
я говорил за сжигание по 10 кг два раза в сутки
для получения указанной вами цифры надо сжигать соответственно
|
_________________ ************************************
|
|
      |
 |
Коляныч
Зарегистрирован: Сб 23 Май 2015, 08:38
Сообщения: 18
Регион: Тверская область
|
Добавлено:
Вс 24 Май 2015, 10:58
|
  |
Простите,осознал.Как-то не привык дрова,килограммами мерять
И как подсчитать,сколько надо сжечь дров,чтобы получить 6 кВт?
|
|
|
|
  |
 |
Furby

Зарегистрирован: Пт 8 Май 2015, 15:33
Сообщения: 417
Регион: Биробиджан
|
Добавлено:
Вс 24 Май 2015, 16:23
|
  |
| Коляныч писал(а): |
Простите,осознал.Как-то не привык дрова,килограммами мерять
И как подсчитать,сколько надо сжечь дров,чтобы получить 6 кВт? |
В кг привыкайте мерить - это более профессионально, чем просто расплывчатые "полешки". Х.з. какое полешко - 0,5 или 3 кг.
От сгорания дров получают не просто кВт, а именно кВт*ч. Так вот в среднем 1 кг дров при сжигании дают 3,5кВт*ч. Сам проверял на нескольких отоп. сезонах. Считал теплопотери дома и сгоревшие кг дровьев, примерно на эту цифру и выходит.
При горении 1 кг дров (условно) может в единицу времени давать напр. 1 кВт, а может и 10 кВт, смотря какое горение (медленное тление или активное сгорание, (это очень образно, что б к словам не придирались умники)). Но в итоге выделится одно количество энергии = 3,5кВт*ч.
Гугл как всегда поможет, накрайняк. Там то же самое есть.))
Всего самого...!
|
|
|
|
  |
 |
Furby

Зарегистрирован: Пт 8 Май 2015, 15:33
Сообщения: 417
Регион: Биробиджан
|
Добавлено:
Вс 24 Май 2015, 16:36
|
  |
| Коляныч писал(а): |
И как подсчитать,сколько надо сжечь дров,чтобы получить 6 кВт? |
И по существу вопроса:
если теплопотери дома около 6 кВт, то дров надо сжечь в сутки -
6*24ч=144кВт*ч
144/3,5=40кг дров
Т.о. вам в сутки надо палить 40кг дров.
144кВт*ч эл.энергии по 2,5р будет стоить 360руб/сутки на отоплении электричиством
144кВт*ч дровяной энергии по 2 рэ./кг дров (естно примерно) то выходит 80руб. в сутки на отопл. дровами. В месяц выходит экономия в 8т.р., т.е. на дровах потратите 2400р., а на элэнергии- 11000руб.
Теперь, кто если найдёт ошибку (по идее не должно быть, кроме погрешности округлений), буду рад осознать и исправиться.
С наилучшими пожеланиями...!
|
|
|
|
  |
 |
Коляныч
Зарегистрирован: Сб 23 Май 2015, 08:38
Сообщения: 18
Регион: Тверская область
|
Добавлено:
Вс 24 Май 2015, 20:29
|
  |
Спасибо большое за обьяснение.
Вот теперь сложилась полная картина. Я обычный сельский житель и у нас дрова не взвешивают.Спроси кого сколько тонн дров ты заготовил на зиму,начнут стороной обходить.
Расчет идет кубометрами.
Еще раз,спасибо за помощь!
|
|
|
|
  |
 |
|
|