 |
|
 |
| Автор |
Сообщение
|
D.Pavlovsky
Зарегистрирован: Сб 12 Сентябрь 2015, 16:13
Сообщения: 4
Регион: Москва
|
Добавлено:
Сб 12 Сентябрь 2015, 16:42
|
  |
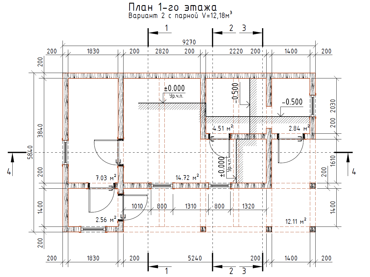
Баня общей площадью 83,31 кв.м., расположенной на частной территории (проживание постоянное),
по адресу: МО, Одинцовский р-он, с. Сидоровское.
Что имеем:
- Лента фундамента и сруб (профильные бревна рубленые в лапу, нижние 3 венца лиственница выше сосна) были построены в 2012 году.
Фирма изготовитель и строитель испарилась во времени вместе с проектом.
- Обмерные планы и разрезы (см. вложения)
- Восстановленная планировка с примерным расположением основных композиционных узлов.
Что планируем:
В ближайшее время планируем начать работы с тем чтобы Новый год справлять с паром.
В конце сентября планируем работы:
- по подводке инженерных систем (электричество, холодная вода, канализация)
- заливке перекрытия 1-го этажа
- заливке фундамента бани
В октябре-ноябре:
- Устройство окон и дверей
- Устройство перекрытий 2-го этажа
- Устройство печи
- Устройство теплых полов
- Устройство финишного основания
- Прокладка инженерных систем
- Тепло- и влагоизоляция стен и потолков
- Отделка стен и потолков 1-го этажа
В ноябре-декабре:
- Установка сантехники
- Устройство теплоизоляции стен 2-го этажа
- Прокладка инженерных систем
- Отделка стен
- Финишное покрытие пола 2-го этажа
Техническое задание на печь:
- каменка дровяная
- в кирпичной обкладке
- с хлебной печью
- с возможностью обогрева помещений 1-го этажа
- водяной контур с возможностью подключения к сантехнике
- устройство дымохода
Ввиду того что я ограничен в сроках проектирования (дата окончания строительства декабрь 2015)
и дилетант в устройстве бань, ниже предлагаю рассмотреть только гипотетические варианты перепланировки:
Вариант 1. Предполагаемая площадь парилки 4,51 м2 (9,92м3) нам кажется недостаточной т.к. у нас есть крупные члены семьи. Если разделить моечную и парилку перегородкой посередине, тогда площадь парилки вырастет до 8,21м2 (18,6м3) и в ней с комфортом разместятся все члены семьи (см. вложение)
Вариант 2. Пол парилки и растопочной опустить на пол метра, тем самым обеспечив больший объем парной (12,18м3) и более комфортное размещение в парилке (см. вложение)
Вариант 3. Может есть какое-то более удачное место для установки печи в бане.
Прошу посоветовать, к кому бы я мог обратиться с данным заказом.
Чтобы работа была выполнена качественно, быстро и за адекватные работе деньги.
Устройство фундамента печи и своевременную оплату гарантирую.
|
| Описание: |
|
| Размер файла: |
105.69 КБ |
| Просмотров: |
777 раз(а) |

|
| Описание: |
|
| Размер файла: |
144.76 КБ |
| Просмотров: |
818 раз(а) |

|
| Описание: |
|
| Размер файла: |
108.5 КБ |
| Просмотров: |
650 раз(а) |

|
| Описание: |
|
| Размер файла: |
121.07 КБ |
| Просмотров: |
707 раз(а) |

|
| Описание: |
|
| Размер файла: |
58.69 КБ |
| Просмотров: |
659 раз(а) |

|
|
|
  |
 |
D.Pavlovsky
Зарегистрирован: Сб 12 Сентябрь 2015, 16:13
Сообщения: 4
Регион: Москва
|
Добавлено:
Сб 12 Сентябрь 2015, 16:43
|
  |
Разрезы
|
| Описание: |
|
| Размер файла: |
221.25 КБ |
| Просмотров: |
667 раз(а) |

|
| Описание: |
|
| Размер файла: |
291.47 КБ |
| Просмотров: |
660 раз(а) |

|
| Описание: |
|
| Размер файла: |
125.72 КБ |
| Просмотров: |
675 раз(а) |

|
|
|
  |
 |
D.Pavlovsky
Зарегистрирован: Сб 12 Сентябрь 2015, 16:13
Сообщения: 4
Регион: Москва
|
Добавлено:
Сб 12 Сентябрь 2015, 16:44
|
  |
фото
|
| Описание: |
|
| Размер файла: |
91.84 КБ |
| Просмотров: |
781 раз(а) |

|
| Описание: |
|
| Размер файла: |
55.08 КБ |
| Просмотров: |
789 раз(а) |

|
| Описание: |
|
| Размер файла: |
55.68 КБ |
| Просмотров: |
771 раз(а) |

|
|
|
  |
 |
Гребенчюк Андрей

Зарегистрирован: Чт 9 Сентябрь 2010, 17:23
Сообщения: 1211
Регион: Ленинградская область
|
Добавлено:
Сб 12 Сентябрь 2015, 20:38
|
  |
Фундамент под баню какой?
|
|
|
|
  |
 |
D.Pavlovsky
Зарегистрирован: Сб 12 Сентябрь 2015, 16:13
Сообщения: 4
Регион: Москва
|
Добавлено:
Сб 12 Сентябрь 2015, 21:40
|
  |
Я так понимаю имеется ввиду фундамент под печь
Предполагается 2 варианта:
1. устроить независимый фундамент внутри периметра помещения 2,84 габариты по заданию печника
примерный пирог:
- Бетон В20 F200 W6 - 300 мм
- бетонная подготовка из бетона В7,5 - 60-80 мм
- щебень фракции 10-20 - 100 мм
- песчаная подсыпка (коэффициент уплотнения 0,95) - 600-800 мм
2. в месте установки печи сделать дополнительное усиление из 14 двутавра
перекрытие выполнить так же как в общем случае
провести дополнительные противопожарные мероприятия
|
|
|
|
  |
 |
Гребенчюк Андрей

Зарегистрирован: Чт 9 Сентябрь 2010, 17:23
Сообщения: 1211
Регион: Ленинградская область
|
Добавлено:
Сб 12 Сентябрь 2015, 23:12
|
  |
Независимый однозначно, про арматуру забыли. Водяной контур только из нержавейки, из простого метала быстро прогорит.
|
|
|
|
  |
 |
смирнов иван
Зарегистрирован: Чт 16 Январь 2014, 13:06
Сообщения: 1168
Регион: москва
|
Добавлено:
Вс 13 Сентябрь 2015, 00:02
|
  |
Водяной контур в печи имеет свои минусы. Завязанное на него отопление должно работать постоянно, а печь, все- таки и как правило, - теплогенератор периодического действия. Совместить, если я правильно понимаю, каменку и хк в одной печи довольно сложно. Если только сблокировать две печи в один массив, тогда можно попробовать обойтись без разводки отопления, как вариант.
|
_________________ Камины , печи , барбекю , русские печи , ремонт ,переделка.8(903)286-88-58
|
|
    |
 |
|
|
|
Следующая тема
Предыдущая тема
Вы не можете начинать темы Вы не можете отвечать на сообщения Вы не можете редактировать свои сообщения Вы не можете удалять свои сообщения Вы не можете голосовать в опросах Вы не можете добавлять приложения в этом форуме Вы можете скачивать файлы в этом форуме
|
|