 |
|
 |
| Автор |
Сообщение
|
Mahounis
Зарегистрирован: Ср 8 Июнь 2016, 07:53
Сообщения: 5
Регион: Спб
|
Добавлено:
Ср 8 Июнь 2016, 08:04
|
  |
Всем здравствуйте, подскажите схему раскладки для каркасной варочной печи. Мастеров у нас в деревне нет, сам не клал , но руки имеются, справлюсь, но куда что укладывать, понятия не имею. И сколько примерно кирпича надо на кладку? Купил для начала 20 шт. ШБ-8.
|
| Описание: |
|
| Размер файла: |
133.12 КБ |
| Просмотров: |
1091 раз(а) |

|
|
|
  |
 |
Шура

Зарегистрирован: Чт 8 Январь 2009, 20:09
Сообщения: 4171
Регион: Москва - Тамбов
|
Добавлено:
Ср 8 Июнь 2016, 09:20
|
  |
| Mahounis писал(а): |
| Всем здравствуйте, подскажите схему раскладки для каркасной варочной печи. Мастеров у нас в деревне нет, сам не клал , но руки имеются, справлюсь, но куда что укладывать, понятия не имею. И сколько примерно кирпича надо на кладку? Купил для начала 20 шт. ШБ-8. |
Точные размеры каркаса укажите?
|
|
|
|
   |
 |
Евгений Колчин

Зарегистрирован: Чт 3 Октябрь 2002, 06:26
Сообщения: 10146
Регион: Москва
|
Добавлено:
Ср 8 Июнь 2016, 09:25
|
  |
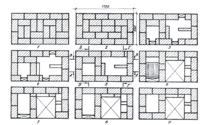
у вас должно быть что то типа этого
расстояние от перевала до плиты один ряд -7 см
|
_________________ ************************************
| Описание: |
|
| Размер файла: |
75.89 КБ |
| Просмотров: |
1402 раз(а) |

|
|
|
      |
 |
Mahounis
Зарегистрирован: Ср 8 Июнь 2016, 07:53
Сообщения: 5
Регион: Спб
|
Добавлено:
Ср 8 Июнь 2016, 09:42
|
  |
| Евгений Колчин писал(а): |
у вас должно быть что то типа этого
расстояние от перевала до плиты один ряд -7 см |
не силен в терминах, можно более доступным языком ? и
подскажите, на схеме кирпичи "лежат" или "стоят" ?
|
|
|
|
  |
 |
Mahounis
Зарегистрирован: Ср 8 Июнь 2016, 07:53
Сообщения: 5
Регион: Спб
|
Добавлено:
Ср 8 Июнь 2016, 09:43
|
  |
| Шура писал(а): |
| Mahounis писал(а): |
| Всем здравствуйте, подскажите схему раскладки для каркасной варочной печи. Мастеров у нас в деревне нет, сам не клал , но руки имеются, справлюсь, но куда что укладывать, понятия не имею. И сколько примерно кирпича надо на кладку? Купил для начала 20 шт. ШБ-8. |
Точные размеры каркаса укажите? |
к сожалению, смогу сказать не раньше субботы, когда приеду в деревню.
|
|
|
|
  |
 |
Евгений Колчин

Зарегистрирован: Чт 3 Октябрь 2002, 06:26
Сообщения: 10146
Регион: Москва
|
Добавлено:
Ср 8 Июнь 2016, 10:03
|
  |
| Mahounis писал(а): |
| на схеме кирпичи "лежат" или "стоят" ? |
... в основном "лежат"
в своей печи будете выстраивать по формату, но думаю, что будет практически как на схеме
|
_________________ ************************************
|
|
      |
 |
Mahounis
Зарегистрирован: Ср 8 Июнь 2016, 07:53
Сообщения: 5
Регион: Спб
|
Добавлено:
Ср 8 Июнь 2016, 11:02
|
  |
| Евгений Колчин писал(а): |
| Mahounis писал(а): |
| на схеме кирпичи "лежат" или "стоят" ? |
... в основном "лежат"
в своей печи будете выстраивать по формату, но думаю, что будет практически как на схеме |
понял вас, спасибо!
|
|
|
|
  |
 |
Чуриков Александр

Зарегистрирован: Чт 18 Май 2006, 07:25
Сообщения: 2293
Регион: Санкт-Петербург
|
Добавлено:
Ср 8 Июнь 2016, 14:42
|
  |
Часто в таких каркасах кирпичики на ребро
|
_________________ +7-921-742-16-92 Услуги печника. Кладка печей, мангалов, банных печей, чертежи
***********************************************************************
|
|
     |
 |
Mahounis
Зарегистрирован: Ср 8 Июнь 2016, 07:53
Сообщения: 5
Регион: Спб
|
Добавлено:
Ср 8 Июнь 2016, 14:54
|
  |
| Чуриков Александр писал(а): |
| Часто в таких каркасах кирпичики на ребро |
вот теперь запутался... на ребро-это значит "стоят", а выше написали "лежат". как же делать в итоге ?
|
|
|
|
  |
 |
Чуриков Александр

Зарегистрирован: Чт 18 Май 2006, 07:25
Сообщения: 2293
Регион: Санкт-Петербург
|
Добавлено:
Ср 8 Июнь 2016, 15:03
|
  |
| Mahounis писал(а): |
| Чуриков Александр писал(а): |
| Часто в таких каркасах кирпичики на ребро |
вот теперь запутался... на ребро-это значит "стоят", а выше написали "лежат". как же делать в итоге ? |
каркас это готовое изделие, рассчитанное на определённую порядовку или кладку. Посмотрите, если у Вас слева от дверки помещается кирпич на "лежмя", то и кладите так. Если нет, то каркас рассчитывался на кладку на ребро. Мне кажется, что при детальном рассмотрении каркаса скорее всего кирпич лёжа не поместится в топке. Где поддувальная дверка там да. Да и справа, где духовой шкаф, то то же похоже не влезет туда кирпич. Там ведь ещё и зазор должен быть вокруг духовки для омывания её дымовыми газами.
|
_________________ +7-921-742-16-92 Услуги печника. Кладка печей, мангалов, банных печей, чертежи
***********************************************************************
|
|
     |
 |
|
|
|
Следующая тема
Предыдущая тема
Вы не можете начинать темы Вы не можете отвечать на сообщения Вы не можете редактировать свои сообщения Вы не можете удалять свои сообщения Вы не можете голосовать в опросах Вы не можете добавлять приложения в этом форуме Вы можете скачивать файлы в этом форуме
|
|