Некоммерческое партнерство Альянс Печных Дел Мастера
 RSS  • FAQ  •  Поиск  •  Пользователи  •  Группы   •  Регистрация   •  Избранные темы   •  Профиль  •  Войти и проверить личные сообщения  •  Чат  •  Вход





 Ищу специалиста для выкладки барбекю Следующая тема
Предыдущая тема
Начать новую темуОтветить на тему
Автор Сообщение
Александр15



Зарегистрирован: Пт 25 Сентябрь 2015, 20:14
Сообщения: 5
Регион: москва

СообщениеДобавлено: Пт 25 Сентябрь 2015, 21:07 Ответить с цитатойВернуться к началу

Ищу специалиста для выкладки барбекю.Работа в ближайшие дни, Новорижское шоссе, район Звенигорода. только кто готов выйти в понедельник.
Почта dobrodruh@mail.ru [/b]



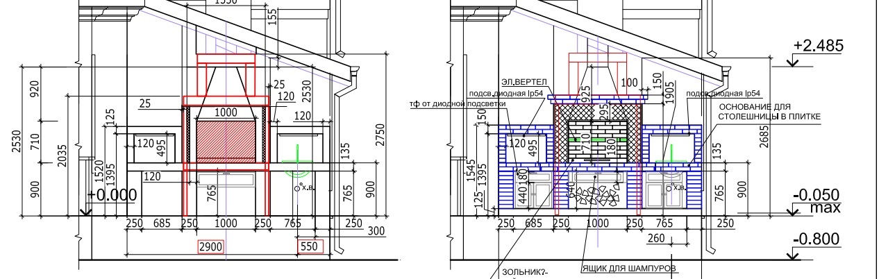
Барбекю.jpg
 Описание:
 Размер файла:  172.03 КБ
 Просмотров:  841 раз(а)

Барбекю.jpg


Посмотреть профильОтправить личное сообщениеОтправить e-mail
ivgen77



Зарегистрирован: Сб 14 Март 2015, 14:03
Сообщения: 49
Регион: Мос.обл

СообщениеДобавлено: Вс 27 Сентябрь 2015, 20:40 Ответить с цитатойВернуться к началу

в сезон то и так торопить мастеров . никуда не годиться
Посмотреть профильОтправить личное сообщение
internet_pechnik



Зарегистрирован: Вт 9 Апрель 2013, 19:51
Сообщения: 1892
Регион: belarus

СообщениеДобавлено: Пн 28 Сентябрь 2015, 15:43 Ответить с цитатойВернуться к началу

ivgen77 писал(а):
в сезон то и так торопить мастеров . никуда не годиться
ага типа: или давай всё бросай и -ко мне, или иди нафиг. лажа Sad
Посмотреть профильОтправить личное сообщение
Показать сообщения:      
Начать новую темуОтветить на тему


 Перейти:   



Следующая тема
Предыдущая тема
Вы не можете начинать темы
Вы не можете отвечать на сообщения
Вы не можете редактировать свои сообщения
Вы не можете удалять свои сообщения
Вы не можете голосовать в опросах
Вы не можете добавлять приложения в этом форуме
Вы можете скачивать файлы в этом форуме




Проект форум печников "Альянс. Печных Дел Мастера" © 2006-2026