 |
|
 |
| Автор |
Сообщение
|
Vordes
Зарегистрирован: Ср 10 Декабрь 2014, 20:43
Сообщения: 15
Регион: Москва
|
Добавлено:
Ср 5 Август 2015, 08:32
|
  |
Добрый день!
По рекомендациям из темы в соседнем разделе, собираюсь переложить печь, сложенную из щелевого кирпича. Труба сложена из красного кирпича, поэтому трогать ее по возможности не хочется. В первую очередь хочу определиться с конструкцией печи и предполагаемые затраты. Место расположения - МО, Дмитровский район. Предполагаемое время выполнения работ - четвертый квартал.
|
| Описание: |
|
| Размер файла: |
363.76 КБ |
| Просмотров: |
862 раз(а) |

|
| Описание: |
|
| Размер файла: |
630.24 КБ |
| Просмотров: |
895 раз(а) |

|
| Описание: |
|
| Размер файла: |
762.96 КБ |
| Просмотров: |
906 раз(а) |

|
| Описание: |
|
| Размер файла: |
67.15 КБ |
| Просмотров: |
876 раз(а) |

|
|
|
  |
 |
Василий Васильевич
Зарегистрирован: Вт 25 Март 2014, 15:15
Сообщения: 304
Регион: Сергиев Посад
|
Добавлено:
Ср 5 Август 2015, 18:15
|
  |
вопрос у Вас не совсем понятен.........что нужно то? может Вам русскую забубенить?.....или такую же ( по габаритам)? варочную плиту тоже? расскажите, чем Вам ваша печка не угодила?
|
_________________ не беспокойте меня, заказчиков здесь не ищу
|
|
   |
 |
Деревенский Печеклад

Зарегистрирован: Вс 31 Май 2015, 21:32
Сообщения: 83
Регион: Вятский
|
Добавлено:
Ср 5 Август 2015, 18:49
|
  |
Думаю, что здравомыслящему человеку, наверняка не понравится дымление печи при открытии топочной дверки, а то и без оного. А также наличие трещины на всю высоту ниши плиты. Да и взглянув на толщину шва, смею предположить о низкой квалификации исполнителя работ по строительству печи. К тому же отсутствует футеровка топливника. В топливнике задняя стенка не перевязана (5 рядов сплошной вертикальный шов). Отсутствует ППР потолочного перекрытия. И это только то, что можно видеть на фото, может еще что упустил.
|
_________________ Друг мой, — ответил Микеланджело, — совершенство — не мелочь, но складывается из мелочей.
8(963)5537005
|
|
  |
 |
Василий Васильевич
Зарегистрирован: Вт 25 Март 2014, 15:15
Сообщения: 304
Регион: Сергиев Посад
|
Добавлено:
Ср 5 Август 2015, 20:26
|
  |
Глазастый деревня, рассмотрел, даром что в шлеме.
Знал одного чувачка, рассказывал как камин выкладывал одному.
Сделал, дымит.
начал разбирать.
Хозяин бежит, зачем, говорит.
Дымит.
Хрен с нём. Красиво.
Среди современных людей заметил такую тенденцию. Есть два варианта показать себя лучше. Сделать лучше, либо обосрать другого. Многие идут по второму. Надо ж *** показать себя умнее.
Деревня, ты умнее, твой заказ, бери.
Вопрос остаётся открытым.
Что хотелось то заказчику расскажи………..
|
_________________ не беспокойте меня, заказчиков здесь не ищу
|
|
   |
 |
Vordes
Зарегистрирован: Ср 10 Декабрь 2014, 20:43
Сообщения: 15
Регион: Москва
|
Добавлено:
Чт 6 Август 2015, 08:02
|
  |
"расскажите, чем Вам ваша печка не угодила?"
Первоначально, еще в прошлом году, я попросил совета, как быть с трещинами печи и высыпаниями раствора из швов (ссылку я приводил выше). В ходе общения я понял, что использованный при строительстве щелевой кирпич не допускается применять для печей. Встал вопрос с перекладкой. Заодно, может быть стоит изменить и конструкцию.
Печь нужна отопительная (варочная панель в особо не требуется). Печь является основным отоплением (вспомогательное отопление - маломощные электрические нагреватели).
Позже выложу план дома.
|
|
|
|
  |
 |
Василий Васильевич
Зарегистрирован: Вт 25 Март 2014, 15:15
Сообщения: 304
Регион: Сергиев Посад
|
Добавлено:
Чт 6 Август 2015, 17:56
|
  |
ну вот теперь людям понятна................чтож ждём плана дома
по поводу щелевого кирпича..............три года назад довелось увидеть печь сделанную из такого кирпича............... хозяйка рассказала, что муж покойный (не печник) построил её 15 лет назад.......кирпича не было печного...........сделана с хитростью..............до сих пор стоит и исправно работает..............вот
|
_________________ не беспокойте меня, заказчиков здесь не ищу
|
|
   |
 |
Dreamdavids
Зарегистрирован: Сб 29 Октябрь 2011, 07:18
Сообщения: 1105
Регион: Пермь
|
Добавлено:
Чт 6 Август 2015, 18:48
|
  |
| Василий Васильевич писал(а): |
| хозяйка рассказала, что сделана с хитростью |
Бабка надвое сказала или из серии ОБГ
|
_________________ +79222445758 Владимир
|
|
  |
 |
Vordes
Зарегистрирован: Ср 10 Декабрь 2014, 20:43
Сообщения: 15
Регион: Москва
|
Добавлено:
Чт 6 Август 2015, 19:58
|
  |
"сделана с хитростью"
Щели небось заполнены?
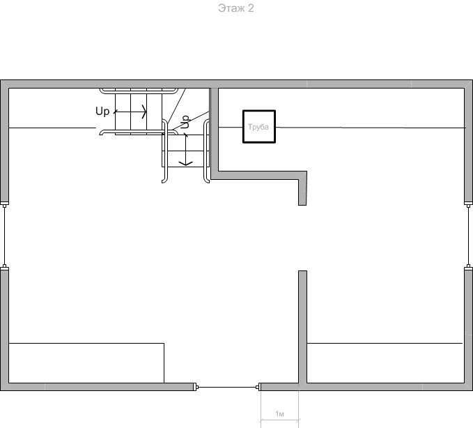
На схеме первого этажа печка показана по границам фундамента.
Схема второго этажа дана без точной привязки, поэтому нет размеров.
Потолок первого этажа - около 2,4 м.
Второй этаж мансардный. Примерно показана линия, на которой высота около 1 м.
|
| Описание: |
|
| Размер файла: |
28.49 КБ |
| Просмотров: |
678 раз(а) |

|
| Описание: |
|
| Размер файла: |
37.06 КБ |
| Просмотров: |
810 раз(а) |

|
|
|
  |
 |
ЭД

Зарегистрирован: Пн 9 Май 2011, 13:54
Сообщения: 44
Регион: МОСКОВСКАЯ ОБЛАСТЬ
|
Добавлено:
Чт 6 Август 2015, 20:22
|
  |
Расположение очень бестолковое для печи,тем более для отопительной,вероятно это производная ошибка от имеющегося ошибочного фундамента. Да и конструкцию необходимо менять ,если цель в отоплении
|
_________________ HEN38@YANDEX.RU 8-917-5286742 ЭДУАРД
|
|
   |
 |
смирнов иван
Зарегистрирован: Чт 16 Январь 2014, 13:06
Сообщения: 1171
Регион: москва
|
Добавлено:
Чт 6 Август 2015, 20:58
|
  |
Согласен. Расположение хуже некуда. По плану выходит,что две стенки печи практически не работают.
|
_________________ Камины , печи , барбекю , русские печи , ремонт ,переделка.8(903)286-88-58
|
|
    |
 |
Vordes
Зарегистрирован: Ср 10 Декабрь 2014, 20:43
Сообщения: 15
Регион: Москва
|
Добавлено:
Пт 7 Август 2015, 08:36
|
  |
То, что пропустил о доме. Дом из бруса 150x100, утеплен (пока что кроме цоколя) 100 мм Изовол. Проживание на обеих этажах.
На выходных постараюсь просчитать теплопотери. При необходимости могу сделать дополнительные фотографии или снять размеры.
|
|
|
|
  |
 |
Василий Васильевич
Зарегистрирован: Вт 25 Март 2014, 15:15
Сообщения: 304
Регион: Сергиев Посад
|
Добавлено:
Сб 8 Август 2015, 07:43
|
  |
И что? на этом месте вы хотите сложить новую? другие варианты не рассматриваете? кроме как конструкцию печи другую?
|
_________________ не беспокойте меня, заказчиков здесь не ищу
|
|
   |
 |
Vordes
Зарегистрирован: Ср 10 Декабрь 2014, 20:43
Сообщения: 15
Регион: Москва
|
Добавлено:
Сб 8 Август 2015, 16:18
|
  |
| Цитата: |
| ругие варианты не рассматриваете? кроме как конструкцию печи другую? |
Я готов рассмотреть все варианты, итогом реализации которых станет надежная и безопасная печь для отопления (ну и с учетом изначально неоптимального ее расположения).
У Вас есть вариант без перекладки?
|
|
|
|
  |
 |
Василий Васильевич
Зарегистрирован: Вт 25 Март 2014, 15:15
Сообщения: 304
Регион: Сергиев Посад
|
Добавлено:
Вс 9 Август 2015, 08:28
|
  |
ну для того чтобы предложить вам что то своё.............надо понимать: дом для пмж? что за помещения рядом? какая перегородка смежная? не против ли вы чтоб труба прошла в другом месте? и ещё множество других вопросов возникающих при ответе на перечисленные.................короче надо выезжать и смотреть на месте.
ваша нынешняя печь стоит не совсем удачно, согласен с мнением предыдущих мастеров. поставить её посредине комнаты, тоже наверное будет не айс. Мне вот видеться её поставить её по стене которая граничит с прихожей, если это прихожая. Если хотите что бы и прихожая тёплая была, то вырезать проём в прихожую и разместить так, чтобы стена печи была в прихожей. а ещё лучше чтобы топка была в прихожей а основной массив печи в комнате. но тогда смещается труба и соответственно потребуется делать новый проход на второй этаж и на кровлю. но вы трубу хотите оставить, как я понял................тогда, если вас расположение печи устраивает, то можно и на этом же месте.....с подключением в старую трубу.
по поводу "без перекладки"...........вы для себя должны чётко понять, чем вас не устраивает нынешняя...................ссылка ваша на "соседний раздел" некорректна, из неё невозможно что то понять...............так вот, если вас не устраивают трещины, их можно заделать швы загрунтовать высыпаться перестанут, печь почистить внутри возможно дымление прекратиться.......а там глядишь мож и перекладывать не нужно будет.............
|
_________________ не беспокойте меня, заказчиков здесь не ищу
|
|
   |
 |
Vordes
Зарегистрирован: Ср 10 Декабрь 2014, 20:43
Сообщения: 15
Регион: Москва
|
Добавлено:
Пн 10 Август 2015, 19:03
|
  |
"сылка ваша на "соседний раздел" некорректна"
Я обобщу информацию из разных постов и отвечу на вопросы.
Печь сложена из щелевого кирпича. Эпизодическая эксплуатация примерно с 2013 года. Эксплуатировалась в режиме постоянного подбрасыванич дров. Имеются трещины (виден огонь за варочной плитой), высыпания из швов. Имеется трещина в фундаменте. Размеры в плане - на схеме.
Дом брусовый, 150x100. Утеплен, толщина утеплителя 100 мм. На настоящее время почти постоянное проживание в теплое время. В случае решения вопроса с отоплением, планируется периодический приезд в осенне-зимний период (выходные, праздники).
Назначение помещений первого этажа - на схеме.При необходимости кухня и санузел обогреваются электронагревателями. На втором этаже - жилые комнаты.
Конструктивные изменения дома (смещение трубы, лестницы, стен и т.д.) не предусматриваются.
Размеры печи устраивают. По конструкции - хочу понять, есть ли смысл ее изменять для повышения эффективности печи. Варочная панель не используется.
Расчет теплопотерь сделать не успел.
Прикладываю несколько дополнительных фотографий.
|
| Описание: |
|
| Размер файла: |
212.13 КБ |
| Просмотров: |
660 раз(а) |

|
| Описание: |
|
| Размер файла: |
406.82 КБ |
| Просмотров: |
684 раз(а) |

|
| Описание: |
|
| Размер файла: |
412.83 КБ |
| Просмотров: |
806 раз(а) |

|
| Описание: |
|
| Размер файла: |
450.25 КБ |
| Просмотров: |
885 раз(а) |

|
| Описание: |
|
| Размер файла: |
79.3 КБ |
| Просмотров: |
661 раз(а) |

|
|
|
  |
 |
Vordes
Зарегистрирован: Ср 10 Декабрь 2014, 20:43
Сообщения: 15
Регион: Москва
|
Добавлено:
Пн 10 Август 2015, 19:05
|
  |
Продолжение фотографий.
|
| Описание: |
|
| Размер файла: |
413.9 КБ |
| Просмотров: |
636 раз(а) |

|
| Описание: |
|
| Размер файла: |
433.01 КБ |
| Просмотров: |
696 раз(а) |

|
| Описание: |
|
| Размер файла: |
413.36 КБ |
| Просмотров: |
664 раз(а) |

|
|
|
  |
 |
ЭД

Зарегистрирован: Пн 9 Май 2011, 13:54
Сообщения: 44
Регион: МОСКОВСКАЯ ОБЛАСТЬ
|
Добавлено:
Пн 10 Август 2015, 20:35
|
  |
Наиболее оптимальным вариантом в вашем случае представляется подвешивание трубы и перекладка печи с изменением конструкции,а также обустройством места расположения с целью повышения теплоотдачи
|
_________________ HEN38@YANDEX.RU 8-917-5286742 ЭДУАРД
|
|
   |
 |
Гребенчюк Андрей

Зарегистрирован: Чт 9 Сентябрь 2010, 17:23
Сообщения: 1211
Регион: Ленинградская область
|
Добавлено:
Пн 10 Август 2015, 20:40
|
  |
Если уж ломать печь, то полностью с трубой. Все равно место расположения печи не позволит решить проблему если только не сендвич поставить. Я во обще удивляюсь как она не развалилась сразу от такого кирпича.
|
|
|
|
  |
 |
Василий Васильевич
Зарегистрирован: Вт 25 Март 2014, 15:15
Сообщения: 304
Регион: Сергиев Посад
|
Добавлено:
Пн 10 Август 2015, 22:12
|
  |
ну вот теперь уже все ясно..................теперь то можно ответить уже на ваш основной вопрос, который вы задавали в первом своём посте..........
вам туда надо поставить печь отопительную 3,5 на 2,5 в основании, у нас она столбик называется, самая простенькая отопительная печь, если не ошибаюсь, отапливаемая площадь 25-30 квадратов..................если характеристики не устраивают, можно по массивнее.............3 на 4 кирпича..........конструкции того же селивана...............вот и всё........теперь считаем по максимуму:
1. кирпич округляем 600шт, если учесть что витебский, то в поддоне 330 шт, то надо брать два поддона и не париться, учитывая на выбраковку- 25 р за шт - 16500р
2. шамотный кирпич. 50 шт - 50 р за шт = 2500 р
3.песок, одного куба хватит с лихвой =600р
4. глина..........тут хитро.........в продаже есть готовая смесь....400 р за 25 кг смеси на печь уйдет не менее 20 мешков....считайте что ещё десятка =10000, но можно её сэкономить.............глина в земле................накопать, забодяжить и с песком, но глину сам печник знает и какую и где накопать.......то есть тут тока трудозатраты печника........берём среднее получается глина 4000р
5.глина шамотная потребуется 1 мешок = 300р
6. приблуда чугунная:
а) поддувало округляя 1000р
б) топочная округляя со стеклом 2500р
в) колосник 700р
г) прочистные закладываем ещё 1000р
д) задвижка не помню точно ну 800р
теперь попутка:
а) краска 200р
б) нержавейка 900р
в) суперсил 500р
г) базальтокартон 400р
ну и.........................зп печника..........это................упс.............меня просят здесь не говорить а сообщать в личку...................извините
ну вот и считайте: материалы - округляя 36000р без доставки, в вашем районе и близость магазина.........доставку надо смотреть по месту............тока пожалуйста не экономьте на манипуляторе................он пачку возьмет и пачку поставит. если вы в газеле вручную будете перекидывать кирпич..........он приобретёт не товарный вид...........
так вот про зп..............у вас там если не ошибаюсь кладка такой печи стоит 50 тыщ р.........плюс разборка старой и подвес трубы......так что в итоге у вас общие затраты на печь выйдут в 95 тыш............мож лучше подремонтировать? :-)
ну вот такие вот дела!!!!!!!!!! :-)
|
_________________ не беспокойте меня, заказчиков здесь не ищу
|
|
   |
 |
Vordes
Зарегистрирован: Ср 10 Декабрь 2014, 20:43
Сообщения: 15
Регион: Москва
|
Добавлено:
Ср 12 Август 2015, 07:17
|
  |
| Цитата: |
| Все равно место расположения печи не позволит решить проблему если только не сендвич поставить. |
Вы имеете в виду, что расположение не позволит подвесить трубу? А как тогда сендвич поможет - все равно ведь трубу разбирать?
|
|
|
|
  |
 |
|
|
|
Следующая тема
Предыдущая тема
Вы не можете начинать темы Вы не можете отвечать на сообщения Вы не можете редактировать свои сообщения Вы не можете удалять свои сообщения Вы не можете голосовать в опросах Вы не можете добавлять приложения в этом форуме Вы можете скачивать файлы в этом форуме
|
|