 |
|
 |
| Автор |
Сообщение
|
IgorS
Зарегистрирован: Пн 29 Февраль 2016, 00:44
Сообщения: 6
Регион: Санкт-Петербург
|
Добавлено:
Вт 1 Март 2016, 23:48
|
  |
Добрый день, мастера. Прошу помочь с выбором отопления.
Собираюсь строить дом из проф. бруса 200х200(188х180).
При выборе проекта дома , понравился вариант с печкой по середине. Печь греет сразу 4 помещения, гостиную , 2 спальни и туалет.
Есть идея , использовать угловую каминопечь, что бы из гостиной любоваться огнем.
Использоваться дом будет преимущественно, как дача. Т.е. лучше, что бы печь отдавала тепло побыстрее.
Прошу помощи по ряду вопросов относительно печи:
1. Основной вопрос. Какую модель печи(каминопечь, печь+камин) посоветуете?
2. Видел печь с обычным камином, если топить только печь, то на сколько равномерный нагрев? Имеется ли смысл от такой печи с открытым камином?
3. Печь получается стоит на линии фундамента ( планируется ленточный). Как правильно совместить с фундаментом печи? ( можно расширить ленточный или надо делать независимую плиту по верх).
За ранее, спасибо за помощь.
Взял примеры печей с pechidoma.ru и с http://pechnik78.ru/, http://kuznetsovstove.com/
Пример печи с угловым открытым камином https://www.youtube.com/watch?v=V-hpwmsHqPY
http://pechidoma.ru/pech-s-uglovym-kaminom/articles/pech-s-uglovym-kaminom.html
Пример угловой.
http://www.youtube.com/watch?v=Zof_oY_K5s0
|
| Описание: |
|
| Размер файла: |
273.29 КБ |
| Просмотров: |
815 раз(а) |
![uglovoi-kamin%20(7)[1].JPG](files/thumbs/t_uglovoi_kaminpercent2071_210.jpg)
|
| Описание: |
|
| Размер файла: |
69.26 КБ |
| Просмотров: |
831 раз(а) |
![GAMDn05gok8[1].jpg](files/thumbs/t_gamdn05gok81_100.jpg)
|
| Описание: |
|
| Размер файла: |
67.94 КБ |
| Просмотров: |
859 раз(а) |
![Угловая-Очево-3[1].jpg](files/thumbs/t___31_133.jpg)
|
| Описание: |
| План дома с дополнительными холодными комнатами |
|
| Размер файла: |
66.79 КБ |
| Просмотров: |
837 раз(а) |

|
| Описание: |
|
| Размер файла: |
103.34 КБ |
| Просмотров: |
921 раз(а) |

|
|
|
  |
 |
Владимир Солин

Зарегистрирован: Ср 9 Сентябрь 2009, 12:52
Сообщения: 3804
Регион: Череповец
|
Добавлено:
Ср 2 Март 2016, 11:32
|
  |
Камин для вас совсем не нужен.
Угловая каминопечь достаточно сложна по распилке кирпича.
Если бы посчитали теплопотери спален и гостинной - можно было бы размер печки подсказать.
В санузле будет жарко.
Если у вас суглинок, то пучение зимой будет большое. Печь, стоящая на ленточном фундаменте будет поднимать вместе с внешней лентой. Выдержит ли ваша лента нагрузку в 4-5тонн сказать трудно.
Для печки нужен свой фундамент, чтобы не ломать фундамент под домом.
|
_________________ САМОназначенный дебил форума в 2017году
|
|
  |
 |
IgorS
Зарегистрирован: Пн 29 Февраль 2016, 00:44
Сообщения: 6
Регион: Санкт-Петербург
|
Добавлено:
Ср 2 Март 2016, 13:45
|
  |
Спасибо. За комментарий.
По тепло потерям суммарно 7387. Прикреплю, как рассчитывал.
Делать буду не сам, т.к. понимаю, что для достаточно сложных печей надо в начале руку набить.
Дача находиться от СПБ 60 км в сторону Карелии ( на север).
Вы имеете ввиду , что и угловая каминопечь и угловая печь с камином плохо для такого дома?
П.С. Дом планируется строить следующий зимой. Фундамент осенью. Печь соответственно в конце зимы, или весной или летом. Смотря ,как найду толкового печника. Все равно дому отстояться надо будет.
|
| Описание: |
|
| Размер файла: |
36.44 КБ |
| Просмотров: |
738 раз(а) |

|
| Описание: |
|
| Размер файла: |
29.47 КБ |
| Просмотров: |
763 раз(а) |

|
| Описание: |
|
| Размер файла: |
45.6 КБ |
| Просмотров: |
758 раз(а) |

|
|
|
  |
 |
Владимир Солин

Зарегистрирован: Ср 9 Сентябрь 2009, 12:52
Сообщения: 3804
Регион: Череповец
|
Добавлено:
Ср 2 Март 2016, 14:07
|
  |
Вторая картинка с угловой каминопечью - моя.
Ее мощность около 5кВт. Вам нужно подумать об утеплении дома... Хотя вроде по частям небольшие теплопотери...
Ну и печника нужно искать, кто такие печки строил.
|
_________________ САМОназначенный дебил форума в 2017году
|
|
  |
 |
IgorS
Зарегистрирован: Пн 29 Февраль 2016, 00:44
Сообщения: 6
Регион: Санкт-Петербург
|
Добавлено:
Ср 2 Март 2016, 15:04
|
  |
| Владимир Солин писал(а): |
Вторая картинка с угловой каминопечью - моя.
Ее мощность около 5кВт. Вам нужно подумать об утеплении дома... Хотя вроде по частям небольшие теплопотери...
Ну и печника нужно искать, кто такие печки строил. |
У вас есть две угловые каминопечи. Если не ошибаюсь в 4х4 и 3.5х3.5 и так же с разными дверцами, в чем их отличия.
Так же можете подсказать, по времени начала отдачи тепла.
Можно ли ими пользоваться, как открытым камином?
Спасибо большое за ответы.
Когда начнется заливка фундамента, буду искать печника на этом форуме.
|
|
|
|
  |
 |
Владимир Солин

Зарегистрирован: Ср 9 Сентябрь 2009, 12:52
Сообщения: 3804
Регион: Череповец
|
Добавлено:
Ср 2 Март 2016, 15:46
|
  |
Основные отличия - в мощностях. Дверки ставят разные - смотрят по своему кошельку.
Если в печках есть хлебная камера - топить их нужно как печки. С закрытыми дверками.
Прогрев внешних стенок начинается через час после начала протопки. Через 3 часа стенки горячие, максимум температур примерно через 5-6 часов.
|
_________________ САМОназначенный дебил форума в 2017году
|
|
  |
 |
IgorS
Зарегистрирован: Пн 29 Февраль 2016, 00:44
Сообщения: 6
Регион: Санкт-Петербург
|
Добавлено:
Чт 3 Март 2016, 12:03
|
  |
|
  |
 |
Владимир Солин

Зарегистрирован: Ср 9 Сентябрь 2009, 12:52
Сообщения: 3804
Регион: Череповец
|
Добавлено:
Чт 3 Март 2016, 13:43
|
  |
А вам зачем все тепло в трубу отправлять? Дров много заготовили?
Задвижку сверху видите? Это задвижка летнего хода.
А у меня она сбоку стоит. И верхний колпак лучше прогревается.
И через стекло огонь нормально виден и тепло все идет на накопление внутри печки.
|
_________________ САМОназначенный дебил форума в 2017году
|
|
  |
 |
internet_pechnik
Зарегистрирован: Вт 9 Апрель 2013, 19:51
Сообщения: 1892
Регион: belarus
|
Добавлено:
Чт 3 Март 2016, 14:07
|
  |
если надо нагреть печь и накопить ей больше тепла то надо топить с закрытыми. ибо при открытой топке в нее засасывается много лишнего воздуха и температура горения падает. С открытыми можно топить в режиме открытого камина с открытым прямым ходом. Например летом когда на корель.перешейке сыро и орава комаров и хочется посидеть у огня
А не лучше печку развернуть на 45 град?
|
Последний раз редактировалось: internet_pechnik (Чт 3 Март 2016, 14:20), всего редактировалось 1 раз |
|
  |
 |
Владимир Солин

Зарегистрирован: Ср 9 Сентябрь 2009, 12:52
Сообщения: 3804
Регион: Череповец
|
Добавлено:
Чт 3 Март 2016, 14:09
|
  |
Вот - так будет самое то. И в санузле менее жарко. Только подьемный в левой стенке поставить.
|
_________________ САМОназначенный дебил форума в 2017году
|
|
  |
 |
IgorS
Зарегистрирован: Пн 29 Февраль 2016, 00:44
Сообщения: 6
Регион: Санкт-Петербург
|
Добавлено:
Чт 3 Март 2016, 15:35
|
  |
1. Угловая печь, которая имеет возможность топиться с открытой дверцей. В чем ее минусы по сравнению, с той которая так не топиться.
Дом скорее дача. Приятно сидеть у горящего огня, хоть и тепло в трубу улетает. Сейчас эту роль играет просто костер на улице.
2. В чем плюсы установки прямоугольной печи?
3. Прямоугольная печь, может использоваться с открытой дверкой?
3. Подскажите, что значит "Только подьемный в левой стенке поставить."
Спасибо за ваши ответы.
|
|
|
|
  |
 |
internet_pechnik
Зарегистрирован: Вт 9 Апрель 2013, 19:51
Сообщения: 1892
Регион: belarus
|
Добавлено:
Чт 3 Март 2016, 18:02
|
  |
| IgorS писал(а): |
1. Угловая печь, которая имеет возможность топиться с открытой дверцей. В чем ее минусы по сравнению, с той которая так не топиться.
Дом скорее дача. Приятно сидеть у горящего огня, хоть и тепло в трубу улетает. Сейчас эту роль играет просто костер на улице.
2. В чем плюсы установки прямоугольной печи?
3. Прямоугольная печь, может использоваться с открытой дверкой?
4.. Подскажите, что значит "Только подьемный в левой стенке поставить."
Спасибо за ваши ответы. |
.
1.любая печь может топиться с открытой дверкой. это не плюс и не минус. Просто если дверка большая там придется поставить доп.задвижку, веселее будет гореть.
Значит вам будет приятно.
2. ответ очевиден,больше сторон-больше помещений в которые эти стороны будут смотреть.
3. см в.1
4. это вам не нужно
|
|
|
|
  |
 |
IgorS
Зарегистрирован: Пн 29 Февраль 2016, 00:44
Сообщения: 6
Регион: Санкт-Петербург
|
Добавлено:
Пт 4 Март 2016, 01:18
|
  |
Спасибо за советы.
С прямоугольной печью снимается , часть головной боли.
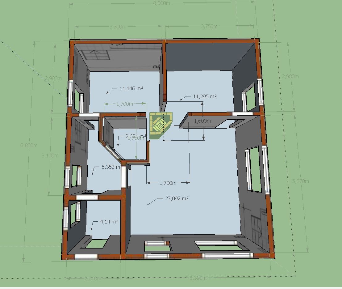
1. Подскажите, правильно я ее расположил.
2. Нагрев комнат будет равномерный?
3. вывод трубы можно переместить?
4. Какой прямоугольную печь выбрать
5. Печи с ХК (В.Солин) строго без возможности топить с открытой дверцей? Все таки летом хочется и с огнем посидеть и не перетопить комнату.
6. По цене, если сравнивать с угловыми, какая разница.
7. Если есть возможность подсказать по итоговым ценам на угловые и прямоугольные.
Спасибо, за уделенное время.
Регион Север ЛО. Орехово, Сосново.
|
| Описание: |
|
| Размер файла: |
139.97 КБ |
| Просмотров: |
746 раз(а) |

|
| Описание: |
|
| Размер файла: |
115.17 КБ |
| Просмотров: |
716 раз(а) |

|
| Описание: |
|
| Размер файла: |
136.18 КБ |
| Просмотров: |
752 раз(а) |

|
|
|
  |
 |
internet_pechnik
Зарегистрирован: Вт 9 Апрель 2013, 19:51
Сообщения: 1892
Регион: belarus
|
Добавлено:
Пт 4 Март 2016, 06:24
|
  |
| IgorS писал(а): |
Спасибо за советы.
С прямоугольной печью снимается , часть головной боли.
1. Подскажите, правильно я ее расположил.
2. Нагрев комнат будет равномерный?
3. вывод трубы можно переместить?
4. Какой прямоугольную печь выбрать
5. Печи с ХК (В.Солин) строго без возможности топить с открытой дверцей? Все таки летом хочется и с огнем посидеть и не перетопить комнату.
6. По цене, если сравнивать с угловыми, какая разница.
7. Если есть возможность подсказать по итоговым ценам на угловые и прямоугольные.
Спасибо, за уделенное время.
Регион Север ЛО. Орехово, Сосново. |
1.почти,лучше- как на моем рис
2. Вряд ли. Для равномерного нагрева площади поверхнтсти печи должны соответствовать площадям помещений,если за этим гнаться то у вас будет несуразновычурная планировка или многоугольная печь. Зал будет несколько обделен,хотя каминная дверка несколько компенсирует. Открытая лестница тоже повлияет бо всё тепло улетит наверх
3.уже? печи ж еще нет.На расположение трубы влияет капитальная стена и балки.чтото подсказывает мне что такой стеной у вас будет стена отделяющая две спальни(8м-вые балки не рассматриваем), на нее и балки лягут а меж балок должна и труба пройти.т.е. печник должен предложить такую конструкцию что можно было это учесть а плотники должны так положить балки и выше стропила чтоб в них не уперлась труба.
4.трудно сказать сразу. "Дачность"дома мешает, быстрого прогрева печи на более чем 50 квадратов трудно получить, придется смириться и не приезжать вечером бо околеете ночью. Или придется дополнительно поставить небольшую буржуйку для "по приезду" ,или заранее через gsm-связь запустить электрообогреватели чтоб приехать в уже подогретый дом....
5.любая печь может топиться с открытой дверкой. Советую от ХК отказаться, ее кстати неплохо заменит сама топка,зато не усложнит печь и позволит максимально сосредоточиться на обогревательной функции а не на куховарке.
6.7. Вцелом прямоугольная дешевле других. На цены же вообще много че влияет и у каждого печника она отличается. Пока построите дом цены будут явно отличаться от нынешних,эвона как всё нестабильно
|
|
|
|
  |
 |
|
|
|
Следующая тема
Предыдущая тема
Вы не можете начинать темы Вы не можете отвечать на сообщения Вы не можете редактировать свои сообщения Вы не можете удалять свои сообщения Вы не можете голосовать в опросах Вы не можете добавлять приложения в этом форуме Вы можете скачивать файлы в этом форуме
|
|