  | 
  | 
  | 
 
 
| Автор | 
Сообщение
 | 
 
Заказчик777 
 
  
Зарегистрирован: Ср 9 Март  2016, 18:23 
Сообщения: 2 
Регион: MO 
 
 | 
 Добавлено:
Ср 9 Март  2016, 19:32
 | 
   | 
 
 
 
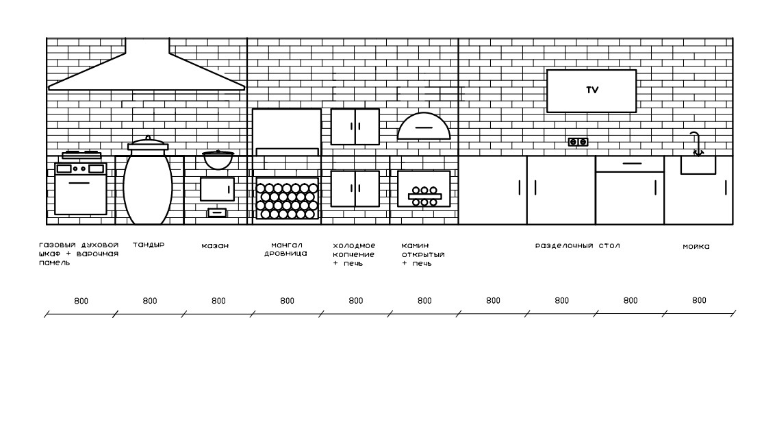
Здравствуйте, уважаемые мастера!
 
 
Необходимо возвести печной комплекс в Орехово-Зуеском районе Московской области. Эскиз прилагаю. В граните не отлит. ) Приму любые предложения, рекомендации мастеров по доведению до полноценной инженерной грамотности (компановка, размеры и тд). Планируется возвести в беседке, которая будет реконструирована под него.
 
Пояснения к эскизу:
 
1.	Тандыр уже есть в наличие, необходим только монтаж.
 
2.	Все печные агрегаты должны быть подключены к одному дымоходу.
 
3.	Печь для холодного копчения – встраиваемая коптильная камера из нержавеки сверху. Снизу оборудование для создания холодного дыма (дымогенератор, воздушный компрессор, пост управления). Обложено кирпичём в общем стиле комплекса, подключено к дымоходу.
 
4.	Камин с открытым порталом. Точнее каминопечь. Наверху духовка/хлебная камера. Возможно ли такое впринципе?
 
 
От Вас хочется получить ориентировочную стоимость  в «камне». Все орнаменты, арт-инсталяции, арки, художества и доп.работы временно не учитываем.
 
1.	Стоимость фундамента под этот комплекс (если имеете возможность и желание его выполнить).
 
2.	Стоимость проекта к данному комплексу. Проект должен содержать цветной эскиз в аксонометрии, рабочий чертёж (файл) в Скетчап, порядовку, подбор материалов, точную смету возведения.
 
3.	Стоимость материалов.
 
4.	Стоимость работ.
 
 
Предложения направляйте в личку.
 | 
 
	
  
	 
	
	
		
	 
	
		|  Описание: | 
		
			
		 | 
	 
	
		|  Размер файла: | 
		 102.58 КБ | 
	 
	
		|  Просмотров: | 
		 687 раз(а) | 
	 
	
		
  
 
  | 
	 
	 
	 
 | 
 
 
 | 
 
   | 
 
  | 
 
Валентин Стрибук 
 
 
  
Зарегистрирован: Чт 17 Июль  2008, 18:53 
Сообщения: 636 
Регион: Москва 
 
 | 
 Добавлено:
Чт 10 Март  2016, 00:03
 | 
   | 
 
 
 
Замечание из практики насчёт тандыра (фото внизу). Над тандыром предусматривался самостоятельный дымосборник и дымоход. Оказалось, что дым мощно идёт в трубу, но недостаточно - сильное задымление в беседке. В итоге тандыр на улицу, а на его месте подвесили на уровне столешницы металлический  камин-гриль.
 
 Насчёт совмещения открытого камина и "духовки": а чем не удовлетворяет камин-гриль? (который на схеме  "мангал")
 
Очень уж стрёмно над открытым камином ставить хлебную камеру при короткой "немонопольной" трубе. Поддымливания не избежать.
 | 
 
 _________________ 9164865048@mail.ru ... Вернём русскую печь в Россию через барбекю
	
  
	 
	
	
		
	 
	
		|  Описание: | 
		
			
		 | 
	 
	
		|  Размер файла: | 
		 328.13 КБ | 
	 
	
		|  Просмотров: | 
		 689 раз(а) | 
	 
	
		
  
 
  | 
	 
	 
	 
 | 
 
 
 | 
 
      | 
 
  | 
 
Заказчик777 
 
  
Зарегистрирован: Ср 9 Март  2016, 18:23 
Сообщения: 2 
Регион: MO 
 
 | 
 Добавлено:
Чт 10 Март  2016, 20:12
 | 
   | 
 
 
 
Валентин, спасибо. Учту ваши замечания.
 | 
 
| 
 | 
 
 
 | 
 
   | 
 
  | 
 
Pe4nik 
 
 
  
Зарегистрирован: Пт 1 Октябрь  2010, 05:49 
Сообщения: 538 
Регион: Шарья 
 
 | 
 Добавлено:
Вт 15 Март  2016, 22:47
 | 
   | 
 
 
 
Проект должен содержать цветной эскиз в аксонометрии, рабочий чертёж (файл) в Скетчап, порядовку, подбор материалов, точную смету возведения. 
 
 
Интересуюсь спросить,подбор материала и точную смету понятно,а для каких целей заказчику порядовку и эскиз?
 | 
 
 _________________ Печные работы любой сложности от мангала до промышленных спец.печей в ЦФО.За консультации $ не берут,нажимаем на конвертик - спрашиваем.К сайту похожему на мой ник отношения не имею!
 
С уважением!  8 91О 951 О7 О7    
 
     печник-смирнов.рф
 | 
 
 
 | 
 
    | 
 
  | 
 
pe4ka 
 
  
Зарегистрирован: Ср 23 Сентябрь  2009, 17:36 
Сообщения: 1917 
Регион: Туймазы 
 
 | 
 Добавлено:
Чт 24 Март  2016, 16:43
 | 
   | 
 
 
 
По дереву если надо оформление-столярка есть у меня и резчики высокого класса. Может ли интересовать керамика индивидуального изготовления.
 | 
 
 _________________ окажу консультации по кладке печей каминов и их ремонту д51055 код8-34782 сот 8-9173752622 г.Туймазы башкирия
 | 
 
 
 | 
 
    | 
 
  | 
 
| 
 | 
 
 
 
 
 
 
 | 
 
Следующая тема 
Предыдущая тема 
Вы не можете начинать темы Вы не можете отвечать на сообщения Вы не можете редактировать свои сообщения Вы не можете удалять свои сообщения Вы не можете голосовать в опросах Вы не можете добавлять приложения в этом форуме Вы можете скачивать файлы в этом форуме 
 | 
 
 
 |