| Автор |
Сообщение
|
Pontus
Зарегистрирован: Вс 10 Апрель 2016, 07:22
Сообщения: 6
Регион: Ирктуск
|
Добавлено:
Вс 10 Апрель 2016, 07:25
|
  |
Добрый день.
Проектирую дом 8х8 из бруса 180х180 на ленточном фундаменте с печным отоплением.
Печь будет отапливать 3 помещения площадью 50 м2.
Нужен совет по устройству П-образного печного фундамента над основным ленточным.
Кто нибудь так строил?
|
| Описание: |
|
| Размер файла: |
203.91 КБ |
| Просмотров: |
1385 раз(а) |

|
|
|
  |
 |
Андрей_Алексеевич

Зарегистрирован: Пн 13 Декабрь 2010, 19:17
Сообщения: 5983
Регион: малая родина Павлова, Скобелева, Циолковского, Уткиных и др.
|
Добавлено:
Вс 10 Апрель 2016, 15:19
|
  |
да, зачастую, только так и строят , коли печника приглашают лишь, когда весь рубленный (блочный) дом (баня) уже стоит
|
_________________ Печник - милостью и промыслом Божиим.
Печное отопление частного дома и т.п., авторское сопровождение проектов, наставничество в т.ч. дистанционное, партнёрство в кладке печей.
89106130763 МТС
andrejka61@mail.ru
andrej.kuzmischev@yandex.ru
|
|
   |
 |
queser

Зарегистрирован: Ср 19 Январь 2011, 14:41
Сообщения: 203
Регион: Салми
|
Добавлено:
Вс 10 Апрель 2016, 15:27
|
  |
| Pontus писал(а): |
Кто нибудь так строил? |
Конечно. И не один раз.
|
_________________ Всё будет хорошо! =)
|
|
     |
 |
Pontus
Зарегистрирован: Вс 10 Апрель 2016, 07:22
Сообщения: 6
Регион: Ирктуск
|
Добавлено:
Вс 10 Апрель 2016, 16:50
|
  |
А как вот такой вариант?
|
| Описание: |
|
| Размер файла: |
226.02 КБ |
| Просмотров: |
1130 раз(а) |

|
|
|
  |
 |
queser

Зарегистрирован: Ср 19 Январь 2011, 14:41
Сообщения: 203
Регион: Салми
|
Добавлено:
Вс 10 Апрель 2016, 16:53
|
  |
| Pontus писал(а): |
| А как вот такой вариант? |
Огласите весь список вариантов
|
_________________ Всё будет хорошо! =)
|
|
     |
 |
Андрей_Алексеевич

Зарегистрирован: Пн 13 Декабрь 2010, 19:17
Сообщения: 5983
Регион: малая родина Павлова, Скобелева, Циолковского, Уткиных и др.
|
Добавлено:
Вс 10 Апрель 2016, 19:17
|
  |
"...пжалста!" (С)
|
_________________ Печник - милостью и промыслом Божиим.
Печное отопление частного дома и т.п., авторское сопровождение проектов, наставничество в т.ч. дистанционное, партнёрство в кладке печей.
89106130763 МТС
andrejka61@mail.ru
andrej.kuzmischev@yandex.ru
|
|
   |
 |
Игорь 2

Зарегистрирован: Пн 1 Февраль 2010, 13:16
Сообщения: 1006
Регион: Лен обл Волосовский, Ломоносовский р-ны, Гатчина
|
Добавлено:
Вс 10 Апрель 2016, 21:10
|
  |
Да хоть ещё одну стенку пририсуйте... Важно , чтоб верхняя плита этого фундамента была не менее 20см в толщину и армирована арматурой А3 а не металлоломом и залита нормальным бетоном марки не ниже 300 а не "как получилось".
|
_________________ телефон +79217415105 https://vk.com/id60358428
|
|
   |
 |
Pontus
Зарегистрирован: Вс 10 Апрель 2016, 07:22
Сообщения: 6
Регион: Ирктуск
|
Добавлено:
Пн 11 Апрель 2016, 05:02
|
  |
Спасибо.
Еще вопрос.
Под фундамент печи нужно заливать столбчатый фундамент?
|
|
|
|
  |
 |
Андрей_Алексеевич

Зарегистрирован: Пн 13 Декабрь 2010, 19:17
Сообщения: 5983
Регион: малая родина Павлова, Скобелева, Циолковского, Уткиных и др.
|
Добавлено:
Пн 11 Апрель 2016, 09:08
|
  |
| Pontus писал(а): |
...Еще вопрос.
Под фундамент печи нужно заливать столбчатый фундамент? |
А на свой конкретный вопрос (при абсолютном отсутствии "исходников") Вы ожидаете ответа какого обобщённо-теоритического, или с расчётами Спецификацию
|
_________________ Печник - милостью и промыслом Божиим.
Печное отопление частного дома и т.п., авторское сопровождение проектов, наставничество в т.ч. дистанционное, партнёрство в кладке печей.
89106130763 МТС
andrejka61@mail.ru
andrej.kuzmischev@yandex.ru
|
|
   |
 |
Александр Минеев

Зарегистрирован: Ср 22 Июль 2015, 19:04
Сообщения: 559
Регион: Москва
|
Добавлено:
Пн 11 Апрель 2016, 10:05
|
  |
А что плохого, если НОВЫЙ (!) печной ( правильный) фундамент перевязан с НОВЫМ(!) ленточным ( правильным) фундаментом дома симметрично, как на рис?
Фундамент печки получил консоли, будет оказывать меньшую нагрузку на грунт, плохо?
Весь фундамент ( с печным) будет усаживаться одинаково, это плохо?
Ленточный фундамент с большим количеством крестообразных перевязок максимально похож на фундамент, залитый единой плитой. Вы что, будете дырку вырезать в плите( если такой фундамент) и мастерить свой, развязанный?
Нет универсальных ответов. Думаю, что самое важное - это равномерно нагрузить фундамент. Если у Вас 2-3-х этажный кирпичный( тяжёлый) дом, то нагрузка печкой в середине - это может и хорошо. Если у Вас каркасник и Вы ставите 2-3 тонны в центре, а стены у Вас лёгкие, то могут возникнуть напряжения в фундаменте "на излом". Надо смотреть и считать.
|
_________________ Печки - дело разговорное!)))
|
|
  |
 |
Владимир Солин

Зарегистрирован: Ср 9 Сентябрь 2009, 12:52
Сообщения: 3804
Регион: Череповец
|
Добавлено:
Пн 11 Апрель 2016, 10:46
|
  |
У меня дом пучением поднимает примерно на 2,5см зимой.
Печка на 2 этажа остается на менее промерзшем грунте, на своем фундаменте.
Если бы я ее поставил на перемычку, то эту бы печку поднимало бы вместе со всем домом.
Выдержит ли вес печки поперечная балка? Я бы не рискнул проверять практически.
Вес печки не менее 5тонн...
|
_________________ САМОназначенный дебил форума в 2017году
|
|
  |
 |
Pontus
Зарегистрирован: Вс 10 Апрель 2016, 07:22
Сообщения: 6
Регион: Ирктуск
|
Добавлено:
Пн 11 Апрель 2016, 12:25
|
  |
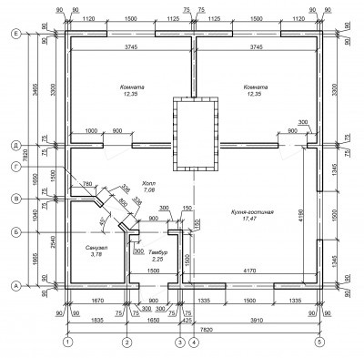
Вот мой план дома.
Дом одноэтажный из бруса 180х180 вес - 18 тонн.
Печка 900 кирпичей вес - 4 тонный.
Грунты глина, глубина промерзания Иркутская область 2,8 м.
Что посоветуете?
|
| Описание: |
|
| Размер файла: |
605.28 КБ |
| Просмотров: |
1412 раз(а) |

|
|
|
  |
 |
Александр Минеев

Зарегистрирован: Ср 22 Июль 2015, 19:04
Сообщения: 559
Регион: Москва
|
Добавлено:
Пн 11 Апрель 2016, 16:47
|
  |
| Pontus писал(а): |
Грунты глина, глубина промерзания Иркутская область 2,8 м.
Что посоветуете? |
У Вас такая глубина промерзания, а глубокий ленточный фундамент будет имеет очень большую площадь соприкосновения с замёршим грунтом, что касательными силами его может(?) выпирать при Вашей нагрузке( посчитать!) Как бы Вам бы вообще про свайный фундамент подумать( площадь сечения меньше) Вам надо со строителями местными потолковать.
Или плиту заливать ( с плитой все печные вопросы решаются автоматически).
|
_________________ Печки - дело разговорное!)))
|
|
  |
 |
Андрей_Алексеевич

Зарегистрирован: Пн 13 Декабрь 2010, 19:17
Сообщения: 5983
Регион: малая родина Павлова, Скобелева, Циолковского, Уткиных и др.
|
Добавлено:
Сб 16 Апрель 2016, 20:41
|
  |
| Pontus писал(а): |
Вот мой план дома.
Дом одноэтажный из бруса 180х180 вес - 18 тонн.
Печка 900 кирпичей вес - 4 тонный.
Грунты глина, глубина промерзания Иркутская область 2,8 м.
Что посоветуете? |
Если стены не будете утеплять, то Ваш домик зимой отопит РП 5,5х9,5
|
_________________ Печник - милостью и промыслом Божиим.
Печное отопление частного дома и т.п., авторское сопровождение проектов, наставничество в т.ч. дистанционное, партнёрство в кладке печей.
89106130763 МТС
andrejka61@mail.ru
andrej.kuzmischev@yandex.ru
| Описание: |
|
| Размер файла: |
46.96 КБ |
| Просмотров: |
967 раз(а) |

|
|
|
   |
 |
Pontus
Зарегистрирован: Вс 10 Апрель 2016, 07:22
Сообщения: 6
Регион: Ирктуск
|
Добавлено:
Вс 17 Апрель 2016, 05:33
|
  |
Снаружи будет 5 см утеплителя и обшивка деревом.
А не большая печь для отопления 55 квадратных метров?
|
|
|
|
  |
 |
Андрей_Алексеевич

Зарегистрирован: Пн 13 Декабрь 2010, 19:17
Сообщения: 5983
Регион: малая родина Павлова, Скобелева, Циолковского, Уткиных и др.
|
Добавлено:
Вс 17 Апрель 2016, 14:08
|
  |
У РП значительная часть площади "не работает" на 500 , а если удосужиться посчитать эффективную теплоотдающую поверхность, то, с учётом региона сооружения, Вы как раз и выйдете на этот размерчик при 1-нократной топке в сутки долгими зимними сибирскими вечерами
|
_________________ Печник - милостью и промыслом Божиим.
Печное отопление частного дома и т.п., авторское сопровождение проектов, наставничество в т.ч. дистанционное, партнёрство в кладке печей.
89106130763 МТС
andrejka61@mail.ru
andrej.kuzmischev@yandex.ru
|
|
   |
 |
Валер

Зарегистрирован: Вс 30 Март 2014, 09:18
Сообщения: 2363
Регион: Урал, Вишера
|
Добавлено:
Пн 18 Апрель 2016, 10:57
|
  |
Дом - как ПМЖ? Тогда каждая стена своей жизнью живёт. Внутрення тем паче.
|
|
|
|
  |
 |
Pontus
Зарегистрирован: Вс 10 Апрель 2016, 07:22
Сообщения: 6
Регион: Ирктуск
|
Добавлено:
Пн 18 Апрель 2016, 16:49
|
  |
Дом ПМЖ.
Печь получается очень большая. Задумался о монолитной плите с теплыми полами + небольшая печь.
|
|
|
|
  |
 |
pe4ka
Зарегистрирован: Ср 23 Сентябрь 2009, 17:36
Сообщения: 1918
Регион: Туймазы
|
Добавлено:
Пн 22 Май 2017, 15:53
|
  |
Стык чтобы не передал тепло печи стен делается на ребро и на глину.Пройдут годы и при ремонте легко будет-между печью и стеной будет зазор в 25 см. Если фундамент еще не залит армируйте иначе масса печи и фундамента порвет его
|
_________________ окажу консультации по кладке печей каминов и их ремонту д51055 код8-34782 сот 8-9173752622 г.Туймазы башкирия
|
|
   |
 |
Brightwell

Зарегистрирован: Пн 26 Июнь 2017, 16:36
Сообщения: 16
Регион: Волгоград
|
Добавлено:
Пт 29 Сентябрь 2017, 14:11
|
  |
|
  |
 |
|
|