Некоммерческое партнерство Альянс Печных Дел Мастера
 RSS  • FAQ  •  Поиск  •  Пользователи  •  Группы   •  Регистрация   •  Избранные темы   •  Профиль  •  Войти и проверить личные сообщения  •  Чат  •  Вход





 Помогите выбрать печь! Следующая тема
Предыдущая тема
Начать новую темуОтветить на тему
Автор Сообщение
Соловьёв



Зарегистрирован: Чт 25 Июнь 2015, 01:24
Сообщения: 35
Регион: Нижний Новгород

СообщениеДобавлено: Пт 13 Май 2016, 16:58 Ответить с цитатойВернуться к началу

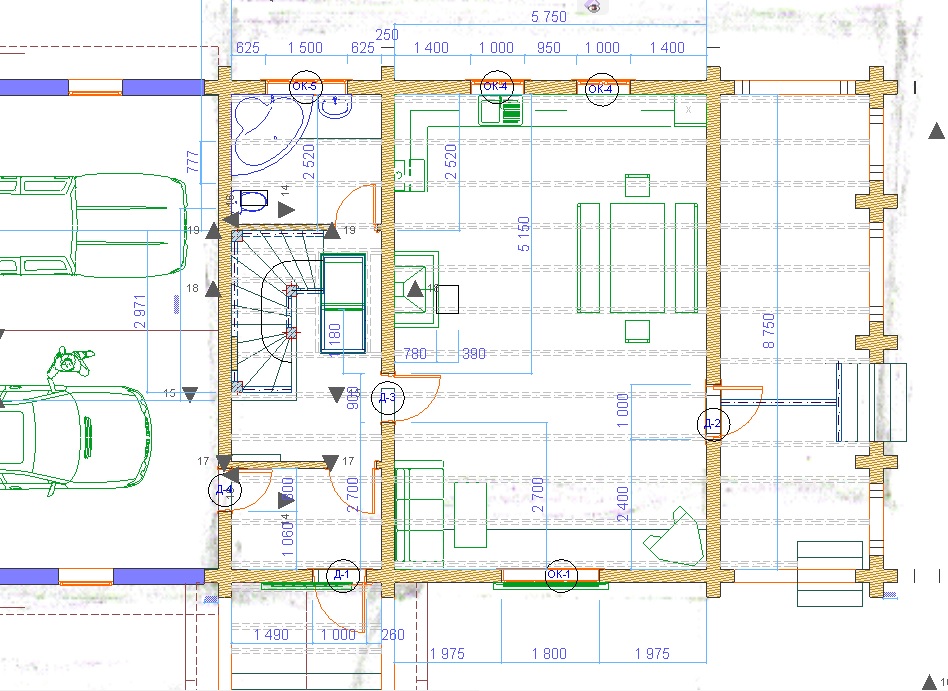
Приветствую, уважаемые формучане! Уже год набегами пытаюсь найти проект. Пересмотрел свои первоначальные требования, наверное, они были слишком жесткими или нереальными.
Что нужно: смотреть на горящий огонь (извините за примитивность), готовить.
Исходники: теплопотери - 7кВт, площадь помещения - 50м2
План прилагаю.
Фундамента ещё нет.
ИЩУ ПОРЯДОВКУ.
Может есть сайт или книга с множеством порядовок?
Всем спасибо за ответы!



Безымянный.jpg
 Описание:
 Размер файла:  236.84 КБ
 Просмотров:  620 раз(а)

Безымянный.jpg


Посмотреть профильОтправить личное сообщениеОтправить e-mail
tuomob



Зарегистрирован: Пн 26 Сентябрь 2011, 16:45
Сообщения: 2362
Регион: Тула

СообщениеДобавлено: Пт 13 Май 2016, 17:55 Ответить с цитатойВернуться к началу

Соловьёв писал(а):
Приветствую, уважаемые формучане! Уже год набегами пытаюсь найти проект. Пересмотрел свои первоначальные требования, наверное, они были слишком жесткими или нереальными.
Что нужно: смотреть на горящий огонь (извините за примитивность), готовить.
Исходники: теплопотери - 7кВт, площадь помещения - 50м2
План прилагаю.
Фундамента ещё нет.
ИЩУ ПОРЯДОВКУ.
Может есть сайт или книга с множеством порядовок?
Всем спасибо за ответы!

Почитайте тему
http://forum.stovemaster.ru/viewtopic.php?t=5873&start=0

_________________
С Уважением! Юрий. Тула.
ВК https://vk.com/tuomob
За проектами в личку обращайтесь.
Посмотреть профильОтправить личное сообщение
Соловьёв



Зарегистрирован: Чт 25 Июнь 2015, 01:24
Сообщения: 35
Регион: Нижний Новгород

СообщениеДобавлено: Сб 14 Май 2016, 02:26 Ответить с цитатойВернуться к началу

tuomob писал(а):
Соловьёв писал(а):
Приветствую, уважаемые формучане! Уже год набегами пытаюсь найти проект. Пересмотрел свои первоначальные требования, наверное, они были слишком жесткими или нереальными.
Что нужно: смотреть на горящий огонь (извините за примитивность), готовить.
Исходники: теплопотери - 7кВт, площадь помещения - 50м2
План прилагаю.
Фундамента ещё нет.
ИЩУ ПОРЯДОВКУ.
Может есть сайт или книга с множеством порядовок?
Всем спасибо за ответы!

Почитайте тему
http://forum.stovemaster.ru/viewtopic.php?t=5873&start=0

Почитал. Печка симпотичная, но труба у стены и готовить в ней нельзя. И мощности не нашел
Посмотреть профильОтправить личное сообщениеОтправить e-mail
Показать сообщения:      
Начать новую темуОтветить на тему


 Перейти:   



Следующая тема
Предыдущая тема
Вы не можете начинать темы
Вы не можете отвечать на сообщения
Вы не можете редактировать свои сообщения
Вы не можете удалять свои сообщения
Вы не можете голосовать в опросах
Вы не можете добавлять приложения в этом форуме
Вы можете скачивать файлы в этом форуме




Проект форум печников "Альянс. Печных Дел Мастера" © 2006-2026