 |
|
 |
| Автор |
Сообщение
|
sed651
Зарегистрирован: Вс 12 Июнь 2016, 22:36
Сообщения: 2
Регион: москва
|
Добавлено:
Вс 12 Июнь 2016, 23:10
|
  |
Здравствуйте уважаемые форумчане . Сразу скажу что я совсем новичок . Есть дом в деревне сруб 6х6 . В доме есть русская печь с плитой и отопительным щитком . Печь старая . Хочу сделать перепланировку в доме и переделать печь . Нужна относительно узкая - 50-60 см и длинная - 180 см . По мощности надо 3 квт . Место под дымоход останется на предыдущем месте , перенести не могу . Поэтому пересмотрел много вариантов разных , ничего подходящего по размерам не нашел и сел сам рисовать . Нарисовал 2 варианта . Один с вертикальными колодцами , другой с горизонтальными . Нашел печника в деревне , хочу с ним сам делать и по ходу поучиться . Покритикуйте варианты пожалуйста .Нарисовал как мог вертикальный разрез . Программ специальных пока не знаю .
Какой лучше с практической точки зрения
|
| Описание: |
| с горизонтальными колодцами |
|
| Размер файла: |
71.4 КБ |
| Просмотров: |
661 раз(а) |

|
| Описание: |
|
| Размер файла: |
56.77 КБ |
| Просмотров: |
569 раз(а) |

|
| Описание: |
|
| Размер файла: |
127.15 КБ |
| Просмотров: |
636 раз(а) |

|
| Описание: |
|
| Размер файла: |
139.18 КБ |
| Просмотров: |
650 раз(а) |

|
|
|
  |
 |
Шура

Зарегистрирован: Чт 8 Январь 2009, 20:09
Сообщения: 4171
Регион: Москва - Тамбов
|
Добавлено:
Пн 13 Июнь 2016, 12:44
|
  |
| sed651 писал(а): |
| ...Есть дом в деревне сруб 6х6 ... |
Эо будет дача или планируется пмж?
|
|
|
|
   |
 |
sed651
Зарегистрирован: Вс 12 Июнь 2016, 22:36
Сообщения: 2
Регион: москва
|
Добавлено:
Пн 13 Июнь 2016, 13:34
|
  |
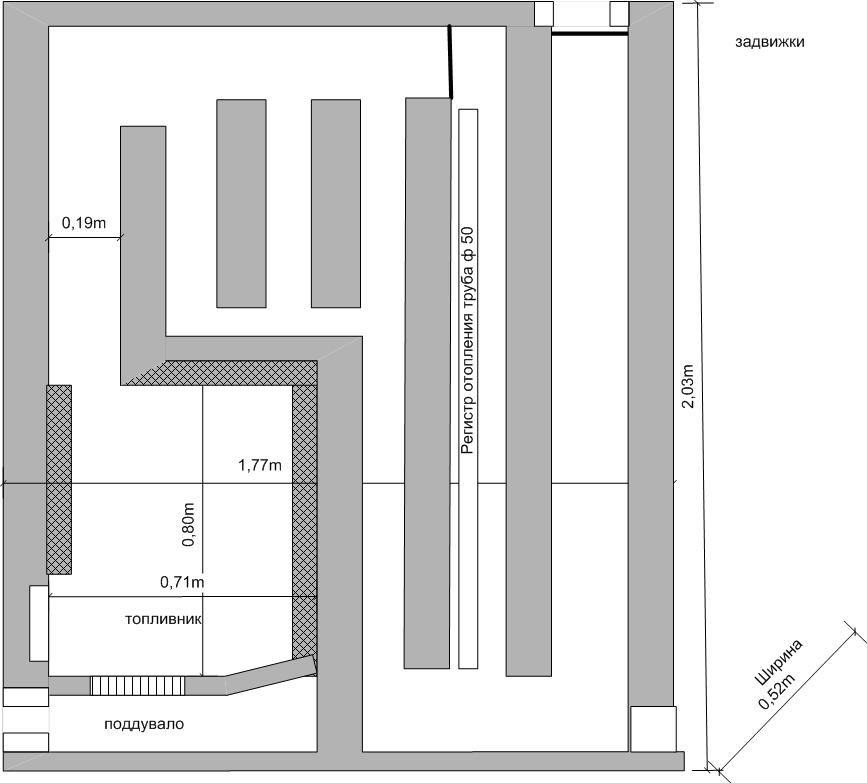
Планируется ПМЖ . Прорисовал более подробно в масштабе второй вариант . За основу взял типовую печь ПТОУ-2500 из книги Школьникова и растянул ее до 170 см в длину .
|
| Описание: |
|
| Размер файла: |
91.87 КБ |
| Просмотров: |
661 раз(а) |

|
|
|
  |
 |
Шура

Зарегистрирован: Чт 8 Январь 2009, 20:09
Сообщения: 4171
Регион: Москва - Тамбов
|
Добавлено:
Пн 13 Июнь 2016, 17:06
|
  |
| sed651 писал(а): |
| Планируется ПМЖ ... |
Для пмж вроде как маловат домик и сан-узла не видно на плане...
|
|
|
|
   |
 |
|
|
|
Следующая тема
Предыдущая тема
Вы не можете начинать темы Вы не можете отвечать на сообщения Вы не можете редактировать свои сообщения Вы не можете удалять свои сообщения Вы не можете голосовать в опросах Вы не можете добавлять приложения в этом форуме Вы можете скачивать файлы в этом форуме
|
|