| Автор |
Сообщение
|
Алексей Гор
Зарегистрирован: Ср 28 Февраль 2007, 16:56
Сообщения: 6
Регион: москва
|
Добавлено:
Ср 28 Февраль 2007, 17:53
|
  |
по весне(год назад) поставили сруб и соорудили крышу, фундамент под печь сделал монолитом с ленточным под стены, по размеру оставил место на "шведку"(камин в комнату, топка и варочная панель в коридор). Но посмотрел печи Кузнецова и понравилась модель ОВИКЗК4 ,только нам камин нужен справа и труба тоже справа.Что можете посоветовать?
|
| Описание: |
| Прикладываю фотографию фундамента. |
|
| Размер файла: |
59.16 КБ |
| Просмотров: |
1092 раз(а) |

|
|
|
   |
 |
Алексей Гор
Зарегистрирован: Ср 28 Февраль 2007, 16:56
Сообщения: 6
Регион: москва
|
Добавлено:
Ср 28 Февраль 2007, 17:57
|
  |
вид со стороны комнаты, коридор сзади
|
|
|
|
   |
 |
Андрей Ищенко
Проектировщик
Зарегистрирован: Вт 7 Февраль 2006, 10:08
Сообщения: 2946
Регион: Пенза
|
Добавлено:
Чт 1 Март 2007, 12:29
|
  |
Любую конструкцию спроектируем и построим.
|
_________________ +7 962 974-10-94 Viber WhatsApp
+7 962 399-59-39
|
|
     |
 |
Алексей Гор
Зарегистрирован: Ср 28 Февраль 2007, 16:56
Сообщения: 6
Регион: москва
|
Добавлено:
Чт 1 Март 2007, 19:58
|
  |
какую конструкцию можете предложить и во что это встанет?
размер 4-4,5х 3-3,5 кирпича
и где можно взять кирпич со скруглеными углами ?
|
|
|
|
   |
 |
Андрей Ищенко
Проектировщик
Зарегистрирован: Вт 7 Февраль 2006, 10:08
Сообщения: 2946
Регион: Пенза
|
Добавлено:
Чт 1 Март 2007, 20:05
|
  |
Конструкция печи расчитывается от площади отапливаемых помещений, а не от размеров заложенного фундамента.
В Москве расчетами занимется Колчин Евгений, представитель И.Кузнецова (контакт на форуме). Кирпич найдется любой.
|
_________________ +7 962 974-10-94 Viber WhatsApp
+7 962 399-59-39
Последний раз редактировалось: Андрей Ищенко (Чт 1 Март 2007, 20:09), всего редактировалось 1 раз |
|
     |
 |
Францыч

Зарегистрирован: Пн 9 Январь 2006, 08:27
Сообщения: 558
Регион: Новосибирск
|
Добавлено:
Чт 1 Март 2007, 20:07
|
  |
Готовя проемы и фундамент под печь учли ли Вы, что контуры печи должны отстоять от сгораемых конструкций (сруб) минимум на 250 мм? Глядя на фото, подозреваю, что не учли (если планируете печь "размер 4-4,5х 3-3,5 кирпича ")... Угол сруба резать надо, а он несущий, как правило...
|
|
|
|
    |
 |
Евгений Колчин

Зарегистрирован: Чт 3 Октябрь 2002, 06:26
Сообщения: 10147
Регион: Москва
|
Добавлено:
Чт 1 Март 2007, 20:20
|
  |
Алексей, а можно увидеть общий план дома, желательно с размерами и привязкой фундамента?
|
|
|
|
      |
 |
Алексей Гор
Зарегистрирован: Ср 28 Февраль 2007, 16:56
Сообщения: 6
Регион: москва
|
Добавлено:
Чт 1 Март 2007, 21:23
|
  |
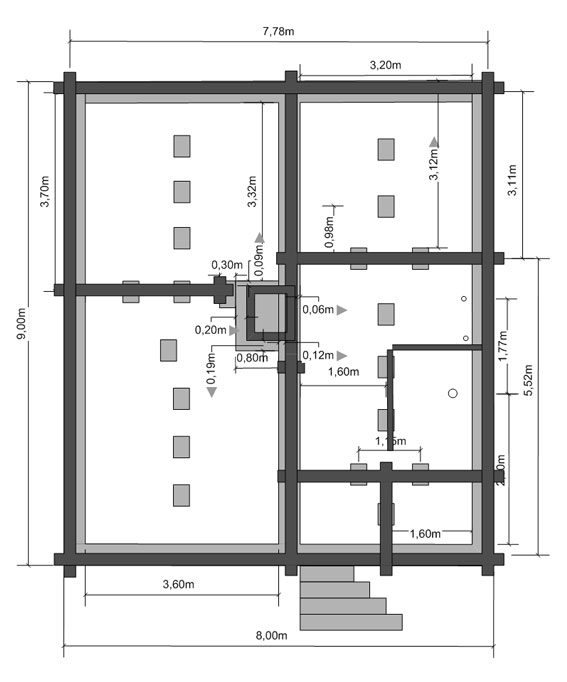
я попробовал наложить план дома на план фундамента(темный - дом, светлый - фундамент), прямоугольником показано предполагаемое место печи.
угол сруба как раз и предполагается резать, только не до самого верха(бревна 4 остается), пока оставил так для равномерной усадки
|
| Описание: |
|
| Размер файла: |
39.32 КБ |
| Просмотров: |
1211 раз(а) |

|
|
|
   |
 |
Алексей Гор
Зарегистрирован: Ср 28 Февраль 2007, 16:56
Сообщения: 6
Регион: москва
|
Добавлено:
Чт 1 Март 2007, 21:32
|
  |
в принципе мы не стремимся одной этой печью обогреть весь этаж,
по нашим разумениям варочная панель погреет коридор и чуть кухню(справа вверху), часть стены погреет спальню(слева вверху),
камин вытянет сырость и прогреет дымоход при периодических заездах и часть печи погреют гостиную(слева внизу), а догреваться зимой будем электричеством
|
|
|
|
   |
 |
Алексей Гор
Зарегистрирован: Ср 28 Февраль 2007, 16:56
Сообщения: 6
Регион: москва
|
Добавлено:
Чт 1 Март 2007, 21:57
|
  |
последняя версия плана с безопасными отступами под печь 4х3,5
|
| Описание: |
|
| Размер файла: |
39.49 КБ |
| Просмотров: |
1105 раз(а) |

|
|
|
   |
 |
Евгений Колчин

Зарегистрирован: Чт 3 Октябрь 2002, 06:26
Сообщения: 10147
Регион: Москва
|
Добавлено:
Пт 2 Март 2007, 20:31
|
  |
я не могу понять, как можно так спланировать в угол прямой камин ?
расстояние до стенки будет всего ничего, да и на огонь смотреть от стены придется
в вашем случае скорее всего надо доливать фундамент и ставить отопительно варочную с угловым камином, повернув его в зал
или ставить просто отопительную или варочную печь..
|
|
|
|
      |
 |
|
|