 |
|
 |
| Автор |
Сообщение
|
Da4nik
Зарегистрирован: Сб 27 Сентябрь 2014, 14:42
Сообщения: 5
Регион: Луганск
|
Добавлено:
Сб 27 Сентябрь 2014, 15:12
|
  |
В деревенском доме есть печь. Проблема в том, что она горит только в мороз и при ветре. В теплую погоду и тем более в штиль - растопить не получится - весь дым идёт в дом. С прогревом ситуация улучшается, но суть та же - если на улице тепло (например +10) или штиль, то растопить очень сложно. ДАже растопив, и прогрев, можно наблюдать иногда небольшие струйки дыма над плитой ,т.е. тяга неуверенная. Надоело терпеть - решился разобраться.После осмотра печи и изучения интернета возникли некоторые мысли, но хотелось бы получить совет от опытных специалистов.
Насколько хватило информации из интернета, выявил два существенных "косяка" - хайло ниже дверки поддувала, и безобразно сложенный отопительный щиток (за размер летнего канала в 58 см и говорить нечего ). Не смог найти информацию по высоте топки, площади колосников и взаимосвязи с сечением дымохода и дверки поддувала. Подскажите правильность задумки и незамеченные ошибки.
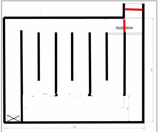
Еще вопрос: в печи поперёк выхода из топки стоит труба, соединяющая половинки котла, она влияет на тягу? (размеры на картинке)
Картинки печи и планируемых переделок:
|
| Описание: |
|
| Размер файла: |
55.2 КБ |
| Просмотров: |
813 раз(а) |

|
| Описание: |
|
| Размер файла: |
19.82 КБ |
| Просмотров: |
632 раз(а) |

|
| Описание: |
|
| Размер файла: |
31.99 КБ |
| Просмотров: |
653 раз(а) |

|
|
|
  |
 |
pe4ka
Зарегистрирован: Ср 23 Сентябрь 2009, 17:36
Сообщения: 1918
Регион: Туймазы
|
Добавлено:
Чт 2 Октябрь 2014, 09:30
|
  |
Летний ход надо бы для растопки. и трубу дымовую желательно без поворотов делать.
|
_________________ окажу консультации по кладке печей каминов и их ремонту д51055 код8-34782 сот 8-9173752622 г.Туймазы башкирия
|
|
   |
 |
Vova-U

Зарегистрирован: Пт 30 Июль 2010, 12:28
Сообщения: 979
Регион: Питер
|
Добавлено:
Чт 2 Октябрь 2014, 13:10
|
  |
Летний ход там как раз есть, он пОнизу идёт в трубу. Д.Б. в 3-4 ряда
Боров на чердаке сделать в три ряда по высоте и хоть чуть-чуть, да наклонный (на два уголка поставить под наклоном), зашить железом от пожара и утеплить.
Плюс изменить щиток
Подробнее про такие щитки расспросить Вогнистого, он такие делает и советует
http://www.forumhouse.ru/threads/201557/page-7
|
| Описание: |
|
| Размер файла: |
12.46 КБ |
| Просмотров: |
430 раз(а) |

|
|
|
   |
 |
Андрей_Алексеевич

Зарегистрирован: Пн 13 Декабрь 2010, 19:17
Сообщения: 5995
Регион: малая родина Павлова, Скобелева, Циолковского, Уткиных и др.
|
Добавлено:
Чт 2 Октябрь 2014, 16:34
|
  |
| Vova-U писал(а): |
| ...Плюс изменить щиток... |
Принимал бы у Вас теорию - за схемку поставил бы "неуд"
Совестно д.б.
|
_________________ Печник - милостью и промыслом Божиим.
Печное отопление частного дома и т.п., авторское сопровождение проектов, наставничество в т.ч. дистанционное, партнёрство в кладке печей.
89106130763 МТС
andrejka61@mail.ru
andrej.kuzmischev@yandex.ru
|
|
   |
 |
Александр Кузнецов

Зарегистрирован: Ср 1 Апрель 2009, 17:33
Сообщения: 1594
Регион: Новосибирск
|
Добавлено:
Чт 2 Октябрь 2014, 18:30
|
  |
| Андрей_Алексеевич писал(а): |
| Vova-U писал(а): |
| ...Плюс изменить щиток... |
Принимал бы у Вас теорию - за схемку поставил бы "неуд"
Совестно д.б.  |
Полностью согласен, летний ход должен быть как можно ближе к верхней части дымохода, то-есть самый ближний путь к трубе.
|
_________________ Новосибирск, камины, печи, грили.
т. 8-913-913-85-86
|
|
   |
 |
Игорь 2

Зарегистрирован: Пн 1 Февраль 2010, 13:16
Сообщения: 1006
Регион: Лен обл Волосовский, Ломоносовский р-ны, Гатчина
|
Добавлено:
Чт 2 Октябрь 2014, 21:26
|
  |
Этого будет достаточно, чтобы работало. А вообще лучше перебрать на два колпака.
|
_________________ телефон +79217415105 https://vk.com/id60358428
| Описание: |
|
| Размер файла: |
21.56 КБ |
| Просмотров: |
382 раз(а) |

|
|
|
   |
 |
Андрей Ищенко
Проектировщик
Зарегистрирован: Вт 7 Февраль 2006, 10:08
Сообщения: 2946
Регион: Пенза
|
Добавлено:
Чт 2 Октябрь 2014, 22:50
|
  |
| Игорь 2 писал(а): |
| Этого будет достаточно, чтобы работало. А вообще лучше перебрать на два колпака. |
Есть еще понятие " топочное напряжение" кто считал?
В (Г) огнистый спец, не спорю, но какой-то мутный....
|
_________________ +7 962 974-10-94 Viber WhatsApp
+7 962 399-59-39
|
|
     |
 |
irez
Зарегистрирован: Пн 25 Апрель 2011, 08:19
Сообщения: 178
Регион: Estonia
|
Добавлено:
Пт 3 Октябрь 2014, 23:18
|
  |
| Da4nik писал(а): |
| Не смог найти информацию по высоте топки, площади колосников и взаимосвязи с сечением дымохода и дверки поддувала. Подскажите правильность задумки и незамеченные ошибки. |
для начала можно поизучать Гост 2127-47 здесь
|
|
|
|
   |
 |
Da4nik
Зарегистрирован: Сб 27 Сентябрь 2014, 14:42
Сообщения: 5
Регион: Луганск
|
Добавлено:
Чт 9 Октябрь 2014, 22:03
|
  |
Пока переделал только часть задуманного - изменил выход и поднял хайло. Ситуация стала значительно лучше - теперь печь при растопке практически не дымит, не зависимо от погоды и температуры самой печи. Но тяга всё равно какая-то не уверенная, хоть огонь и тянет в трубу, но не "гудит". Вот сегодня на улице +8, насыпал углём и вечером начал ощущаться запах чада - т.к. уголь разгорается менее активно, чем дрова, то тут и проявилась неуверенность тяги.
В общем буду продолжать. Планирую для начала летний ход довести до ума, что бы в тёплую погоду не было проблем. Не могу обосновать, но интуитивно пришел к выводу, что он должен идти по верху щитка, об этом же и Александр Кузнецов советует. Со школы известно, что горячий воздух поднимается в верх, а тут его заставляли против законов идти да еще в ход высотой 58см (как известно из физики - при расширении обьема падает скорость газов, если не запамятовал).
Ну а далее посмотрю, если улучшений будет не достаточно, возьмусь за трубу.
irez - спасибо, интересный документ.
|
|
|
|
  |
 |
|
|
|
Следующая тема
Предыдущая тема
Вы не можете начинать темы Вы не можете отвечать на сообщения Вы не можете редактировать свои сообщения Вы не можете удалять свои сообщения Вы не можете голосовать в опросах Вы не можете добавлять приложения в этом форуме Вы можете скачивать файлы в этом форуме
|
|