Некоммерческое партнерство Альянс Печных Дел Мастера
 RSS  • FAQ  •  Поиск  •  Пользователи  •  Группы   •  Регистрация   •  Избранные темы   •  Профиль  •  Войти и проверить личные сообщения  •  Чат  •  Вход





 Посоветуйте печь-камин-лежанка-духовка и т.д.! Следующая тема
Предыдущая тема
Начать новую темуОтветить на тему
Автор Сообщение
Barracuda-da



Зарегистрирован: Сб 6 Декабрь 2014, 16:01
Сообщения: 4
Регион: Выборг Ленинградская обл.

СообщениеДобавлено: Сб 6 Декабрь 2014, 16:20 Ответить с цитатойВернуться к началу

Нужна помощь в поиске проекта, советов по констуктиву, печника и т.д.
Планируется каркасно-щитовой дом со всеми удобствами с теплыми водяными полами с сауной
Хотелось бы поставить печь со следующим функционалом:
- камин со стеклянной дверцей - посмотреть и понаслаждаться огнем
- лежак невысокий - погреть косточки
- печь с крышкой - приготовить кашу, шашлык, молоко топленое
- сушка - грибы, ягоды посушить
- встроенный бак на ? л для теплых полов, душа, кухни
- задняя стенка - стенка сауны с полочкой для эл. печки
- на мансардном этаже щит для обогрева
сауна 6 кв м, кухня-столовая 40 кв. м.
Планируем жить постоянно, но "кто его знает". Постоянно проживать будет 3 человека.
Посмотреть профильОтправить личное сообщение
Barracuda-da



Зарегистрирован: Сб 6 Декабрь 2014, 16:01
Сообщения: 4
Регион: Выборг Ленинградская обл.

СообщениеДобавлено: Сб 6 Декабрь 2014, 19:13 Ответить с цитатойВернуться к началу

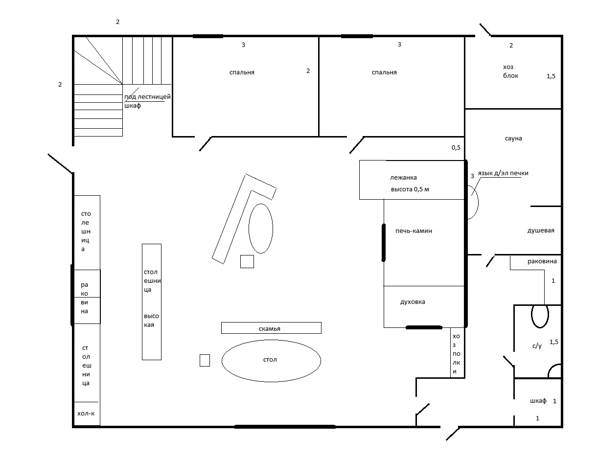
план первого этажа
как получилось - первый раз черчу план



схема -2.jpg
 Описание:
 Размер файла:  102.96 КБ
 Просмотров:  684 раз(а)

схема -2.jpg


Посмотреть профильОтправить личное сообщение
Barracuda-da



Зарегистрирован: Сб 6 Декабрь 2014, 16:01
Сообщения: 4
Регион: Выборг Ленинградская обл.

СообщениеДобавлено: Сб 6 Декабрь 2014, 21:11 Ответить с цитатойВернуться к началу

что-то вроде этой печки



1.jpg
 Описание:
 Размер файла:  220.26 КБ
 Просмотров:  984 раз(а)

1.jpg


Посмотреть профильОтправить личное сообщение
Безумный Печник



Зарегистрирован: Чт 2 Февраль 2012, 21:43
Сообщения: 3221
Регион: спб

СообщениеДобавлено: Сб 6 Декабрь 2014, 22:13 Ответить с цитатойВернуться к началу

На картинке кухонный комплекс в беседке с двумя хлебными камерами по белому и по черному + лежанкой и портал мангала для шашлыки.Почти вся из кирпича Лоде по 60 руб на сегодня и полностью футерована немецким шамотом! !! Хотелки это хорошо наданый момент такая конструкция по материалам тянет на 300 тысяч рублей??? Вы готовы идти натакие вложения???

_________________
Русская Печная АртелЪ -Возрождение старинных ремесел. Печные работы под ключ от зонтика до зольника . 89213537822
Посмотреть профильОтправить личное сообщениеОтправить e-mailПосетить сайт автора
Гребенчюк Андрей



Зарегистрирован: Чт 9 Сентябрь 2010, 17:23
Сообщения: 1211
Регион: Ленинградская область

СообщениеДобавлено: Вс 7 Декабрь 2014, 11:41 Ответить с цитатойВернуться к началу

Ну к примеру можно вариант печь камин с Х/Б поставить и лежанкой и печь отопительную с варочной поверхностью. Вот только только труб наверно все же надо будет ставить две в одну трубу судя по плану ни как не получится связать. Что касается картинки слишком грамостко получится для такой квадратуры дома.
Посмотреть профильОтправить личное сообщение
Barracuda-da



Зарегистрирован: Сб 6 Декабрь 2014, 16:01
Сообщения: 4
Регион: Выборг Ленинградская обл.

СообщениеДобавлено: Пн 8 Декабрь 2014, 18:42 Ответить с цитатойВернуться к началу

[quote="Безумный Печник"]На картинке кухонный комплекс в беседке с двумя хлебными камерами по белому и по черному + лежанкой и портал мангала для шашлыки.Почти вся из кирпича Лоде по 60 руб на сегодня и полностью футерована немецким шамотом! !! Хотелки это хорошо наданый момент такая конструкция по материалам тянет на 300 тысяч рублей??? Вы готовы идти натакие вложения???[/quo
картинка - пример печи
весь функционал написан выше
естественно хочется за разумные деньги, поэтому и описаны функции печи, чтобы были предложения
Посмотреть профильОтправить личное сообщение
Гребенчюк Андрей



Зарегистрирован: Чт 9 Сентябрь 2010, 17:23
Сообщения: 1211
Регион: Ленинградская область

СообщениеДобавлено: Чт 11 Декабрь 2014, 16:16 Ответить с цитатойВернуться к началу

Можно и уменьшить как я и предлагал, примерно по моему варианту выйдет на 1500 кирпича. Смотря по бюджету примерно на 200 тысяч руб выйдет. Все зависит от Вашего желания и денежных средств.
Посмотреть профильОтправить личное сообщение
Показать сообщения:      
Начать новую темуОтветить на тему


 Перейти:   



Следующая тема
Предыдущая тема
Вы не можете начинать темы
Вы не можете отвечать на сообщения
Вы не можете редактировать свои сообщения
Вы не можете удалять свои сообщения
Вы не можете голосовать в опросах
Вы не можете добавлять приложения в этом форуме
Вы можете скачивать файлы в этом форуме




Проект форум печников "Альянс. Печных Дел Мастера" © 2006-2026