 |
|
 |
| Автор |
Сообщение
|
Андро
Зарегистрирован: Вс 15 Февраль 2015, 19:01
Сообщения: 17
Регион: МО
|
Добавлено:
Ср 18 Февраль 2015, 21:20
|
  |
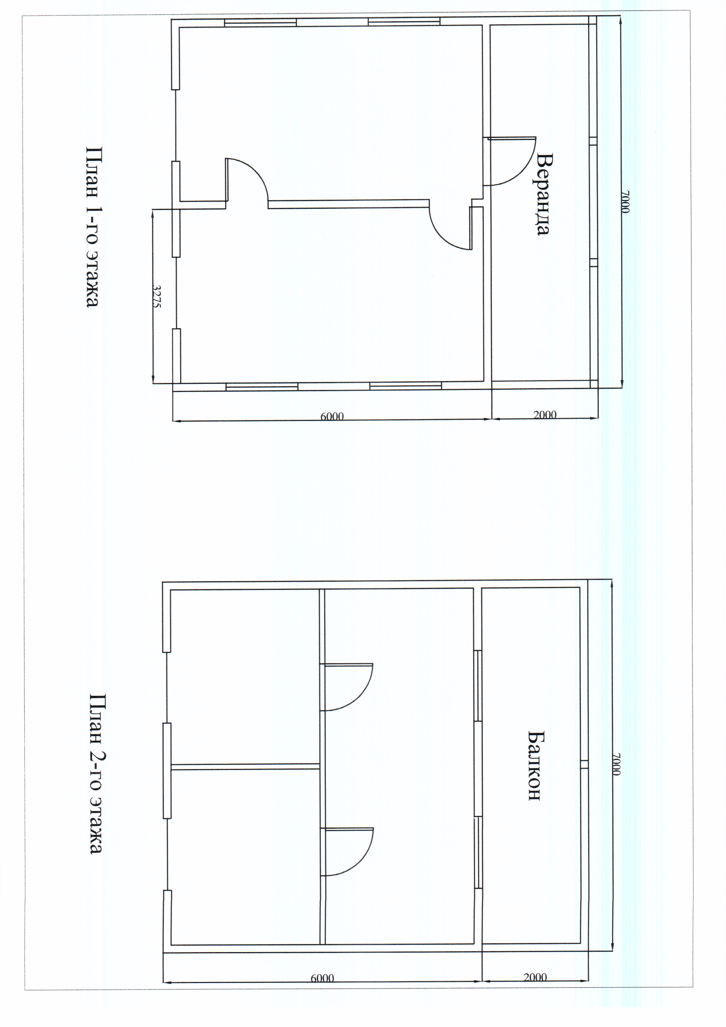
Уважаемые сведующие, просветите пожалуйста! Есть сруб из бруса 150*150 размером 6*7 пятистенок, стоит на МЗЛФ толщиной 40см, пятая стена делит пополам по 6-ти метрам, под ней таже лента фундамента. Залит фундамент под печь 1*1м раздельный от ленты, Понимаю, что печь должна греть оба помещения разделенные перегородкой (брус толщиной 100мм), но фундамент печи получается смещен от оси перегородки на 500 + 200 = 700 мм. Вопросы
взможно ли вынести лицевую частпечи на швелерах уравновесив печной трубой ? Или нужно лить такой же куб зеркально от ленты и перекидывать плитой над лентой и ставить печь на эту перемычку? Или вообще отказаться от печи и поставить котел? Дом при этом планируется не ПМЖ, а наездами. То что в плюсе: к срубу пристроена веранда и балкон, где по плану должен быть санузел, тоже должен подогреваться. все мозги уже сломал, как все подогреть.
|
| Описание: |
|
| Размер файла: |
382.45 КБ |
| Просмотров: |
753 раз(а) |

|
|
|
  |
 |
internet_pechnik
Зарегистрирован: Вт 9 Апрель 2013, 19:51
Сообщения: 1892
Регион: belarus
|
Добавлено:
Ср 18 Февраль 2015, 22:16
|
  |
Ну такой же куб не обязательно но некую опору сделать надо. Можно забить на ленту в этом месте если фундамент под печь сделать глубже. неплохо если нижний венец перегородки окажется ниже пола....придется ведь под печь вырезать дырку в перегородке...Непонятны цифры...70см - это фундамент так далеко от перегородки?
|
|
|
|
  |
 |
Андрей_Алексеевич

Зарегистрирован: Пн 13 Декабрь 2010, 19:17
Сообщения: 5969
Регион: малая родина Павлова, Скобелева, Циолковского, Уткиных и др.
|
Добавлено:
Ср 18 Февраль 2015, 22:33
|
  |
| Андро писал(а): |
Уважаемые сведующие, просветите пожалуйста! Есть сруб из бруса 150*150 размером 6*7 пятистенок, стоит на МЗЛФ толщиной 40см, пятая стена делит пополам по 6-ти метрам, под ней таже лента фундамента. Залит фундамент под печь 1*1м раздельный от ленты, Понимаю, что печь должна греть оба помещения разделенные перегородкой (брус толщиной 100мм), но фундамент печи получается смещен от оси перегородки на 500 + 200 = 700 мм. Вопросы
взможно ли вынести лицевую частпечи на швелерах уравновесив печной трубой ? Или нужно лить такой же куб зеркально от ленты и перекидывать плитой над лентой и ставить печь на эту перемычку? Или вообще отказаться от печи и поставить котел? Дом при этом планируется не ПМЖ, а наездами. То что в плюсе: к срубу пристроена веранда и балкон, где по плану должен быть санузел, тоже должен подогреваться. все мозги уже сломал, как все подогреть. |
А изобразить готовенькое на плане дома ? , или самим додумать , опять же - лестничный марш где?
|
_________________ Печник - милостью и промыслом Божиим.
Печное отопление частного дома и т.п., авторское сопровождение проектов, наставничество в т.ч. дистанционное, партнёрство в кладке печей.
89106130763 МТС
andrejka61@mail.ru
andrej.kuzmischev@yandex.ru
|
|
   |
 |
Андро
Зарегистрирован: Вс 15 Февраль 2015, 19:01
Сообщения: 17
Регион: МО
|
Добавлено:
Ср 18 Февраль 2015, 22:50
|
  |
Лестница с прихожки на балкон, получается теплый контур брусовой 6*7. Куб залит вплотную к ленте с зазором 1 см посреди перегородки. завтра прорисую и выложу. Спасибо за участие!
|
|
|
|
  |
 |
Андрей_Алексеевич

Зарегистрирован: Пн 13 Декабрь 2010, 19:17
Сообщения: 5969
Регион: малая родина Павлова, Скобелева, Циолковского, Уткиных и др.
|
Добавлено:
Ср 18 Февраль 2015, 22:57
|
  |
Коли лестница внешняя, то (при 2-вухкратной топке зимой) для 42 квадратов "кубарика" будет достаточно, если в тёплом контуре смастерите тамбур в 90 см глубиной. А по тепловому балансу - надо знать назначение помещений и состав печных опций
Санкомнату греть печью не удастся , п.к.м. - в этих габаритах... Разве что фундамент пристроить - нарастить и сделать функцию котла. В контур с "незамерзайкой" всё равно придётся встраивать ТЭН , чтобы по морозцу не рвануло трубы в ванной...
|
_________________ Печник - милостью и промыслом Божиим.
Печное отопление частного дома и т.п., авторское сопровождение проектов, наставничество в т.ч. дистанционное, партнёрство в кладке печей.
89106130763 МТС
andrejka61@mail.ru
andrej.kuzmischev@yandex.ru
|
|
   |
 |
Андро
Зарегистрирован: Вс 15 Февраль 2015, 19:01
Сообщения: 17
Регион: МО
|
Добавлено:
Чт 19 Февраль 2015, 22:41
|
  |
Да, порисовал и вижу, что бы более менее равномерно греть половины первого этажа, моего кубарика видать маловато. Нагрузка неравномерно будет распределяться. И вот какие варианты приходят на ум:
1) Т.к. дом предполагает не постоянное в нем прибывание. То, на кубе поставить щиток и к нему подключить буржуя, установив его со стороны столовой. Сим убьем медленный прогрев по приезду (хотя бы в столовой) и по прошествии времени обеспечим мягкое тепло в спальне для комфортного ночлега.
2) Лить такой же куб с другой стороны перегородки, перекидывать ленту плитой или швелерами не связывая. В этом случае получим приличную опору на которой можно поставить печь для первого этажа и щиток для подогрева второго (вижу его отключаемым, чего зря дрова палить). Догрев второго этажа при необходимости - конвекторами электрическими).
3) Забить на печь и пристраивать котельную с ТТК, со всеми вытекающими. Энергонезависимую обязательно, по-скольку в наших краях с электричеством все не есть хорошо, 4 кВт на владение да и напряжение порой 180в.
ПС: фундаменты, лента и под печь - бетон залиты на пролитой песчаной подушке, не связаны между собой, глубина залегания 40-50 см, по ленте выложен цоколь кирпичем в три слоя.
Вот это исходные. А так голову сломал ка и что лучше. Потому и обращаюсь к людям сведующим, может дадут направление куда рыть)
|
| Описание: |
|
 Скачать |
| Название файла: |
фунд.pdf |
| Размер файла: |
49.62 КБ |
| Скачено: |
257 раз(а) |
| Описание: |
| Думал так сойдет. белым - бетон, синим - швелер, красным - печь |
|
 Скачать |
| Название файла: |
печь.pdf |
| Размер файла: |
2.66 КБ |
| Скачено: |
214 раз(а) |
|
|
  |
 |
Андро
Зарегистрирован: Вс 15 Февраль 2015, 19:01
Сообщения: 17
Регион: МО
|
Добавлено:
Чт 19 Февраль 2015, 22:45
|
  |
[quote="Андрей_Алексеевич"]] в тёплом контуре смастерите тамбур в 90 см глубиной.
Вот, тут я не допонял. А что вы имели ввиду?
|
|
|
|
  |
 |
Андрей_Алексеевич

Зарегистрирован: Пн 13 Декабрь 2010, 19:17
Сообщения: 5969
Регион: малая родина Павлова, Скобелева, Циолковского, Уткиных и др.
|
Добавлено:
Чт 19 Февраль 2015, 23:11
|
  |
Тамбур в отапливаемом контуре дома экономит до 10% мощности печи на отопление.
90 см - "прожиточный минимум", дабы не удавалось открыть следующую дверь, не затворив прежнюю.
|
_________________ Печник - милостью и промыслом Божиим.
Печное отопление частного дома и т.п., авторское сопровождение проектов, наставничество в т.ч. дистанционное, партнёрство в кладке печей.
89106130763 МТС
andrejka61@mail.ru
andrej.kuzmischev@yandex.ru
|
|
   |
 |
Андро
Зарегистрирован: Вс 15 Февраль 2015, 19:01
Сообщения: 17
Регион: МО
|
Добавлено:
Чт 19 Февраль 2015, 23:20
|
  |
Т.е., вы имеете в виду в моем случае, дверь из брусового колодца, плюс дверь с на улицу с прихожки?
Так она присутствует. И в моем варианте, прихожка, лестница на второй этаж и балкон являются некоей буферной зоной.
|
|
|
|
  |
 |
Андрей_Алексеевич

Зарегистрирован: Пн 13 Декабрь 2010, 19:17
Сообщения: 5969
Регион: малая родина Павлова, Скобелева, Циолковского, Уткиных и др.
|
Добавлено:
Пт 20 Февраль 2015, 09:15
|
  |
| Андрей_Алексеевич писал(а): |
Тамбур в отапливаемом контуре дома экономит до 10% мощности печи на отопление.
90 см - "прожиточный минимум", дабы не удавалось открыть следующую дверь, не затворив прежнюю. |
Может быть мне "лыжи смазать" ? , чтобы поехали...
|
_________________ Печник - милостью и промыслом Божиим.
Печное отопление частного дома и т.п., авторское сопровождение проектов, наставничество в т.ч. дистанционное, партнёрство в кладке печей.
89106130763 МТС
andrejka61@mail.ru
andrej.kuzmischev@yandex.ru
|
|
   |
 |
Андро
Зарегистрирован: Вс 15 Февраль 2015, 19:01
Сообщения: 17
Регион: МО
|
Добавлено:
Пт 20 Февраль 2015, 15:57
|
  |
Про тамбур дошло наконец))) (ну в лыжах я еще). Потому и обращаюсь к профи за советами и объяснениями.
Тамбур у меня уже видимо не получится состряпать.
Так хотя б не наломать с последующими этапами возведения.
Спасибо за терпение!
|
|
|
|
  |
 |
Андро
Зарегистрирован: Вс 15 Февраль 2015, 19:01
Сообщения: 17
Регион: МО
|
Добавлено:
Вс 22 Февраль 2015, 20:12
|
  |
А, вообще. Уж сколько читаю форумы, то создалось впечатление что, именно "печники" наиболее скандальные и набивающие себе цену, такие все одиозные, куда деваться! Все друг друга хают по полной программе и все такие крутые аж диву даешься, только куда деваться, то дымит, то не греет и о чем думать заказчику, который не в зуб ногой, ему - заказчику нужно знать, что он в результате получит в дом тепло. А тут люди все жмут, надеются с собой в могилу, как им кажется, секреты государственной важности унести. да и не надо мне учиться, у меня времени нет столько. я освоил не мало профессий. А тут как секта кака-то. Вы уж тут сидя, или помогайте или прямо говорите зачем тут!
|
|
|
|
  |
 |
смирнов иван
Зарегистрирован: Чт 16 Январь 2014, 13:06
Сообщения: 1171
Регион: москва
|
Добавлено:
Вс 22 Февраль 2015, 20:46
|
  |
Для вашего дома печь вполне разумный вариант. Отопить одной печью никаких проблем не вижу. Фундамент, в идеале, с двух сторон ленты и перекрыть. Тогда уж с гарантией, что никуда не денется. Какой функционал Вы хотите получить от печи? Только отопление или приготовить, чайник поставить тоже желательно?
|
_________________ Камины , печи , барбекю , русские печи , ремонт ,переделка.8(903)286-88-58
|
|
    |
 |
Андрей_Алексеевич

Зарегистрирован: Пн 13 Декабрь 2010, 19:17
Сообщения: 5969
Регион: малая родина Павлова, Скобелева, Циолковского, Уткиных и др.
|
Добавлено:
Вс 22 Февраль 2015, 21:02
|
  |
| Андро писал(а): |
| А, вообще. Уж сколько читаю форумы, то создалось впечатление что, именно "печники" наиболее скандальные и набивающие себе цену, такие все одиозные, куда деваться! Все друг друга хают по полной программе и все такие крутые аж диву даешься, только куда деваться, то дымит, то не греет и о чем думать заказчику, который не в зуб ногой, ему - заказчику нужно знать, что он в результате получит в дом тепло. А тут люди все жмут, надеются с собой в могилу, как им кажется, секреты государственной важности унести. да и не надо мне учиться, у меня времени нет столько. я освоил не мало профессий. А тут как секта кака-то. Вы уж тут сидя, или помогайте или прямо говорите зачем тут! |
Ближе к "науке"..., так на сём ресурсе всё про печное отопление уже изложено... и история, и наука, все тенденции и почти самые последние новшества...
Печники, что не может не вселять оптимизма, пока ещё "держатся" и в свои ряды не допускают людей случайных, а, значит, опасных и для окружающих.
Скандалами отмечены не эта группа, поелику чем выше поднимается мастер, тем сложнее к нему подобраться скандалистам.
Да и, по убеждению заказчиков, скандалить с печником - себе дороже... С этой устоявшейся парадигмой мастера не конфликтуют, но поддерживают всячески - уровень работы не позволяет "опускаться" до шкоды всякой
Промежду себя - да, случаются дебаты, не без них , но всё исключительно взаимного усовершенствования ради и пользы заказчиков для
И про то, куда деваться всяким пожелателям, тоже имеются конкретные и пространные изложения с чего да как начинать в проектировании печного отопления.
Не знаю мастеров, кто сознательно "сидел бы на пучке сена"..., достойные ученики всегда были редкостью, нынешние времена - не исключение.
Не редки здесь и такие заказчики, кто под присмотром и руководством дистанционно осваивал профессию, складывая свою собственную печь и после продолжал развиваться в ремесле
За их успехи мастера искренне всегда радуются
"Сектантов" здесь банят, но, возможно я не прав , Е.В.К. поправит
"Сидеть" не получается, даже лёжа в кардиостационаре , а навещают сие место, преимущественно помощи ради (не редко - бескорыстной) и содержательного общения.
|
_________________ Печник - милостью и промыслом Божиим.
Печное отопление частного дома и т.п., авторское сопровождение проектов, наставничество в т.ч. дистанционное, партнёрство в кладке печей.
89106130763 МТС
andrejka61@mail.ru
andrej.kuzmischev@yandex.ru
|
|
   |
 |
Андро
Зарегистрирован: Вс 15 Февраль 2015, 19:01
Сообщения: 17
Регион: МО
|
Добавлено:
Вс 22 Февраль 2015, 21:21
|
  |
Вы, уж извините, я бы рад поучиться, но в вашей теме не находишь элементарного ответа обывателю, коих у всех стале-чугунников девятый вал с гаком и за кой х.. вы из себя чего то строите? я даже как маркетолог вам скажу что эта позиция проигрышна на перед. если хотите чтобы печное отопление сосотоялось как спрос населения и не померло совсем оно должно выигрывать перед газом и электро, посему оно должно быть конкурентно и доступно
|
|
|
|
  |
 |
Игорь77
Зарегистрирован: Вт 23 Сентябрь 2014, 08:59
Сообщения: 24
Регион: Москва
|
Добавлено:
Вс 22 Февраль 2015, 21:22
|
  |
| Андро писал(а): |
| А, вообще. Уж сколько читаю форумы, то создалось впечатление что, именно "печники" наиболее скандальные и набивающие себе цену, такие все одиозные, куда деваться! Все друг друга хают по полной программе и все такие крутые аж диву даешься, только куда деваться, то дымит, то не греет и о чем думать заказчику, который не в зуб ногой, ему - заказчику нужно знать, что он в результате получит в дом тепло. А тут люди все жмут, надеются с собой в могилу, как им кажется, секреты государственной важности унести. да и не надо мне учиться, у меня времени нет столько. я освоил не мало профессий. А тут как секта кака-то. Вы уж тут сидя, или помогайте или прямо говорите зачем тут! |
Как раз печники то - самые доброжелательные люди! Всегда подскажут как сделать чтоб в доме было тепло.
Проект дома с печным отоплением просчитывается " от печки" - в зависимости от планируемых размеров дома рассчитывается размер и мощность печи - соответственно и размеры , расположение фундамента ; расположение внутренних стен-перегородок. Только в таких случаях печник может гарантировать нормальную работу печи , пожаробезопасность , комфорт и тепло в доме , и невысокую стоимость работ. А многие пожелания заказчиков " поставить печь с указанными размерами , в определенном месте , на уже готовый фундамент , в уже построенный дом , и чтоб хорошо работало и было безопасно " - требуют знаний и расчетов больше чем в космическом кораблестроении... , да и цена получится соответственно.
|
|
|
|
  |
 |
Андро
Зарегистрирован: Вс 15 Февраль 2015, 19:01
Сообщения: 17
Регион: МО
|
Добавлено:
Вс 22 Февраль 2015, 21:26
|
  |
с другой стороны печное отопление жмут со всех сторон, газ, ИК, Эл-во, новые технологии. Скоро в будующем печники видать останутся совсем без хлеба. может потому вы сейчас так стараетесь урвать?
|
|
|
|
  |
 |
Андро
Зарегистрирован: Вс 15 Февраль 2015, 19:01
Сообщения: 17
Регион: МО
|
Добавлено:
Вс 22 Февраль 2015, 21:33
|
  |
А, я. Да мне хочется в моем дачном доме, получить более менее удачную систему отопления и не более. Поскольку дом уже поставлен и есть определенные но.. вот с этими но я и обратился с надеждой , что к профи
|
|
|
|
  |
 |
Андрей_Алексеевич

Зарегистрирован: Пн 13 Декабрь 2010, 19:17
Сообщения: 5969
Регион: малая родина Павлова, Скобелева, Циолковского, Уткиных и др.
|
Добавлено:
Вс 22 Февраль 2015, 21:52
|
  |
| Андро писал(а): |
| с другой стороны печное отопление жмут со всех сторон, газ, ИК, Эл-во, новые технологии. Скоро в будующем печники видать останутся совсем без хлеба. может потому вы сейчас так стараетесь урвать? |
Печное отопление не ущербно в Вашем рейтинговом списке, всё определяется доступностью ресурса населению и адекватностью этого самого населения.
Печи дровяные кирпичные, в сегменте 40-120т.р.РФ (стоимость работы), здесь вне конкуренции - и заказчиков на них много, желающих сэкономить и работой всегда обеспечены..., ибо срок гарантийный не велик
Но (наблюдая негативный настрой в общении) Вас, к.м.к., оскорбит то обстоятельство, что для некоторых из "местных" ценник начинается даже не с этой цифры... на-а-а-амного выше.
И вот у этих то аборигенов очередь из заказчиков, помощников и учеников не иссякает
А расценки за кирпич не сильно отличаются, например, от таковых в шиномонтаже - ремонте, только вот установка "грибка" по трудозатратам, трудно сопоставима...
|
_________________ Печник - милостью и промыслом Божиим.
Печное отопление частного дома и т.п., авторское сопровождение проектов, наставничество в т.ч. дистанционное, партнёрство в кладке печей.
89106130763 МТС
andrejka61@mail.ru
andrej.kuzmischev@yandex.ru
|
|
   |
 |
смирнов иван
Зарегистрирован: Чт 16 Январь 2014, 13:06
Сообщения: 1171
Регион: москва
|
Добавлено:
Вс 22 Февраль 2015, 21:54
|
  |
| Андро писал(а): |
| А, я. Да мне хочется в моем дачном доме, получить более менее удачную систему отопления и не более. Поскольку дом уже поставлен и есть определенные но.. вот с этими но я и обратился с надеждой , что к профи |
Так и где проблема? Печь при Вашем раскладе поставить ничто не мешает. По поводу фундамента опять же решаемо. Если интересно - пишите, звоните. И кстати, в плане автономности печное отопление вне конкуренции.
|
_________________ Камины , печи , барбекю , русские печи , ремонт ,переделка.8(903)286-88-58
|
|
    |
 |
|
|
|
Следующая тема
Предыдущая тема
Вы не можете начинать темы Вы не можете отвечать на сообщения Вы не можете редактировать свои сообщения Вы не можете удалять свои сообщения Вы не можете голосовать в опросах Вы не можете добавлять приложения в этом форуме Вы можете скачивать файлы в этом форуме
|
|