 |
|
 |
| Автор |
Сообщение
|
alexei.tk
Зарегистрирован: Чт 2 Апрель 2015, 17:32
Сообщения: 1
Регион: MO
|
Добавлено:
Чт 2 Апрель 2015, 20:13
|
  |
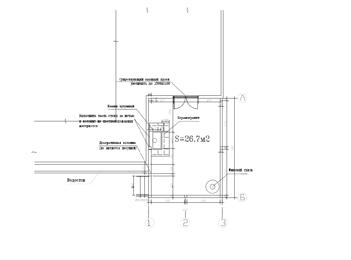
Необходимо сложить камин на террасе 6х4. Терраса сейчас будет возводится. Застекление/утепление пока не предполагается.
Мастер потребуется во второй половине апреля.
Форма и размер камина обсуждаемы, нужны варианты. На картинке изображена "заглушка".
.
|
| Описание: |
|
| Размер файла: |
73.72 КБ |
| Просмотров: |
650 раз(а) |

|
| Описание: |
|
| Размер файла: |
643 КБ |
| Просмотров: |
588 раз(а) |

|
|
|
  |
 |
сергей-298765
Зарегистрирован: Чт 9 Апрель 2015, 07:06
Сообщения: 8
Регион: смоленская обл.
|
Добавлено:
Чт 9 Апрель 2015, 07:30
|
  |
Здравствуйте. Три года сотрудничал с фирмой <Братья немцы> они реализуют кирпич 19 века. Ломают кирпич в Петербурге, старые здания . Я выполнял некоторые работы.
|
| Описание: |
|
| Размер файла: |
15.13 КБ |
| Просмотров: |
319 раз(а) |

|
Последний раз редактировалось: сергей-298765 (Чт 9 Апрель 2015, 07:50), всего редактировалось 1 раз |
|
   |
 |
сергей-298765
Зарегистрирован: Чт 9 Апрель 2015, 07:06
Сообщения: 8
Регион: смоленская обл.
|
Добавлено:
Чт 9 Апрель 2015, 07:46
|
  |
БАРБЕКЮ
|
| Описание: |
|
| Размер файла: |
60.41 КБ |
| Просмотров: |
647 раз(а) |

|
| Описание: |
|
| Размер файла: |
224.46 КБ |
| Просмотров: |
620 раз(а) |

|
|
|
   |
 |
сергей-298765
Зарегистрирован: Чт 9 Апрель 2015, 07:06
Сообщения: 8
Регион: смоленская обл.
|
Добавлено:
Чт 9 Апрель 2015, 08:11
|
  |
|
   |
 |
|
|
|
Следующая тема
Предыдущая тема
Вы не можете начинать темы Вы не можете отвечать на сообщения Вы не можете редактировать свои сообщения Вы не можете удалять свои сообщения Вы не можете голосовать в опросах Вы не можете добавлять приложения в этом форуме Вы можете скачивать файлы в этом форуме
|
|