 |
|
 |
| Автор |
Сообщение
|
tuomob

Зарегистрирован: Пн 26 Сентябрь 2011, 16:45
Сообщения: 2370
Регион: Тула
|
Добавлено:
Чт 2 Июль 2015, 16:47
|
  |
| beluy писал(а): |
Склоняюсь к этой планировке дома!
|
СЕйчас просмотрел все и тоже считаю, что правый нижний самый удачный
Только сверху площадку увеличить вверх стоит
|
_________________ С Уважением! Юрий. Тула.
ВК https://vk.com/tuomob
За проектами в личку обращайтесь.
| Описание: |
|
| Размер файла: |
41.25 КБ |
| Просмотров: |
1051 раз(а) |

|
|
|
  |
 |
Шура

Зарегистрирован: Чт 8 Январь 2009, 20:09
Сообщения: 4171
Регион: Москва - Тамбов
|
Добавлено:
Чт 2 Июль 2015, 22:50
|
  |
| beluy писал(а): |
| Если вы подскажете где можно найти порядовку двухэтажной печи для моей планировки буду признателен. |
В сети полно порядовок двух-этажных печей, есть они и на этом сайте, однако, то что есть в свободном доступе не всегда может подойти для конкретного случая.
| beluy писал(а): |
| Выше я писал что сам спроектировать печь не смогу, так как нет должных знаний и никакого опыта за спиной. |
В таком случае, лучше обратиться к специалистам...
| beluy писал(а): |
По этому думаю как лучше выйти из данной ситуации...
Какой выход предложите вы ? |
Тоже самое, лучший выход, это обратиться к специалисту(инженеру строителю и т.п.)
|
|
|
|
   |
 |
beluy
Зарегистрирован: Чт 25 Июнь 2015, 14:53
Сообщения: 13
Регион: Харьков
|
Добавлено:
Пт 3 Июль 2015, 15:50
|
  |
Что я уже совсем запутался.
1) Можно ли отопить этот дом одной печью?
площадь 3-х комнат первого этажа составляет 52 м.кв.,
двух комнат на втором этаже 27 м.кв.? + лестница и санузел по 4м.кв.
2) Если все таки поставить ТТ котел, сколько он будет держать тепло. 3 часа (пока горят дрова)??? слышал за булеряны говорят 8 часов в режиме тления ? в ТТ котлах как ???
3) Юрий, возможно ли в данной печи http://www.air-hot.ru/index.php/pechiikaminy/otopitelnovarochnyepechi/104-2kp-dsh как вы говорили сделать вверху еще один колпак,
управляемую через ЗЛХ через задвижку летнего хода и задвижку колпака второго этажа.
По мощности заявленной автором эта печь подходит для обогрева
первого этажа (Если я все правильно понимаю)...?
|
| Описание: |
|
| Размер файла: |
131.77 КБ |
| Просмотров: |
1008 раз(а) |

|
|
|
  |
 |
tuomob

Зарегистрирован: Пн 26 Сентябрь 2011, 16:45
Сообщения: 2370
Регион: Тула
|
Добавлено:
Пт 3 Июль 2015, 16:11
|
  |
| beluy писал(а): |
Что я уже совсем запутался.
1) Можно ли отопить этот дом одной печью?
площадь 3-х комнат первого этажа составляет 52 м.кв.,
двух комнат на втором этаже 27 м.кв.? + лестница и санузел по 4м.кв.
2) Если все таки поставить ТТ котел, сколько он будет держать тепло. 3 часа (пока горят дрова)??? слышал за булеряны говорят 8 часов в режиме тления ? в ТТ котлах как ???
3) Юрий, возможно ли в данной печи http://www.air-hot.ru/index.php/pechiikaminy/otopitelnovarochnyepechi/104-2kp-dsh как вы говорили сделать вверху еще один колпак,
управляемую через ЗЛХ через задвижку летнего хода и задвижку колпака второго этажа.
По мощности заявленной автором эта печь подходит для обогрева
первого этажа (Если я все правильно понимаю)...? |
1. Можно, если дом хорошо утеплить.
2. Почитай темы про котлы, оцени свои силы, там не всё просто, в том числе "пока горит", а печь нагрелась и излучает долго.
3. Я бы не советовал для обогрева эту печь, плита не нужна в отопительной.
В твоём варианте 4.5-4.5 отопительная на первом этаже и щиток 4.5-1.5 на втором на ней. Соответственно необходимые задвижки везде.
Подожди, "подумаю" проект для тебя. Посмотри личные сообщения.
|
_________________ С Уважением! Юрий. Тула.
ВК https://vk.com/tuomob
За проектами в личку обращайтесь.
|
|
  |
 |
Vova-U

Зарегистрирован: Пт 30 Июль 2010, 12:28
Сообщения: 979
Регион: Питер
|
Добавлено:
Пт 3 Июль 2015, 16:16
|
  |
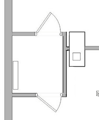
Полагаю можно, исходите из того что на каждый КВТ потерь комнаты вам нужно 1 метр периметра печи, не меньше
Второй этаж поэтому надо по другому стеночку поставить, чтоб вся поверхность печи работала на обогрев комнат, а не лестницы
|
| Описание: |
|
| Размер файла: |
11.04 КБ |
| Просмотров: |
837 раз(а) |

|
|
|
   |
 |
tuomob

Зарегистрирован: Пн 26 Сентябрь 2011, 16:45
Сообщения: 2370
Регион: Тула
|
Добавлено:
Пт 3 Июль 2015, 16:20
|
  |
| Vova-U писал(а): |
Второй этаж поэтому надо по другому стеночку поставить, чтоб вся поверхность печи работала на обогрев комнат, а не лестницы |
Абсолютно согласен
|
_________________ С Уважением! Юрий. Тула.
ВК https://vk.com/tuomob
За проектами в личку обращайтесь.
|
|
  |
 |
Eddie1
Зарегистрирован: Ср 11 Январь 2017, 15:51
Сообщения: 2
Регион: Киев
|
Добавлено:
Вс 18 Июнь 2017, 14:30
|
  |
я так понял будет одна печь на весь первый этаж?
____________
|
|
|
|
  |
 |
Костя

Зарегистрирован: Вс 19 Сентябрь 2010, 23:21
Сообщения: 127
Регион: Подмосковье
|
Добавлено:
Сб 4 Январь 2020, 14:59
|
  |
Интересно узнать, как воплотилась идея.
|
_________________ +7 925 7289477 Viber, WhatsApp, Telegram
Проектирую. Строю. Обслуживаю.
|
|
   |
 |
|
|
|
Следующая тема
Предыдущая тема
Вы не можете начинать темы Вы не можете отвечать на сообщения Вы не можете редактировать свои сообщения Вы не можете удалять свои сообщения Вы не можете голосовать в опросах Вы не можете добавлять приложения в этом форуме Вы можете скачивать файлы в этом форуме
|
|