 |
|
 |
| Автор |
Сообщение
|
Bi
Зарегистрирован: Пн 14 Сентябрь 2015, 14:35
Сообщения: 12
Регион: Дзержинский
|
Добавлено:
Пн 18 Сентябрь 2017, 19:12
|
  |
подскажите, пожалуйста, можно протянуть от буржуйки горизонтально дымоход 1,6м под окном, вывести ч/з стену на улицу и там уже поднимать наверх?
печка чугунная с отверстием для трубы на задней стенке
|
|
|
|
  |
 |
mazatrucker74rus

Зарегистрирован: Пн 13 Май 2013, 22:28
Сообщения: 636
Регион: Челябинск
|
Добавлено:
Пн 18 Сентябрь 2017, 20:00
|
  |
Основная проблема - температура газов в первом метре дымохода может достигать восьмисот градусов . Применение на данном участке сендвича после БУРХУЙКИ чревато его прогоранием , применение монотрубы требует правильного противопожарного ограждения .
Что собой представляет буржуйка ? Нет ли возможности и желания сложить небольшой кирпичный щиток , он бы аккумулировал тепло газов, чтобы не отапливать улицу и охладил дымовые газы для последующего транспортирования по сендвичу . Фото завсегда облегчают задачу .
|
_________________ Дилетант аз есьмь .
Вред приносишь ты если хвалишь , но еще больше вреда , если порицаешь то , в чем мало смыслишь .
|
|
  |
 |
Игорь 2

Зарегистрирован: Пн 1 Февраль 2010, 13:16
Сообщения: 1006
Регион: Лен обл Волосовский, Ломоносовский р-ны, Гатчина
|
Добавлено:
Пн 18 Сентябрь 2017, 21:23
|
  |
Я так понял, что человек, в качестве бреда, решил использовать дымоход от печи ,как радиатор водяного отопления под окном)
Про ППБ промолчу ( тут ответ один - нет), скажу только, что растапливать такую конструкцию будет нелегко и сечение этого участка должно быть порядка 250мм и да: первый участок от буржуйки или банной печи - голый - это однозначно, а тут ещё и с запасом по толщине должен быть, т.к. перегреваться он будет будь здоров.
|
_________________ телефон +79217415105 https://vk.com/id60358428
|
|
   |
 |
Bi
Зарегистрирован: Пн 14 Сентябрь 2015, 14:35
Сообщения: 12
Регион: Дзержинский
|
Добавлено:
Пн 18 Сентябрь 2017, 23:32
|
  |
печь варочно-отопительная с плитой две конфорки, размер 40х60 h70,
хочу поставить на утепленную, застекленную по периметру веранду. От места где она не будет мешать до угла, по которому снаружи можно поднять трубу наверх - 1.6м
кирпичный щиток какого размера получится? подоконник выше печи на 10см, окна трогать не могу
монотруба какая? чем утеплять?
|
|
|
|
  |
 |
Игорь 2

Зарегистрирован: Пн 1 Февраль 2010, 13:16
Сообщения: 1006
Регион: Лен обл Волосовский, Ломоносовский р-ны, Гатчина
|
Добавлено:
Вт 19 Сентябрь 2017, 08:30
|
  |
| Bi писал(а): |
печь варочно-отопительная с плитой две конфорки, размер 40х60 h70,
хочу поставить на утепленную, застекленную по периметру веранду. От места где она не будет мешать до угла, по которому снаружи можно поднять трубу наверх - 1.6м
кирпичный щиток какого размера получится? подоконник выше печи на 10см, окна трогать не могу
монотруба какая? чем утеплять? |
Вы и читать не умеете, к тому же. НЕ утепляется труба первая, которая моно. Отступы от сгораемых поверхностей по полметра. Прямой дымоход и т.д. и т.п. - Всё это написано должно быть в инструкции по установке печки. Неужели Вы думаете, что найдётся человек, который подпишет себе приговор ? Хотя...
|
_________________ телефон +79217415105 https://vk.com/id60358428
|
|
   |
 |
Bi
Зарегистрирован: Пн 14 Сентябрь 2015, 14:35
Сообщения: 12
Регион: Дзержинский
|
Добавлено:
Вт 19 Сентябрь 2017, 10:11
|
  |
Игорь 2, извините, а "правильное противопожарное ограждение" не утеплителем огнестойким делается? у Вас только сейчас настроение к словам придираться или по жизни?
основной вопрос - будет работать печка при таком начале дымохода? как нужно сделать, чтоб работала?
и если первый вопрос решаем, тогда возникает второй вопрос - как провести этот горизонтальный участок безопасно...
утеплитель из керамического волокна Cerablanket уже проверен - до 1260 град, толщины 50 достаточно для этой печки - прокладывали от бревенчатой стенки
инструкции от печки нет, покупали давно
|
|
|
|
  |
 |
Игорь 2

Зарегистрирован: Пн 1 Февраль 2010, 13:16
Сообщения: 1006
Регион: Лен обл Волосовский, Ломоносовский р-ны, Гатчина
|
Добавлено:
Вт 19 Сентябрь 2017, 11:00
|
  |
Вы совсем чтоль ку-ку? Вам уже третий раз говорят: первый участок трубы НЕ ТЕПЛОИЗОЛИРУЕТСЯ - иначе сгорит очень быстро, вместе с Вами. И по правилам ПБ этот участок ДОЛЖЕН отстоять МИНИМУМ на полметра от сгораемых поверхностей. Какой керамобланкет?
|
_________________ телефон +79217415105 https://vk.com/id60358428
|
|
   |
 |
Bi
Зарегистрирован: Пн 14 Сентябрь 2015, 14:35
Сообщения: 12
Регион: Дзержинский
|
Добавлено:
Вт 19 Сентябрь 2017, 11:16
|
  |
если делать этот участок моно трубой, то её ни чем не закрывать и отодвигать от стенки на 0,5м - правильно?
и нужно будет что-то делать с другой стороны, чтоб не обжечься...
плохой вариант... 1,2м х1,6м - 2м2 помещения бестолково съедает...
а кирпичный щиток вместо трубы будет работать? типа лежанки можно сделать?
|
|
|
|
  |
 |
Игорь 2

Зарегистрирован: Пн 1 Февраль 2010, 13:16
Сообщения: 1006
Регион: Лен обл Волосовский, Ломоносовский р-ны, Гатчина
|
Добавлено:
Вт 19 Сентябрь 2017, 12:15
|
  |
| Bi писал(а): |
если делать этот участок моно трубой, то её ни чем не закрывать и отодвигать от стенки на 0,5м - правильно?
и нужно будет что-то делать с другой стороны, чтоб не обжечься...
плохой вариант... 1,2м х1,6м - 2м2 помещения бестолково съедает...
а кирпичный щиток вместо трубы будет работать? типа лежанки можно сделать? |
Вы хоть фотку, что-ль, Вашей печки выложите..
|
_________________ телефон +79217415105 https://vk.com/id60358428
|
|
   |
 |
Bi
Зарегистрирован: Пн 14 Сентябрь 2015, 14:35
Сообщения: 12
Регион: Дзержинский
|
Добавлено:
Вт 19 Сентябрь 2017, 12:44
|
  |
печь Варвара Уют - 2 конфорочная
|
| Описание: |
|
| Размер файла: |
25.51 КБ |
| Просмотров: |
665 раз(а) |

|
|
|
  |
 |
mazatrucker74rus

Зарегистрирован: Пн 13 Май 2013, 22:28
Сообщения: 636
Регион: Челябинск
|
Добавлено:
Вт 19 Сентябрь 2017, 19:47
|
  |
Попробуйте прикинуть использование таких дымоходов как Шидель или Тона , это керамика в утеплении , можно при ваших хотелках сначала организовать дымоход вертикально, сразу за печью, с переходом на горизонт уже над окном , возможно такого длинного горизонта и не понадобится. Прочтите соседнюю тему . Вам нужна коренная труба от пола до подпотолочья , от этого и пляшите . Простите, но плохо представляется печь перед окном , это, еще раз простите, блажь какая-то . План помещения или , что еще лучше - фотографии помогли бы сориентироваться тем, кто более компетентен в этом вопросе , ибо верно указано - никто не захочет брать ответственность в такой непонятной ситуации .
|
_________________ Дилетант аз есьмь .
Вред приносишь ты если хвалишь , но еще больше вреда , если порицаешь то , в чем мало смыслишь .
|
|
  |
 |
Bi
Зарегистрирован: Пн 14 Сентябрь 2015, 14:35
Сообщения: 12
Регион: Дзержинский
|
Добавлено:
Чт 21 Сентябрь 2017, 11:50
|
  |
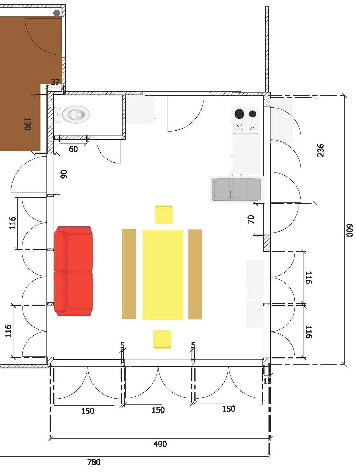
изначально пристройка планировалась как летняя без отопления, поэтому место под печку/камин абсолютно не предусмотрено, но маме "очень нужно поставить туда печку" - электро-нагреватели не вариант... понимаю, что ставить её туда некуда, но маме нужно - значит будем искать варианты... эта печка уже есть и есть к-т сендвича на 5м, большие затраты сделать не смогу - керамический дымоход эт хорошо, но ужасно дорого... на верх сразу поднять из того места, которое планировалось не получится - деревянные окна и пластиковая дверь... на угол сразу тоже не получится - деревянное окно в пол...
фото смогу сделать в выходные, схемы прилагаю - может посоветуете где её воткнуть - отговорить маму не вариант...
думали ставить на место шкафчиков под двумя окошками и выводить на угол - спасибо, разъяснили что так нельзя - отпадает
на место холодильника не думаю что хорошо - низкий вход в подвал и газовая плита на баллонах напротив
по центру и трубу напрямую вверх ч/з крышу - тогда труба выходит на окна второго этажа, а поднимать её выше второго этажа тоже не вариант - растяжки цеплять не к чему
вообщем понятно что все плохо... может действительно под двумя окошками, где планировали печку ставить, поставить кирпичную лежанку не выше 85см с низкой топкой и выводом трубы ч/з стенку на улицу, или тоже плохой вариант?
|
| Описание: |
|
| Размер файла: |
78.34 КБ |
| Просмотров: |
671 раз(а) |

|
| Описание: |
|
| Размер файла: |
86.99 КБ |
| Просмотров: |
680 раз(а) |

|
| Описание: |
|
| Размер файла: |
86.65 КБ |
| Просмотров: |
695 раз(а) |

|
| Описание: |
|
| Размер файла: |
86.13 КБ |
| Просмотров: |
576 раз(а) |

|
| Описание: |
|
| Размер файла: |
125.07 КБ |
| Просмотров: |
678 раз(а) |

|
|
|
  |
 |
Игорь 2

Зарегистрирован: Пн 1 Февраль 2010, 13:16
Сообщения: 1006
Регион: Лен обл Волосовский, Ломоносовский р-ны, Гатчина
|
Добавлено:
Пт 22 Сентябрь 2017, 21:13
|
  |
Вопрос риторический, можно не отвечать: нахрена печка в этот аквариум? Думаете тепло будет? ))) У Вас там теплопотери по окнам - мама не горюй. Вы ещё намучаетесь там отапливать. Если просто нужно готовить еду - купите газовую плиту и не валяйте дурака. Если совсем плохо - закрывайте все сгораемые поверхности, которые будут находится ближе, чем 50см от печи и дымохода вермикулитовыми плитами. Вид будет стрёмный, но зато будет печка )))
|
_________________ телефон +79217415105 https://vk.com/id60358428
|
|
   |
 |
mazatrucker74rus

Зарегистрирован: Пн 13 Май 2013, 22:28
Сообщения: 636
Регион: Челябинск
|
Добавлено:
Сб 23 Сентябрь 2017, 00:50
|
  |
Какие требования к дымоходу у печи ? Там кожух , как производитель описывает размещение относительно окружающего ?
Может вместо газовой плиты поставить и дымоход вверх по кирпичной стене ?
Какое отопление дома? Может на обогрев теплые полы заложить ? Для залпового обогрева лучше каминные кассеты работают , для приготовить газ есть .
Срез трубы выше кровли 10 градусов на снижение от конька крыши , при расстоянии от последнего более трех метров . .
Я не специалист, способный дать исчерпывающую оценку, я просто пытаюсь помочь Вам дать ту информацию. оттолкнувшись от которой другие уже что-то порекомендуют, а пока либо руки не доходят, либо вообще досадуют на создание таких тем .
|
_________________ Дилетант аз есьмь .
Вред приносишь ты если хвалишь , но еще больше вреда , если порицаешь то , в чем мало смыслишь .
|
|
  |
 |
vladimir-krestyanin

Зарегистрирован: Сб 4 Май 2013, 17:38
Сообщения: 796
Регион: санкт-петербург
|
Добавлено:
Сб 23 Сентябрь 2017, 04:49
|
  |
Печь если выражаться точне- компенсирует теплопотери помещения.
Огромная русская печь,нагретая один раз и подтапливаемая все время зимой, компенсировала потери через все щели в срубе, неутепленный подвал и чердак,и отсутствие стеклопакетов в окнах,в прошлые века.
Чтоб отопить веранду,надо посчитать теплопотери в онлайнкаляторе оных. И поставить что то массивное греющее в центре,русскую печь)))),или котел,в другом более удобном помещении и толстые массивные тёплые полы,как вариант этой самой компенсации теплопотерь,на 10 см экструдированного полистирола.чтоб подвал не греть.
тогда можно будет жить зимой на веранде в исподнем,
но почему то,кажется это блажь,вся эта затея.
|
_________________ Ну что, Данила-мастер,не выходит каменный цветок?
печи,камины,барбекю,проекты.
8 931 303 07 37
|
|
   |
 |
Игорь 2

Зарегистрирован: Пн 1 Февраль 2010, 13:16
Сообщения: 1006
Регион: Лен обл Волосовский, Ломоносовский р-ны, Гатчина
|
Добавлено:
Сб 23 Сентябрь 2017, 08:55
|
  |
Это блажь мамы-самодурки. Не обижайтесь, у самого такая есть. Ничего ТС считать не будет и переделывать тоже - он всё уже описал в сообщениях выше.
|
_________________ телефон +79217415105 https://vk.com/id60358428
|
|
   |
 |
|
|
|
Следующая тема
Предыдущая тема
Вы не можете начинать темы Вы не можете отвечать на сообщения Вы не можете редактировать свои сообщения Вы не можете удалять свои сообщения Вы не можете голосовать в опросах Вы не можете добавлять приложения в этом форуме Вы можете скачивать файлы в этом форуме
|
|