 |
|
 |
| Автор |
Сообщение
|
Марианна
Зарегистрирован: Чт 3 Май 2018, 08:58
Сообщения: 58
Регион: Киев
|
Добавлено:
Чт 3 Май 2018, 10:27
|
  |
Добрый день. Прицениваемся, присматриваемся, в общем - ХОТИМ ПЕЧЬ))) Как на картинке)) Понимаю, что соорудить такое "без неприятных последствий" может только профессионал. Только где же его найти? Как не обжечься? Как проверить, правда ли то, что тебе говорят уверенным тоном? Посоветуйте пожалуйста, как найти СВОЕГО мастера? А может, нам повезет и мастер найдется на этом форуме? Чтобы сложилось соотношение "цена-качество"?
О печи - как на прикрепленном фото, со стороны топки еще хотелось бы плиту, как на фото с белой печкой (сразу же вопрос - а это удобно? Так правильно делать? Что если низ уже "горит", вдруг захотелось почистить или затопить основную печь?)
О доме - материал стен - газобетон, обложенный снаружи и изнутри сосной. Между деревом и газобетоном утеплитель. Крыша изнутри тоже дерево (видно на фото). Также прилагаю проект до строительства (почти совпадает с реальностью). Пол - лента только по периметру, внутри периметра большая площадка - песок, щебень, утеплитель, стяжка (примерно). То есть, надо вероятно делать работы по отдельному фундаменту для печи - это я себе так представляю.
Буду признательна за любые советы и комментарии по существу!
|
| Описание: |
|
| Размер файла: |
57.86 КБ |
| Просмотров: |
666 раз(а) |

|
| Описание: |
|
| Размер файла: |
43.56 КБ |
| Просмотров: |
699 раз(а) |

|
| Описание: |
| Альтернативное место для готовки |
|
| Размер файла: |
418.57 КБ |
| Просмотров: |
683 раз(а) |

|
| Описание: |
|
| Размер файла: |
61.13 КБ |
| Просмотров: |
547 раз(а) |

|
| Описание: |
|
| Размер файла: |
72.05 КБ |
| Просмотров: |
544 раз(а) |

|
|
|
  |
 |
Марианна
Зарегистрирован: Чт 3 Май 2018, 08:58
Сообщения: 58
Регион: Киев
|
Добавлено:
Чт 3 Май 2018, 10:30
|
  |
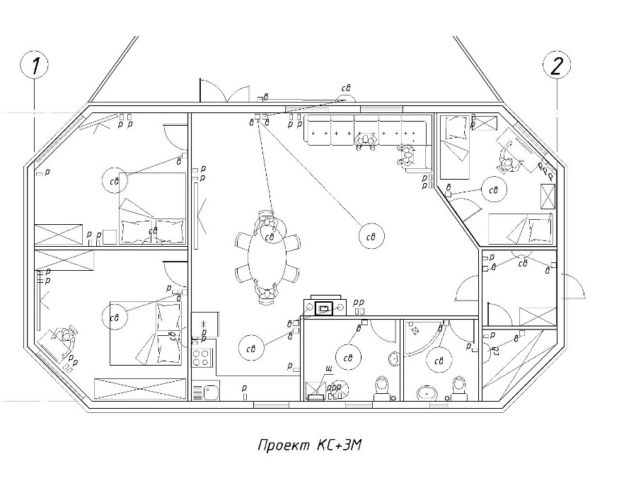
Добавляю план (рисунок) данного дома и план соседнего - он перевернут, но размеры такие же, по идее
|
| Описание: |
|
| Размер файла: |
57.68 КБ |
| Просмотров: |
705 раз(а) |

|
| Описание: |
|
| Размер файла: |
130.06 КБ |
| Просмотров: |
699 раз(а) |

|
|
|
  |
 |
Андрей_Алексеевич

Зарегистрирован: Пн 13 Декабрь 2010, 19:17
Сообщения: 5970
Регион: малая родина Павлова, Скобелева, Циолковского, Уткиных и др.
|
Добавлено:
Чт 3 Май 2018, 20:45
|
  |
Вы чем ВЕСЬ дом отапливать собираетесь?
|
_________________ Печник - милостью и промыслом Божиим.
Печное отопление частного дома и т.п., авторское сопровождение проектов, наставничество в т.ч. дистанционное, партнёрство в кладке печей.
89106130763 МТС
andrejka61@mail.ru
andrej.kuzmischev@yandex.ru
|
|
   |
 |
Марианна
Зарегистрирован: Чт 3 Май 2018, 08:58
Сообщения: 58
Регион: Киев
|
Добавлено:
Чт 3 Май 2018, 21:12
|
  |
Застройщик сделал по всему дому подводки под электробатареи
|
|
|
|
  |
 |
Андрей_Алексеевич

Зарегистрирован: Пн 13 Декабрь 2010, 19:17
Сообщения: 5970
Регион: малая родина Павлова, Скобелева, Циолковского, Уткиных и др.
|
Добавлено:
Чт 3 Май 2018, 22:43
|
  |
Агрегат печной, под ТЗ, вполне реальный.
Поищите, в Ваших палестинах, мастера печника и проектировщика в одном лице... потом, не сыскав такого универсала, разделите эти функции...
|
_________________ Печник - милостью и промыслом Божиим.
Печное отопление частного дома и т.п., авторское сопровождение проектов, наставничество в т.ч. дистанционное, партнёрство в кладке печей.
89106130763 МТС
andrejka61@mail.ru
andrej.kuzmischev@yandex.ru
|
|
   |
 |
Марианна
Зарегистрирован: Чт 3 Май 2018, 08:58
Сообщения: 58
Регион: Киев
|
Добавлено:
Чт 3 Май 2018, 23:27
|
  |
| Андрей_Алексеевич писал(а): |
Агрегат печной, под ТЗ, вполне реальный.
Поищите, в Ваших палестинах, мастера печника и проектировщика в одном лице... потом, не сыскав такого универсала, разделите эти функции... |
Спасибо! Будем стараться. Пока никто из местных не отозвался, даже "фирмы Печи под ключ". Подскажите еще пожалуйста, я правильно понимаю про отдельный фундамент под печь? Если да, то как тогда правильно делать напольное покрытие и связывать его с печью? Она же, наверное, "гулять" будет первое время? Там грунт песчаный.
|
|
|
|
  |
 |
internet_pechnik
Зарегистрирован: Вт 9 Апрель 2013, 19:51
Сообщения: 1892
Регион: belarus
|
Добавлено:
Пт 4 Май 2018, 04:57
|
  |
| Марианна писал(а): |
Добрый день. Прицениваемся, присматриваемся, в общем - ХОТИМ ПЕЧЬ))) Как на картинке)) Понимаю, что соорудить такое "без неприятных последствий" может только профессионал. Только где же его найти? Как не обжечься? Как проверить, правда ли то, что тебе говорят уверенным тоном? Посоветуйте пожалуйста, как найти СВОЕГО мастера? А может, нам повезет и мастер найдется на этом форуме? Чтобы сложилось соотношение "цена-качество"?
О печи - как на прикрепленном фото, со стороны топки еще хотелось бы плиту, как на фото с белой печкой (сразу же вопрос - а это удобно? Так правильно делать? Что если низ уже "горит", вдруг захотелось почистить или затопить основную печь?)
О доме - материал стен - газобетон, обложенный снаружи и изнутри сосной. Между деревом и газобетоном утеплитель. Крыша изнутри тоже дерево (видно на фото). Также прилагаю проект до строительства (почти совпадает с реальностью). Пол - лента только по периметру, внутри периметра большая площадка - песок, щебень, утеплитель, стяжка (примерно). То есть, надо вероятно делать работы по отдельному фундаменту для печи - это я себе так представляю.
Буду признательна за любые советы и комментарии по существу!  |
Ващето это русская печь. Занимает много места,в плане отопления не эффективная. Разве что пироги печь и вообще ....ностальжи. Короче вы не описали что вам нужно от печи.
|
|
|
|
  |
 |
Марианна
Зарегистрирован: Чт 3 Май 2018, 08:58
Сообщения: 58
Регион: Киев
|
Добавлено:
Пт 4 Май 2018, 08:06
|
  |
[/quote]
Ващето это русская печь. Занимает много места,в плане отопления не эффективная. Разве что пироги печь и вообще ....ностальжи. Короче вы не описали что вам нужно от печи.[/quote]
Упс. Я думала, что это самая-пресамая лучшая отопительная печь в мире! Хотела и топить, и лежать на ней и готовить и камин сбоку - эстетика, и НОСТАЛЬЖИЩЕ тоже по детству - бабушка пироги пекла. А почему она не эффективная в плане отопления? В плане места - там по плану неплохо она встает и еще выполняет функцию зонирования. Пожалуйста, объястите, "чем она не тёплая"? Спасибо!
|
|
|
|
  |
 |
Селиван Виктор
Проектировщик

Зарегистрирован: Сб 2 Январь 2010, 14:33
Сообщения: 6706
Регион: г.Челябинск
|
Добавлено:
Пт 4 Май 2018, 08:49
|
  |
[quote="Марианна"]
Упс. Я думала, что это самая-пресамая лучшая отопительная печь в мире! Хотела и топить, и лежать на ней и готовить и камин сбоку - эстетика, и НОСТАЛЬЖИЩЕ тоже по детству - бабушка пироги пекла. А почему она не эффективная в плане отопления? В плане места - там по плану неплохо она встает и еще выполняет функцию зонирования. Пожалуйста, объястите, "чем она не тёплая"? Спасибо![quote]
Да всё возможно и обогревать и готовить и греться на лежанке. Вас вводят в заблуждение видать в силу своей не компетентности в этих вопросов.Вот здесь описание печи http://forum.stovemaster.ru/viewtopic.php?t=10840
|
|
|
|
     |
 |
Марианна
Зарегистрирован: Чт 3 Май 2018, 08:58
Сообщения: 58
Регион: Киев
|
Добавлено:
Пт 4 Май 2018, 08:50
|
  |
[quote="Селиван Виктор"][quote="Марианна"]
Упс. Я думала, что это самая-пресамая лучшая отопительная печь в мире! Хотела и топить, и лежать на ней и готовить и камин сбоку - эстетика, и НОСТАЛЬЖИЩЕ тоже по детству - бабушка пироги пекла. А почему она не эффективная в плане отопления? В плане места - там по плану неплохо она встает и еще выполняет функцию зонирования. Пожалуйста, объястите, "чем она не тёплая"? Спасибо!
Уххх, спасибо, успокоили)))
|
|
|
|
  |
 |
Селиван Виктор
Проектировщик

Зарегистрирован: Сб 2 Январь 2010, 14:33
Сообщения: 6706
Регион: г.Челябинск
|
Добавлено:
Пт 4 Май 2018, 08:52
|
  |
Марианна -печь по вашему замыслу получится идеальной -даже не меняя концепцию дизайна. Только соображаловка должна быть у печника. А то ведь пошли какие то советы ни о чём -видать чисто отметиться в теме.
|
|
|
|
     |
 |
Марианна
Зарегистрирован: Чт 3 Май 2018, 08:58
Сообщения: 58
Регион: Киев
|
Добавлено:
Пт 4 Май 2018, 09:04
|
  |
| Селиван Виктор писал(а): |
| Марианна -печь по вашему замыслу получится идеальной -даже не меняя концепцию дизайна. Только соображаловка должна быть у печника. А то ведь пошли какие то советы ни о чём -видать чисто отметиться в теме. |
Спасибо! Просмотрев ветку, ссылку на которую Вы прислали чуть раньше - у меня возник вопрос - по замыслу, который в моем запросе, основное ГОРНИЛО (я надеюсь, правильное слово подобрала в этом форуме))) у меня получается как бы сбоку - это удобно будет?
|
|
|
|
  |
 |
Селиван Виктор
Проектировщик

Зарегистрирован: Сб 2 Январь 2010, 14:33
Сообщения: 6706
Регион: г.Челябинск
|
Добавлено:
Пт 4 Май 2018, 09:24
|
  |
| Марианна писал(а): |
| Селиван Виктор писал(а): |
| Марианна -печь по вашему замыслу получится идеальной -даже не меняя концепцию дизайна. Только соображаловка должна быть у печника. А то ведь пошли какие то советы ни о чём -видать чисто отметиться в теме. |
Спасибо! Просмотрев ветку, ссылку на которую Вы прислали чуть раньше - у меня возник вопрос - по замыслу, который в моем запросе, основное ГОРНИЛО (я надеюсь, правильное слово подобрала в этом форуме))) у меня получается как бы сбоку - это удобно будет? |
Да можно и сбоку горнило. Только от плиты в шестке надо отказаться -снижает эффективность самой печи. Ведь наружный корпус и лежанка печи греются не только от горнила -но и от подтопка. А если подтопок с плитой -он малоэффективен.Камин можно адаптировать в общую конструкцию печи. Горячий воздух от топки камина можно использовать также для обогрева массива печи.
|
|
|
|
     |
 |
Селиван Виктор
Проектировщик

Зарегистрирован: Сб 2 Январь 2010, 14:33
Сообщения: 6706
Регион: г.Челябинск
|
Добавлено:
Пт 4 Май 2018, 09:32
|
  |
Да -не усмотрел расположение трубы у вас в плане. Её надо будет перемещать к шестку -там где плита. И с трубой от камина тоже надо будет решать куда вывести. Либо топить камин только с закрытой дверкой.
|
|
|
|
     |
 |
Марианна
Зарегистрирован: Чт 3 Май 2018, 08:58
Сообщения: 58
Регион: Киев
|
Добавлено:
Пт 4 Май 2018, 10:26
|
  |
| Селиван Виктор писал(а): |
| Да -не усмотрел расположение трубы у вас в плане. Её надо будет перемещать к шестку -там где плита. И с трубой от камина тоже надо будет решать куда вывести. Либо топить камин только с закрытой дверкой. |
Соображалка начинает работать с двойным усилием и скрипом шестеренок.
Для печи и ее правильных функций будет лучше отказаться от плиты и камина, а также перевернуть ее "попой к стенке". Тогда "поддтопок" можно будет закрывать стеклянной дверцей? Или тоже сильная теплопотеря?
Для меня, как для хозяйки будет лучше поставить печь левым боком к стенке (максимальная длина ее должна будет быть не более 1м 80см, а лежанка будет тёплая только наполовину), иметь плиту перед горнилом (летом будет оочень жарко от неё, видимо, если у нее теплопотеря), камин для мужа и кота - с трубой (чтобы дым не шел в дом, хотя бы при подкладывании дров). Понятно, что телевизор на дизайне должен быть заменен максимум на картину - вообще не понимаю, кто сообразил на печь телевизор повесить...
Мозг взорвался... Это я еще про цены на кладку печи в Украине еще ничего пока не понимаю... В Интернете полный разброд и шатания...
|
|
|
|
  |
 |
Селиван Виктор
Проектировщик

Зарегистрирован: Сб 2 Январь 2010, 14:33
Сообщения: 6706
Регион: г.Челябинск
|
Добавлено:
Пт 4 Май 2018, 10:50
|
  |
| Марианна писал(а): |
| Селиван Виктор писал(а): |
| Да -не усмотрел расположение трубы у вас в плане. Её надо будет перемещать к шестку -там где плита. И с трубой от камина тоже надо будет решать куда вывести. Либо топить камин только с закрытой дверкой. |
Соображалка начинает работать с двойным усилием и скрипом шестеренок.
Для печи и ее правильных функций будет лучше отказаться от плиты и камина, а также перевернуть ее "попой к стенке". Тогда "поддтопок" можно будет закрывать стеклянной дверцей? Или тоже сильная теплопотеря?
Для меня, как для хозяйки будет лучше поставить печь левым боком к стенке (максимальная длина ее должна будет быть не более 1м 80см, а лежанка будет тёплая только наполовину), иметь плиту перед горнилом (летом будет оочень жарко от неё, видимо, если у нее теплопотеря), камин для мужа и кота - с трубой (чтобы дым не шел в дом, хотя бы при подкладывании дров). Понятно, что телевизор на дизайне должен быть заменен максимум на картину - вообще не понимаю, кто сообразил на печь телевизор повесить...
Мозг взорвался... Это я еще про цены на кладку печи в Украине еще ничего пока не понимаю... В Интернете полный разброд и шатания...  |
Марианна что то у вас разброд в мыслях пошёл полный.
1.Плита в шестке вредна. вместо плиты кирпичный под. Дверку со стеклом туда можно поставить -будет эстетичнее.
2. Сама лежанки -правильно должна быть 1м.80см. Но ещё шесток с трубой и перетрубъем -62-75см добавляется а длину всей печи.
3. Расположение печи ,как у вас на рисунке правильно.
4. Если нужна плита -нужно рядом ставить небольшой очажок с плитой,либо металлическую буржуйку с плитой и подключать к основой печи.
5. От камина можно не отказываться-будет и созерцание огня и дополнительный нагрев печи по принципу гипокауста.
|
|
|
|
     |
 |
Марианна
Зарегистрирован: Чт 3 Май 2018, 08:58
Сообщения: 58
Регион: Киев
|
Добавлено:
Пт 4 Май 2018, 11:00
|
  |
| Селиван Виктор писал(а): |
| Марианна писал(а): |
| Селиван Виктор писал(а): |
| Да -не усмотрел расположение трубы у вас в плане. Её надо будет перемещать к шестку -там где плита. И с трубой от камина тоже надо будет решать куда вывести. Либо топить камин только с закрытой дверкой. |
Соображалка начинает работать с двойным усилием и скрипом шестеренок.
Для печи и ее правильных функций будет лучше отказаться от плиты и камина, а также перевернуть ее "попой к стенке". Тогда "поддтопок" можно будет закрывать стеклянной дверцей? Или тоже сильная теплопотеря?
Для меня, как для хозяйки будет лучше поставить печь левым боком к стенке (максимальная длина ее должна будет быть не более 1м 80см, а лежанка будет тёплая только наполовину), иметь плиту перед горнилом (летом будет оочень жарко от неё, видимо, если у нее теплопотеря), камин для мужа и кота - с трубой (чтобы дым не шел в дом, хотя бы при подкладывании дров). Понятно, что телевизор на дизайне должен быть заменен максимум на картину - вообще не понимаю, кто сообразил на печь телевизор повесить...
Мозг взорвался... Это я еще про цены на кладку печи в Украине еще ничего пока не понимаю... В Интернете полный разброд и шатания...  |
Марианна что то у вас разброд в мыслях пошёл полный.
1.Плита в шестке вредна. вместо плиты кирпичный под. Дверку со стеклом туда можно поставить -будет эстетичнее.
2. Сама лежанки -правильно должна быть 1м.80см. Но ещё шесток с трубой и перетрубъем -62-75см добавляется а длину всей печи.
3. Расположение печи ,как у вас на рисунке правильно.
4. Если нужна плита -нужно рядом ставить небольшой очажок с плитой,либо металлическую буржуйку с плитой и подключать к основой печи.
5. От камина можно не отказываться-будет и созерцание огня и дополнительный нагрев печи по принципу гипокауста. |
И не говорите - вообще запуталась. Почему 1м.80 см - да потому что на плане дома есть еще дверной проем, который уже существует. Переносить его - то еще удовольствие (некуда). Помещение, к которому будет примыкать печь - с/у. Дверь в него находится на расстоянии примерно 1 м. 90 см от стены кухни, куда по плану "смотрит" печь. А лежанка как бы поперек горнила получается по картинке. В общем, надо поехать, снять точные размеры и думать-думать-думать. Может, в крайнем случае, вынести печь немного за стену - но это будет неэстетично и не очень удобно, как по мне. А идея с небольшим очажком с плитой - мне очень понравилась, СПАСИБО!
|
|
|
|
  |
 |
Андрей_Алексеевич

Зарегистрирован: Пн 13 Декабрь 2010, 19:17
Сообщения: 5970
Регион: малая родина Павлова, Скобелева, Циолковского, Уткиных и др.
|
Добавлено:
Пт 4 Май 2018, 20:39
|
  |
| Марианна писал(а): |
| ...Подскажите еще пожалуйста, я правильно понимаю про отдельный фундамент под печь? Если да, то как тогда правильно делать напольное покрытие и связывать его с печью? Она же, наверное, "гулять" будет первое время? Там грунт песчаный. |
Песчаный грунт требует только проливки.
На него, в опалубку, монолитится плита армированная.
http://forum.stovemaster.ru/viewforum.php?f=88
|
_________________ Печник - милостью и промыслом Божиим.
Печное отопление частного дома и т.п., авторское сопровождение проектов, наставничество в т.ч. дистанционное, партнёрство в кладке печей.
89106130763 МТС
andrejka61@mail.ru
andrej.kuzmischev@yandex.ru
| Описание: |
| Вот такая компоновка может быть... |
|
| Размер файла: |
120.16 КБ |
| Просмотров: |
565 раз(а) |

|
|
|
   |
 |
Марианна
Зарегистрирован: Чт 3 Май 2018, 08:58
Сообщения: 58
Регион: Киев
|
Добавлено:
Сб 5 Май 2018, 00:17
|
  |
| Андрей_Алексеевич писал(а): |
| Марианна писал(а): |
| ...Подскажите еще пожалуйста, я правильно понимаю про отдельный фундамент под печь? Если да, то как тогда правильно делать напольное покрытие и связывать его с печью? Она же, наверное, "гулять" будет первое время? Там грунт песчаный. |
Песчаный грунт требует только проливки.
На него, в опалубку, монолитится плита армированная.
http://forum.stovemaster.ru/viewforum.php?f=88 |
Спасибо! Только не до конца поняла, что такое проливка) ))) Опалубка, плита, армированная - понимаю
|
|
|
|
  |
 |
Александр Володин

Зарегистрирован: Вт 28 Июнь 2011, 00:40
Сообщения: 791
Регион: Нижегородская обл.
|
Добавлено:
Сб 5 Май 2018, 01:21
|
  |
| Марианна писал(а): |
Я думала, что это самая-пресамая лучшая отопительная печь в мире! Хотела и топить, и лежать на ней и готовить и камин сбоку |
[/quote]
И правильно думали! Русская печь такая и есть, если её правильно сделать.
Но сбоку лучше не камин, а
| Селиван Виктор писал(а): |
| небольшой очажок с плитой. |
http://forum.stovemaster.ru/viewtopic.php?p=161501#161501
Больше пользы будет.
|
|
|
|
    |
 |
|
|
|
Следующая тема
Предыдущая тема
Вы не можете начинать темы Вы не можете отвечать на сообщения Вы не можете редактировать свои сообщения Вы не можете удалять свои сообщения Вы не можете голосовать в опросах Вы не можете добавлять приложения в этом форуме Вы можете скачивать файлы в этом форуме
|
|