 |
|
 |
| Автор |
Сообщение
|
Alnik
Зарегистрирован: Сб 20 Июнь 2020, 23:52
Сообщения: 2
Регион: Московская область
|
Добавлено:
Вс 21 Июнь 2020, 16:40
|
  |
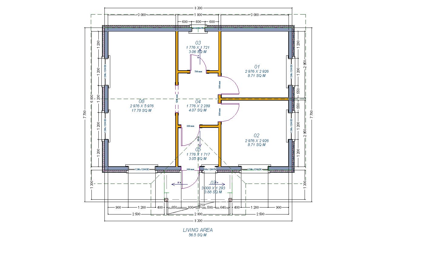
Здравствуйте. Необходимо определиться с печью и потом ее выложить.
Пока не понимаю, каких размеров она должна быть под дом. Сейчас сам дом проектируется и настало время заложить фундамент под печь. Поэтому нужно понять: где и каких размеров. Планировка сейчас еще может незначительно меняться. Текущий вариант во вложении.
Дом одноэтажный, высота до потолка от чистового пола 2400.
Печь предполагается как основной источник отопления в доме сезонного (март-ноябрь) проживания.
Дом каркасный.
Вентиляция для меня пока вопрос, думаю, что в каком-то виде искусственная будет
Я себе видел расположение печи в большой комнате, выполняющей функцию кухни и гостиной. Печь мне видится голландка или шведка. Наличие варочной панели или духовки приятный бонус, но необязательно. Главный критерий - чтоб была эффективна и долго остывала. К долгому прогреву отношусь с пониманием.
В общем, вопрос: где ее ставить, какого размера. У меня были рабочие варианты - в общую комнату с выходом задней стены в коридор (тогда как-то двигать проем надо), либо две шт: одна небольшая на две маленькие комнаты и одна где-нибудь в углу общей комнаты.
Что порекомендуете?
На схеме есть еще одна комната маленькая - предполагается как вещевая.
|
| Описание: |
|
| Размер файла: |
104.21 КБ |
| Просмотров: |
202 раз(а) |

|
|
|
  |
 |
Андрей_Алексеевич

Зарегистрирован: Пн 13 Декабрь 2010, 19:17
Сообщения: 5996
Регион: малая родина Павлова, Скобелева, Циолковского, Уткиных и др.
|
Добавлено:
Вс 21 Июнь 2020, 17:04
|
  |
|
   |
 |
Андрей ..

Зарегистрирован: Ср 16 Ноябрь 2011, 07:49
Сообщения: 1175
Регион: Нижегородская обл.
|
Добавлено:
Пн 22 Июнь 2020, 06:53
|
  |
Шведку в простенок между окнами, в общей комнате. ПТО 2500 в стене между спальнями, поперёк стены.
|
|
|
|
    |
 |
Alnik
Зарегистрирован: Сб 20 Июнь 2020, 23:52
Сообщения: 2
Регион: Московская область
|
Добавлено:
Пн 22 Июнь 2020, 10:42
|
  |
С ПТО разобрался. А шведку каких габаритов рекомендуете?
|
|
|
|
  |
 |
Андрей ..

Зарегистрирован: Ср 16 Ноябрь 2011, 07:49
Сообщения: 1175
Регион: Нижегородская обл.
|
Добавлено:
Пн 22 Июнь 2020, 12:14
|
  |
| Alnik писал(а): |
| .. шведку каких габаритов рекомендуете? |
89 на 127 см.
|
|
|
|
    |
 |
|
|
|
Следующая тема
Предыдущая тема
Вы не можете начинать темы Вы не можете отвечать на сообщения Вы не можете редактировать свои сообщения Вы не можете удалять свои сообщения Вы не можете голосовать в опросах Вы не можете добавлять приложения в этом форуме Вы можете скачивать файлы в этом форуме
|
|