 |
|
 |
| Автор |
Сообщение
|
Zloy Medved
Зарегистрирован: Чт 29 Сентябрь 2011, 19:12
Сообщения: 3
Регион: Челябинск
|
Добавлено:
Чт 29 Сентябрь 2011, 19:26
|
  |
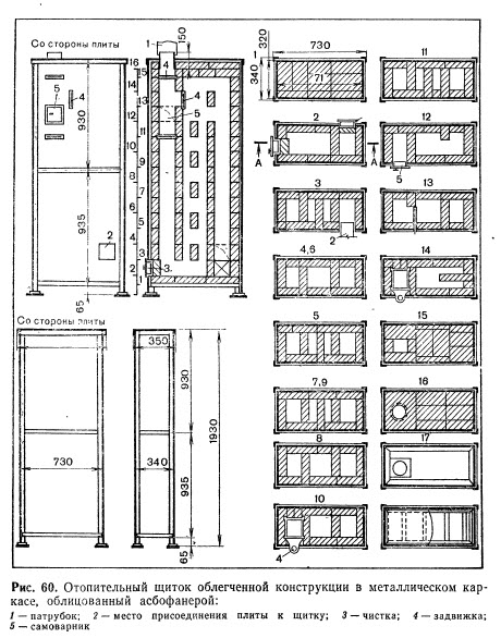
Нужно решить вопрос по отоплению дачного домика. Зимовать в нем никто не собирается, печка топится будет только весной и осенью когда прохладно. Поэтому больше важен быстрый прогрев чем удержание тепла. Покопавшись на форуме прикинул следующую конструкцию. Хотелось бы узнать, будет ли работать токая конструкция.
|
| Описание: |
|
 Скачать |
| Название файла: |
проект.rar |
| Размер файла: |
85.18 КБ |
| Скачено: |
332 раз(а) |
Последний раз редактировалось: Zloy Medved (Чт 29 Сентябрь 2011, 19:40), всего редактировалось 3 раз(а) |
|
  |
 |
Zloy Medved
Зарегистрирован: Чт 29 Сентябрь 2011, 19:12
Сообщения: 3
Регион: Челябинск
|
Добавлено:
Чт 29 Сентябрь 2011, 19:30
|
  |
Щиток на первом этаже, только укоротить.
|
| Описание: |
|
| Размер файла: |
129.78 КБ |
| Просмотров: |
813 раз(а) |

|
|
|
  |
 |
Zloy Medved
Зарегистрирован: Чт 29 Сентябрь 2011, 19:12
Сообщения: 3
Регион: Челябинск
|
Добавлено:
Чт 29 Сентябрь 2011, 19:31
|
  |
Щиток на втором этаже.
|
| Описание: |
|
| Размер файла: |
92.06 КБ |
| Просмотров: |
772 раз(а) |

|
|
|
  |
 |
Селиван Виктор
Проектировщик

Зарегистрирован: Сб 2 Январь 2010, 14:33
Сообщения: 6706
Регион: г.Челябинск
|
Добавлено:
Пт 30 Сентябрь 2011, 18:24
|
  |
Позвоните мне может и чем нибудь помогу,я в Челябинске
тел. +73519041008.
Но проекты которые вы выложили очень древние,сейчас есть и получше намного конструкции печей.
|
_________________ Я за здоровую конкуренцию в печном деле и за работу во благо потребителям услуг печника.Тел. +79507468555
|
|
     |
 |
|
|
|
Следующая тема
Предыдущая тема
Вы не можете начинать темы Вы не можете отвечать на сообщения Вы не можете редактировать свои сообщения Вы не можете удалять свои сообщения Вы не можете голосовать в опросах Вы не можете добавлять приложения в этом форуме Вы можете скачивать файлы в этом форуме
|
|