| Автор |
Сообщение
|
Елена Комарова
Зарегистрирован: Пн 21 Ноябрь 2011, 12:38
Сообщения: 7
Регион: Москва
|
Добавлено:
Пн 6 Февраль 2012, 17:03
|
  |
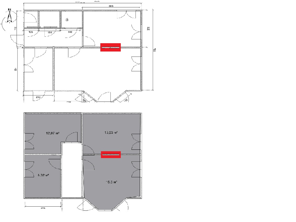
Добрый день Уважаемые Мастера. Сбылась мечта построить небольшой домик, и хочется поставить печку, которая будет отапливать два этажа. Дом планируется использовать зимой для временных заездов. И хочется чтобы у печи была большая стеклянная дверца, лучше эркерная. План дома прилагаю. Строительство можно начать с мая 2012г.
Добавляю: дом из бруса, крыша есть утепленная, стоят несушие стены.
|
_________________ 8 903 791 17 73
| Описание: |
| красный прямоугольник местоположение печи |
|
| Размер файла: |
73.46 КБ |
| Просмотров: |
802 раз(а) |

|
|
|
   |
 |
Куликов Андрей

Зарегистрирован: Вс 30 Январь 2011, 09:15
Сообщения: 1059
Регион: Мичуринск Тамбовская обл.
|
Добавлено:
Пн 6 Февраль 2012, 18:04
|
  |
При данной планировке дома и расположению печи равномерное отопление всех комнат проблематично,потребуется котёл в печь и устройство водяного отопления.Для временного проживания вместо воды в систему незамерзающую жидкость.
|
|
|
|
    |
 |
Елена Комарова
Зарегистрирован: Пн 21 Ноябрь 2011, 12:38
Сообщения: 7
Регион: Москва
|
Добавлено:
Пн 6 Февраль 2012, 18:51
|
  |
Что все не будет протапливаться мы уже поняли, где то будем устанавливать калориферы. Важно отапливать комнаты, где будет печь находится, т.е. две внизу и две наверху. Печь с котлом это идеальный вариант, но очень дорого стоит и как обеспечить тепло на втором этаже непонятно...
|
_________________ 8 903 791 17 73
|
|
   |
 |
Куликов Андрей

Зарегистрирован: Вс 30 Январь 2011, 09:15
Сообщения: 1059
Регион: Мичуринск Тамбовская обл.
|
Добавлено:
Пн 6 Февраль 2012, 19:55
|
  |
Двухэтажная печь будет не на много дешевле,а возможно и равноценна печи+отопление.Также отпадут затраты на калориферы и эл-во.Хотя при периодическом проживании нужно рассмотреть вопрос доп.отопления.До выхода кирпичной печи на рабочий режим пройдёт достаточно времени и проводить его в холодном доме будет не комфортно.
|
|
|
|
    |
 |
Елена Комарова
Зарегистрирован: Пн 21 Ноябрь 2011, 12:38
Сообщения: 7
Регион: Москва
|
Добавлено:
Пн 6 Февраль 2012, 20:30
|
  |
а с котлом печь расчитывается только на первом этаже? как же тогда второй отапливается?
|
_________________ 8 903 791 17 73
|
|
   |
 |
юрий судаков
Зарегистрирован: Пн 26 Июль 2010, 19:19
Сообщения: 71
Регион: ярославль
|
Добавлено:
Пн 6 Февраль 2012, 21:18
|
  |
с котлом оба этажа отапливаются, и без котла со щитком на втором этаже, тоже без проблем все отапливается.
|
|
|
|
   |
 |
Елена Комарова
Зарегистрирован: Пн 21 Ноябрь 2011, 12:38
Сообщения: 7
Регион: Москва
|
Добавлено:
Пн 6 Февраль 2012, 23:17
|
  |
так получается можно и без котла? что такое щиток?
|
_________________ 8 903 791 17 73
|
|
   |
 |
юрий судаков
Зарегистрирован: Пн 26 Июль 2010, 19:19
Сообщения: 71
Регион: ярославль
|
Добавлено:
Вт 7 Февраль 2012, 06:30
|
  |
продолжение печи на втором этаже
|
|
|
|
   |
 |
Валентин Стрибук

Зарегистрирован: Чт 17 Июль 2008, 18:53
Сообщения: 636
Регион: Москва
|
Добавлено:
Вт 7 Февраль 2012, 12:30
|
  |
Дом уже построен и в том месте, где планируется печь, есть ли фундамент.?
Кроме фундамента, очень часто планируемое место не позволяет провести трубу с положенными противопожарными распушками.
Нужны фото.
|
_________________ 9164865048@mail.ru ... Вернём русскую печь в Россию через барбекю
|
|
     |
 |
Куликов Андрей

Зарегистрирован: Вс 30 Январь 2011, 09:15
Сообщения: 1059
Регион: Мичуринск Тамбовская обл.
|
Добавлено:
Вт 7 Февраль 2012, 13:36
|
  |
При данной планеровке дома никаой щиток и двухэтажная печь не помогут.Тем более дом для периодических заездов.Если сильно хочется печь,то только с отоплением.И всё равно чтобы прогреть зимой холодный дом потребуется доп.отопление,калориферы или буржуйка.Повесте везде калориферы и будет Вам счастье.
|
|
|
|
    |
 |
Валентин Стрибук

Зарегистрирован: Чт 17 Июль 2008, 18:53
Сообщения: 636
Регион: Москва
|
Добавлено:
Вт 7 Февраль 2012, 14:02
|
  |
На самом деле цифры говорят следующее:
1. На дом нужно оценочно 10 квт (из рассчёта 100вт/м2)
2. Кирпичная печь даст 4 квт, шиток сверху 2 квт.
3. Недорогая чугунная каминная вставка (от 10квт пока горит), оформленная как камин, в составе камино-печи 1 этажа, быстро разогреет выстуженный дом и выручит в сильные морозы.
4. Недорогая металлическая печь-камин при щитке 2 этажа компенсирует пиковые потребности в тепле на 2 этаже.
Почитайте тему (агрессивные оппоненты - торговцы промышленными печами).
http://www.forumhouse.ru/threads/117265/
|
_________________ 9164865048@mail.ru ... Вернём русскую печь в Россию через барбекю
|
|
     |
 |
Куликов Андрей

Зарегистрирован: Вс 30 Январь 2011, 09:15
Сообщения: 1059
Регион: Мичуринск Тамбовская обл.
|
Добавлено:
Вт 7 Февраль 2012, 14:21
|
  |
Плохо видны размеры дома на схеме,но предположу что общая площадь двух этажей примерно 120м2.Считать конечно можно и это правильно,только ещё повторюсь, протопить такую площадь с такой планировкой комнат и печи приехав на выходные НЕРЕАЛЬНО.Люди постоянно не пользующиеся кирпичной печью её просто перетопят она лопнет,а виноват печник.Чугуниной не торгую .Читал я эту тему и опоненты у вас там не слабые.Моё личное мнение ,не стоит лепить вместе божий дар и яичницу.Лутше кирпичной печи ещё ничего не придумали,только забыли что плясать надо от печки,а не пытаться вставить что хочется в то что уже есть.Чугунные топки пусть выполняют свою работу,а печь свою.Людям нужно приехать на выходные ЗИМОЙ и в течении минимального времени получить комфортную температуру в доме,поэтому без калориферов или чугунины не обойтись.
|
|
|
|
    |
 |
Елена Комарова
Зарегистрирован: Пн 21 Ноябрь 2011, 12:38
Сообщения: 7
Регион: Москва
|
Добавлено:
Вт 7 Февраль 2012, 17:16
|
  |
Залит небольшой фундамент 1,20 на 1,20. Высота первого этажа 2,70, второго 2,50, плюс небольшой чердак, до конька приблизительно 1,5м. Цифры приблизительные, т.к. полы еще не сделаны, только лаги.
|
_________________ 8 903 791 17 73
|
|
   |
 |
Елена Комарова
Зарегистрирован: Пн 21 Ноябрь 2011, 12:38
Сообщения: 7
Регион: Москва
|
Добавлено:
Вт 7 Февраль 2012, 17:18
|
  |
Размеры дома 7 на 8 м.
|
_________________ 8 903 791 17 73
|
|
   |
 |
pe4ka
Зарегистрирован: Ср 23 Сентябрь 2009, 17:36
Сообщения: 1918
Регион: Туймазы
|
Добавлено:
Вт 7 Февраль 2012, 17:32
|
  |
Печь должна стоять на пересечении комнат ромбом не ПАРАЛЛЕЛЬНО стенам дома.Одно зеркало печи одна комната.
|
_________________ окажу консультации по кладке печей каминов и их ремонту д51055 код8-34782 сот 8-9173752622 г.Туймазы башкирия
|
|
   |
 |
Boris759
Зарегистрирован: Ср 9 Февраль 2011, 08:36
Сообщения: 272
Регион: Belarus
|
Добавлено:
Вт 7 Февраль 2012, 17:35
|
  |
Поставьте емкую каминопечь ,типа я тут где то выкладывал.А на верху щиток для двух спален. Лестница тоже будет путем тепла на верх если не закрыто.
|
| Описание: |
|
| Размер файла: |
268.74 КБ |
| Просмотров: |
715 раз(а) |

|
|
|
  |
 |
Елена Комарова
Зарегистрирован: Пн 21 Ноябрь 2011, 12:38
Сообщения: 7
Регион: Москва
|
Добавлено:
Вт 7 Февраль 2012, 17:44
|
  |
На картинке приблизительно то, что мы и хотели. Непонятным остается вопрос о функциональности печи в моем доме... не хочется потратить уйму денег и времени, и в результате, "результата" не получить. Щиток на втором этаже - это, как я поняла, дополнительная топка?
|
_________________ 8 903 791 17 73
|
|
   |
 |
Boris759
Зарегистрирован: Ср 9 Февраль 2011, 08:36
Сообщения: 272
Регион: Belarus
|
Добавлено:
Вт 7 Февраль 2012, 18:06
|
  |
щиток -это щиток-узкая стенка как правило 40-50см толщиной,через которую проходят горячие газы из топки рядом или с нижней печи. Понятно что нижняя печь должна оборгревать только его путем переключения задвижек. Длина щитка как правило равна длине нижней печи ведь она служит и фундаментом для верхнего щитка.Корче щиток -это узкая печь без топливника
|
| Описание: |
|
| Размер файла: |
192.79 КБ |
| Просмотров: |
711 раз(а) |

|
|
|
  |
 |
Куликов Андрей

Зарегистрирован: Вс 30 Январь 2011, 09:15
Сообщения: 1059
Регион: Мичуринск Тамбовская обл.
|
Добавлено:
Вт 7 Февраль 2012, 20:25
|
  |
Зайдите на FORUMHOUSE раздел печи и камины тема стоимость печи да и во многих других.Там люди более свободно общаются по ценам,а здесь больше консерватизма.А мне и в Мичуринске работы хватает.В этом разделе тема выше о стоимости работ.
*обсуждения стоимости через ЛС
|
|
|
|
    |
 |
Dreamdavids
Зарегистрирован: Сб 29 Октябрь 2011, 07:18
Сообщения: 1105
Регион: Пермь
|
Добавлено:
Ср 8 Февраль 2012, 10:11
|
  |
| pe4ka писал(а): |
| Печь должна стоять на пересечении комнат ромбом не ПАРАЛЛЕЛЬНО стенам дома.Одно зеркало печи одна комната. |
Интересное предложение. По предложенному плану дома будет выглядеть
весьма экстрентично
|
|
|
|
  |
 |
|
|