 |
|
 |
| Автор |
Сообщение
|
Konstantin
Зарегистрирован: Вс 24 Март 2013, 18:22
Сообщения: 5
Регион: Москва
|
Добавлено:
Вс 24 Март 2013, 18:36
|
  |
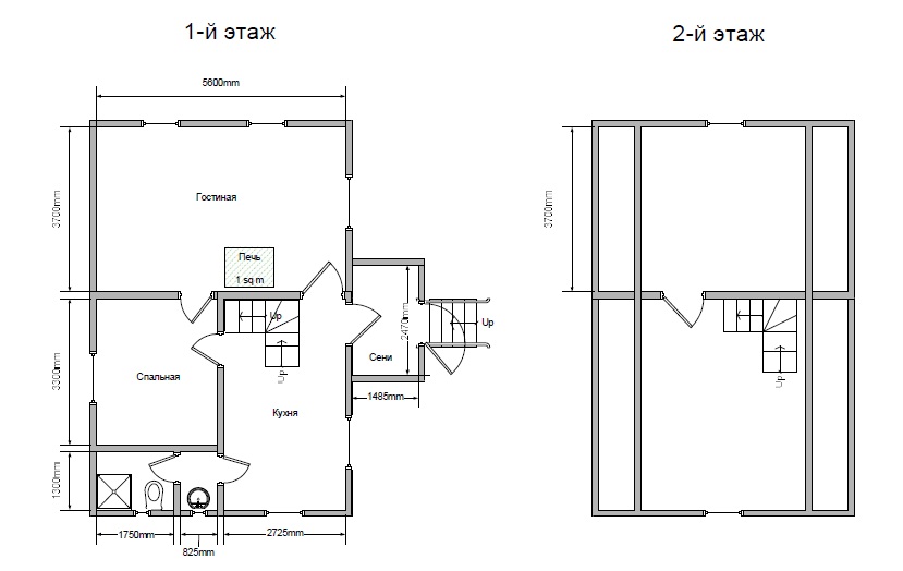
Здравствуйте, решил обратиться за советом к профессионалам. Планирую строить дом 6х9 с мансардой. При закладке фундамента помимо ленты думаю заложить фундамент 1200х1200 для отопительной печи. Печь разместить в гостиной, как на рисунке. На каком расстоянии от ленты фундамента и несущей стены, а также от срединной линии дома (конька) лучше расположить в данном случае фундамент печки? Главные критерии в данном случае - пожаробезопасность, гарантия правильных разделок, распушек, правильный выход трубы. Конкретную печку пока не выбрал, хочется заложить что-то универсальное.
|
| Описание: |
|
| Размер файла: |
57.87 КБ |
| Просмотров: |
1511 раз(а) |

|
|
|
  |
 |
Андрей_Алексеевич

Зарегистрирован: Пн 13 Декабрь 2010, 19:17
Сообщения: 5990
Регион: малая родина Павлова, Скобелева, Циолковского, Уткиных и др.
|
Добавлено:
Вс 24 Март 2013, 20:02
|
  |
|
   |
 |
Konstantin
Зарегистрирован: Вс 24 Март 2013, 18:22
Сообщения: 5
Регион: Москва
|
Добавлено:
Вс 24 Март 2013, 20:19
|
  |
Спасибо за план, план хороший, особенно удобен с точки зрения отопления. Но для протопки всего дома потребуется и мощная печь. Я планировал что-нибудь легенькое, для сезонного проживания. Кухню и 2-й этаж отапливать пока не собираюсь, в холодное время приехать и достаточно быстро прогреть хотя бы одну комнату, при необходимости согреть спальную - просто открыть дверь.
Лестница возможно пойдет и по-другому, но располагаться скорее всего в том же помещении.
|
|
|
|
  |
 |
Андрей_Алексеевич

Зарегистрирован: Пн 13 Декабрь 2010, 19:17
Сообщения: 5990
Регион: малая родина Павлова, Скобелева, Циолковского, Уткиных и др.
|
Добавлено:
Вс 24 Март 2013, 20:38
|
  |
Для ПМЖ 6х9 периметр камино-печи ПНП (преимущественно нижний прогрев) будет достаточен в 5,5 м...=126х150 см - это уже с учётом 3-рёх перегородок
ВП варочная плита позволяет по приезду быстро "нагнать" первое тепло.
"чистая" чугунная духовка сразу за топкой ВП этому только поспособствует.
А регистр ГВС, подключенный к ТЕРМЕКСу - позволит надолго забыть про показания эл/счётчика.
5,5 м - это если сделаете лестничный марш закрывающимся.
А если нет, то периметр д.б. увеличен до 7,25 м=1,75х2,0 м
|
_________________ Печник - милостью и промыслом Божиим.
Печное отопление частного дома и т.п., авторское сопровождение проектов, наставничество в т.ч. дистанционное, партнёрство в кладке печей.
89106130763 МТС
andrejka61@mail.ru
andrej.kuzmischev@yandex.ru
|
|
   |
 |
Павел_П

Зарегистрирован: Чт 6 Август 2009, 09:12
Сообщения: 423
Регион: Москва
|
Добавлено:
Пн 25 Март 2013, 16:07
|
  |
| Андрей_Алексеевич писал(а): |
Для ПМЖ 6х9 ...
А если нет, то периметр д.б. увеличен до 7,25 м=1,75х2,0 м |
боюсь он не поймет....
фундамент закапывайте на глубину промерзания. если лента под дом мелкозаглубленная - связывать с ней печной Ф не надо. площадь возьмите с запасом. на "излишек" удобно половые лаги опирать.
а быстро нагреть кирпичной печью - распространенное заблуждение. это камин или буржуйки. как промежуточный вариант - каминопечь.
кирпичную же делают в частности для того, чтобы к утру в пять одеял не кутаться ))
|
_________________ щи да каша - пища наша
|
|
   |
 |
Konstantin
Зарегистрирован: Вс 24 Март 2013, 18:22
Сообщения: 5
Регион: Москва
|
Добавлено:
Пн 25 Март 2013, 18:05
|
  |
А все же сколько отступить от линии конька?
|
|
|
|
  |
 |
Андрей_Алексеевич

Зарегистрирован: Пн 13 Декабрь 2010, 19:17
Сообщения: 5990
Регион: малая родина Павлова, Скобелева, Циолковского, Уткиных и др.
|
Добавлено:
Пн 25 Март 2013, 18:18
|
  |
| Konstantin писал(а): |
| А все же сколько отступить от линии конька? |
Современные кровельщики зашивают ТД, выведенную и в конёк
Но если есть возможность, то, с учётом материала, расстояние от конька до ТД делайте не менее 30 см.
Повторюсь - 30 см - не "закон Мидян и Персов"
|
_________________ Печник - милостью и промыслом Божиим.
Печное отопление частного дома и т.п., авторское сопровождение проектов, наставничество в т.ч. дистанционное, партнёрство в кладке печей.
89106130763 МТС
andrejka61@mail.ru
andrej.kuzmischev@yandex.ru
|
|
   |
 |
Konstantin
Зарегистрирован: Вс 24 Март 2013, 18:22
Сообщения: 5
Регион: Москва
|
Добавлено:
Пн 25 Март 2013, 19:20
|
  |
Печь от стены отставить тоже где-то сантиметров на 30?
|
|
|
|
  |
 |
Гребенчюк Андрей

Зарегистрирован: Чт 9 Сентябрь 2010, 17:23
Сообщения: 1211
Регион: Ленинградская область
|
Добавлено:
Пн 25 Март 2013, 19:25
|
  |
| Konstantin писал(а): |
| Печь от стены отставить тоже где-то сантиметров на 30? |
достаточно и 25 см
|
|
|
|
  |
 |
Konstantin
Зарегистрирован: Вс 24 Март 2013, 18:22
Сообщения: 5
Регион: Москва
|
Добавлено:
Пн 25 Март 2013, 19:39
|
  |
|
  |
 |
banderas81
Зарегистрирован: Пн 28 Ноябрь 2011, 22:38
Сообщения: 106
Регион: Великий Новгород
|
Добавлено:
Чт 20 Февраль 2014, 16:40
|
  |
Добрый день.
Подскажите как фундамент сделать.
Под дом планирую незаглубленную ленту на песчаной подушке.
1.Связывать фундаменты печей с фундаментом дома-бани?
2.Делать так же не заглубленные?
3.Также очень волнует вопрос о дымоходах, если не связывать фундаменты
и дымоход делать общий то возможно нарушение целостности дымохода, в случае если фундаменты гульнут.
4.Если связать то не порвет ли ленту.
|
| Описание: |
|
| Размер файла: |
108.22 КБ |
| Просмотров: |
881 раз(а) |

|
|
|
  |
 |
Шура

Зарегистрирован: Чт 8 Январь 2009, 20:09
Сообщения: 4171
Регион: Москва - Тамбов
|
Добавлено:
Чт 20 Февраль 2014, 18:47
|
  |
| banderas81 писал(а): |
Добрый день.
Подскажите как фундамент сделать.
Под дом планирую незаглубленную ленту на песчаной подушке.
1.Связывать фундаменты печей с фундаментом дома-бани?
2.Делать так же не заглубленные?
3.Также очень волнует вопрос о дымоходах, если не связывать фундаменты
и дымоход делать общий то возможно нарушение целостности дымохода, в случае если фундаменты гульнут.
4.Если связать то не порвет ли ленту. |
Это общестроительные вопросы...
|
|
|
|
   |
 |
|
|
|
Следующая тема
Предыдущая тема
Вы не можете начинать темы Вы не можете отвечать на сообщения Вы не можете редактировать свои сообщения Вы не можете удалять свои сообщения Вы не можете голосовать в опросах Вы не можете добавлять приложения в этом форуме Вы можете скачивать файлы в этом форуме
|
|