 |
|
 |
| Автор |
Сообщение
|
Михаил Тяпкин
Зарегистрирован: Ср 18 Январь 2012, 22:36
Сообщения: 8
Регион: Севастополь
|
Добавлено:
Ср 8 Февраль 2012, 01:24
|
  |
| Цитата: |
| Вы наверное не поняли, что такое "Титан" |
- это я понял, спасибо.
Сейчас ввиду "нелетной" погоды занимаюсь проработкой "проектной документации".
В результате вашего совета родилась мысль несколько изменить планировку цоколя. А именно - разместить там парную.
Получается, что в роли Титана будет работать металлическая печь-каменка, дымоход от которой нужно поднять через 2 этажа, и на первом этаже завести продукты сгорания в тепловой щиток. Приблизительно как на рисунке. Дымоход через второй этаж не прорисовывал.
Сейчас размышляю над несколькими вопросами:
1)Насколько правильно я изобразил расположение колпаков и их размеры, если помещение ванной где расположен щиток на первом этаже 2,5*2,3м ?
2)Не будет ли слишком снижена температура газов на выходе и не слишком ли возрастет сопротивление дымоходной системы , если на втором этаже добавить еще один щиток, кроме того, что уже будет на первом этаже?
3)Можно ли выполнить щиток в четверь кирпича с последующей облицовкой кафелем?
4)Как правильно провести металлический дымоход из одного угла парной (от печи) в другой (где планируется дымоход) под подволоком вдоль стены (расстояние около 2м)? Получается так, что на расстоянии 50 см от дымохода подволок и стены обшивать деревом не стоит, или есть еще какие то варианты ?
|
_________________ Дорогу осилит идущий
| Описание: |
| привязка печи в парной к щитку |
|
| Размер файла: |
51.21 КБ |
| Просмотров: |
974 раз(а) |

|
|
|
   |
 |
Игорь 2

Зарегистрирован: Пн 1 Февраль 2010, 13:16
Сообщения: 1006
Регион: Лен обл Волосовский, Ломоносовский р-ны, Гатчина
|
Добавлено:
Ср 8 Февраль 2012, 09:35
|
  |
Михаил, большинство железных банных печей заводского изготовления просто не рассчитаны на работу с отопительным щитком, и требуют прямого дымохода.
Горизонтальный участок трубы, мало того, что уменьшит парную, так он еще и увеличит риск возгорания, и будет постоянно забиваться сажей. И кроме того так делать просто нельзя. Прежде, чем вести проектирование, неплохо было бы ознакомиться с основами теории проектируемого вопроса. А так же с существующими нормами.
Щиток, с толщиной стенок в четверть кирпича, неэффективен в плане накопителя тепла. Для постоянного проживания он не пригоден. Облицовка такого щитка плиткой весьма проблематична, и с точки зрения долговечности- нежизнеспособна.Почти....
Схема щита у Вас сделана с ошибкой.
Изучайте первоисточники. Там же, в первоисточниках, Игорем Викторовичем очень подробно описано как устраивается печное отопление многоэтажных домов. Почитайте, весьма познавательно, смею заметить.
P.S. А для нагрева щитка придется ежедневно топить баню?
|
_________________ телефон +79217415105 https://vk.com/id60358428
|
|
   |
 |
Михаил Тяпкин
Зарегистрирован: Ср 18 Январь 2012, 22:36
Сообщения: 8
Регион: Севастополь
|
Добавлено:
Ср 8 Февраль 2012, 15:15
|
  |
...Ох, уж эти фокусы, ох уж эти мне фокусники... (Цитата из мультфильма "Шел прошлогодний снег")
Игорь, прошу вас понять меня правильно:
| Цитата: |
| Михаил, большинство железных банных печей заводского изготовления просто не рассчитаны на работу с отопительным щитком, и требуют прямого дымохода. |
Разве мною было написано что печь будет заводского изготовления? Вроде писано было лишь про материал из которого будет оная изготавливаться. По причине банальной экономии и наличия "рукастого" сварщика который подобные вещи уже изготавливал, и цена вопроса была не соизмерима с предложениями торговцев в современных "лабазах".
| Цитата: |
| Горизонтальный участок трубы, мало того, что уменьшит парную, так он еще и увеличит риск возгорания, и будет постоянно забиваться сажей. И кроме того так делать просто нельзя. |
Да, соглашусь с вами, что горизонтальный участок "съест" часть объема помещения. Сажа - тоже да, но для того чтобы ее удалить есть руки. По поводу того, что так делать нельзя - вот тут http://www.pechi-kaminy.su/11.4.php в абзаце первом говорится иное, дабы не утруждать вас переходом по ссылке процитирую :"Металлические дымовые трубы, прокладываемые под сгораемым потолком или параллельно сгораемым стенам и перегородкам, должны отстоять от них не менее чем на 70 см при отсутствии изоляции и не менее чем на 50 см при наличии изоляции сгораемых конструкций".
Возможно мне стоило сразу заметить что дом каменный. Помещение цокольного этажа, в котором планируется парная имеет три стены из ракушечника, четвертая, та самая, рядом с которой планируется установка печи и проводка горизонтальной части дымохода - 40 см буто-бетона. Перекрытие - выполнено по армо-ракушечной технологии (если вы знакомы с термином часторебристые перекрытия) вы поймете меня.
Как вы вероятно догадались, сообщение, наисанное мною, с перечнем вопросов подразумевало вероятность разумных ответов и конкретных указаний на ошибки, а не наличие саркастической критики. Это касательно вашей рекомендации прочесть теорию и нормативную документацию.
| Цитата: |
| Щиток, с толщиной стенок в четверть кирпича, неэффективен в плане накопителя тепла.Для постоянного проживания он не пригоден. |
Вот это уже конкретика.
| Цитата: |
| Облицовка такого щитка плиткой весьма проблематична, и с точки зрения долговечности- нежизнеспособна.Почти.... |
ключевое слово - "почти". Здесь же на форуме посмотрите на 6-ую фотографию из вот этого сообщения http://forum.stovemaster.ru/viewtopic.php?p=62726#62726
| Цитата: |
| Схема щита у Вас сделана с ошибкой.ам же, в первоисточниках, Игорем Викторовичем очень подробно описано как устраивается печное отопление многоэтажных домов. Почитайте, весьма познавательно, смею заметить. |
Как уже заметил ранее - надеялся на конкретный ответ - ошибка ....
Вы вероятно подумали что писать в форуме я стал до того как прочел статью http://stove.ru/index.php?lng=0&rs=15 в которой в частность написано:
| Цитата: |
Руководствуясь выше изложенными концепцией, и основами правильной конструкции бытовых печей И. С. Подгородникова, определим основные правила конструирования очагов, имеющих бесканальные конвективные системы:
4)не рекомендуется делать колпаки с вертикальными рассечками; поток горячих газов из топки (или из нижнего колпака) фонтанируют с большой скоростью, и расширяется по мере подъёма, вертикальные рассечки мешают естественному распространению газов; |
Таким образом ошибка заключается в лишней рассечке, нарисованной в левой части нижнего колпака, верно?
| Цитата: |
| P.S. А для нагрева щитка придется ежедневно топить баню? |
не думал это делать ежедневно, тем более в теплое время года. В Севастополе знаете ли, минусовая температура зимой суммарно держится не более месяца. В то же время подумать о возможности хоть и редкого, но использования дармового тепла, улетающего через дымоход можно и должно. Копейка - рубль бережет.
Надеюсь проявленные мною эмоции не помешают вам и другим форумчанам дать дельный совет или предупредить о возможных ошибках.
|
_________________ Дорогу осилит идущий
|
|
   |
 |
Валентин Стрибук

Зарегистрирован: Чт 17 Июль 2008, 18:53
Сообщения: 636
Регион: Москва
|
Добавлено:
Ср 8 Февраль 2012, 19:43
|
  |
Насчёт щитка категорически не согласен. Более того, считаю крайне недопустимым ставить какие-либо металлические печи без кирпичного аккумулятора тепла. Моя практика на этот счёт однозначна.
Для Вашего дома я бы поставил в цоколе отопительную кирпичную печь с встроенным регистром - котлом в импровизированной сушилке-парилке. Тут же металлическую банную печь с "выхлопом" из неё в кирпичную.
Открытый камин не нужен вообще - КПД 10-15%. Лучше металлический печь-камин с прозрачным стеклом - вот тебе камин и заодно мощный источник тепла (хотя и плохого от раскалённых стенок) на всякий случай.
Можно ли тяжёлые щитки ставить на плиты перекрытий и связывать жёстко с трубой - не уверен, прогиба не избежать. Если не это - то конечно печь на 1 этаже и продолжение - печь на втором.
Печь однозначно надо двухконтурную с шамотным ядром, как на практических семинарах партнёрства печей Кузнецова.
А саму банную печь сварить можно по чертежам Бурмистрова Ю.П.
http://ypbv.narod.ru/
|
_________________ 9164865048@mail.ru ... Вернём русскую печь в Россию через барбекю
|
|
     |
 |
Игорь 2

Зарегистрирован: Пн 1 Февраль 2010, 13:16
Сообщения: 1006
Регион: Лен обл Волосовский, Ломоносовский р-ны, Гатчина
|
Добавлено:
Ср 8 Февраль 2012, 20:58
|
  |
| Цитата: |
| Разве мною было написано что печь будет заводского изготовления? |
Нет, но и не было сказано обратного. Отсюда реплика о том, что большинство печей заводского изготовления. Индивидуально - так индивидуально. Главное, что бы она была способна работать в таком режиме. Если знакомый сварщик такое сделает - честь ему и хвала.
По поводу горизонтальных дымовых труб- 50 см ниже потолка + диаметр трубы. (Труба будет с изоляцией? ) = Итого имеем примерно 70 см от потолка трубу... Возможно горячую. И увеличение сопротивления движению дымовых газов. Оно рационально? ИМХО - нет. Я бы передвинул печь ближе к дымоходу.
По поводу "почти".... в приведенном Вами примере облицовывалась оболочка кассеты. В четверть кирпича. Дымовые газы там двигаются по отдельному дымовому каналу, выполненному по всем правилам из кирпича на плашку, т.е. с толщиной стенок в полкирпича. И через зазор к ним идет просто декоративная оболочка в четверть (На ребро). Таким образом облицовывается стенка в три четверти кирпича толщиной с воздушным зазором внутри!!! Она не нагревается до такой степени, как печь, внутреннюю поверхность стенок которой омывают дымовые газы. Печь (щиток), выполненная на ребро, разогревается гораздо сильнее, чем выполненная на плашку. И трескается гораздо чаще и обширнее. А это уже грозит просачиванием угарного газа в жилое помещение. Ну и кривая нагрева и остывания у нее гораздо более крутая, по сравнению с теплоемкой печью. Нагревается она быстрее, сильнее, и остывает быстрее. По этим характеристикам она ближе к не теплоемким металлическим печам,чем к традиционным печам для постоянного проживания.
Даже учитывая климат Севастополя, предпочтительнее нагреть до более низкой температуры теплоемкую печь, чем раскалить легкую. ИМХО. Вы ведь планируете утилизировать тепло от банной печи, так? а сколько времени топится банная печь? По моим наблюдениям несколько дольше, чем просто отопительная. А значит и разогрев щитка в четверть кирпича будет значительно выше, чем даже у отопительной печи , выполненной по такой технологии.
А, забыл про "почти". Более высокий нагрев приводит к большим подвижкам массива кладки, что и является, кстати, причиной меньшей трещинностойкости таких решений, а вот увеличение амплитуды расширения влечет усложнение облицовки. А значит удорожание. В одном месте экономим, в другом теряем. Есть достаточно большая вероятность в том, что будут требоваться периодические ремонты облицовки. Это не вдаваясь в нормативные документы и в то, что "копеешная" экономия может обернуться огромными потерями, а то и бедой. С огнем шапкозакидательство - крайне опасная игра.
Да, я надеялся, что читали статью... Пардон. Да, ошибка в лишней рассечке. Мне это показалось очевидным.
Об экономии дров время от времени .... месяц в году... в этом есть необходимость? топим два-три раза за этот период баню и получаем экономию в пару охапок дров в год?.... а для их экономии строим целую печку? насколько рентабельна такая экономия, и когда она начнет приносить прибыль? Или я ошибаюсь в оценке экономии, или все предприятие имеет рентабельность, если не отрицательную, то близкую к нулю....
В плане несущей способности перекрытий я полностью согласен с Валентином.
А вот по поводу железных печек - нет. Некоторые модели можно подключить к щитку, а некоторые, в силу своих конструктивных особенностей производитель запрещает подключать не к прямому дымоходу. Ну и целесообразность их использования ограничена определенным, довольно узким, диапазоном решаемых задач, таких как залповый прогрев воздуха в помещении (например по приезду на дачу), отопление нежилых помещений, ну или когда нет возможности по каким либо причинам поставить печь для отопления или открытый камин для эстетики.
|
_________________ телефон +79217415105 https://vk.com/id60358428
|
|
   |
 |
Sergio
Зарегистрирован: Чт 12 Январь 2012, 22:46
Сообщения: 56
Регион: Севрюково
|
Добавлено:
Вт 17 Апрель 2012, 18:49
|
  |
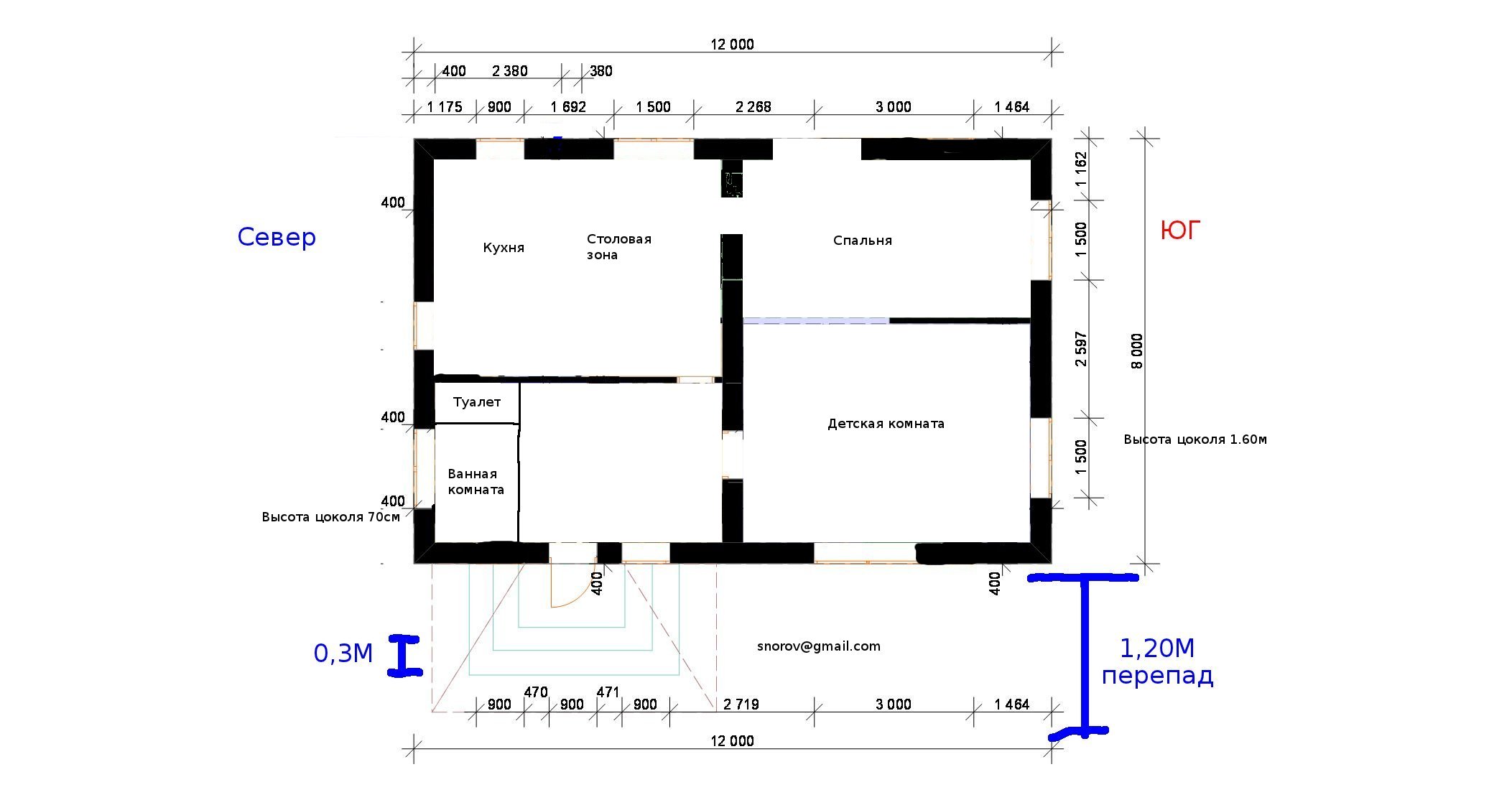
Здравствуйте.
Уважаемые мастера. Прошло время, обращаюсь к вам снова за решением.
Привёл новый план, по которому собираемся в дальнейшем строиться и жить.
Второй этаж мы уже не потянем. Поэтому решили оставить то, на чём остановились.
Вот план. На нём широкие линии - стена размером 39 см - керамзитоблок.
Межкомнатная перегородка только между спальней и детской и то в 2 ряда.
Хочется расположить печь с резистором для водяного отопления. Вопрос где это сделать.
В месте кухня находится плита ПБ-пустотка, которая явно не выдержит печь. В зоне столовая... Может быть, тогда как обеспечить доступ к комнате..
Самое лучше место, прихожая. Как раз рядом ванная, туалет, вода. Но это моё мнение.
|
| Описание: |
|
| Размер файла: |
113.75 КБ |
| Просмотров: |
1150 раз(а) |

|
|
|
  |
 |
Elm

Зарегистрирован: Пн 12 Декабрь 2011, 13:23
Сообщения: 1413
Регион: Первомайск (на Южном Буге)
|
Добавлено:
Пт 11 Май 2012, 21:39
|
  |
Обозначьте где плита.
А так, просится поменять место ванной и туалета, чтобы печь была между прихожей и кухней. В кухне можно и варочную плиту поставить...
|
|
|
|
    |
 |
Sergio
Зарегистрирован: Чт 12 Январь 2012, 22:46
Сообщения: 56
Регион: Севрюково
|
Добавлено:
Сб 12 Май 2012, 08:37
|
  |
| Elm писал(а): |
Обозначьте где плита.
А так, просится поменять место ванной и туалета, чтобы печь была между прихожей и кухней. В кухне можно и варочную плиту поставить... |
Тогда трубу надо делать высоченной, выше конька. Или конёк делать не слишком высокий.
|
| Описание: |
| Красным - предполагаемое место под печь. Синим-плита над подвалом. |
|
| Размер файла: |
110.45 КБ |
| Просмотров: |
899 раз(а) |

|
|
|
  |
 |
Elm

Зарегистрирован: Пн 12 Декабрь 2011, 13:23
Сообщения: 1413
Регион: Первомайск (на Южном Буге)
|
Добавлено:
Сб 12 Май 2012, 09:21
|
  |
Предполагал как-то так. Кухонная плита (1) стоит независимо от котла (не перевязана с ним), топится справа, но имеет выход в общий дымоход.
***
Не знаю как у Вас, но у нас по ППБ лежак в два метра допускается, так что можно ставить дымоход на средней стене... тем более что дом не деревянный и опасность пожара существенно поменьше, особенно если перекрытия будет из ПК.
***
В проекте плохо что нет холодного тамбура...
***
А проект уже утвержден? - может Вам какой-нибудь другой выбрать, чтобы две печи и никаких водяных труб?
|
| Описание: |
|
| Размер файла: |
108.07 КБ |
| Просмотров: |
853 раз(а) |

|
|
|
    |
 |
Андрей_Алексеевич

Зарегистрирован: Пн 13 Декабрь 2010, 19:17
Сообщения: 5970
Регион: малая родина Павлова, Скобелева, Циолковского, Уткиных и др.
|
Добавлено:
Сб 12 Май 2012, 09:29
|
  |
| Sergio писал(а): |
Здравствуйте. Уважаемые мастера. Прошло время, обращаюсь к вам снова за решением.
Привёл новый план, по которому собираемся в дальнейшем строиться и жить.
Второй этаж мы уже не потянем. Поэтому решили оставить то, на чём остановились.
Вот план. На нём широкие линии - стена размером 39 см - керамзитоблок.
Межкомнатная перегородка только между спальней и детской и то в 2 ряда.
Хочется расположить печь с резистором для водяного отопления. Вопрос где это сделать.
В месте кухня находится плита ПБ-пустотка, которая явно не выдержит печь. В зоне столовая... Может быть, тогда как обеспечить доступ к комнате..
Самое лучше место, прихожая. Как раз рядом ванная, туалет, вода. Но это моё мнение. |
А что не рассматривали такое размещение:
|
_________________ Печник - милостью и промыслом Божиим.
Печное отопление частного дома и т.п., авторское сопровождение проектов, наставничество в т.ч. дистанционное, партнёрство в кладке печей.
89106130763 МТС
andrejka61@mail.ru
andrej.kuzmischev@yandex.ru
| Описание: |
|
| Размер файла: |
124.45 КБ |
| Просмотров: |
1073 раз(а) |

|
| Описание: |
| ...и всё - так как надо? или добавить-убавить... |
|
| Размер файла: |
12.78 КБ |
| Просмотров: |
870 раз(а) |

|
|
|
   |
 |
Sergio
Зарегистрирован: Чт 12 Январь 2012, 22:46
Сообщения: 56
Регион: Севрюково
|
Добавлено:
Сб 12 Май 2012, 21:54
|
  |
| Андрей_Алексеевич писал(а): |
...
А что не рассматривали такое размещение:
...
|
Именно сейчас и рассматриваем. Пожалуйста напишите, что это за печь? Если напишете где посмотреть размер фундамента, будет просто чудесно. Единственно следующая куча тем и вопросов: как соединить фундамент дома и печи чтобы не было мучительно больно через год.
Печь понравилась мне и семье. Готов приступить к изучению технического решения.
В ближайшее время начнём делать крышу. Хотелось бы примерно наметить дымоход.
Перекрытие у нас деревянное будет. Крыша планируется четырёх-скатная.
|
|
|
|
  |
 |
Андрей_Алексеевич

Зарегистрирован: Пн 13 Декабрь 2010, 19:17
Сообщения: 5970
Регион: малая родина Павлова, Скобелева, Циолковского, Уткиных и др.
|
Добавлено:
Пн 14 Май 2012, 09:14
|
  |
| Sergio писал(а): |
Пожалуйста напишите, что это за печь? Если напишете где посмотреть размер фундамента, будет просто чудесно. Единственно следующая куча тем и вопросов: как соединить фундамент дома и печи чтобы не было мучительно больно через год.
Печь понравилась мне и семье. Готов приступить к изучению технического решения.
В ближайшее время начнём делать крышу. Хотелось бы примерно наметить дымоход.
Перекрытие у нас деревянное будет. Крыша планируется четырёх-скатная. |
В дополнение к личке...
Фундамент на 8-10 см шире периметра печи. В углу с трубой - шире на 15 см.
Над ленточным фундаментом стен дома фундамент печи делается П-образной "скобкой" с отступом 3-5 см (пеноплекс) по бокам и сверху. см. рис.
|
_________________ Печник - милостью и промыслом Божиим.
Печное отопление частного дома и т.п., авторское сопровождение проектов, наставничество в т.ч. дистанционное, партнёрство в кладке печей.
89106130763 МТС
andrejka61@mail.ru
andrej.kuzmischev@yandex.ru
| Описание: |
|
| Размер файла: |
17.88 КБ |
| Просмотров: |
867 раз(а) |

|
|
|
   |
 |
Натиса
Зарегистрирован: Чт 17 Май 2012, 11:32
Сообщения: 2
Регион: Москва
|
Добавлено:
Чт 17 Май 2012, 11:53
|
  |
Здравствуйте, уважаемые профессионалы.
Очень нужна ваша помощь.
Сейчас мы занимаемся строительством дома. Нужно определиться с печью.
Предварительно этот вопрос остро не стоял, так как в интернете довольно много информации, но как коснулось вплотную, сразу же возникло о-о-очень много вопросов. И решить самостоятельно ну никак не получается. Итак, попробую написать все по порядку.
Дом для постоянного проживания. Размеры - 9х11 м, со встроенным гаражом. План первого этажа выложен внизу. Стены - из теплой керамики - кирпич "Супертермо". Толщина стен 38 см + 12 см на облицовку. Фундамент дома - плита. На данный момент выгнан цоколь. Как я понимаю, именно на данном этапе нужно начинать строить плиту, или, хотя бы определиться с ее местонахождением, размерами и внешним видом.
Хотелось бы отопительно-варочную печь Кузнецова, чтобы к ней можно было присоединить трубы отопления и с котлом. Место установки - между кухней и коридором. Стояк будет проходить через спальню, которая находится как раз над кухней и обогревать ее.
Так вот, как называется такая печь? Не могу найти порядовки и размеры, так как не могу разобраться в буквенных обозначениях. Не будет ли на кухне (размер 4х4) африканской жары? Ну, и самое главное, будет ли работать такая печь в принципе?
Заранее огромное спасибо! :-)
|
| Описание: |
| Маленький квадратик предполагаемая печь. |
|
| Размер файла: |
84.77 КБ |
| Просмотров: |
860 раз(а) |

|
|
|
  |
 |
Dreamdavids
Зарегистрирован: Сб 29 Октябрь 2011, 07:18
Сообщения: 1105
Регион: Пермь
|
Добавлено:
Чт 17 Май 2012, 13:04
|
  |
Я бы санузел поменял местами с кухней.
|
|
|
|
  |
 |
Натиса
Зарегистрирован: Чт 17 Май 2012, 11:32
Сообщения: 2
Регион: Москва
|
Добавлено:
Чт 17 Май 2012, 14:43
|
  |
| Dreamdavids писал(а): |
Я бы санузел поменял местами с кухней.  |
Думали и так, но не получается по факту. Фундамент заливали под беревенчатый дом с толщиной стены 25 см, а в результате выложили блоками и толщина стала 50 см. Санузел получился узкий, только впихнуть можно ванну (и то угловую), туалет и СМА. Единственное место куда можно приткнуть печь, то, которое я обозначила. Совершила ту же ошибку, которую совершают большинство - изначально не продумала место. Теперь нужно найти что-то узкое, неглубокой и функциональное.
|
|
|
|
  |
 |
Elm

Зарегистрирован: Пн 12 Декабрь 2011, 13:23
Сообщения: 1413
Регион: Первомайск (на Южном Буге)
|
Добавлено:
Чт 17 Май 2012, 17:30
|
  |
Чтобы не было жары выдвигаете побольше печи в холл.
Также было бы хорошо если бы двери в кухню и печь поменяли местами - это увеличило бы подогрев гостиной.
***
На всякий случай напомню, что регистр греет воду только если в печи топится, после завершения топки мощность нагрева резко падает. Поэтому надо или дополнительный ТА, или рассчитывать печь на уголь и длительное горение.
***
В Кузнецова такая печь называется КИКсП и находится в котлах.
|
|
|
|
    |
 |
|
|
|
Следующая тема
Предыдущая тема
Вы не можете начинать темы Вы не можете отвечать на сообщения Вы не можете редактировать свои сообщения Вы не можете удалять свои сообщения Вы не можете голосовать в опросах Вы не можете добавлять приложения в этом форуме Вы можете скачивать файлы в этом форуме
|
|