| Автор |
Сообщение
|
Малышева Ксения
Зарегистрирован: Ср 3 Май 2017, 09:49
Сообщения: 6
Регион: Санкт-Петерург
|
Добавлено:
Ср 3 Май 2017, 09:54
|
  |
Добрый день!
Необходим мастер на следующие работы:
1. Устройство дымохода от кирпичной печи со щитом с выводом на крышу (дом разделен на двух собственников, старая труба отошла соседям)
2. Переборка отопительного щита (тот который есть содержит много изгибов и не отапливается печкой)
На дополнительные вопросы попробую ответить
|
|
|
|
  |
 |
vladimir-krestyanin

Зарегистрирован: Сб 4 Май 2013, 17:38
Сообщения: 796
Регион: санкт-петербург
|
Добавлено:
Ср 3 Май 2017, 18:14
|
  |
Лучше фотки выложите сюда,так не понятно, что со щитком, дым идёт из топочной дверцы,?много изгибов, дык так,все щитки устроены(почти),труба отошла соседям с половиной щитка, у кого топка тогда,? надо фото вообщем, и планировку дома, тоже желательно.
|
_________________ Ну что, Данила-мастер,не выходит каменный цветок?
печи,камины,барбекю,проекты.
8 931 303 07 37
|
|
   |
 |
Малышева Ксения
Зарегистрирован: Ср 3 Май 2017, 09:49
Сообщения: 6
Регион: Санкт-Петерург
|
Добавлено:
Пн 8 Май 2017, 09:04
|
  |
| vladimir-krestyanin писал(а): |
| Лучше фотки выложите сюда,так не понятно, что со щитком, дым идёт из топочной дверцы,?много изгибов, дык так,все щитки устроены(почти),труба отошла соседям с половиной щитка, у кого топка тогда,? надо фото вообщем, и планировку дома, тоже желательно. |
1. Щит во время протопки остаётся холодным, по словам предыдущего печника это из-за не верной конструкции, поскольку кол-во колен не соответствует высоте трубы.
2. Основная труба отошла соседям, но у нас есть переход на втором этаже ( планировали там камин поставить)
|
|
|
|
  |
 |
Малышева Ксения
Зарегистрирован: Ср 3 Май 2017, 09:49
Сообщения: 6
Регион: Санкт-Петерург
|
Добавлено:
Пн 8 Май 2017, 10:05
|
  |
фото системы
|
| Описание: |
| основная труба ( которая отошла соседям) |
|
| Размер файла: |
650.94 КБ |
| Просмотров: |
705 раз(а) |

|
| Описание: |
| Переход от трубы с первого этажа в основную трубу ( на втором этаже) |
|
| Размер файла: |
634.9 КБ |
| Просмотров: |
360 раз(а) |

|
| Описание: |
|
| Размер файла: |
552.26 КБ |
| Просмотров: |
638 раз(а) |

|
| Описание: |
|
| Размер файла: |
747.18 КБ |
| Просмотров: |
677 раз(а) |

|
| Описание: |
| Щит со стороны жилой комнаты |
|
| Размер файла: |
753.31 КБ |
| Просмотров: |
672 раз(а) |

|
|
|
  |
 |
Гребенчюк Андрей

Зарегистрирован: Чт 9 Сентябрь 2010, 17:23
Сообщения: 1211
Регион: Ленинградская область
|
Добавлено:
Пн 8 Май 2017, 17:35
|
  |
Получается щиток весь разбирать и делать по новому ну и плюс труба.
|
|
|
|
  |
 |
vladimir-krestyanin

Зарегистрирован: Сб 4 Май 2013, 17:38
Сообщения: 796
Регион: санкт-петербург
|
Добавлено:
Пн 8 Май 2017, 19:38
|
  |
Такая мысль закралась,-а может они, по летнему ходу топят, в задвижках не разобрались....
|
_________________ Ну что, Данила-мастер,не выходит каменный цветок?
печи,камины,барбекю,проекты.
8 931 303 07 37
|
|
   |
 |
Гребенчюк Андрей

Зарегистрирован: Чт 9 Сентябрь 2010, 17:23
Сообщения: 1211
Регион: Ленинградская область
|
Добавлено:
Пн 8 Май 2017, 19:58
|
  |
| vladimir-krestyanin писал(а): |
| Такая мысль закралась,-а может они, по летнему ходу топят, в задвижках не разобрались.... |
Вполне допускаю и это, открывают все задвижки и топят напрямую в трубу.
|
|
|
|
  |
 |
Гребенчюк Андрей

Зарегистрирован: Чт 9 Сентябрь 2010, 17:23
Сообщения: 1211
Регион: Ленинградская область
|
Добавлено:
Пн 8 Май 2017, 19:59
|
  |
Зато интересно печь вся во обще обложена со всех сторон примыкает дерево. А так не в коем случае не должно быть.
|
|
|
|
  |
 |
Игорь 2

Зарегистрирован: Пн 1 Февраль 2010, 13:16
Сообщения: 1006
Регион: Лен обл Волосовский, Ломоносовский р-ны, Гатчина
|
Добавлено:
Пн 8 Май 2017, 23:18
|
  |
Топку (плиту) к эжтому щиту выкладывал я взамен стоявшей тогда метбуржуйки (оч маленькой). По памяти: там было : вверх/вниз, вверх/вниз, вверх/вниз(как минимум, может и ещё раз), вверх, горизонтальный ход на всю ширину щита обратно, проход через перекрытие, наверху опять "боров" и потом труба. Была выложена топочная часть, организован нормальный летний ход и пробиты внизу подвёрточные перегородки. В результате получился колпак в один ярус с перегородками. На тот момент хозяева не были готовы к полной переделке печи, поэтому остановились на этом варианте. Сейчас не могу оказать им услугу, т.к. ложусь в больницу и не знаю, когда буду трудоспособен. Поэтому посоветовал им обратиться на форум
|
_________________ телефон +79217415105 https://vk.com/id60358428
|
|
   |
 |
Малышева Ксения
Зарегистрирован: Ср 3 Май 2017, 09:49
Сообщения: 6
Регион: Санкт-Петерург
|
Добавлено:
Сб 13 Май 2017, 21:53
|
  |
Будет очень здорово если найдётся мастер на этот сезон.
Очень ждём
|
|
|
|
  |
 |
Гребенчюк Андрей

Зарегистрирован: Чт 9 Сентябрь 2010, 17:23
Сообщения: 1211
Регион: Ленинградская область
|
Добавлено:
Вс 14 Май 2017, 06:29
|
  |
У Вас будут большие переделки, а это затратно. В зависимости от Вашего бюджета, если опять как нибудь то результат будет тот же как описал Игорь.
|
|
|
|
  |
 |
Малышева Ксения
Зарегистрирован: Ср 3 Май 2017, 09:49
Сообщения: 6
Регион: Санкт-Петерург
|
Добавлено:
Вс 14 Май 2017, 09:15
|
  |
Понятно что будет затратно, неужели только из-за этого не найдём мастера?
Масштаб проблемы для нас абсолютно понятен с самого создания темы
|
|
|
|
  |
 |
Малышева Ксения
Зарегистрирован: Ср 3 Май 2017, 09:49
Сообщения: 6
Регион: Санкт-Петерург
|
Добавлено:
Пн 5 Март 2018, 10:36
|
  |
Прошло почти больше года - печник так и не найден. Вопрос на данный момент хотя бы в том - чтобы вывести новую трубу - сэндвич.
|
|
|
|
  |
 |
Валер

Зарегистрирован: Вс 30 Март 2014, 09:18
Сообщения: 2363
Регион: Урал, Вишера
|
Добавлено:
Пн 5 Март 2018, 16:49
|
  |
Вообще работы со щитком на день, красные -уже пробито, синее требуется пробить
|
_________________ Любитель-печеклад
| Описание: |
|
| Размер файла: |
28.36 КБ |
| Просмотров: |
558 раз(а) |

|
|
|
  |
 |
Pe4nik

Зарегистрирован: Пт 1 Октябрь 2010, 05:49
Сообщения: 555
Регион: Шарья
|
Добавлено:
Пн 5 Март 2018, 21:33
|
  |
Валер! Не факт. В одном щите можно устроить разнообразие каналов,это не два-три варианта,а гораздо больше.От мастера зависит.
|
_________________ Печные работы любой сложности от мангала до промышленных спец.печей в ЦФО.За консультации $ не берут,нажимаем на конвертик - спрашиваем.К сайту похожему на мой ник отношения не имею!
С уважением! 8 91О 951 О7 О7
печник-смирнов.рф
|
|
   |
 |
Игорь 2

Зарегистрирован: Пн 1 Февраль 2010, 13:16
Сообщения: 1006
Регион: Лен обл Волосовский, Ломоносовский р-ны, Гатчина
|
Добавлено:
Пн 5 Март 2018, 22:16
|
  |
Виноват, что ввёл в заблуждение. Валера, там сейчас вот так и переделывать больше нечего. Если щит не греется или не устраивает хозяев КАК греется - то полная переделка. без вариантов.
|
_________________ телефон +79217415105 https://vk.com/id60358428
| Описание: |
|
| Размер файла: |
205.75 КБ |
| Просмотров: |
554 раз(а) |

|
|
|
   |
 |
Валер

Зарегистрирован: Вс 30 Март 2014, 09:18
Сообщения: 2363
Регион: Урал, Вишера
|
Добавлено:
Вт 6 Март 2018, 07:53
|
  |
а прогар с топки имеется?
|
_________________ Любитель-печеклад
|
|
  |
 |
Игорь 2

Зарегистрирован: Пн 1 Февраль 2010, 13:16
Сообщения: 1006
Регион: Лен обл Волосовский, Ломоносовский р-ны, Гатчина
|
Добавлено:
Вт 6 Март 2018, 08:12
|
  |
Нет. Зачем он?Там с тягой всё в порядке... Во всяком случае было...
|
_________________ телефон +79217415105 https://vk.com/id60358428
|
|
   |
 |
Мангилев Сергей
Зарегистрирован: Сб 15 Октябрь 2011, 16:09
Сообщения: 978
Регион: Советск
|
Добавлено:
Вт 6 Март 2018, 08:19
|
  |
Заборчек для настила с духовкой явно тяжеловат, а как там дела в борове с сажей?
|
|
|
|
     |
 |
Валер

Зарегистрирован: Вс 30 Март 2014, 09:18
Сообщения: 2363
Регион: Урал, Вишера
|
Добавлено:
Вт 6 Март 2018, 08:27
|
  |
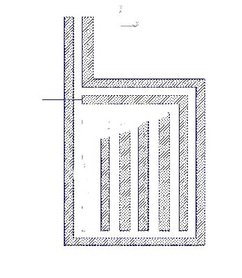
может вот так былоб лучше?
|
_________________ Любитель-печеклад
| Описание: |
|
| Размер файла: |
43.22 КБ |
| Просмотров: |
316 раз(а) |

|
|
|
  |
 |
|
|